Byggemåte
Enebolig som er oppført med grunnmuren i betong.
Veggkonstruksjonen er oppført i tre og er utvendig kledd med liggende kledning.
Taket har saltaksform tekket med takstein.
Etasjeskille er et trebjelkelag.
Takrenner/nedløp i plast.
Vindu og dører med isolerglass.
Takstmann konkluderer:
Bygningen fremstår med normal stand iht. alder.
Registrerte merknader er hovedsakelig tilknyttet konstruksjon, teknisk levetid, og normal bruksslitasje.
Opplysninger om vedlikeholdsarbeid, oppgraderinger og påkostninger, som er opplyst i rapporten, er
opplysninger som er gitt av selger.
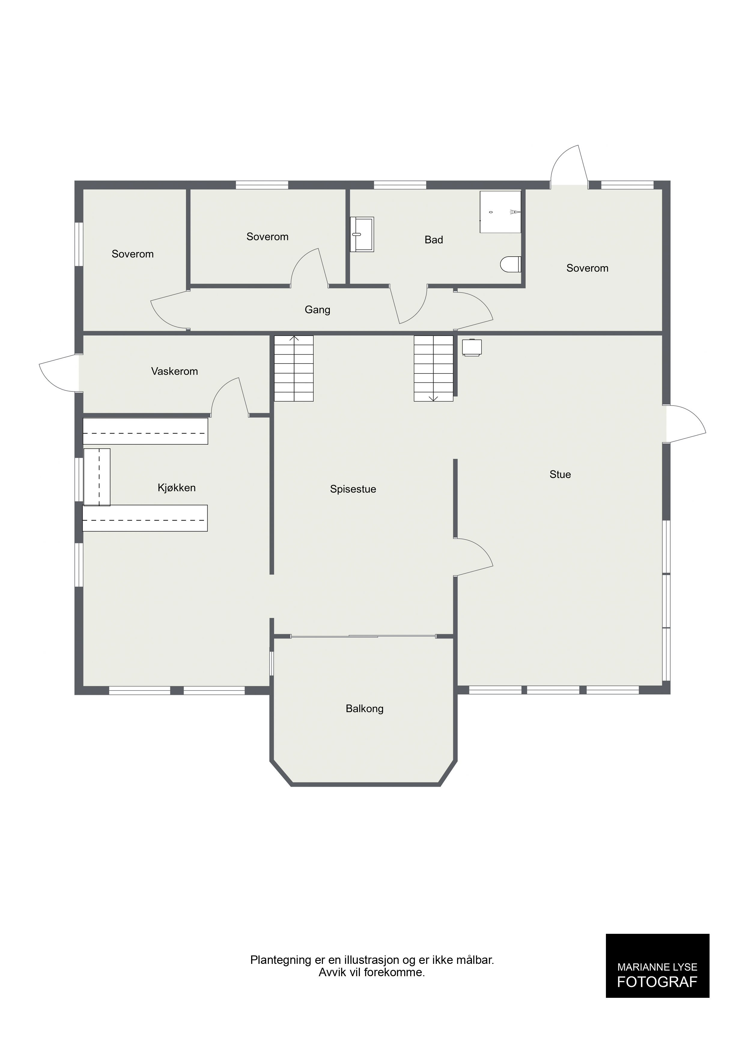
Eiendommen er gjennomgått av en bygningskyndig og det er utarbeidet en tilstandsrapport. Denne er
vedlagt salgsoppgaven.
Antall TG2: 25 stk
Antall TG3: 3 stk
Bygningsdeler med TG3
Utstyr på tak - oppsummering
Takvinkelen er 27 grader eller mer og det vil være krav til montering av snøfangere over
inngangsparti.
Anbefalte tiltak
Snøfanger må etableres for å lukke avviket.
Toalettrom - oppsummering
Rommet mangler ventilering.
Anbefalte tiltak
Det anbefales å etablere mekanisk avtrekk for optimal ventilering, samt tilluft under dør ved å
montere flat terskel.
Våtrom: 1. Etg Vaskerom - Oppsummering av membran, tettesjikt og sluk.
Sluk av plast, eldre type uten synlig klemring eller tilkoblet membran. Trolig brukt primer som
normalt ved oppføringspunktet, dette er ikke tilfredsstillende ift. dagens krav til tetthet.
Med tanke på alder er det økt risiko for lekkasjer.
TG:3 satt iht alder, samt manglende tettesjikt.
Anbefalte tiltak membran, tettesjikt og sluk
Tettesjikt må etableres for å oppnå tilfredsstillende utførelse i henhold til dagens krav til fuktsikring
og tetthet.
Bygningsdeler med TG2
- Drenering
- Rom under terreng
- Balkong, terrasse, platting
- Vinduer og dører
- Yttervegger
- Renner og nedløp
- Taktekking
- Kjøkken: overflater og innredning
- Trapp
- Avløpsrør
- Vannledninger
- Elektrisk
- Varmtvannsbereder
- Våtrom: 1. Etg Vaskerom: Overflater, fukt.
- Våtrom: 1. Etg Bad:- Overflater, Membran/tettesjikt/sluk
- Våtrom: 2. Etg vaskerom: Ventilasjon, Membran/tettesjikt/sluk
- Våtrom: 2. Etg Bad: Sanitærutstyr
- Våtrom: Teknisk rom / bod: Overflater, fukt, membran/tettsjikt/sluk, ventilasjon
- Øvrig: Skorstein over tak
Se vedlagt boligsalgsrapport avholdt 28.10.25, hvor ovennevnte opplysninger er hentet fra, for
nærmere teknisk beskrivelse av eiendommen.