4856212_1a
Proaktiv Eiendomsmegling v/Kenneth Vårvik har gleden av å invitere til visning av denne flotte eneboligen på Lundamo. ( 1 av )
4856216_1a
Boligen er opprinnelig bygd i 1965, men er bl.a. påbygd og oppgradert i flere omganger siden den gang. ( 2 av )
4856211_1a
Tomta måler 771 kvm, er for det meste inngjerdet og er parkmessig opparbeidet med plen, bøkehekk, beplantninger og frukttre. ( 3 av )
4856210_1a
Terrassen på boligens bakside vender mot sørvest og byr på utmerkede solforhold fra ca. kl 0930 til langt utpå kvelden sommerstid. ( 4 av )
4856213_1a
Plena innbyr til ballspill, lek og moro. ( 5 av )
4856241_1a
( 6 av )
4856244_1a
Overbygget inngangsparti med sitteplass og morgensol. ( 7 av )
4856209_1a
Gårdsplassen ble asfaltert i 2024 og byr på rikelig med biloppstillingsplasser. ( 8 av )
4859564_1a
Velkommen inn! Innbydende entré med flislagt del nærmest ytterdøra. ( 9 av )
4859546_1a
Vi fortsetter inn i boligens hovedoppholdsrom. Stue/kjøkken er av sjenerøs størrelse og måler drøyt 55 kvm. ( 10 av )
4859553_1a
Stilrent kjøkken utstyrt med alt av hvitevarer integrert. Vegg og avtrekkshette i dempet sort utførelse. ( 11 av )
4859552_1a
Kjøkkenøya fungerer ypperlig som frokostbord, samlingssted for gjester mm. og byr på blant integrert stikk-konttakt. ( 12 av )
4859550_1a
Øya byr også på ekstra benke-/skuffeplass og fungerer som romdeler mot spisestua og TV/stua. ( 13 av )
4859547_1a
Rommets størrelse gir plass til stor sofaløsning. TV/Internett via NTE (fiber). ( 14 av )
4859549_1a
Peisovn sørger for rask og god oppvarming på vinterstid. ( 15 av )
4859548_1a
I tillegg er det varmepumpe i rommet, som sørger for jevn varme og som dessuten holder rommet svalt på sommerstid. ( 16 av )
4859551_1a
Vi fortsetter inn i påbygd del, som rommer bad, gang og vaskerom. ( 17 av )
4859555_1a
Lekkert bad med downlights i himlingen og varme i gulvet. ( 18 av )
4859556_1a
Servantskapet har en bredde på 120cm og byr sammen med den vegghengt speil- og skapløsningen på rikelig med oppbevaringsplass. ( 19 av )
4859554_1a
Badet er ellers utstyrt med vegghengt klosett og romslig dusjsone. ( 20 av )
4859560_1a
Separat vaskerom med vask, benk, skuffer- og skap. Opplegg for vaskemaskin-/tørketrommel i arbeidshøyde. ( 21 av )
4859558_1a
Boligen byr på totalt 4 soverom - 2 i hver etasje. Hovedsoverommet måler 11 kvm. Smart plassbygd garderobeløsning ved senga. ( 22 av )
4859563_1a
Soverom II ( 23 av )
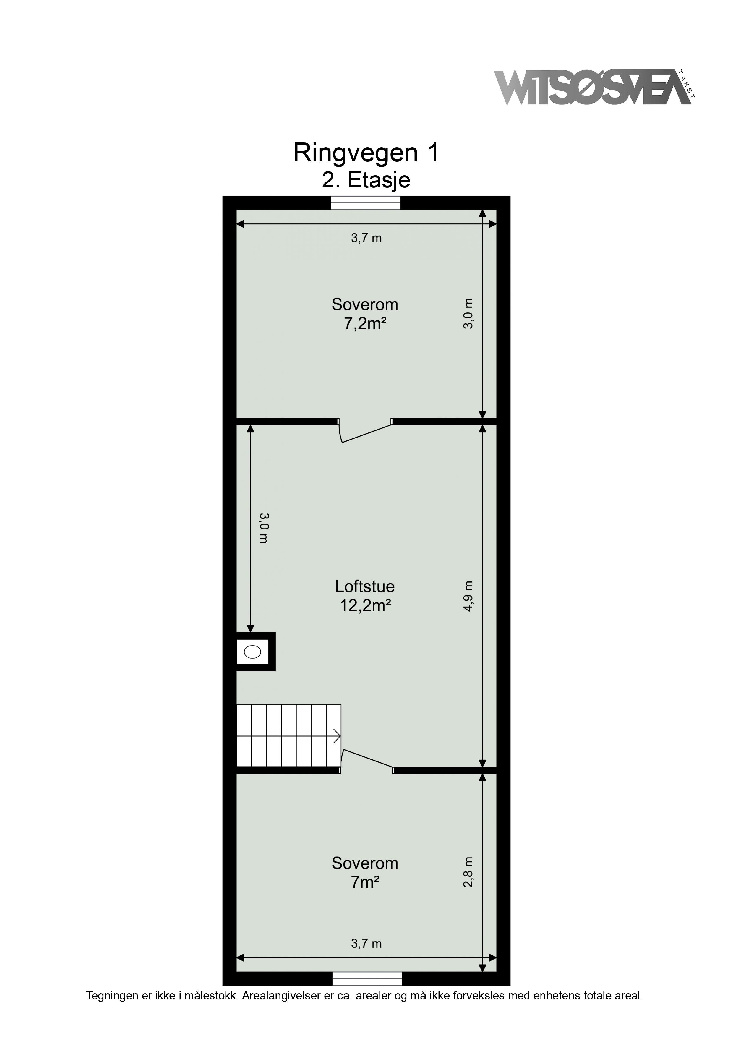
4859562_1a
I 2. etasje finner vi loftstue og 2 soverom. ( 24 av )
4859561_1a
Loftstua måler 12,2 kvm og passer glimrende som ungdomsavdeling, lekerom, til hjemmekino el.l. ( 25 av )
4859559_1a
Soverom III. ( 26 av )
4859557_1a
Soverom IV. ( 27 av )
4856234_1a
Planskisse - 1. etasje ( 28 av )
4856235_1a
Planskisse - 2. etasje ( 29 av )
4856242_1a
Eiendommen ligger sentralt til i forhold til skole og barnehage på Lundamo. ( 30 av )
4856681_1a
Lundamo skole- og barnehage nås på en kort rusletur på ca 900 m. ( 31 av )
4856236_1a
Lundamo skole og barnehage er samordnet i et oppvekstsenter med totalt 224 barn ved høsten 2025 ( 32 av )
4859452_1a
Fra boligen er det korte avstander til flere dagligdagse fasiliteter som blant annet nærbutikken Coop Prix Lundamo ca. 900 m unna boligen. ( 33 av )
4858064_1a
Dersom man ønsker et bredere service- og utsalgstilbud kan man ta turen til f.eks. Melhus sentrum, hvor man finner bl.a. kjøpesenter med klesbutikker, kafé, vinmonopo og mer. Turen til Melhus tar ca. 15 minutter med bil. ( 34 av )
4858063_1a
Her finner man også flere restauranter og spisesteder. ( 35 av )
4859675_1a
Ønsker man et større utvalg av utsalgssteder er det kun 25 min kjøretid til Tillerbyen hvor man bl.a. finner storkjøpesentrene City-Syd, Stor-M og Tiller-Torget ( 36 av )
4856237_1a
Det er gode buss- og togforbindelser fra Lundamo, se atb.no ( 37 av )
4856239_1a
Området bugner forøvrig av muligheter for å oppsøke flotte opplevelser. Her kan man vandre langs elven med flere broer som tar en over Sokna. ( 38 av )
4856238_1a
På vinterstid kan man spenne på skiene og f.eks. ta seg en topptur opp Vassfjellet. ( 39 av )
4856243_1a
Husk å meld deg på til visning via påmeldingsfunksjonen på Finn.no ( 40 av )

Ringvegen 1

Se alle bilder (0)
4856212_1a
4856216_1a
4856211_1a
4856210_1a
4856213_1a
4856241_1a
4856244_1a
4856209_1a
4859564_1a
4859546_1a
4859553_1a
4859552_1a
4859550_1a
4859547_1a
4859549_1a
4859548_1a
4859551_1a
4859555_1a
4859556_1a
4859554_1a
4859560_1a
4859558_1a
4859563_1a
4859562_1a
4859561_1a
4859559_1a
4859557_1a
4856234_1a
4856235_1a
4856242_1a
4856681_1a
4856236_1a
4859452_1a
4858064_1a
4858063_1a
4859675_1a
4856237_1a
4856239_1a
4856238_1a
4856243_1a

Ringvegen 1

Prisantydning:
Fra Kr 3490000,00
til Kr 0,00
Totalpris:
Kr 3596240,00
BRA:
154,00 - 0,00
BRA-i:
130 - 0
Soverom:
4 - 0
Boligtype:
Enebolig
Eierform:
Eiet tomt
Byggeår:
1965
Etasje:
0
Tomteareal:
771

Familiebolig med inngjerdet og parkmessig opparbeidet tomt. Lekkert kjøkken. Pent bad. 4 sov. 2 stuer. 3 boder.

Ansvarlig megler:
Kenneth Vårvik

Eiendomsmegler / Partner / Jurist

Visning

04.11.2025 17:30 - 18:15

Legg visning til i kalender 04.11.2025 17:30 04.11.2025 18:15 Central European Time Visning av Ringvegen 1 Boligvisning av Ringvegen 1 Ringvegen 1

Passer ikke visningstidspunktene?

Visningspåmelding
Avtal privatvisning her

Ringvegen 1

image005

Nøkkelinformasjon

plus_G_2025

BELIGGENHET

plus_G
minus_G

BESKRIVELSE AV EIENDOMMEN

plus_G
minus_G

OFFENTLIGE FORHOLD

plus_G
minus_G

PRISANTYDNING INKLUDERT OMKOSTNINGER

plus_G
minus_G

ØVRIGE KJØPSFORHOLD

plus_G
minus_G

Dokumenter

plus_G_2025

Del boligen

facebook-gold
Twitter-gold

Lurer du på noe om denne boligen?

Ta kontakt under via skjemaet.


Relaterte boliger

Mælabakken 5
9500000,00  0,00

Mælabakken 5

Melhus ­ Melhus
Kombinert bolig- og næringseiendom i Melhus sentrum. Boligdel utleid for 20 000,- pr. mnd. Garasjeanlegg (185 BTA).

Totalpris:

Kr 9500000,00

P-rom:

327,00 m²
Mælabakken 5
9500000,00  0,00

Mælabakken 5

Melhus ­ Melhus
Kombinert bolig- og næringseiendom i Melhus sentrum. Boligdel utleid for 20 000,- pr. mnd. Garasjeanlegg (185 BTA).

Areal (BTA):

546,00
Se flere boliger
Bolig til salgs

Inspirasjon

Inspirerende interiørbilder fra norske hjem.
sov1
Soverom
kjo1
Kjøkken
stue
Stue

Boligartikler

Nyttig informasjon, råd og inspirasjon for deg som er opptatt av bolig.
vo4
Aktuelt

178 dager uten bud; - Proaktiv solgte boligen min etter første visning

Huset i Vestre Olsvikveg hadde mistet alt av moment etter et halvt år ute i markedet. Da Proaktiv ved Jon Kristian Røsok kom inn i bildet ble...
n_r-16
Aktuelt

Drømmer du om å drive ditt eget meglerkontor?

Proaktiv Eiendomsmegling er alltid på utkikk etter flinke folk som ønsker å skape sin egen suksess. Er du en målrettet og verdiskapende megler, med...
ole4
Aktuelt

Bygget i 2021. Solgt for 2,5 millioner mer i 2025

Boligen i Ole I. Bores veg ble solgt for én million over prisantydning etter å ha ligget ute i markedet i kun en uke.