4659657_1a
Velkommen til Nardoskrenten 5A og denne eneboligen med flott beliggenhet i et veletablert boligområde på Nardo. ( 1 av )
4659656_1a
Boligen er ferdigsstillt i November 2023 og holder en gjennomgående høy og moderne standard. ( 2 av )
4659658_1a
Fasade og utomhus ( 3 av )
4634899_1a
Fra stuen i 2.etasje har man tilgang til en fantastisk takterrasse med svært gode solforhold ( 4 av )
4634898_1a
Fra takterrassen har man flott utsikt og gode solforhold. ( 5 av )
4600331_1a
( 6 av )
4600441_1a
Plantegning 1.etasje ( 7 av )
4600216_1a
Når man kommer inn i boligen møtes man av en romslig og trivelig entrè/hall på 20 kvm. ( 8 av )
4600200_1a
1.etasje består av 3 soverom, alle av god størrelse. ( 9 av )
4600211_1a
Flislagt baderom ( 10 av )
4600219_1a
Soverom 2 ( 11 av )
4600210_1a
Soverom 3 ( 12 av )
4600215_1a
Fra soverommet er det gjennomgang til bad via et meget praktisk walk-in-closet ( 13 av )
4600227_1a
Soverom ( 14 av )
4600206_1a
Følger man den flotte trappen opp til 2.etasje møtes man av et lyst og luftig allrom ( 15 av )
4600224_1a
Bad ( 16 av )
4600332_1a
( 17 av )
4600444_1a
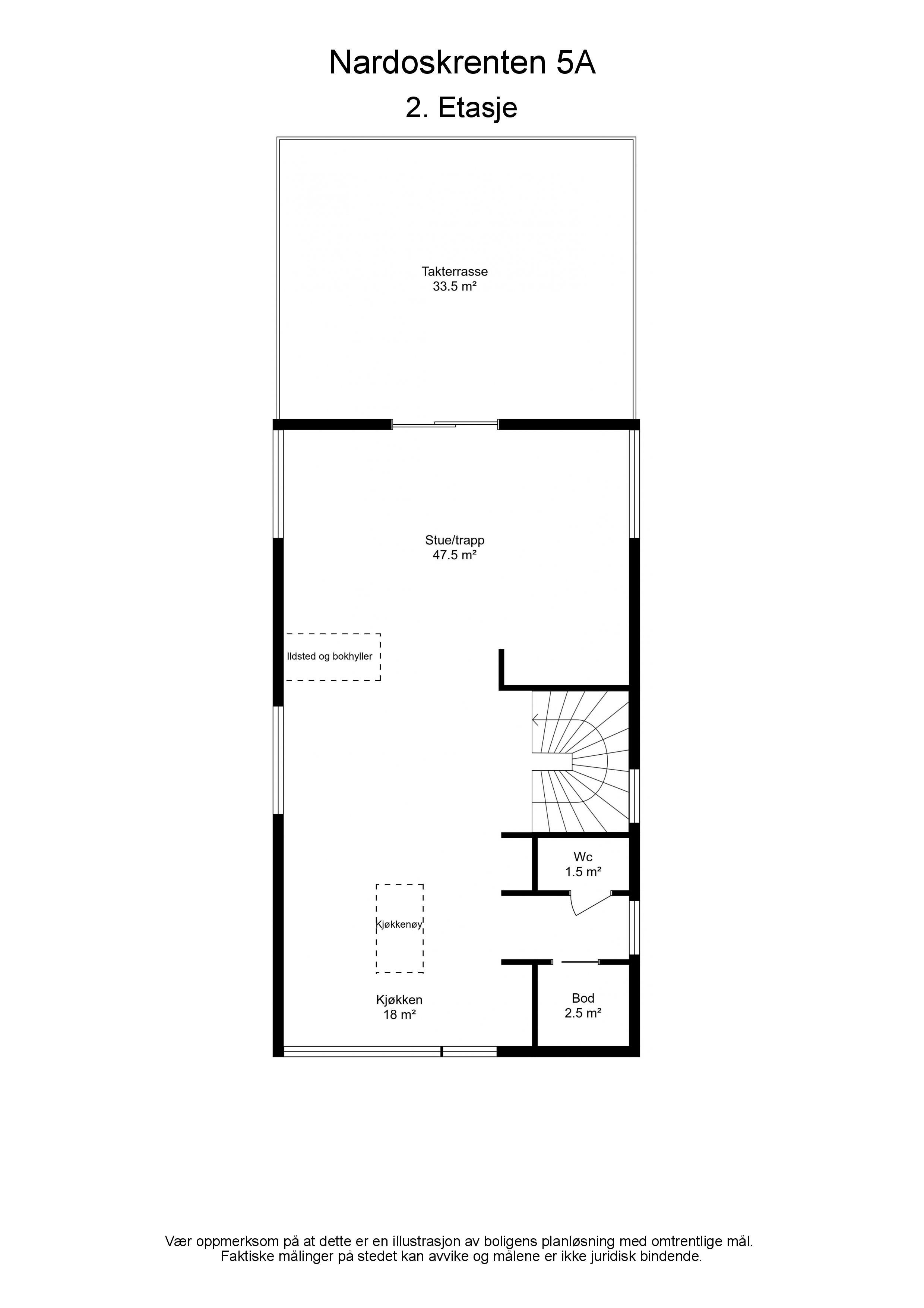
Plantegning 2.etasje ( 18 av )
4600226_1a
Store vindusflater og god takhøyde preger hele 2.etasjen og gjør dette til et perfekt samlingssted for hele familien. ( 19 av )
4600199_1a
Pen peis midt i rommet - ett vakkert blikkfang og en rask og god oppvarmingskilde på de kaldere dagene ( 20 av )
4600209_1a
Lys og trivelig stue med god plass til sofagruppe, tv-benk og annet møblement ( 21 av )
4600221_1a
Meget god takhøyde i hele 2.etasje ( 22 av )
4600203_1a
Kjøkken fra kvalitetsleverandøren JKE ( 23 av )
4600208_1a
Kjøkkenet er rikelig utstyrt med blant annet integrert ovn og mikroovn, induksjonstopp med ventilator, servant med Quooker, vinskap innebygd under benk samt kjøleskap og oppvaskmaskin. ( 24 av )
4600222_1a
Praktisk kjøkkenøy med pen belysning. ( 25 av )
4600207_1a
Kjøkken ( 26 av )
4600225_1a
Wc i bakkant av kjøkkenet sikrer toalett i hver etasje i boligen. ( 27 av )
4600223_1a
Bak kjøkkenet er det også en praktisk bod. ( 28 av )
4600228_1a
Kjøkken ( 29 av )
4600205_1a
Kjøkken ( 30 av )
4600333_1a
( 31 av )
4600445_1a
Plantegning underetasje ( 32 av )
4600213_1a
Underetasjen bestående av 2 store boder samt vaskerom og egen hybeldel. ( 33 av )
4600201_1a
Vaskerom med praktisk innredning og dusj. ( 34 av )
4600220_1a
Mulighet for utleie av hybeldel. Bestående av vindfang, stue/kjøkken, sovealkove og bad. Egen inngang. ( 35 av )
4600204_1a
Lekkert utstyrt kjøkken med integrerte hvitevarer. ( 36 av )
4600212_1a
Romslig stue i hybeldel ( 37 av )
4600214_1a
Soverom i hybel (godkjent som alkove) ( 38 av )
4600218_1a
Pent baderom utstyrt med vegghengt wc, servant med underskap og dusjhjørne med innfellbare vegger. ( 39 av )
4600334_1a
( 40 av )
4600235_1a
Kiwi Nardobakken ligger med kort gangavstand fra boligen..) ( 41 av )
4600236_1a
Kort og trygg gangvei til Nardo barneskole og barnehage, kun 3 minutters gange fra boligen ( 42 av )
4600237_1a
Kort vei til NTNU Gløshaugen ( 43 av )
4600353_1a
Nissekollen med fine fotballbaner. På vinter er det herlige akebakker og skøytebane her. ( 44 av )

Nardoskrenten 5A

Se alle bilder (0)
4659657_1a
4659656_1a
4659658_1a
4634899_1a
4634898_1a
4600331_1a
4600441_1a
4600216_1a
4600200_1a
4600211_1a
4600219_1a
4600210_1a
4600215_1a
4600227_1a
4600206_1a
4600224_1a
4600332_1a
4600444_1a
4600226_1a
4600199_1a
4600209_1a
4600221_1a
4600203_1a
4600208_1a
4600222_1a
4600207_1a
4600225_1a
4600223_1a
4600228_1a
4600205_1a
4600333_1a
4600445_1a
4600213_1a
4600201_1a
4600220_1a
4600204_1a
4600212_1a
4600214_1a
4600218_1a
4600334_1a
4600235_1a
4600236_1a
4600237_1a
4600353_1a

Nardoskrenten 5A

Prisantydning:
Fra Kr 13700000,00
til Kr 0,00
Totalpris:
Kr 13803115,00
BRA:
223,00 - 0,00
P-rom:
193,00 - 0
Soverom:
4 - 0
Boligtype:
Enebolig
Eierform:
Fellestomt
Byggeår:
2023
Etasje:
0
Tomteareal:
1609

Moderne, tiltalende og ubebodd enebolig fra 2023. Meget innholdsrik med 3 soverom, 3 bad og vaskerom. Utleiedel.

Ansvarlig megler:
Steinar Skaanes

Daglig leder / Eiendomsmegler MNEF / Partner

Visning

Det er for tiden ikke satt opp visningstid på denne eiendommen.
Ønsker du å avtale et visningstidspunkt?
Avtal privatvisning her

Nardoskrenten 5A

image005

Nøkkelinformasjon

plus_G_2025

BELIGGENHET

plus_G
minus_G

BESKRIVELSE AV EIENDOMMEN

plus_G
minus_G

OFFENTLIGE FORHOLD

plus_G
minus_G

PRISANTYDNING INKLUDERT OMKOSTNINGER

plus_G
minus_G

SAMEIET/ØKONOMI

plus_G
minus_G

ØVRIGE KJØPSFORHOLD

plus_G
minus_G

Dokumenter

plus_G_2025

Del boligen

facebook-gold
Twitter-gold

Lurer du på noe om denne boligen?

Ta kontakt under via skjemaet.


Relaterte boliger

Odenseveien 31
2600000,00  0,00

Odenseveien 31

Trondheim ­ TRONDHEIM
Innbydende 3-roms i toppetasjen like ved marka. Flott utsikt, rehabilitert fasade og god planløsning. Tre boder

Totalpris:

Kr 3434059,00

BRA-i:

62 m²
Ringduevegen 12
2900000,00  0,00

Ringduevegen 12

Trondheim ­ Kattem
Attraktivt rekkehus over tre plan i rolig borettslag. Vestvendt terrasse og hage. Fjernvarme. Parkering.

Totalpris:

Kr 3485248,00

BRA-i:

153 m²
Marie Sørdals veg 11E
3850000,00  0,00

Marie Sørdals veg 11E

Trondheim ­ Trondheim
Familievennlig rekkehus over to plan beliggende på et attraktivt tun. 2 solrike uteplasser. Oppvarmet garasjeplass m.m.

Totalpris:

Kr 4008006,00

BRA-i:

110 m²
Vestre Moholt-tun 12
3590000,00  0,00

Vestre Moholt-tun 12

Trondheim ­ TRONDHEIM
Romslig 4-roms leilighet med sentral beliggenhet og praktisk planløsning. Parkering. God lagringsplass.

Totalpris:

Kr 3608203,00

BRA-i:

89 m²
Lade alle 156
3450000,00  0,00

Lade alle 156

Trondheim ­ TRONDHEIM
Lys og moderne 2-roms leilighet fra 2024 - perfekt for førstegangskjøperen! Balkong, fjernvarme, intern og ekstern bod.

Totalpris:

Kr 3550240,00

BRA-i:

37 m²
Væressletta 13B
5990000,00  0,00

Væressletta 13B

Trondheim ­ RANHEIM
Lekker leilighet i toppetasjen fra 2023. Moderne og lyst. Parkering i kjeller. Fantastisk utsikt. Heis. Vannbåren varme

Totalpris:

Kr 6008203,00

BRA-i:

82 m²
Byåsveien 166
6490000,00  0,00

Byåsveien 166

Trondheim ­ TRONDHEIM
Rålekker 4-roms hjørneleilighet på Havstad Torg. Moderne standard fra 2023. Solrik balkong. P-plass. Heis. Fjernvarme.

Totalpris:

Kr 6666240,00

BRA-i:

92 m²
Ringvålvegen 360
3790000,00  0,00

Ringvålvegen 360

Trondheim ­ Heimdal
Svært flott 1/4-part over 2 etasjer m/vannbåren gulvvarme. Totalt 197 kvm BRA. Utleid kjellerdel*. Dobbelgarasje.

Totalpris:

Kr 3897740,00

BRA-i:

129 m²
Myrmannsvegen 16
2990000,00  0,00

Myrmannsvegen 16

Trondheim ­ HEIMDAL
Attraktiv og romslig 3(4)-roms leilighet med balkong. Eget vaskerom. 3 boder. Parkering. Barnevennlig. Store friareal.

Totalpris:

Kr 3065257,00

BRA-i:

90 m²
Heggdalsringen 65
6400000,00  0,00

Heggdalsringen 65

Trondheim ­ TRONDHEIM
Lettstelt hjørneleilighet med gjennomgående høy standard. Glimrende solforhold og fantastisk utsikt. P-plass (HC)

Totalpris:

Kr 6573990,00

BRA-i:

83 m²
Se flere boliger
Bolig til salgs

Inspirasjon

Inspirerende interiørbilder fra norske hjem.
sov1
Soverom
kjo1
Kjøkken
stue
Stue

Boligartikler

Nyttig informasjon, råd og inspirasjon for deg som er opptatt av bolig.
vo4
Aktuelt

178 dager uten bud; - Proaktiv solgte boligen min etter første visning

Huset i Vestre Olsvikveg hadde mistet alt av moment etter et halvt år ute i markedet. Da Proaktiv ved Jon Kristian Røsok kom inn i bildet ble...
n_r-16
Aktuelt

Drømmer du om å drive ditt eget meglerkontor?

Proaktiv Eiendomsmegling er alltid på utkikk etter flinke folk som ønsker å skape sin egen suksess. Er du en målrettet og verdiskapende megler, med...
ole4
Aktuelt

Bygget i 2021. Solgt for 2,5 millioner mer i 2025

Boligen i Ole I. Bores veg ble solgt for én million over prisantydning etter å ha ligget ute i markedet i kun en uke.