Beliggenhet
Leiligheten ligger i et populært område på Lade, som har vært i stor utvikling de seneste årene. Lade er
ansett som et svært attraktivt boligområde da det ligger like utenfor sentrumskjernen, hvor det allikevel er
gangavstand til alt man har behov for i det daglige. Fra leiligheten er det umiddelbar nærhet til fjorden,
skole og barnehager, store grøntområder, et upåklagelig utvalg av butikker og servicefunksjoner, flere
treningssentre, et godt kollektivtilbud og byens botaniske hage.
Leiligheten ligger like ved kjøpesenteret Lade Arena som rommer en rekke butikker. Her finnes det en
rekke større varekjeder innenfor matvare-, interiør-, elektro-, og sportssortiment, som blant annet Rema
1000, Elektroimportøren, Kid, Vitus apotek, Elkjøp og ikke minst Biltema. Kjøpesenteret City Lade ligger
også i nærområdet med få minutters gange fra leiligheten. Senteret inneholder et bredt utvalg av butikker,
i tillegg til vinmonopol, frisører, apotek og Coop Obs! Hypermarked, samt en rekke spisesteder. Hangaren
Lade og Sirkus shopping, som også ligger i gangavstand fra leiligheten, byr på ytterligere
shoppingmuligheter.
I nærområdet finnes et godt kollektivtilbud av busser med hyppige avganger til og fra sentrum. Nærmeste
bussholdeplass (Jørgen B. Lysholms veg) ligger ca. 200 meter fra leiligheten, hvor bl.a. buss nr. 13 og 20
passerer med hyppige avganger. Bussen har sin trasé mot Grillstad i østgående retning og mot
Romolslia via sentrum, i motsatt retning. Det er også holdeplass ved Lade Arena, Haakon VII gate 25 hvor
buss nr. 2 passerer og går mot Heimdal via sentrum. Buss nr. 15 går i arbeidstiden fra busstoppet
Haakon VII gate, forbi Østmarka og til bl.a. Sluppen.
Få minutters gange fra leiligheten ligger et stort, flott idrettsanlegg med flere fotballbaner, to
håndballbaner, samt bane for amerikansk fotball, rugby og lacrosse. Det er i nyere tid etablert flere haller
til en rekke ulike idrettsformål som f.eks. tennis, bordtennis og taekwondo ved Ladeanlegget.
Idrettsanlegget er byens største arena for fotballaktivitet, hvor det lokale idrettslaget SK Trygg/Lade holder
til. I nabolaget finnes også flere treningssentre som Fresh Fitness Lade Arena, Impulse treningssenter,
Crossfit MaxPuls samt nyåpnede Speed Treningssenter som har sin adresse i Julianus Holms veg 34. I
tillegg finner man Padelon, Trondheims første padeltennissenter få minutter unna leiligheten.
Se vedlagte nabolagsprofil i prospektet for ytterligere informasjon om nærområdet.
Plussboliger® fra Selvaag Bolig er boliger av høy standard. Du har tilgang til lounge med kaffebar og
ferske aviser, velutstyrt treningsrom, flere tilgjengelige gjesterom, møterom, selskapslokale med
storkjøkken og betjent resepsjon. Her har man også en heltidsansatt vertinne som hjelper med store og
små tjenester - fra skjorterens til hundepass.
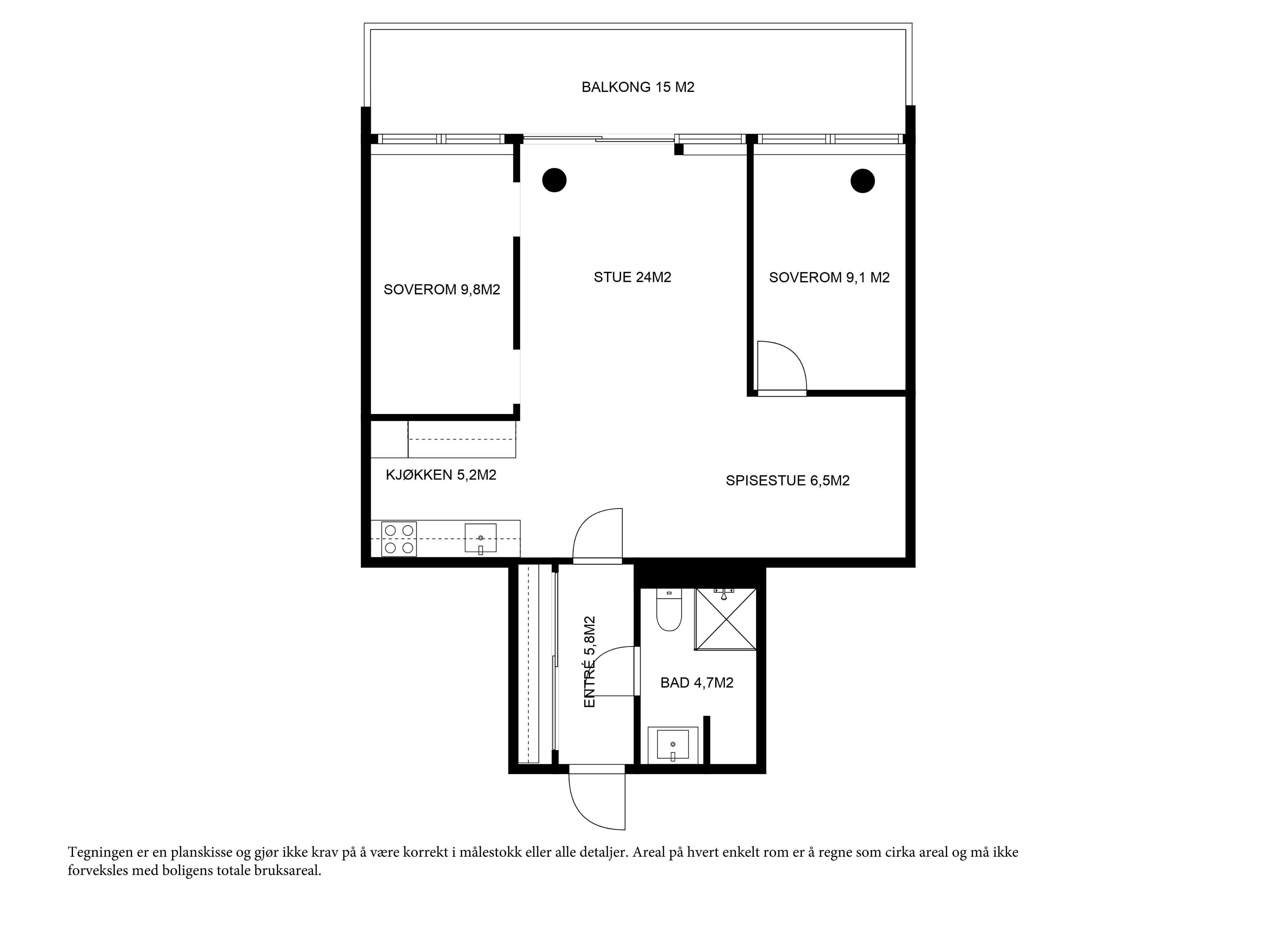
Leilighetene har lys en-stavs eikeparkett, generøs takhøyde og store vindusflater. Kjøkken er fra HTH og
badene er moderne og delikate med varme i gulv. Nye boliger bygges etter tekniske krav som sikrer godt
inneklima og lave energikostnader.
Ringve Pluss er utviklet av Selvaag Bolig, og eies av RELOG (50%) og Selvaag Bolig (50%).
Kontakt megler eller besøk www.selvaagbolig.no/trondheim/ringve-pluss for mer informasjon angående
Plusskonseptet.