4632860_1a
Proaktiv Eiendomsmegling ved Eirik Døsen ønsker deg hjertelig velkommen til en delikat og lys 3-roms toppleilighet, på attraktive Møllenberg. ( 1 av )
4632604_1a
Området sies å være et av de mest populære i Trondheim. Her har du umiddelbar nærhet til alt av byens fasiliteter, samt gang- og sykkelavstand til flere studiesteder som Handelshøyskolen BI, NTNU Gløshaugen m.m. ( 2 av )
4632854_1a
Sameiet har en privat bakgård med felles terrasse og sykkelparkering. Leiligheten disponerer bodplass i kjeller med god lagringsplass. ( 3 av )
4632855_1a
Velkommen inn! Via felles trappeoppgang ankommer du boligens loftetasje. Gangen gir god plass til å sette fra seg yttertøy og sko. ( 4 av )
4632861_1a
Forbi inngangsdøren venter en lekker stue på 21,5 kvm. ( 5 av )
4632856_1a
Leiligheten er av tidløst stiluttrykk som følge av skråtak kombinert med store vindusflater. ( 6 av )
4632859_1a
Stuen lar seg enkelt innrede med en hyggelig sittegruppe. Lyse fargevalg kombinert med mye innlys, sørger for et behagelig inneklima. ( 7 av )
4632878_1a
Den klassiske peisen er en effektiv varmekilde på kalde vinterdager. ( 8 av )
4632858_1a
Det er lave felleskostnader på kr. 1500,- per måned. ( 9 av )
4632857_1a
På den andre siden av rommet har man en krok som man kan innrede etter eget ønske. ( 10 av )
4632864_1a
Kjøkkenet er godt gjennomført og ligger i praktisk tilknytning til stuen. Det er god oppbevaringsplass i skuffer og skap. ( 11 av )
4632862_1a
Det er integrerte hvitevarer som kjøleskap, stekeovn og platetopp samt opplegg for oppvaskmaskin. ( 12 av )
4632863_1a
Kjøkkeninnredningen har en utforming med plass til en trivelig spisegruppe. Vinduer på kjøkken og soverommene vil bli byttet ut til nye. ( 13 av )
4632869_1a
Hovedsoverommet er målt til hele 13,5 kvm og gir god plass til en dobbeltseng med tilhørende nattbord. Det er integrert skyvedørsgarderobe med speilfronter. ( 14 av )
4632870_1a
Rommets størrelse gjør det enkelt å innrede med et skrivebord. ( 15 av )
4632868_1a
Det andre soverommet er målt til 8,5 kvm. Med flere soverom er mulighetene mange, enten du ønsker å etablere et gjesterom eller kontorrom. ( 16 av )
4632871_1a
Som et bonus har begge soverommene et kott for ytterligere lagringsplass. ( 17 av )
4632865_1a
Baderommet holder en moderne standard og er målt til romslige 7 kvm. ( 18 av )
4632867_1a
Rommet består av lyse, delikate fliser, på gulv og vegger. God plass til oppbevaring i underskap. ( 19 av )
4632866_1a
Utstyrt med dusj med innfellbare glassdører, toalett og opplegg for vaskemaskin. ( 20 av )
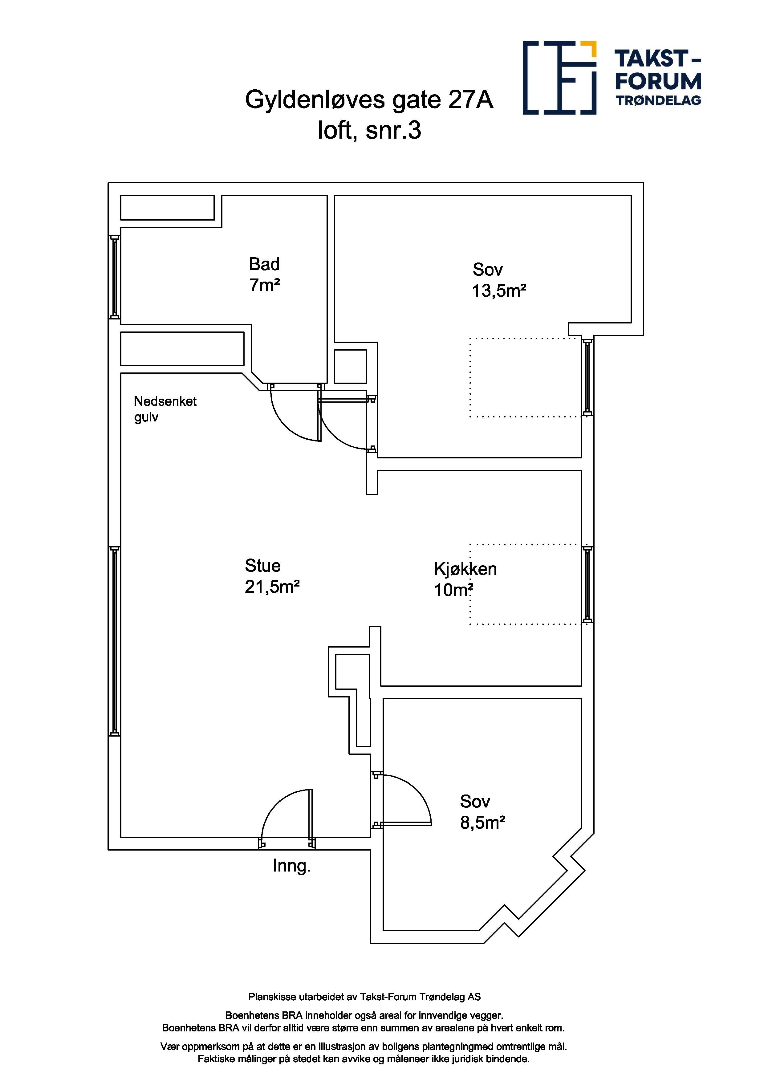
4628749_1a
Planskisse. ( 21 av )
4629315_1a
Det er kort vei ned til Solsiden der det er et stort utvalg av restauranter, samt et rikt uteliv på kvelden. I tillegg til et kjøpesenter som byr på det man måtte trenge i hverdagen. ( 22 av )
4629312_1a
Om man ønsker ferske rundstykker til frokost kan du spasere ned til Rosenborg bakeri på Møllenberg som også holder søndagsåpent. ( 23 av )
4629313_1a
Innen kort avstand har man festningsparken som er et yndet sted for mange om sommeren. Her er det store grøntområder som innbyr til både soling, grilling og ballspill. ( 24 av )
4629314_1a
Leiligheten ligger perfekt til i forhold til flere studiesteder, som blant annet NTNU Gløshaugen. ( 25 av )

Gyldenløves gate 27A

Se alle bilder (0)
4632860_1a
4632604_1a
4632854_1a
4632855_1a
4632861_1a
4632856_1a
4632859_1a
4632878_1a
4632858_1a
4632857_1a
4632864_1a
4632862_1a
4632863_1a
4632869_1a
4632870_1a
4632868_1a
4632871_1a
4632865_1a
4632867_1a
4632866_1a
4628749_1a
4629315_1a
4629312_1a
4629313_1a
4629314_1a

Gyldenløves gate 27A

Prisantydning:
Fra Kr 3850000,00
til Kr 0,00
Totalpris:
Kr 3957500,00
BRA:
65,00 - 0,00
BRA-i:
65 - 0
Soverom:
2 - 0
Boligtype:
Leilighet
Eierform:
Eiet tomt
Byggeår:
1899
Etasje:
3
Tomteareal:
367

Delikat og sentral 3-roms toppleilighet. Lave felleskostnader. Nydelig peis. Nær studiesteder og Solsiden. Flislagt bad.

Ansvarlig megler:
Eirik Døsen

Advokat MNA/Partner

Visning

Det er for tiden ikke satt opp visningstid på denne eiendommen.
Ønsker du å avtale et visningstidspunkt?
Avtal privatvisning her

Gyldenløves gate 27A

image005

Nøkkelinformasjon

plus_G_2025

BELIGGENHET

plus_G
minus_G

BESKRIVELSE AV EIENDOMMEN

plus_G
minus_G

OFFENTLIGE FORHOLD

plus_G
minus_G

PRISANTYDNING INKLUDERT OMKOSTNINGER

plus_G
minus_G

SAMEIET/ØKONOMI

plus_G
minus_G

ØVRIGE KJØPSFORHOLD

plus_G
minus_G

Dokumenter

plus_G_2025

Del boligen

facebook-gold
Twitter-gold

Lurer du på noe om denne boligen?

Ta kontakt under via skjemaet.


Relaterte boliger

Ringvålvegen 10
9500000,00  0,00

Ringvålvegen 10

Trondheim ­ Heimdal
Næringseiendom (374 kvm BRA) m/gode leieinntekter (50.000,-/mnd*). Godt vedlikeholdt bygningsmasse. Rikelig m/p-plasser

Areal (BTA):

374,00
Biskop Sigurds gate 6B
3250000,00  0,00

Biskop Sigurds gate 6B

Trondheim ­ Trondheim
Sentral & tiltalende 2-roms selveier. Tidløst baderom fra 2021 og innholdsrikt kjøkken. Lys og romslig. Nærhet til "alt"

Totalpris:

Kr 3345240,00

BRA-i:

49 m²
Marie Sørdals veg 11E
3690000,00  0,00

Marie Sørdals veg 11E

Trondheim ­ Trondheim
VISNING 16.12: Familierekkehus med 3 soverom. 2 bad/vaskerom med gulvvarme & wc. 2 solrike uteplasser. Oppvarmet garasje

Totalpris:

Kr 3848006,00

BRA-i:

110 m²
Lade alle 156
3450000,00  0,00

Lade alle 156

Trondheim ­ TRONDHEIM
Lys og moderne 2-roms leilighet fra 2024 - perfekt for førstegangskjøperen! Balkong, fjernvarme, intern og ekstern bod.

Totalpris:

Kr 3550240,00

BRA-i:

37 m²
Myrmannsvegen 16
2990000,00  0,00

Myrmannsvegen 16

Trondheim ­ HEIMDAL
Lys og romslig 3(4)-roms leilighet med balkong i et barnevennlig boområde. Eget vaskerom. 3 boder. P-plass. Nær Bymarka.

Totalpris:

Kr 3065257,00

BRA-i:

90 m²
Nardoskrenten 5B
10975000,00  0,00

Nardoskrenten 5B

Trondheim ­ Trondheim
VISNING 17.12: Enebolig fra 2023 med høy standard. Hybelutleie i sokkel. Carport og solrik takterrasse.

Totalpris:

Kr 11270865,00

P-rom:

175,00 m²
Lillian Byes veg 115
3380000,00  0,00

Lillian Byes veg 115

Trondheim ­ TRONDHEIM
VISNING 16.12: Svært familievennlig enderekkehus. Egen romslig takterrasse. Carport. 4 soverom.IN ordning på fellesgjeld

Totalpris:

Kr 5097537,00

BRA-i:

139 m²
Kirkegata 12C
2990000,00  0,00

Kirkegata 12C

Trondheim ­ TRONDHEIM
2-ROMS SELVEIERLEILIGHET FRA 2003. LAVE FELLESKOSTNADER. Rolig og skjermet bakgård. Balkong. Gangavstand til alt

Totalpris:

Kr 3077740,00

BRA-i:

45 m²
Hoeggvegen 45A
5200000,00  0,00

Hoeggvegen 45A

Trondheim ­ TRONDHEIM
Enebolig over 2 plan i attraktiv gate. Solrike uteområder og skjermet hage. Modernisering/oppussing må påregnes.

Totalpris:

Kr 5350250,00

BRA-i:

160 m²
2550000,00  0,00

Anne Martha Kvams veg 9

Trondheim ­ Trondheim
Lys og delikat 2-roms selveierleilighet i 3. etasje. TG0/TG1 på alt. Stor & solrik balkong. Lave fellesutgifter. P-plass

Totalpris:

Kr 2625000,00

BRA-i:

38 m²
Se flere boliger
Bolig til salgs

Inspirasjon

Inspirerende interiørbilder fra norske hjem.
sov1
Soverom
kjo1
Kjøkken
stue
Stue

Boligartikler

Nyttig informasjon, råd og inspirasjon for deg som er opptatt av bolig.
aaletidligute
Aktuelt

Kapret først drømmeboligen, solgte egen bolig få dager senere

Konseptet vårt, Tidlig ute, legger til rette for et stressfritt boligsalg på kundens premisser. Poenget er å være ute i god tid, slik at prosessen...
vo4
Aktuelt

178 dager uten bud; - Proaktiv solgte boligen min etter første visning

Huset i Vestre Olsvikveg hadde mistet alt av moment etter et halvt år ute i markedet. Da Proaktiv ved Jon Kristian Røsok kom inn i bildet ble...
n_r-16
Aktuelt

Drømmer du om å drive ditt eget meglerkontor?

Proaktiv Eiendomsmegling er alltid på utkikk etter flinke folk som ønsker å skape sin egen suksess. Er du en målrettet og verdiskapende megler, med...