finn.no-annonsevideo ( 1 av )
4845408_1a
Romslig og lekker topp- hjørneleilighet på Holmestrand brygge med fantastisk sjøutsikt og parkeringsplass i garasjeanlegg. ( 1 av )
4719973_1a
Fantastisk utsikt. ( 2 av )
4719957_1a
Utenfor stuen har man en innglasset balkong på ca. 9,8 kvm med fantastisk sjøutsikt. ( 3 av )
4719938_1a
Kjøkkenøya er midtpunktet. Maten kan skapes mens du prater og er sosial. Samtidig er kjøkkenøya også en helt fantastisk lagringsplass. Denne øya rommer det meste av det du trenger. ( 4 av )
4719953_1a
Kjøkkenet har en eksklusiv innredning fra anerkjente KEO med mye oppbevaringsplass. ( 5 av )
4719937_1a
Bokhyller med peisinnstas er plassbygget av Helsfyr snekkerverkstad. Tegnet av interiørarkitekt Beate Nymoen. ( De har også bygget TV bord stue og garderobeskap gang/entre ( 6 av )
4719963_1a
Skafferiet/boden har mange plassbygde skuffer og hyller og gir flott lagringsplass. Her et lite glimt inn! Direkte inngang med skyvedør fra kjøkken. ( 7 av )
4633483_1a
Lev godt i maritime omgivelser i Holmestrand sentrum. ( 8 av )
4719972_1a
Balkongen har glassvinduer som kan skyves i begge retninger, så her kan du nyte morgenkaffen eller kose deg med en god bok, uten at vær og vind merkes. ( 9 av )
4719958_1a
Inne er det lekkert, romslig og moderne. ( 10 av )
4719936_1a
Legg merke til den flotte peisinnsatsen som blir et naturlig designelement i rommet. ( 11 av )
4633631_1a
TV bord og hylle under vindu er bygget av Helsfyr Snekkerverksted og tegnet av interiørarkitekt Beate ( 12 av )
4719959_1a
( 13 av )
4719961_1a
Rominndelingen er god med tre forskjellige stuesoner og kjøkken i en åpen, men likevel tilbaketrukket sone. ( 14 av )
4719960_1a
God plass til en avslappende sofagruppe, lenestoler, bokhyller, TV og spisebord. Uten at du trenger å velge bort noe. ( 15 av )
4720435_1a
Her kan du site i godstolen og nyte synet og varmen fra peisen. ( 16 av )
4720436_1a
( 17 av )
4719971_1a
Fantastisk utsikt fra kjøkkenet. ( 18 av )
4719949_1a
Komplett utstyrt med integrerte hvitevarer. Integrert vifte i platetoppen. Meget god lagringsplass i skuffene i kjøkkenøyen. ( 19 av )
4719950_1a
De store vinduene i rommet slipper inn rikelig med lys og skue mot sjøen gjør at kjøkkenet blir et ekstra godt sted når man lager mat. ( 20 av )
4719952_1a
( 21 av )
4719976_1a
Det er montert plissé (plus twist) gardiner på alle vinduer. ( 22 av )
4719975_1a
Morgenkaffen her gir den beste starten på dagen! ( 23 av )
4719977_1a
God plass til spisebord ved kjøkkensonen. ( 24 av )
4719951_1a
( 25 av )
4719955_1a
( 26 av )
4719956_1a
( 27 av )
4719954_1a
( 28 av )
4719967_1a
Hovedsoverom med walk- in closet. Bygget av KEO Horten. Plassbygde hyller, skuffer/kommoder og godt med plass til henge kjoler, skjorter osv. ( 29 av )
4719964_1a
Fra soverommet er det direkte inngang til walk in garderobe, plassbygd av Keo Horten. Flott utnyttet med masse plass. ( 30 av )
4719965_1a
( 31 av )
4719966_1a
( 32 av )
4719946_1a
Soverom 2. ( 33 av )
4719945_1a
( 34 av )
4719947_1a
( 35 av )
4633641_1a
Delikat bad med varme i gulvet, regnfallsdusj og opplegg for vaskemaskin. ( 36 av )
4633642_1a
Bad 2 med servant og toalett. Klargjort for dusjnisje i hjørnet (opplegg for armatur og sluk). ( 37 av )
4719962_1a
Det er plassbygd garderobeskap med dobbeltheng og skohyller - god plass til familiens ytterbekledning. ( 38 av )
4719969_1a
Entreen gir et solid førsteinntrykk og har flislagt parti med underliggende varme kombinert med parkett, gråmalte veggoverflater og downlightsbelysning. ( 39 av )
4720437_1a
( 40 av )
4643059_1a
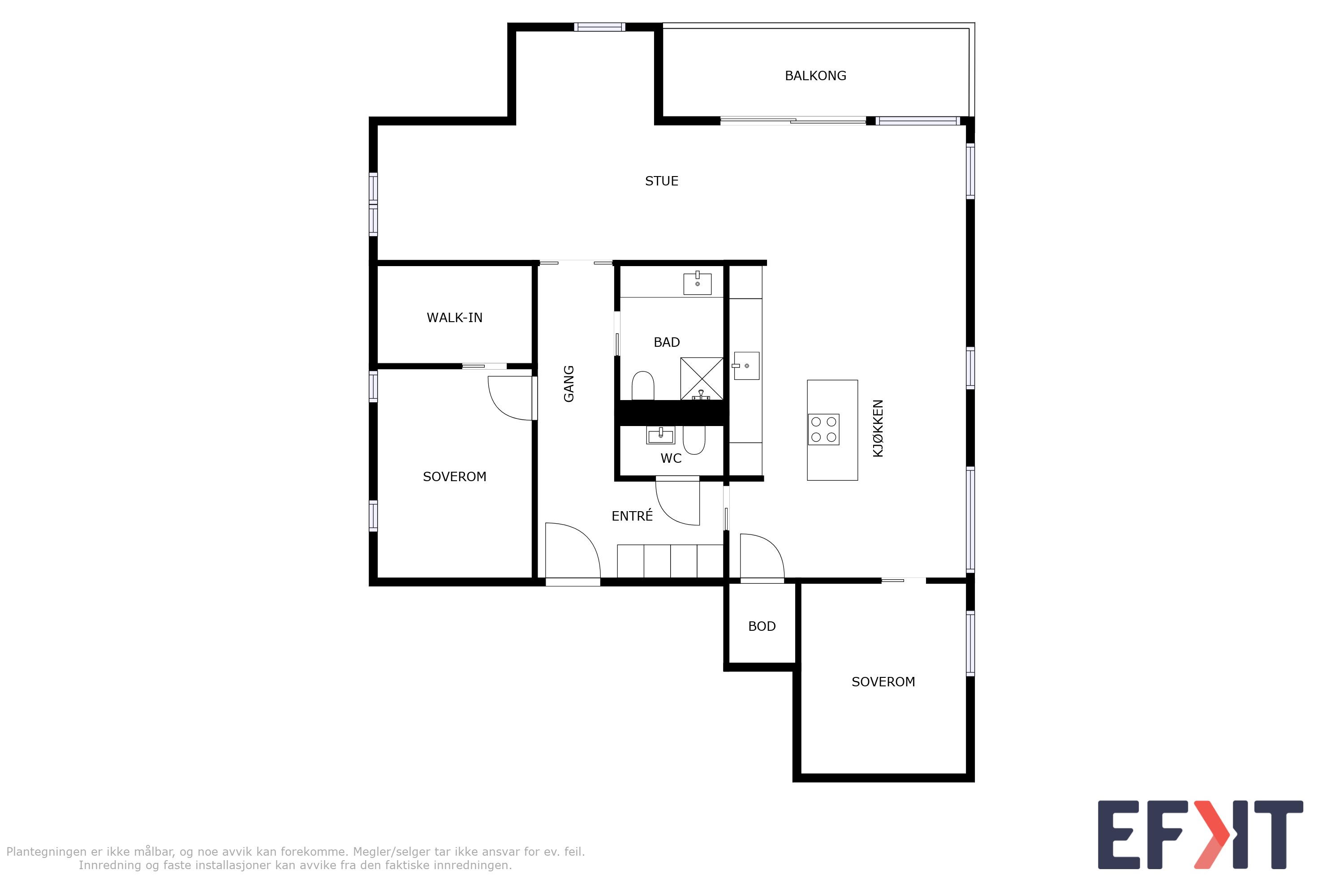
Plantegning. ( 41 av )
4719935_1a
Meget pent opparbeidet fellesareal i borettslaget med grøntområder, lekeplasser, hellebelagte internveier og flere sittegrupper for et sosialt miljø. ( 42 av )
4719979_1a
Egen lun og flott takparsell på 19,3 kvm. i 7. etasje med fantastisk utsikt. ( 43 av )
4719980_1a
Et perfekt sted å nyte late sommerdager eller invitere inn til større lag med familie og venner. ( 44 av )
4719981_1a
( 45 av )
4635092_1a
Leiligheten ligger i byggets toppetasje med takparsell i 7. etasje. ( 46 av )
4719985_1a
Bygget sto ferdig i 2021 og det er fremdeles gjenværende garantitid fra utbygger (5 års garanti). ( 47 av )
4719982_1a
( 48 av )
4719986_1a
Det er godt utstyrte lekeplasser til glede for både barn og barnebarn. ( 49 av )
4719987_1a
( 50 av )
4719988_1a
Det er trappefri adkomst via heis opp til leiligheten som ligger i 6. etasje. ( 51 av )
4642220_1a
( 52 av )
4642209_1a
Holmestrand togstasjon er en av Norges flotteste togstasjoner. ( 53 av )
4642213_1a
Båthavnen i Holmestrand er et flott anlegg med mye båttrafikk på sommeren. ( 54 av )
4642211_1a
( 55 av )
4719989_1a
( 56 av )
4642214_1a
Havnepromenaden er et flott område i Holmestrand sentrum både sommer og vinter. ( 57 av )
4642216_1a
Holmestrand Bibliotek. ( 58 av )
4642215_1a
Botnemarka har flott turterreng og topp skiløyper på vinteren. 10 minutter kjøretur fra leiligheten. ( 59 av )
4719932_1a
( 60 av )
4719934_1a
( 61 av )
4719931_1a
( 62 av )

Langgaten 25A

Se alle bilder (0)
4845408_1a
4719973_1a
4719957_1a
4719938_1a
4719953_1a
4719937_1a
4719963_1a
4633483_1a
4719972_1a
4719958_1a
4719936_1a
4633631_1a
4719959_1a
4719961_1a
4719960_1a
4720435_1a
4720436_1a
4719971_1a
4719949_1a
4719950_1a
4719952_1a
4719976_1a
4719975_1a
4719977_1a
4719951_1a
4719955_1a
4719956_1a
4719954_1a
4719967_1a
4719964_1a
4719965_1a
4719966_1a
4719946_1a
4719945_1a
4719947_1a
4633641_1a
4633642_1a
4719962_1a
4719969_1a
4720437_1a
4643059_1a
4719935_1a
4719979_1a
4719980_1a
4719981_1a
4635092_1a
4719985_1a
4719982_1a
4719986_1a
4719987_1a
4719988_1a
4642220_1a
4642209_1a
4642213_1a
4642211_1a
4719989_1a
4642214_1a
4642216_1a
4642215_1a
4719932_1a
4719934_1a
4719931_1a

Langgaten 25A

Prisantydning:
Fra Kr 7600000,00
til Kr 0,00
Totalpris:
Kr 7611250,00
BRA:
129,00 - 0,00
BRA-i:
113 - 0
Soverom:
2 - 0
Boligtype:
Leilighet
Eierform:
Fellestomt
Byggeår:
2021
Etasje:
6
Tomteareal:
3498

Lekker, påkostet toppleilighet med praktfull sjøutsikt | Solrik takterrasse, balkong, heis, garasje | 0,-i fellesgjeld!

Ansvarlig megler:
Stein Erik Lie

Eiendomsmegler MNEF

Visning

05.11.2025 17:30 - 18:15

Legg visning til i kalender 05.11.2025 17:30 05.11.2025 18:15 Central European Time Visning av Langgaten 25A Boligvisning av Langgaten 25A Langgaten 25A

Passer ikke visningstidspunktene?

Visningspåmelding
Avtal privatvisning her

Langgaten 25A

image005

Nøkkelinformasjon

plus_G_2025

BELIGGENHET

plus_G
minus_G

BESKRIVELSE AV EIENDOMMEN

plus_G
minus_G

BORETTSLAGET/ØKONOMI

plus_G
minus_G

OFFENTLIGE FORHOLD

plus_G
minus_G

PRISANTYDNING INKLUDERT OMKOSTNINGER

plus_G
minus_G

ØVRIGE KJØPSFORHOLD

plus_G
minus_G

Dokumenter

plus_G_2025

Del boligen

facebook-gold
Twitter-gold

Lurer du på noe om denne boligen?

Ta kontakt under via skjemaet.


Relaterte boliger

Kaiveien 7
3300000,00  0,00

Kaiveien 7

Holmestrand ­ SANDE I VESTFOLD
Innbydende 2-roms endeleilighet rett ved fjorden. 25 m² vestvendt terrasse, garasje & 2 boder. Varmtvann & fyring inkl.

Totalpris:

Kr 3396750,00

BRA-i:

51 m²
Tunnelveien
2490000,00  0,00

Tunnelveien

Holmestrand ­ Holmestrand
Byggeklar tomt på 711 kvm med utsikt mot fjorden. Attraktivt boligområde med 500 meter til Fjellheisen. Dobbelgarasje.

Totalpris:

Kr 2553600,00

P-rom:

0,00 m²
Kaiveien 4
4990000,00  0,00

Kaiveien 4

Holmestrand ­ SANDE I VESTFOLD
Flott maritim hjørneleilighet på 88 kvm ved fjorden. Terrasse på 32 kvm, garasje og trappefri adkomst. Topp standard.

Totalpris:

Kr 5129000,00

BRA-i:

88 m²
Gartneriveien 32
4290000,00  0,00

Gartneriveien 32

Holmestrand ­ HOLMESTRAND
Nyere og pen 5-roms endeleilighet over to plan. Solrike terrasser m/åpent utsyn + garasjeplass. Fine fellesområder.

Totalpris:

Kr 4410500,00

BRA-i:

112 m²
Svalestien 1B
3700000,00  0,00

Svalestien 1B

Holmestrand ­ HOLMESTRAND
Familietilpasset tomannsbolig med usjenert terrasse, hage og garasje. 3 soverom og 2 bad. Rolig beliggenhet i blindvei.

Totalpris:

Kr 3805750,00

BRA-i:

101 m²
Gabbroveien 21
1650000,00  0,00

Gabbroveien 21

Holmestrand ­ Sande i vestfold
Hyggelig rekkehusleilighet i 1. etasje med 68 m² terrasse, integrert garasje og utebod. Oppussingsbehov. Nært marka.

Totalpris:

Kr 2353635,00

BRA-i:

63 m²
Markveien 5
3550000,00  0,00

Markveien 5

Holmestrand ­ HOLMESTRAND
Flott rekkehus med solrik uteplass, 4 soverom, 2 bad (1 fra 2024), 2 stuer, garasje, elbil lader.

Totalpris:

Kr 4002246,00

BRA-i:

114 m²
Røllesveien 21
4790000,00  0,00

Røllesveien 21

Holmestrand ­ Sande i vestfold
Nyere og lekkert enderekkehus m/ rolig beliggenhet og fin utsikt - Carport med lader & p-plass - 4 sov, 2 bad & vaskerom

Totalpris:

Kr 4930000,00

BRA-i:

155 m²
Langgaten 25A
2450000,00  0,00

Langgaten 25A

Holmestrand ­ Holmestrand
Høyt & frittliggende i 5.etg - Lys og lettstelt 4-roms fra 2021 med fjordutsikt, sydvendt balkong og takterrasse. Heis.

Totalpris:

Kr 5909850,00

BRA-i:

94 m²
Granliveien 39
3390000,00  0,00

Granliveien 39

Holmestrand ­ HOLMESTRAND
Stor 4-roms terrasseleilighet med fantastisk utsikt mot Oslofjorden. Terrasse på over 70m² og fast garasjeplass

Totalpris:

Kr 3488000,00

BRA-i:

126 m²
Se flere boliger
Bolig til salgs

Inspirasjon

Inspirerende interiørbilder fra norske hjem.
sov1
Soverom
kjo1
Kjøkken
stue
Stue

Boligartikler

Nyttig informasjon, råd og inspirasjon for deg som er opptatt av bolig.
vo4
Aktuelt

178 dager uten bud; - Proaktiv solgte boligen min etter første visning

Huset i Vestre Olsvikveg hadde mistet alt av moment etter et halvt år ute i markedet. Da Proaktiv ved Jon Kristian Røsok kom inn i bildet ble...
n_r-16
Aktuelt

Drømmer du om å drive ditt eget meglerkontor?

Proaktiv Eiendomsmegling er alltid på utkikk etter flinke folk som ønsker å skape sin egen suksess. Er du en målrettet og verdiskapende megler, med...
ole4
Aktuelt

Bygget i 2021. Solgt for 2,5 millioner mer i 2025

Boligen i Ole I. Bores veg ble solgt for én million over prisantydning etter å ha ligget ute i markedet i kun en uke.