Standard
En bolig med flere muligheter.
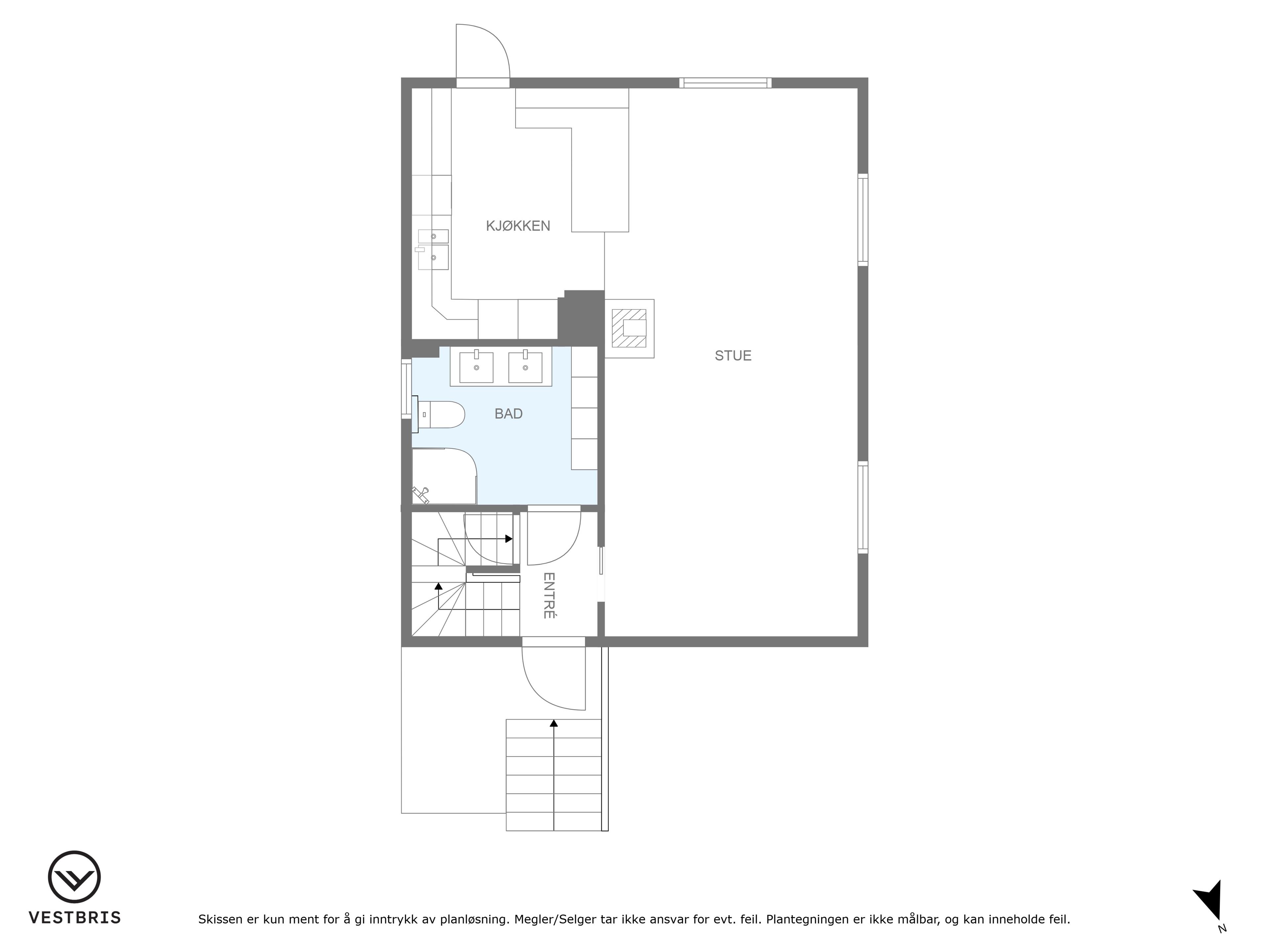
Første etasje med åpen stue og kjøkken løsning. Her er det kjøkken med hvite fronter. Det er god skap-
og benkeplass. Det er satt inn dør som tar deg ut til hagen. Her er det muligheter for å lage til en terrasse
om det skulle friste.
I gangen finner du badet som har belegg på gulv og baderomsplater på vegger. Her er det dusj, servant
og wc. Det er god skapplass på badet.
I andre etasje befinner soveromsavdelingen seg. Her er det tre romslige soverom. Det er god
lagrinsplass i kneloft og det er skap i gangen.
I kjelleren finnes det muligheter for de som ønsker enda mer.
Her har du et stort uinnredet rom som kan pusses opp eller som kan brukes som en god lagrinsplass.
Vaskerom med god skapplass. Det er opplegg for vaskemaskin. Her er det utgang ut til oppkjørselen.
Det er også et eldre toalettrom med vask og servant i trappegangen.
Informasjon tilstandsrapport:
TG 3:
Pipe og ildsted
Murt teglsteinspipe. Pipeløp er ikke kontrollert av takstmann. Peisovn i
stue (fra 2011).
Vurdering av avvik:
• Det er avvik:
Det er for liten avstand mellom treverk og pipe på bad.
Konsekvens/tiltak
• Tiltak:
Pipe må fores.
Kostnadsestimat: 50 000 - 100 000
Forstøtningsmurer
Forstøtningsmur av naturstein bak huset.
Vurdering av avvik:
• Konstruksjonene har omfattende skjevheter.
Konsekvens/tiltak
• Påviste skader må utbedres.
Kostnadsestimat: 50 000 - 100 000
TG 2:
Nedløp og beslag
Renner og beslag av stål/aluminum. Fornyet i forbindelse med legging av ny taktekking.
Vurdering av avvik:
• Det mangler snøfangere på hele eller deler av taket, men det var ikke krav om dette på
byggemeldingstidspunktet.
Konsekvens/tiltak
• Det er ikke behov for utbedringstiltak i nær fremtid.
Veggkonstruksjon:
Bindingsverk med utvendig trekledning. Isolert med glassvatt. Betongvegger (betongstein) i underetasje.
Sørvegg kledd på nytt i 2020. Ny vindtetting og isolasjon.
Vurdering av avvik:
• Det er ingen eller liten lufting i nedre kant av kledning mot grunnmur. Det ble registrert noe blærer i
maling på ytterkledning.
Konsekvens/tiltak
• Det bør foretas tiltak for å bedre lufting av kledningen.
Kostnadsestimat: Under 10 000
Vinduer
Vinduer med isolerglass.
Vinduer fra 2022 på sørvegg. Ellers vinduer fra rundt 1980.
Vurdering av avvik:
• Det er avvik:
For vinduer fra rundt 1980 er en stor del av forventet levetid gått.
Konsekvens/tiltak
• Tiltak:
Ingen tiltak ansees som påkrevde.
Kostnadsestimat: Ingen umiddelbar kostnad.
Utvendige trapper
Betongtrapp til hovedinngangsdør.
Vurdering av avvik:
• Åpninger i rekkverk er ikke i henhold til krav i dagens forskrifter.
• Betongtrapp har mindre sprekker/skader
Konsekvens/tiltak
• Det er ikke krav om utbedring av åpninger i rekkverk til dagens
forskriftskrav.
• Det er ikke behov for utbedringstiltak.
Kostnadsestimat: Ingen umiddelbar kostnad
Radon
Det er ikke foretatt radonmålinger og bygget er heller ikke utført med
radonsperre.
Vurdering av avvik:
• Det er ikke foretatt radonmålinger, og bygget er heller ikke utført med
radonsperre.
Konsekvens/tiltak
• Det bør gjennomføres radonmålinger.
Kostnadsestimat: Under 10 000
Rom Under Terreng
Punktet må sees i sammenheng med 'Drenering' Bakre del av underetasje ligger under terreng. Gulvet er
av betong. Veggene har overflater av betong/mur. Hulltaking er ikke foretatt. Rommet har en konstruksjon
som gjør hulltaking unødvendig.
Vurdering av avvik:
• Det er avvik:
Ved bruk av fuktindikator ble det registrert fukt i gulv og vegg i bakkant.
Noe saltutslag ble og registrert.
Konsekvens/tiltak
• Tiltak:
Ingen tiltak ansees som påkrevde, så lenge etasjen brukes slik som idag.
Innvendige trapper
Trapp til underetasje: Malt furutrapp med belegg i inntrinn. Trapp til 2. etasje: Malt furutrapp med trinn i
furu.
Vurdering av avvik:
• Åpninger i rekkverk er større enn dagens forskriftskrav til rekkverk i trapper.
• Det mangler håndløper på vegg i trappeløpet.
Konsekvens/tiltak
• Det er ikke krav om utbedring av åpninger opp til dagens krav.
• Åpninger er såpass store at det ut ifra sikkerhetsmessige forhold anbefales å lage mindre åpninger.
• Håndløper bør monteres, men det var ikke krav på byggetidspunktet.
Kostnadsestimat: Under 10 000
1. ETASJE > BAD
Sluk, membran og tettesjikt
Det er plastsluk og synlig vinylbelegg som tettesjikt. Gulvet er tilnærmet flatt med lokalt fall til sluk.
Vurdering av avvik:
• Sluk har begrenset mulighet for inspeksjon og rengjøring. Sluk ligger under dusjkabinett.
Konsekvens/tiltak
• Andre tiltak:
Sluk må rengjøres jevnlig.
Kostnadsestimat: Ingen umiddelbar kostnad
1. ETASJE > BAD
Ventilasjon
Det er elektrisk styrt vifte.
Vurdering av avvik:
• Våtrommet mangler tilluftsventilering, f.eks. spalte/ventil ved dør.
Konsekvens/tiltak
• Det bør etableres tilfredsstillende tilluft til våtrom f.eks. luftespalte ved
dør e.l.
Kostnadsestimat: Under 10 000
UNDERETASJE > VASKEKJELLER
Sluk, membran og tettesjikt
Det er sluk av støpejern på gulvet.
Vurdering av avvik:
• Mer enn halvparten av forventet brukstid er passert på slukløsningen.
Konsekvens/tiltak
• Overvåk tilstanden jevnlig. For å få tilstandsgrad 0 eller 1 må slukløsningen skiftes ut og sannsynligvis
må også membransjiktet skiftes/utbedres. Det er imidlertid vanskelig å si noe om tidspunktet for når dette
er nødvendig.
Kostnadsestimat: Ingen umiddelbar kostnad
UNDERETASJE > VASKEKJELLER
Ventilasjon
Det er naturlig ventilering.
Vurdering av avvik:
UNDERETASJE > TOALETTROM
Overflater og konstruksjon
Toalettrom med kun klosett montert.
Vurdering av avvik:
• Toalettrom har kun naturlig avtrekk fra rommet, NS 3600 krever
mekanisk avtrekk for å kunne gi TG 0/1.
Konsekvens/tiltak
• Mekanisk avtrekk bør etableres på toalettrom.
Kostnadsestimat: Under 10 000
Vannledninger
Rør-i-rør opplegg til kjøkken og bad. Ellers kobberrør i grunnen.
Vurdering av avvik:
• Mer enn halvparten av forventet brukstid er passert på innvendige
vannledninger.
Gjelder vannledninger fra byggeår.
Konsekvens/tiltak
• Det er ikke behov for utbedringstiltak siden anlegget fungerer i dag, men ut ifra alder kan skader
plutselig oppstå på eldre anlegg.
Kostnadsestimat: Ingen umiddelbar kostnad
Avløpsrør
Det er avløpsrør av plast over gulv i underetasje. Under gulv er det sannsynligvis avløpsrør av støpejern.
Vurdering av avvik:
• Mer enn halvparten av forventet brukstid er passert på innvendige avløpsledninger.
Gjelder avløpsrør under gulvet i underetasjen.
Konsekvens/tiltak
• Det er ikke behov for utbedringstiltak siden anlegget fungerer i dag, men ut ifra alder kan skader
plutselig oppstå på eldre anlegg.
Kostnadsestimat: Ingen umiddelbar kostnad
Varmtvannstank
Varmtvannstanken er på ca. 200 liter. Plassert i bod.
Vurdering av avvik:
• Det er ikke påvist tilfredsstillende avrenning eller annen kompenserende løsning fra varmtvannstank.
Berederen er plassert i en bod uten sluk.
Konsekvens/tiltak
• Andre tiltak:
Det ansees ikke som påkrevd med tiltak.
Kostnadsestimat: Ingen umiddelbar kostnad
Drenering
Byggegrunnen består av drenerende masser.
Det er sannsynligvis ikke lagt dreneringsrør rundt grunnmuren.
Punktet må sees i sammenheng 'Rom under terreng'
Vurdering av avvik:
• Det mangler, eller på grunn av alder er det sannsynlig at det mangler, utvendig fuktsikring av
grunnmuren ved kjeller/underetasje.
• Mer enn halvparten av forventet levetid på drenering er overskredet.
• Det er ut ifra observasjoner påvist indikasjoner på at drenering/tettesjikt har begrenset effekt.
Konsekvens/tiltak
• Overvåk tilstanden jevnlig. For å få tilstandsgrad 0 eller 1 må dreneringen skiftes ut, men tidspunktet for
når dette er nødvendig er vanskelig å si noe om. Bruken av underetg/kjeller vil og være avgjørende.
Kostnadsestimat: Ingen umiddelbar kostnad
Grunnmur og fundamenter
Grunnmur murt av Betongstein som er utvendig og innvendig pusset.
Vurdering av avvik:
• Det er påvist andre avvik:
Noe avskalling på grunnmurspuss ble registrert.
Konsekvens/tiltak
• Det må foretas tiltak for å lukke avviket. Skader i puss bør utbedres.
Kostnadsestimat: Under 10 000
Terrengforhold
Tomta er bratt skrånende.
Vurdering av avvik:
• Det er avvik:
Det er kort avstand mellom grunnmur og forstøtningsmur.
Det må påpasses at det ikke danner seg is som kan føre til at det står
vann inn mot grunnmuren.
Konsekvens/tiltak
• Tiltak:
Ingen tiltak ansees som påkrevde.
Kostnadsestimat: Ingen umiddelbar kostnad
Utvendige vann- og avløpsledninger
Utvendige avløpsrør er av ukjent type fra 1956. Tilknyttet offentlig avløp via private stikkledninger.
Utvendige vannledninger er av ukjent type og fra 1956. Tilknyttet privat vannforsyning via private
stikkledninger.
Vurdering av avvik:
• Mer enn halvparten av forventet brukstid er passert på utvendige avløpsledninger.
• Mer enn halvparten av forventet brukstid er passert på utvendige vannledninger.
Konsekvens/tiltak
• Det er ikke behov for utbedringstiltak siden anlegget fungerer i dag, men ut ifra alder kan skader
plutselig oppstå på eldre anlegg.
Kostnadsestimat: Ingen umiddelbar kostnad.