Standard
Velkommen til en innholdsrik fritidbolig, en hytte som bør oppleves. En fritidsbolig med åpen og fin
beliggenhet, god romfølelse med høy himling i stue. Koselig og funksjonell hytte som i alle år har blitt
brukt i alle årstider. Med innlagt strøm kan en holde 8 grader inne når den ikke er i bruk og med
varmekabler i vannrør har en også vann om vinteren.
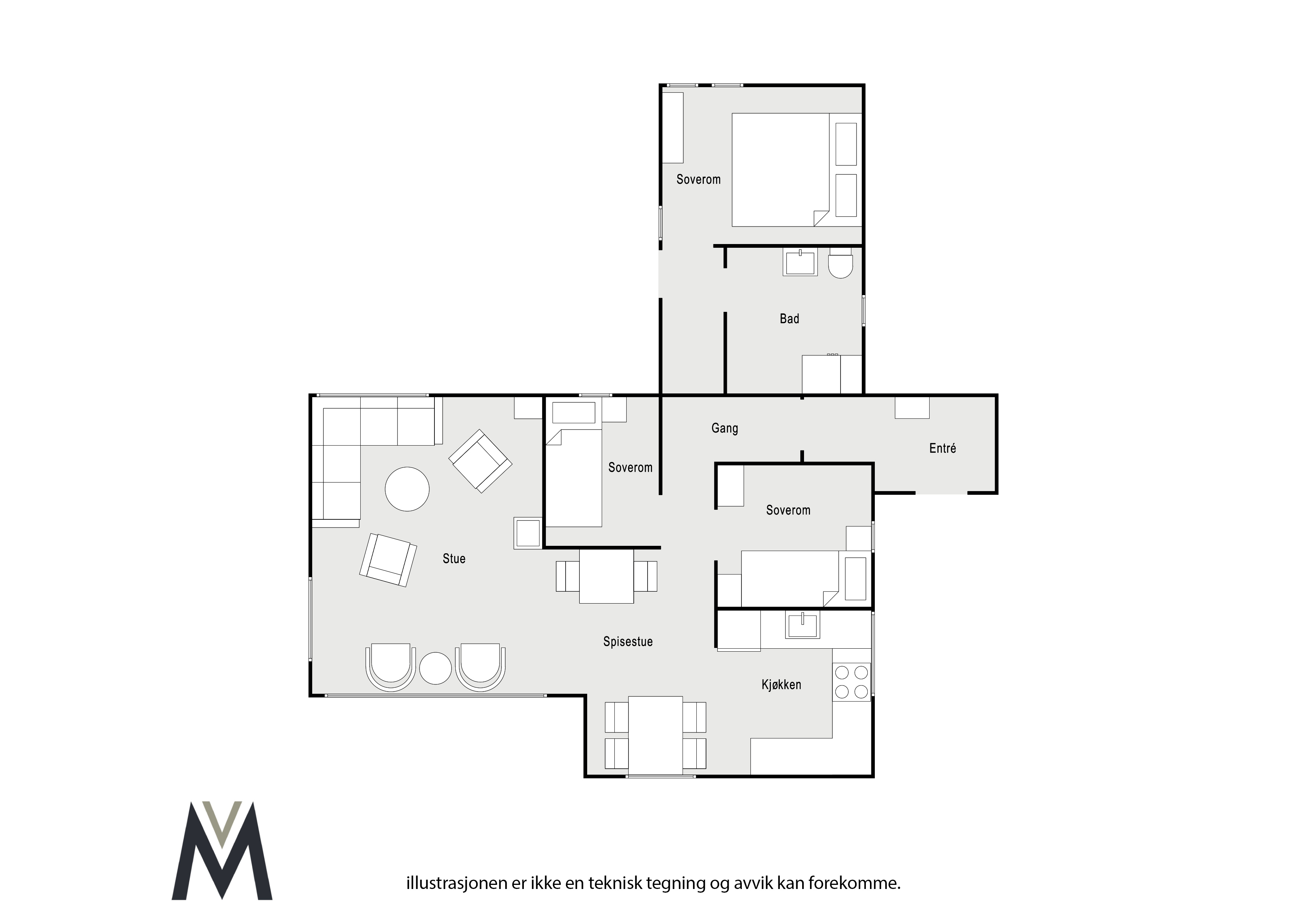
Her har en god plass til både gjester og familie med 3 soverom og hems.
Romslig og åpen løsning med stue og kjøkken, hvor det er god plass til både sittegruppe og
spisegruppe. Her kan en nyte noen bedre måltid.
Baderommet er nytt fra 2014 med våtromsplater på vegg, baderomsbelegg på gulv og varmepakbler.
Detter er utført av Bu Bygg. Vann inn i hytten er frakoblet og plombert. Selger holder på med søknad om
renseanlegg.
Elinstallasjon ble gjort i 2014, før var det solcelle anlegg. Dette er gjort av Vebenstad As.
Det er blitt skiftet bordkledning, etterisolert og skiftet vinduer i 2014, samtidig som en utvidet hytten.
Fritidsboligen er blitt utvidet og fått et tilbygg. Dette er godkjent og ferdigattest ligger ved i salgsoppgaven.
Det er felles borehull til vannforsyning sammen med 6 andre. Utgiftene (strøm) deles likt på alle. Vann inn
i hytten er frakoblet og plombert. Selger holder på med søknad om renseanlegg.
Ute er det trivelig terrasse, hvor en virkelig kan nyte de fine dagene, både om det er høst, vår, sommer
eller vinter.
Selger har fått utarbeidet en tilstandsrapport for eiendommen. Rapporten er en teknisk gjennomgang av
boligen og angir eventuelle byggetekniske avvik. I rapporten fremkommer det forhold som takstmannen
mener kjøper må være særskilt oppmerksom på, herunder:
KONSTRUKSJONER SOM IKKE ER UNDERSØKT:
Utvendig > Takkonstruksjon/Loft:
Takkonstruksjon i trevirke, delvis innredet loft/konstruksjon og kaldtloft.
Kommentar: Vurdering av bygningsdelen er basert på det som er synlig og tilgjengelig på
befaringsdagen. Viser også til beskrivelse under punktet "taktekking.
TGIU: Takkonstruksjonen er lukket på begge sider (bygget inn) og er ikke tilgjengelig for
kontroll/inspeksjon. Tilstandsgrad er derfor ikke satt.
Utvendig > Balkonger, terrasser og rom under balkonger:
Terrasseplatting ved inngangsparti, oppmålt til ca 9 m².
Terrasseplatting, oppmålt til ca 19 m². - Delvis overbygget, ca 6 m².
TGIU: På befaringsdagen var det ikke mulig å foreta undersøkelser og vurderinger på grunn av
snøforholdene. Dette bør gjennomføres når forholdene tillater det.
TG2: AVVIK SOM KAN KREVE TILTAK
- Utvendig > Taktekking:
Yttertak er tekket med stål/aluminiumsplater.
Levetid: Normal levetid for stål/aluminiumsplater er 30 til 60 år.
Inspisert/vurdert fra: Vurderingen av taktekkingen er basert på det som er synlig innvendig og utvendig fra
bakkenivå. Befaring på taket må være sikkerhetsmessig forsvarlig for å kunne gjennomføres. Viser også
til beskrivelse under punktet "takkonstruksjon/loft".
Merk: Det er viktig å påpeke at taktekkingen var dekket av snø, så det var ikke mulig å kontrollere
taktekkingen fra utsiden. Tilstandsgrad er basert på alder, dersom alderen er kjent. Det anbefales
ytterligere undersøkelser av taktekkingen når forholdene ligger til rette for det.
Vurdering av avvik:
• Det er avvik: Halvparten av den forventede levetiden er brukt opp (gjelder opprinnelig del). Alder gjør det
nødvendig å foreta jevnlig kontroll, ev. utskiftning av alderssvekkende deler for å unngå lekkasjer. Ved
omlegging/utskifting av taktekking bør man også vurdere utskifting av tilhørende beslag, takrenner,
vannbord og vindskier. Det er mangelfull fagmessig utførelse, gjelder avslutning mot takrenner.
Dette bør utbedres. Beslag/murpuss på skorstein har høy slitasje. Det anbefales å montere heldekkende
beslag. Det er observert/indikasjoner på råteskade i vindskeiebord. Det må regnes med
vedlikehold/utskiftinger.
Konsekvens/tiltak
• Tiltak: Viser til vurderinger og eventuelle anbefalte tiltak som er nevnt over.
- Utvendig > Nedløp og beslag:
Det er takrenne og nedløp av alu/stål.
Kommentar: Ved oppholdsvær er det naturligvis ikke mulig å kontrollere evt. lekkasje. Generelt er
fallforhold i takrenne vanskelig å kontrollere fra bakkenivå. Videre drenering av takvann vurderes under
punktet "drenering". Det må påregnes normalt vedlikehold av takrenner/nedløp. Siden yttertaket var dekket
med snø, var det ikke mulig å kontrollere utstyr på tak.
Vurdering av avvik:
• Det er avvik: Det er mangelfull fagmessig utførelse, gjelder beslagsløsninnger. Dette bør utbedres. Det
er ikke montert snøfangere, men det var heller ikke krav til det når boligen ble bygget. Tilstandsgrad 2
settes på bakgrunn av sikkerhet i tråd
med NS 3600. Det vil være opp til ny eier om de ønsker å ettermontere snøfangere, eventuelt kan dette
monteres når taktekkingen skal skiftes.
Konsekvens/tiltak
• Tiltak: Viser til vurderinger og eventuelle anbefalte tiltak som er nevnt over.
- Utvendig > Veggkonstruksjon:
Yttervegger er oppført i trekonstruksjon. Utvendig kledd med bordkledning.
Kommentar: Vurdert fra bakkeplan, med stikkprøver på tilfeldig valgte områder. På eldre boliger bør det
påregnes loddavvik utover dagens krav.
Vurdering av avvik:
• Det er avvik:
Den utvendige fasaden har fått slitasje etter værpåkjenning, med behov for vedlikehold for å unngå fukt og
råteskader.
Det er lite eller ingen lufting i nedre kant av kledningen, noe som var vanlig tidligere, men som øker
risikoen for fukt- og råteskader i
konstruksjonen. Derfor er det viktig å jevnlig utføre vedlikehold. Ved utskifting av kledning anbefales det å
etablere eller utbedre luftespalte mellom kledningen og ytterveggen. Det er heller ikke observert
musebånd, dette anbefales å montere for å
redusere risikoen for at mus kan komme inn i konstruksjonen.
Konsekvens/tiltak
• Tiltak:
Viser til vurderinger og eventuelle anbefalte tiltak som er nevnt over.
- Utvendig > Vinduer/ytterdører.
Vinduer med isolerglass og ytterdører i trevirke.
Kommentar: Det ble utført en tilfeldig funksjonstest av enkelte vinduer og dører. Punktert vindu kan tidvis
være vanskelig å avdekke grunnet vær og lys. Justering/normalt vedlikehold vurderes ikke som et
vesentlig avvik.
Vurdering av avvik:
• Det er avvik: På grunn av tilstand og alder, bør det regnes med vedlikehold og utskifting av eldre vinduer
og dører. Alder på glassruter medfører en risiko for at glassruter kan punktere i tiden fremover. Det er
fuktmerker/svertesopp i karm/foring på innsiden, sannsynligvis som følge av høy fuktighet i rommet eller
utilstrekkelig ventilasjon i karmen eller på rommet. Det bør hensyntas bedre ventilering.
Konsekvens/tiltak
• Tiltak:
Viser til vurderinger og eventuelle anbefalte tiltak som er nevnt over.
- Våtrom > 1. Etasje > Bad > Overflater vegger og himling
Viser til "generell" for beskrivelse av overflater.
Vurdering av avvik:
• Det er avvik:
Mangelfull fagmessig utførelse, gjelder manglende/mangelfull sokkellist og/eller vanntett silikonfuge i
underkant av baderomsplater.
Konsekvens/tiltak
• Tiltak:
Viser til vurderinger og eventuelle anbefalte tiltak som er nevnt over.
- Våtrom > 1. Etasje > Bad > Overflater Gulv
Viser til "generell" for beskrivelse av overflater. Fallforhold: Det er utført en stikkprøve for å kontrollere
fallforholdene, ujevnheter
kan ikke utelukkes. Følgende fallforhold er registrert:
Ca 18 mm fall 80 cm ut fra sluk. (Krav = 16 mm)
Ca 20 mm fall på gulv fra dørterskel til topp slukrist. (krav = 25 mm)
Vurdering av avvik:
• Det er avvik:
Det er under 25 mm høydeforskjell mellom sluk og gulv ved dør. Dette øker risikoen for skader ved
lekkasje eller mye vannsøl, og bruken av rommet bør ta hensyn til dette. Det vil ikke være økonomisk
forsvarlig å utbedre forholdene.
Konsekvens/tiltak
• Tiltak:
Viser til vurderinger og eventuelle anbefalte tiltak som er nevnt over.
- Våtrom > 1. Etasje > Bad > Sluk, membran og tettesjikt
Sluk av plast.
Vurdering av avvik:
• Det er avvik: Mangelfull utførelse/tetting ved rørgjennomføringer på rommet. Kan enkelt utbedres ved å
fuge/tette med egnet masse rundt rørgjennomføringen.
Konsekvens/tiltak
• Tiltak:
Viser til vurderinger og eventuelle anbefalte tiltak som er nevnt over.
- Våtrom > 1. Etasje > Bad > Sanitærutstyr og innredning
Viser til "generell" for beskrivelse av sanitærutstyr.
Levetid: Normal levetid for sanitærinstallasjoner er avhengig av flere faktorer, blant annet kvalitet,
vedlikehold og bruk. Generelt kan man forvente at sanitærinstallasjoner har en levetid på 10 til 25 år.
Vurdering av avvik:
• Det er avvik:
Sanitærutstyr/innredning har slitasje/fuktsvelling/skader, gjelder baderomsinnredning. Dette bør
repareres/skiftes.
Konsekvens/tiltak
• Tiltak:
Viser til vurderinger og eventuelle anbefalte tiltak som er nevnt over.
- Våtrom > 1. Etasje > Bad > Ventilasjon
Rommet har mekanisk/balansert avtrekk, uten tilluft.
Vurdering av avvik:
• Det er avvik:
Det er ikke tilfredstillende ventilasjonsspalte i dør eller terskel, som fører til redusert avtrekkseffekt når
døren er lukket. Det bør etableres en lufttilførsel enten via flat terskel under døren eller spalte i dørbladet.
Konsekvens/tiltak
• Tiltak:
Viser til vurderinger og eventuelle anbefalte tiltak som er nevnt over. Manglende ventilering medfører en
økt og uønsket fuktbelastning.
- Tekniske installasjoner > Ventilasjon
Ventilasjon består av naturlig ventilasjon via ventiler på
yttervegg/vinduer.
Vurdering av avvik:
• Det er avvik:
Det er begrenset med ventilering i enkelte rom i boligen, og dette bør utbedres for å opprettholde et godt
inneklima - for helse, trivsel og komfort. Mangelfull ventilasjon øker fuktigheten i inneluften, noe som kan
blant annet føre til kondens på vinduer, mugg i hjørner og bak innredning mot kalde overflater.
Konsekvens/tiltak
• Tiltak:
Viser til vurderinger og eventuelle anbefalte tiltak som er nevnt over.