Byggemåte
Bygningen står på faste masser.
Drenering fra byggeår.
Boligen er fundamentert på støpt og isolert betong såle.
Isolert bindingsverk fra byggeår. Utvendig kledd med liggende trepanel. Overflatebehandlet.
Saltak takkonstruksjon.
Tak er tekket med betongtakstein. Etter byggemåte med sløyfer, lekter og undertak.
Takrenner, beslag og nedløp i plastbelagt stål.
Vinduer med isolerglass i treramme. Overflatebehandlet.
Ytterdør i tre med glassfelt. Verandadør i tre med isolerglass.
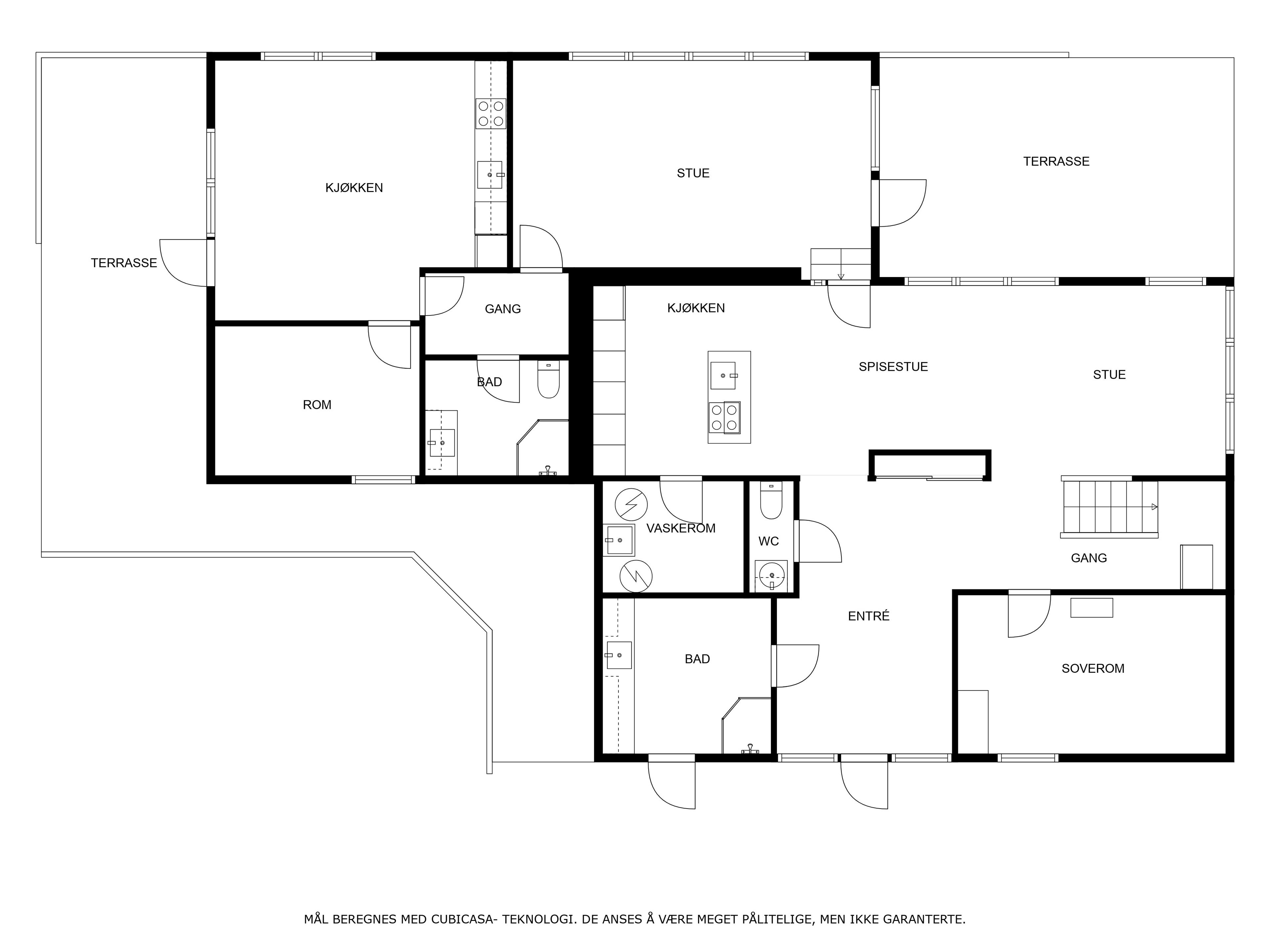
Fra stue er det utgang til en terrasse på ca. 25m2 oppsatt i trekonstruksjoner.
Fra stue/kjøkken er det utgang til en terrasse på ca. 27m2 oppsatt i trekonstruksjoner.
Garasje oppsatt i trekonstruksjoner. Leddet garasjeport i aluminium med garasjeport åpner.
Se vedlagt boligsalgsrapport avholdt 04.02.25, hvor ovennevnte opplysninger er hentet fra, for 
nærmere teknisk beskrivelse av eiendommen.
Takstmannen har utarbeidet en tilstandsrapport med gradering av eiendommens tilstand. 
En tilstandsrapport beskriver boligens tilstand med synlige skader/avvik eller tegn på skader/avvik på 
boligen. Rapporten fremhever vanligvis ikke positive egenskaper ved boligen. I felt hvor det er gitt 
Tilstandsgrad 0 er det ingen avvik. I felt hvor det er gitt Tilstandsgrad 1 er det mindre avvik. Bygningsdeler 
som tildeles Tilstandsgrad 2 angir mindre avvik som etter NS 3600 gir TG2 som ikke krever umiddelbare 
tiltak eller vesentlige avvik som kan kreve tiltak. Bygningsdeler som tildeles Tilstandsgrad 3, har store 
eller alvorlige avvik. Der det er angitt Tilstandsgrad IU er det ikke undersøkt eller bygningsdelen er ikke 
tilgjengelig for undersøkelse.
I følge tilstandsrapport er det registrert følgende avvik på tilstandsgrad:
TG 3:
- Ingen.
TG IU:
- Takkonstruksjon/loft: Hele takkonstruksjonen er gjenbygget. Det er ingen mulighet til vurdering utover 
alder og observasjoner fra underliggende etasjer.
- Utvendige vann- og avløpsledninger: Utvendige vann- og avløpsledninger er nedgrav og av naturlige 
årsaker ikke sjekket.
TG 2:
- Nedløp og beslag: Det er ikke tilfredsstillende bortledning av vann fra taknedløp ved grunnmur.
- Veggkonstruksjon: Det er registrert grønske i panel.
- Utvendige vinduer: Det er påvist at enkelte vinduer er vanskelig å åpne/lukke. Det er påvist noen 
glassruter som er punktert eller sprukne. De 3 vinduene i soverom i 2. etasje er skadet/ødelagt. Et vindu 
har hull i glass og er punktert. Vrider trenger justering/utbytting.
- Utvendige dører: Det er hull i inngangsdør.
- Innvendige overflater: Noe bruksslitasje/skader på overflater flere steder. Flere skruehull i vegg. Noe 
merker/hull etter dørhåndtak på vegg.
- Radon: Det er ikke foretatt radonmålinger, og bygget er heller ikke utført med radonsperre.
- Innvendige trapper: Noe bruksslitasje på trapp. Registrert noe knirk i trapp. Parti mot stue har rekkverk 
under 0,9m.
- Innvendige dører: Flere dører har løse dørhåndtak. Fuktskader i dør på bad. Enkelte dører/karmer trenger 
justering.
- Overflater vegger og himling bad/vaskerom 1. etasje: Registrert hull i veggflis og plate.
- Overflater gulv bad/vaskerom 1. etasje: Det er påvist at høydeforskjell fra topp slukrist til gulv/synlig topp 
membran ved dørterskel er mindre enn 25 mm. Det er påvist avvik i fallforhold til sluk i forhold til krav i 
forskrift på byggetidspunktet.
- Sluk, membran og tettesjikt bad/vaskerom 1. etasje: Mer enn halvparten av forventet brukstid er passert 
på membranløsningen. Det foreligger ikke dokumentasjon på oppbygging av baderomsgulv. Hvordan 
dette og membranløsninger er utført er ukjent.
- Sanitærutstyr og innredning bad/vaskerom 1. etasje: Det er ikke påvist tilfredsstillende løsning for å 
synliggjøre lekkasje fra innebygget sisterne.
- Ventilasjon bad/vaskerom 1. etasje: Det mangler styrt tilluftsventilering.
- Overflater gulv bad 2. etasje: Det er påvist at høydeforskjell fra topp slukrist til gulv/synlig topp membran 
ved dørterskel er mindre enn 25 mm. Det er påvist avvik i fallforhold til sluk i forhold til krav i forskrift på 
byggetidspunktet. Det er påvist sprekker i fliser. Det er registrert sprekk i fuge mellom vegg og gulv. Riper i 
enkelte gulvfliser.
- Sluk, membran og tettesjikt bad 2. etasje: Mer enn halvparten av forventet brukstid er passert på 
membranløsningen. Det foreligger ikke dokumentasjon på oppbygging av baderomsgulv. Hvordan dette 
og membranløsninger er utført er ukjent.
- Sanitærutstyr og innredning bad 2. etasje: Det er ikke påvist tilfredsstillende løsning for å synliggjøre 
lekkasje fra innebygget sisterne.
- Ventilasjon bad 2. etasje: Anbefales større luftespalte under dør.
- Overflater vegger og himling bad 2 1. etasje: Det er påvist sprekker i fliser. Hull i flis under wc.
- Overflater gulv bad 2 1. etasje: Det er påvist at høydeforskjell fra topp slukrist til gulv/synlig topp 
membran ved dørterskel er mindre enn 25 mm. Det er påvist avvik i fallforhold til sluk i forhold til krav i 
forskrift på byggetidspunktet. Noe sprekk i fuge mot vegg enkelte steder.
- Sluk, membran og tettesjikt bad 2 1. etasje: Mer enn halvparten av forventet brukstid er passert på 
membranløsningen. Det foreligger ikke dokumentasjon på oppbygging av baderomsgulv. Hvordan dette 
og membranløsninger er utført er ukjent.
- Sanitærutstyr og innredning bad 2 1. etasje: Det er ikke påvist tilfredsstillende løsning for å synliggjøre 
lekkasje fra innebygget sisterne.
- Ventilasjon bad 2 1. etasje: Våtrommet mangler tilluftsventilering, f.eks. spalte/ventil ved dør.
- Overflater og innredning kjøkken: Løs front på overskap. Noe skader på innredning enkelte steder. 
Sokkellist er tatt ned.
- Overflater og konstruksjon toalettrom: Det er ikke påvist tilfredsstillende løsning for å synliggjøre 
lekkasje fra innebygget sisterne.
- Vannledninger: Vurdering er basert på alder. Tilstandsgrad 2 gis med bakgrunn i at mer enn halvparten 
av forventet brukstid for skjulte røranlegg er
passert. Det er nå ingen symptomer på funksjonssvekkelse, men vær oppmerksom på at dette er en 
risikokonstruksjon. Kurser anbefalt merket.
- Avløpsrør: Vurdering er basert på alder. Tilstandsgrad 2 gis med bakgrunn i at mer enn halvparten av 
forventet brukstid for skjulte røranlegg er
passert. Det er nå ingen symptomer på funksjonssvekkelse, men vær oppmerksom på at dette er en 
risikokonstruksjon.
- Ventilasjon: Det er påvist mangelfull ventilasjon på ett eller flere rom i boligen.
- Varmesentral: Det har ikke vært avholdt service på anlegget (varmepumpe) senere år.
- Elektrisk anlegg: Det foreligger ikke el-tilsynsrapport siste 5 år.
- Grunnmur og fundamenter: Noe sprekker enkelte steder.
- Forstøtningsmurer: Noe sprekker i konstruksjonen.
- Terrengforhold: Noe terrengfall mot bygningen på bakside.
For øvrig er det kun mindre avvik med TG 1 og TG 0.