4829419_1a
Stephan Erichsen og Adrian Marthinsen v/ Proaktiv Eiendomsmegling Sola har gleden av å presentere Risaberg terrasse 82 for salg. ( 1 av )
4829382_1a
Leiligheten ligger flott til i 2.etg med gode solforhold. ( 2 av )
4829387_1a
Overbygget balkong med plass til utemøbler og grill. ( 3 av )
4829381_1a
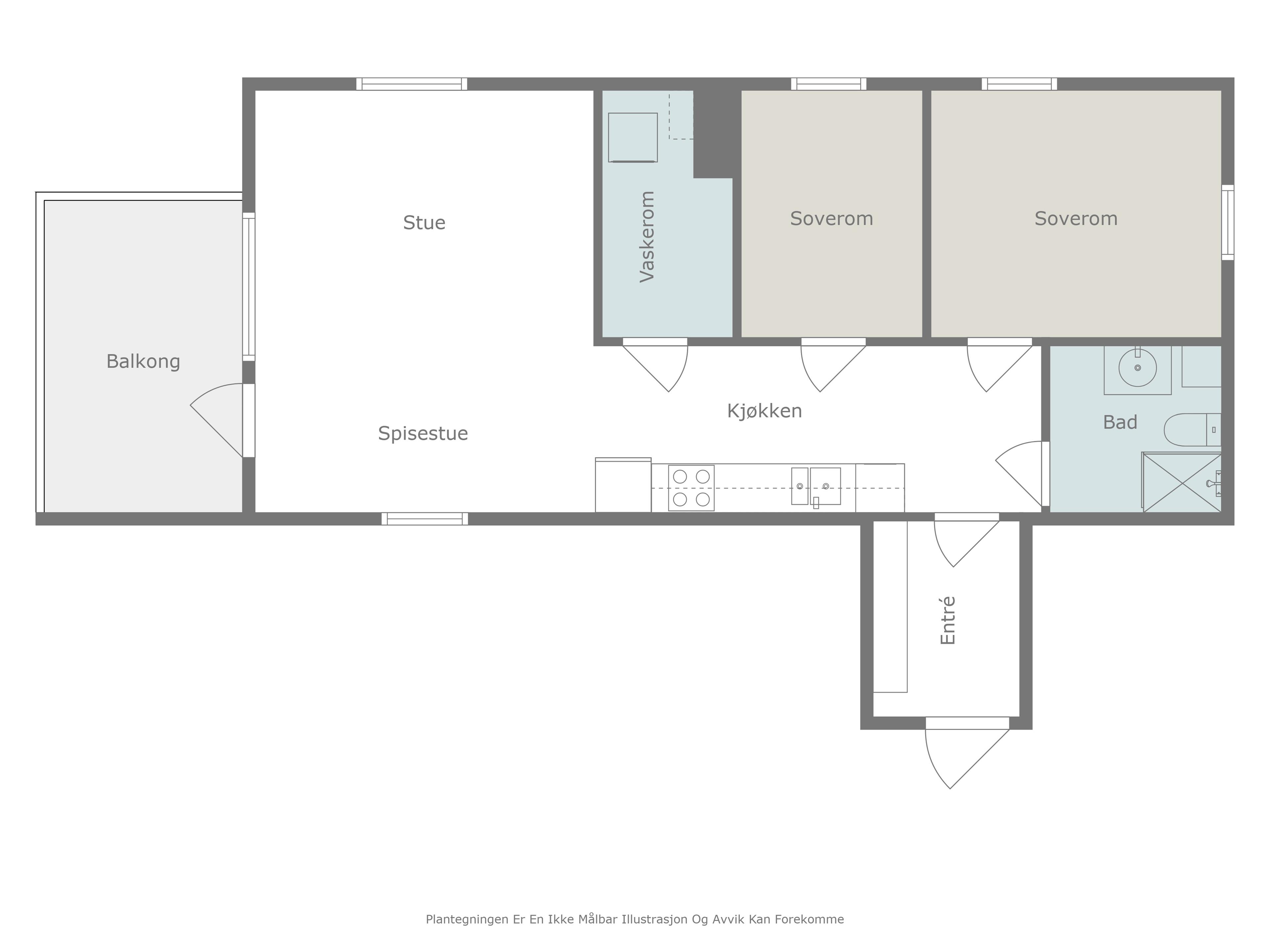
Plantegning. ( 4 av )
4829414_1a
Romslig entré med god lagringsplass i skyvedørsgarderobe. ( 5 av )
4829416_1a
Parkett på gulv og lysmalte vegger. ( 6 av )
4829400_1a
Stilrent kjøkken med lyse fronter og mørk benkeplate. ( 7 av )
4829399_1a
Integrerte hvitevarer som platetopp og stekeovn medfølger i handelen. God skap- og benkeplass. ( 8 av )
4829396_1a
Nymalt vegg ved kjøkkenbenk. ( 9 av )
4829394_1a
( 10 av )
4829391_1a
Plantegningene gjør at leiligheten passer perfekt for sosiale sammenkomster. ( 11 av )
4829403_1a
( 12 av )
4829385_1a
Romslig stue med store vindusflater bidrar til en god atmosfære i rommet. ( 13 av )
4829390_1a
Åpen stue- kjøkkenløsning med plass til spisebord. ( 14 av )
4829386_1a
Romslig solrik vestvendt terrasse ( 15 av )
4829388_1a
( 16 av )
4829389_1a
( 17 av )
4829415_1a
Stuen er lett å møblere med plass til en sittegruppe og TV-seksjon. ( 18 av )
4829393_1a
Moderne kontrastvegg, parkett på gulv og listefritt mot tak. ( 19 av )
4829411_1a
Lekkert helfliset bad med dusjhjørne, vegghengt toalett og inndredning med god lagringsplass. ( 20 av )
4829413_1a
Varmekabler i gulv. ( 21 av )
4829408_1a
Hovedsoverom av god størrelse med plass til dobbeltseng og garderobeskap. ( 22 av )
4829410_1a
( 23 av )
4829409_1a
( 24 av )
4829406_1a
( 25 av )
4829404_1a
Soverom 2 med plass til seng og skrivepult. ( 26 av )
4829405_1a
( 27 av )
4829402_1a
Vaskerom med opplegg til vaskemaskin og tørketrommel. God lagringsplass. ( 28 av )
4829407_1a
Leiligheten ligger fint til på toppen av snøde. ( 29 av )
4829395_1a
( 30 av )
4829417_1a
Parkering i felles garasjeanlegg med tilhørende bod. ( 31 av )
4829418_1a
Montert elbillader. ( 32 av )
4829383_1a
Kort avstand til lekeplass, perfekt for de minste. ( 33 av )
4829384_1a
Flotte turmuligheter i nærområde. ( 34 av )
4829599_1a
Tananger sentrum har i nyere tid blitt utviklet og har et rikt tilbud av fasiliteter. ( 35 av )
4829601_1a
Hummeren hotell er kjent for sin gode fiskesuppe. Idylliske omgivelser. ( 36 av )
4829600_1a
Sjarmende Tananger havn. ( 37 av )
4829598_1a
Solastranden er en av norges flotteste strender og er verdenskjent for vindsurfere. ( 38 av )

Risaberg terrasse 82

Se alle bilder (0)
4829419_1a
4829382_1a
4829387_1a
4829381_1a
4829414_1a
4829416_1a
4829400_1a
4829399_1a
4829396_1a
4829394_1a
4829391_1a
4829403_1a
4829385_1a
4829390_1a
4829386_1a
4829388_1a
4829389_1a
4829415_1a
4829393_1a
4829411_1a
4829413_1a
4829408_1a
4829410_1a
4829409_1a
4829406_1a
4829404_1a
4829405_1a
4829402_1a
4829407_1a
4829395_1a
4829417_1a
4829418_1a
4829383_1a
4829384_1a
4829599_1a
4829601_1a
4829600_1a
4829598_1a

Risaberg terrasse 82

Prisantydning:
Fra Kr 3790000,00
til Kr 0,00
Totalpris:
Kr 3882600,00
BRA:
79,00 - 0,00
BRA-i:
72 - 0
Soverom:
2 - 0
Boligtype:
Leilighet
Eierform:
Eiet tomt
Byggeår:
2014
Etasje:
2
Tomteareal:
0

Flott selveierleilighet i ende med 2 soverom, solrik terrasse av god størrelse og parkering i garasjeanlegg m/elbillader

Ansvarlig megler:
Stephan Michael Erichsen

Daglig leder / Partner / Eiendomsmegler MNEF

Adrian Marthinsen

Partner / Eiendomsmegler MNEF

Visning

Boligen er solgt og er ikke lengre tilgjengelig for visning. 

Risaberg terrasse 82

image005

Nøkkelinformasjon

plus_G_2025

BELIGGENHET

plus_G
minus_G

BESKRIVELSE AV EIENDOMMEN

plus_G
minus_G

OFFENTLIGE FORHOLD

plus_G
minus_G

PRISANTYDNING INKLUDERT OMKOSTNINGER

plus_G
minus_G

SAMEIET/ØKONOMI

plus_G
minus_G

ØVRIGE KJØPSFORHOLD

plus_G
minus_G

Dokumenter

plus_G_2025

Del boligen

facebook-gold
Twitter-gold

Lurer du på noe om denne boligen?

Ta kontakt under via skjemaet.


Relaterte boliger

Se flere boliger
Bolig til salgs

Inspirasjon

Inspirerende interiørbilder fra norske hjem.
sov1
Soverom
kjo1
Kjøkken
stue
Stue

Boligartikler

Nyttig informasjon, råd og inspirasjon for deg som er opptatt av bolig.
aaletidligute
Aktuelt

Kapret først drømmeboligen, solgte egen bolig få dager senere

Konseptet vårt, Tidlig ute, legger til rette for et stressfritt boligsalg på kundens premisser. Poenget er å være ute i god tid, slik at prosessen...
vo4
Aktuelt

178 dager uten bud; - Proaktiv solgte boligen min etter første visning

Huset i Vestre Olsvikveg hadde mistet alt av moment etter et halvt år ute i markedet. Da Proaktiv ved Jon Kristian Røsok kom inn i bildet ble...
n_r-16
Aktuelt

Drømmer du om å drive ditt eget meglerkontor?

Proaktiv Eiendomsmegling er alltid på utkikk etter flinke folk som ønsker å skape sin egen suksess. Er du en målrettet og verdiskapende megler, med...