4817435_1a
Proaktiv Eiendomsmegling ved/ Linda Øyahals presenterer Fabrokåsvegen 43- Velkommen på visning! ( 1 av )
4817436_1a
Tømmerhytte oppført i 2007 ( 2 av )
4817826_1a
Utsikt. ( 3 av )
4817443_1a
Romslig entré med god plass til å henge fra seg yttertøy og utstyr. ( 4 av )
4817449_1a
Lunt kjøkken med heltre innredning og integrerte hvitevarer. ( 5 av )
4817450_1a
Flott peis på kjøkkenet. ( 6 av )
4817451_1a
Kjøkkenutsikt. ( 7 av )
4817445_1a
Romslig stue på 29.5 kvm med god takhøyde. ( 8 av )
4817447_1a
Stueutsikt. ( 9 av )
4817444_1a
Utgang til overbygd terreasse fra stuen. ( 10 av )
4817446_1a
Stue med peisovn. ( 11 av )
4817452_1a
Kjøkken ( 12 av )
4817455_1a
Bad med gulvvarme, servantskap og dusjkabinettt. ( 13 av )
4817453_1a
Badet har utgang til terrasse med Jacuzzi. ( 14 av )
4817454_1a
Toalettrom. ( 15 av )
4817461_1a
Teknisk rom med opplegg for vaskemaskin. ( 16 av )
4817448_1a
Loftstue med utgang til veranda. ( 17 av )
4817459_1a
Soverom 1 i 1 .etg. måler ca. 9.5 kvm. ( 18 av )
4817458_1a
Soverom 2 i 1 etg. måler ca. 5.5 kvm. ( 19 av )
4817456_1a
Soverom 3 på loft måler ca. 6 kvm. ( 20 av )
4817457_1a
Soverom 4 på loft måler ca. 5 kvm. ( 21 av )
4817812_1a
Anneks oppført i 2009. ( 22 av )
4817463_1a
Stue/ sov i annekset. ( 23 av )
4817464_1a
Stue/ sov i annekset har også en hems. ( 24 av )
4817462_1a
Entré i anneks. ( 25 av )
4817465_1a
Bad i anneks- her er det klargjort for badstue. ( 26 av )
4817466_1a
Bod i anneks. ( 27 av )
4817440_1a
Terrasse. ( 28 av )
4817806_1a
Utsikt ( 29 av )
4817823_1a
Utsikt fra Jacuzzien. ( 30 av )
4817821_1a
Jacuzzi ( 31 av )
4817460_1a
Bålplass. ( 32 av )
4817809_1a
Uteområde. ( 33 av )
4817438_1a
Uteområde. ( 34 av )
4817811_1a
Innkjørsel. ( 35 av )
4818544_1a
( 36 av )
4818543_1a
( 37 av )
4817807_1a
Fasade. ( 38 av )
4817808_1a
Fasade. ( 39 av )
4817822_1a
Utebod og anneks. ( 40 av )
4817439_1a
Fasade ( 41 av )
4817818_2a
Bålplass. ( 42 av )
4817805_1a
Anneks ( 43 av )
4817810_1a
Utebod. ( 44 av )
4817819_1a
Utsikt ( 45 av )
4817820_2a
Utsikt ( 46 av )
4817824_1a
Fasade ( 47 av )
4817825_1a
Utsikt. ( 48 av )
4818037_1a
Stillhåtjønna- her er det tilgang til naust og båt. ( 49 av )
4818039_1a
I Stillhåtjønna er det rikelig med småørret. ( 50 av )
4803388_1a
( 51 av )
4817817_1a
( 52 av )
4803387_1a
( 53 av )
4818523_1a
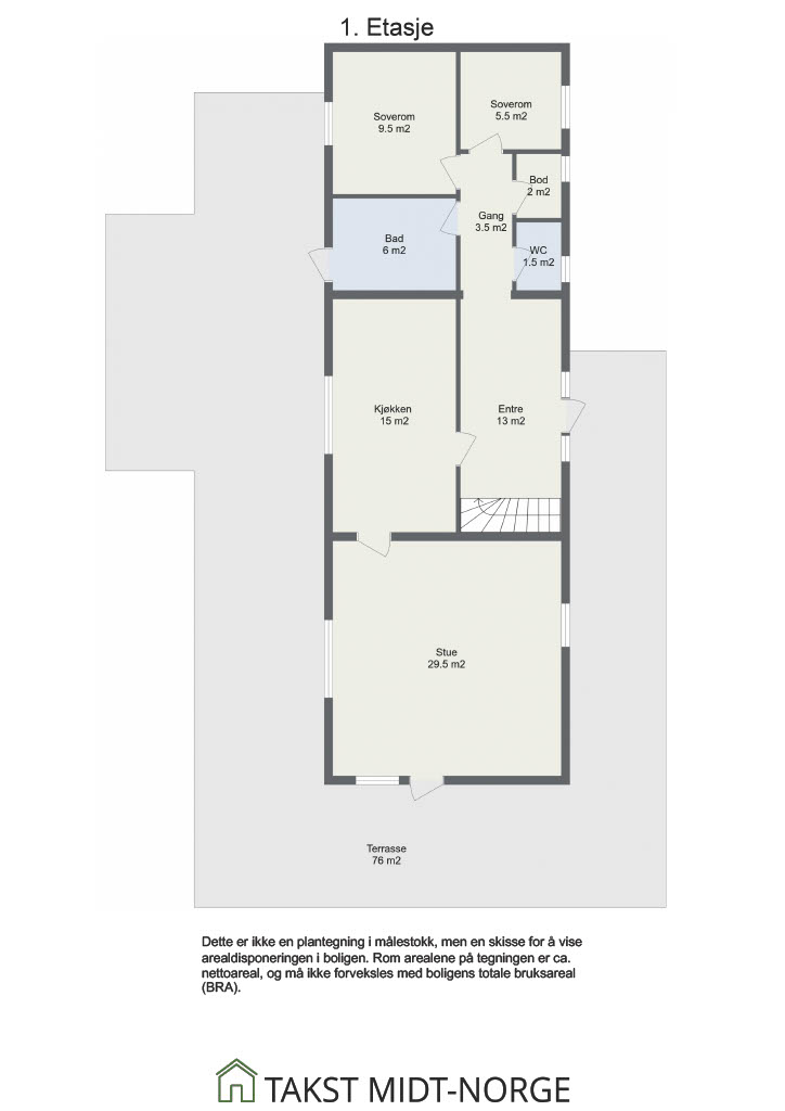
Planskisse. ( 54 av )
4818524_1a
Planskisse. ( 55 av )
4818525_1a
Planskisse. ( 56 av )

Fabrokåsvegen 43

Se alle bilder (0)
4817435_1a
4817436_1a
4817826_1a
4817443_1a
4817449_1a
4817450_1a
4817451_1a
4817445_1a
4817447_1a
4817444_1a
4817446_1a
4817452_1a
4817455_1a
4817453_1a
4817454_1a
4817461_1a
4817448_1a
4817459_1a
4817458_1a
4817456_1a
4817457_1a
4817812_1a
4817463_1a
4817464_1a
4817462_1a
4817465_1a
4817466_1a
4817440_1a
4817806_1a
4817823_1a
4817821_1a
4817460_1a
4817809_1a
4817438_1a
4817811_1a
4818544_1a
4818543_1a
4817807_1a
4817808_1a
4817822_1a
4817439_1a
4817818_2a
4817805_1a
4817810_1a
4817819_1a
4817820_2a
4817824_1a
4817825_1a
4818037_1a
4818039_1a
4803388_1a
4817817_1a
4803387_1a
4818523_1a
4818524_1a
4818525_1a

Fabrokåsvegen 43

Prisantydning:
Fra Kr 4000000,00
til Kr 0,00
Totalpris:
Kr 4128250,00
BRA:
153,00 - 0,00
BRA-i:
118 - 0
Soverom:
4 - 0
Boligtype:
Hytte
Eierform:
Eiet tomt
Byggeår:
2007
Etasje:
0
Tomteareal:
1007

Flott og innholdsrik tømmerhytte med anneks og utebod| Nydelig utsikt| Solrikt| 4 sov| 2 bad| Jacuzzi| Selveier tomt

Visning

Boligen er solgt og er ikke lengre tilgjengelig for visning. 

Fabrokåsvegen 43

image005

Nøkkelinformasjon

plus_G_2025

BELIGGENHET

plus_G
minus_G

BESKRIVELSE AV EIENDOMMEN

plus_G
minus_G

OFFENTLIGE FORHOLD

plus_G
minus_G

PRISANTYDNING INKLUDERT OMKOSTNINGER

plus_G
minus_G

ØVRIGE KJØPSFORHOLD

plus_G
minus_G

Dokumenter

plus_G_2025

Del boligen

facebook-gold
Twitter-gold

Lurer du på noe om denne boligen?

Ta kontakt under via skjemaet.


Relaterte boliger

Nedre Handtjønnvegen 22
1500000,00  0,00

Nedre Handtjønnvegen 22

Tydal ­ TYDAL
Koselig hytte ved Handtjønna | Flott utsikt over Sylan og Skardsfjella | Innlagt vann og strøm | 3 soverom

Totalpris:

Kr 1555490,00

BRA-i:

71 m²
Stugudalsvegen 1296
1690000,00  0,00

Stugudalsvegen 1296

Tydal ­ TYDAL
Trivelig fritidsbolig med garasje. God solgang. 3 soverom. Innlagt vann, avløp og strøm. Helårsvei.

Totalpris:

Kr 1752240,00

BRA-i:

90 m²
Se flere boliger
Bolig til salgs

Inspirasjon

Inspirerende interiørbilder fra norske hjem.
sov1
Soverom
kjo1
Kjøkken
stue
Stue

Boligartikler

Nyttig informasjon, råd og inspirasjon for deg som er opptatt av bolig.
aaletidligute
Aktuelt

Kapret først drømmeboligen, solgte egen bolig få dager senere

Konseptet vårt, Tidlig ute, legger til rette for et stressfritt boligsalg på kundens premisser. Poenget er å være ute i god tid, slik at prosessen...
vo4
Aktuelt

178 dager uten bud; - Proaktiv solgte boligen min etter første visning

Huset i Vestre Olsvikveg hadde mistet alt av moment etter et halvt år ute i markedet. Da Proaktiv ved Jon Kristian Røsok kom inn i bildet ble...
n_r-16
Aktuelt

Drømmer du om å drive ditt eget meglerkontor?

Proaktiv Eiendomsmegling er alltid på utkikk etter flinke folk som ønsker å skape sin egen suksess. Er du en målrettet og verdiskapende megler, med...