4826239_1a
Proaktiv Eiendomsmegling v/Mads Kirkeslett har den store gleden av å presentere Guttorms gate 6! En hel firemannsbolig beliggende i et populært og sentrumsnært område på Øya. ( 1 av )
4825907_1a
Dette er en unik og sjelden mulighet, og passer perfekt for den investeringslystne. Flermannsboligen har noe behov for oppussing, og er et ypperlig utgangspunkt for deg som ser muligheter. ( 2 av )
4825904_1a
Boligen strekker seg over fire plan og har et bruksareal på hele 441 kvm. ( 3 av )
4825905_1a
Boligen har en stor og flat tomt, med flott hage på begge sider av huset samt stor gårdsplass med flere biloppstillingsplasser. ( 4 av )
4825900_1a
Hver av leilighetene har egen balkong/terrasse mot sørvest med svært gode solforhold store deler av dagen. ( 5 av )
4825901_1a
( 6 av )
4825902_1a
( 7 av )
4825892_1a
Frittstående bod med overbygd terrasse. ( 8 av )
4825893_1a
( 9 av )
4825895_1a
Bålplass i hagen med stor sittegruppe. ( 10 av )
4825898_1a
( 11 av )
4825850_1a
Leiligheten i første etasje mot venstre med adkomst ut til egen terrasse og hagen. ( 12 av )
4825847_1a
Stuen i denne leiligheten måler romslige 31,5 kvm. ( 13 av )
4825848_1a
( 14 av )
4825851_1a
Kjøkkenet måler 22 kvm og har god plass til egen spisestue. ( 15 av )
4825853_1a
( 16 av )
4825854_1a
Bad på 4,5 kvm med fliser på gulv og vegger, samt innfellbart dusjhjørne for maksimal arealutnyttelse. ( 17 av )
4825844_1a
Fra leiligheten har man egen trapp ned til kjelleretasjen. ( 18 av )
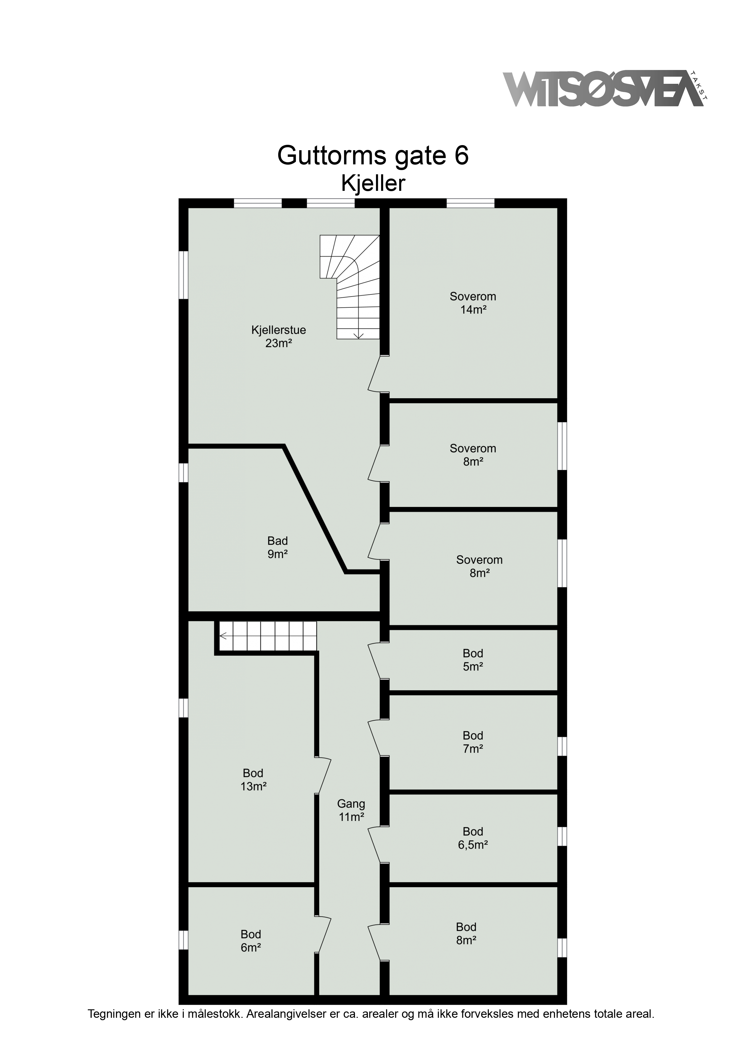
4825846_1a
Her er det etablert kjellerstue, tre soverom og bad i tilknytning til leiligheten. Kjelleren er byggemeldt som bodareal og størhus, og ikke bruksendret. ( 19 av )
4825840_1a
De tre soverommene i kjelleren måler henholdsvis 14, 8 og 8 kvm. ( 20 av )
4825841_1a
( 21 av )
4825843_1a
( 22 av )
4825837_1a
Badet måler 9 kvm og er utstyrt med et stort badekar og dusjavlukke. ( 23 av )
4825839_1a
( 24 av )
4825871_1a
Leiligheten i andre etasje til venstre har en stue på 16,5 kvm med god plass til møblering med blant annet sofakrok og tilhørende mediemøblement. ( 25 av )
4825872_1a
( 26 av )
4825874_1a
Kjøkken med plass til en enkel spisegruppe. ( 27 av )
4825875_1a
( 28 av )
4825888_1a
( 29 av )
4825876_1a
Hovedsoverommet i leiligheten måler 14,5 kvm. ( 30 av )
4825873_1a
Soverom nummer nummer to på 13,5 kvm. ( 31 av )
4825877_1a
Bad med dusjhjørne og opplegg for vaskemaskin. ( 32 av )
4825863_1a
Hovedsoverommet måler 15,5 kvm. ( 33 av )
4825867_1a
Kjøkken med god oppbevaringsplass i skuffer, over- og underskap. ( 34 av )
4825868_1a
Bad på 3 kvm. ( 35 av )
4825869_1a
( 36 av )
4825890_1a
Boligen har svært god lagringsplass med bodareal på ca. 46 kvm på loft og ca. 57 kvm i kjeller. ( 37 av )
4825891_1a
( 38 av )
4825979_1a
Planskisse første etasje. ( 39 av )
4825980_1a
Planskisse andre etasje. ( 40 av )
4825981_1a
Planskisse kjeller. ( 41 av )
4825982_1a
Planskisse loft. ( 42 av )
4572809_1a
( 43 av )
4578274_1a
Tomten måler totalt 817 kvm. ( 44 av )
4578275_1a
I nærområdet finner man et utvalg av eldre 4-mannsboliger og 2-mannsboliger. ( 45 av )
4576288_1a
Historisk bilde av Guttorms gate. ( 46 av )
4570811_1a
Eiendommen har en god og sentral beliggenhet i et av byens mest attraktive boområder, med den idylliske turstien langs Nidelva like nedenfor. ( 47 av )
4577204_1a
På Øya har man gangavstand til alt man måtte ønske. Kun noen minutters gange fra boligen har man et rikt utvalg av servicetilbud. ( 48 av )
4825991_1a
Noen få hundre meter fra eiendommen finner vi Trondheim Stadion med fine treningsfasiliteter. ( 49 av )
4826273_1a
Trondheim Spektrum har mange store konserter og arrangementer gjennom året. ( 50 av )
4825992_1a
Boligen ligger nær byens største studieinstitusjon og en av de største arbeidsplassene i byen, NTNU Gløshaugen. ( 51 av )
4825990_1a
NTNU har vedtatt plan for Campussamling 2015-2030 som skal legge til rette for å samle store deler av NTNU sin virksomhet i Trondheim rundt Gløshaugen, se salgsoppgaven for mer informasjon. ( 52 av )
4826279_1a
Handelshøyskolen er også innen gangavstand. ( 53 av )
4826277_1a
Flere caféer og butikker i nærområdet. ( 54 av )
4825993_1a
Fra eiendommen er det kort vei til Finalebanen, Lerkendal, Sintef og Teknobyen. ( 55 av )
4826278_1a
En av byens største arbeidsplasser, St. Olavs ligger like ved. ( 56 av )
4825986_1a
Studentersamfundet med sitt rikholdige tilbud av ulike arrangementer, ligger innen gangavstand. ( 57 av )
4825987_1a
Det er kort vei inn til Midtbyen med alt av servicetilbud Trondheim sentrum har å by på. ( 58 av )
4825983_1a
Ved Kristiansten Festning har man flotte parkområder både sommer og vinter. ( 59 av )
4825985_1a
Turstiene langs Nidelva passer perfekt til både gå- og løpeturer. ( 60 av )
4826274_1a
Langs elvepromenaden kan du gå hele veien til Solsiden, Bakklandet, Midtbyen og Piren. ( 61 av )
4829294_1a
Den nye Regnbueparken på Stavne ligger ikke langt fra boligen og er en populær plass for både store og små. ( 62 av )

Guttorms gate 6

Se alle bilder (0)
4826239_1a
4825907_1a
4825904_1a
4825905_1a
4825900_1a
4825901_1a
4825902_1a
4825892_1a
4825893_1a
4825895_1a
4825898_1a
4825850_1a
4825847_1a
4825848_1a
4825851_1a
4825853_1a
4825854_1a
4825844_1a
4825846_1a
4825840_1a
4825841_1a
4825843_1a
4825837_1a
4825839_1a
4825871_1a
4825872_1a
4825874_1a
4825875_1a
4825888_1a
4825876_1a
4825873_1a
4825877_1a
4825863_1a
4825867_1a
4825868_1a
4825869_1a
4825890_1a
4825891_1a
4825979_1a
4825980_1a
4825981_1a
4825982_1a
4572809_1a
4578274_1a
4578275_1a
4576288_1a
4570811_1a
4577204_1a
4825991_1a
4826273_1a
4825992_1a
4825990_1a
4826279_1a
4826277_1a
4825993_1a
4826278_1a
4825986_1a
4825987_1a
4825983_1a
4825985_1a
4826274_1a
4829294_1a

Guttorms gate 6

Prisantydning:
Fra Kr 15500000,00
til Kr 0,00
Totalpris:
Kr 15890250,00
BRA:
441,00 - 0,00
BRA-i:
441 - 0
Soverom:
9 - 0
Boligtype:
Tomannsbolig
Eierform:
Eiet tomt
Byggeår:
1936
Etasje:
0
Tomteareal:
817

SJELDEN MULIGHET! Hel firemannsbolig over fire plan. Svært attraktivt område med gode utleiemuligheter. 817 kvm tomt.

Ansvarlig megler:
Mads Kirkeslett

Partner/Jurist/Megler

Visning

Boligen er solgt og er ikke lengre tilgjengelig for visning. 

Guttorms gate 6

image005

Nøkkelinformasjon

plus_G_2025

BELIGGENHET

plus_G
minus_G

BESKRIVELSE AV EIENDOMMEN

plus_G
minus_G

OFFENTLIGE FORHOLD

plus_G
minus_G

PRISANTYDNING INKLUDERT OMKOSTNINGER

plus_G
minus_G

ØVRIGE KJØPSFORHOLD

plus_G
minus_G

Dokumenter

plus_G_2025

Del boligen

facebook-gold
Twitter-gold

Lurer du på noe om denne boligen?

Ta kontakt under via skjemaet.


Relaterte boliger

Lade alle 156
3450000,00  0,00

Lade alle 156

Trondheim ­ TRONDHEIM
Lys og moderne 2-roms leilighet fra 2024 - perfekt for førstegangskjøperen! Balkong, fjernvarme, intern og ekstern bod.

Totalpris:

Kr 3550240,00

BRA-i:

37 m²
Væressletta 13B
5990000,00  0,00

Væressletta 13B

Trondheim ­ RANHEIM
Lekker leilighet i toppetasjen fra 2023. Moderne og lyst. Parkering i kjeller. Fantastisk utsikt. Heis. Vannbåren varme

Totalpris:

Kr 6008203,00

BRA-i:

82 m²
Byåsveien 166
6490000,00  0,00

Byåsveien 166

Trondheim ­ TRONDHEIM
Rålekker 4-roms hjørneleilighet på Havstad Torg. Moderne standard fra 2023. Solrik balkong. P-plass. Heis. Fjernvarme.

Totalpris:

Kr 6666240,00

BRA-i:

92 m²
Ringvålvegen 360
3790000,00  0,00

Ringvålvegen 360

Trondheim ­ Heimdal
Svært flott 1/4-part over 2 etasjer m/vannbåren gulvvarme. Totalt 197 kvm BRA. Utleid kjellerdel*. Dobbelgarasje.

Totalpris:

Kr 3897740,00

BRA-i:

129 m²
Myrmannsvegen 16
2990000,00  0,00

Myrmannsvegen 16

Trondheim ­ HEIMDAL
Attraktiv og romslig 3(4)-roms leilighet med balkong. Eget vaskerom. 3 boder. Parkering. Barnevennlig. Store friareal.

Totalpris:

Kr 3065257,00

BRA-i:

90 m²
Heggdalsringen 65
6400000,00  0,00

Heggdalsringen 65

Trondheim ­ TRONDHEIM
Lettstelt hjørneleilighet med gjennomgående høy standard. Glimrende solforhold og fantastisk utsikt. P-plass (HC)

Totalpris:

Kr 6573990,00

BRA-i:

83 m²
Kolstadflata 11A
2790000,00  0,00

Kolstadflata 11A

Trondheim ­ SAUPSTAD
Pen og oppusset 5-roms i 3. etasje med gangavstand til alle fasiliteter. 4 soverom, to balkonger og vaskerom. Parkering.

Totalpris:

Kr 3158221,00

BRA-i:

93 m²
Stubbanvegen 73
7000000,00  0,00

Stubbanvegen 73

Trondheim ­ TRONDHEIM
Oppgradert enebolig i kjede med solrike uteområder, garasje og beliggenhet i blindvei. Umiddelbar nærhet til skole & bhg

Totalpris:

Kr 7192990,00

BRA-i:

172 m²
Fjordgata 52
11000000,00  0,00

Fjordgata 52

Trondheim ­ Trondheim
NÆRINGSEIENDOM I MIDTBYEN! Kontorlokaler med en svært attraktiv beliggenhet på bryggerekka i Trondheim.

Areal (BTA):

674,00
Utleirtunet 5F
4350000,00  0,00

Utleirtunet 5F

Trondheim ­ Trondheim
Enderekkehus over 3 plan med familievennlig og attraktiv beliggenhet. Uinnredet kjeller med mye potensial. Garasjeplass.

Totalpris:

Kr 4514124,00

BRA-i:

164 m²
Se flere boliger
Bolig til salgs

Inspirasjon

Inspirerende interiørbilder fra norske hjem.
sov1
Soverom
kjo1
Kjøkken
stue
Stue

Boligartikler

Nyttig informasjon, råd og inspirasjon for deg som er opptatt av bolig.
vo4
Aktuelt

178 dager uten bud; - Proaktiv solgte boligen min etter første visning

Huset i Vestre Olsvikveg hadde mistet alt av moment etter et halvt år ute i markedet. Da Proaktiv ved Jon Kristian Røsok kom inn i bildet ble...
n_r-16
Aktuelt

Drømmer du om å drive ditt eget meglerkontor?

Proaktiv Eiendomsmegling er alltid på utkikk etter flinke folk som ønsker å skape sin egen suksess. Er du en målrettet og verdiskapende megler, med...
ole4
Aktuelt

Bygget i 2021. Solgt for 2,5 millioner mer i 2025

Boligen i Ole I. Bores veg ble solgt for én million over prisantydning etter å ha ligget ute i markedet i kun en uke.