4867260_1a
Velkommen til visning i Gunvor Eliassens vei 19B - presentert av Proaktiv v/Markus Alm Thoen. ( 1 av )
4867273_1a
Inne er det moderne, lyst og betydelig oppusset i 2023. ( 2 av )
4867259_1a
Oppusset og flott rekkehus med alt på en flate og fine utearealer. ( 3 av )
4867258_1a
Østvendt terrasse på hele 18 kvm utenfor stue/kjøkken. ( 4 av )
4867262_1a
Vestvendt inngangsparti med tilgang til uteboden. ( 5 av )
4867265_1a
Terrasse ved inngangsparti. ( 6 av )
4867271_1a
Utstrakt bruk av downlightsbelysning og lyse, moderne fargekombinasjoner. Her kan man flytte rett inn! ( 7 av )
4867268_1a
Utgang til terrasse og felles hageareal fra stuesonen. ( 8 av )
4867272_1a
Lekkert kjøkken fra IKEA, satt inn i 2023. ( 9 av )
4867276_1a
Kjøkkenet har glatte fronter i beige, laminat benkeplate med nedfelt kum og innslag av sorte detaljer. ( 10 av )
4867266_1a
God plass til spisestue i tilknytning til kjøkkenet med åpen løsning. ( 11 av )
4867267_1a
Utstyrt med integrert stekeovn, platetopp og oppvaskmaskin. ( 12 av )
4867264_1a
Kjøkken mot stue. ( 13 av )
4867256_1a
Badet ble overflateoppusset i 2023. Opplegg for vaskemaskin i hjørnet. ( 14 av )
4867257_1a
Detalj - Servant ( 15 av )
4867277_1a
Hovedsoverommet er lekkert oppusset med lyse overflater, spilevegg og downlightsbelysning. ( 16 av )
4867278_1a
Stor skyvedørsgarderobe på hovedsoverommet. ( 17 av )
4867269_1a
Soverom 2 har også garderobeskap. ( 18 av )
4867270_1a
Soverom 2. ( 19 av )
4867275_1a
Innvendig bod ved entreen. ( 20 av )
4867274_1a
I entreen har man plass til klær og sko i garderobeskapet og ytterligere lagringsplass i en tilliggende innvendig bod. ( 21 av )
4866603_1a
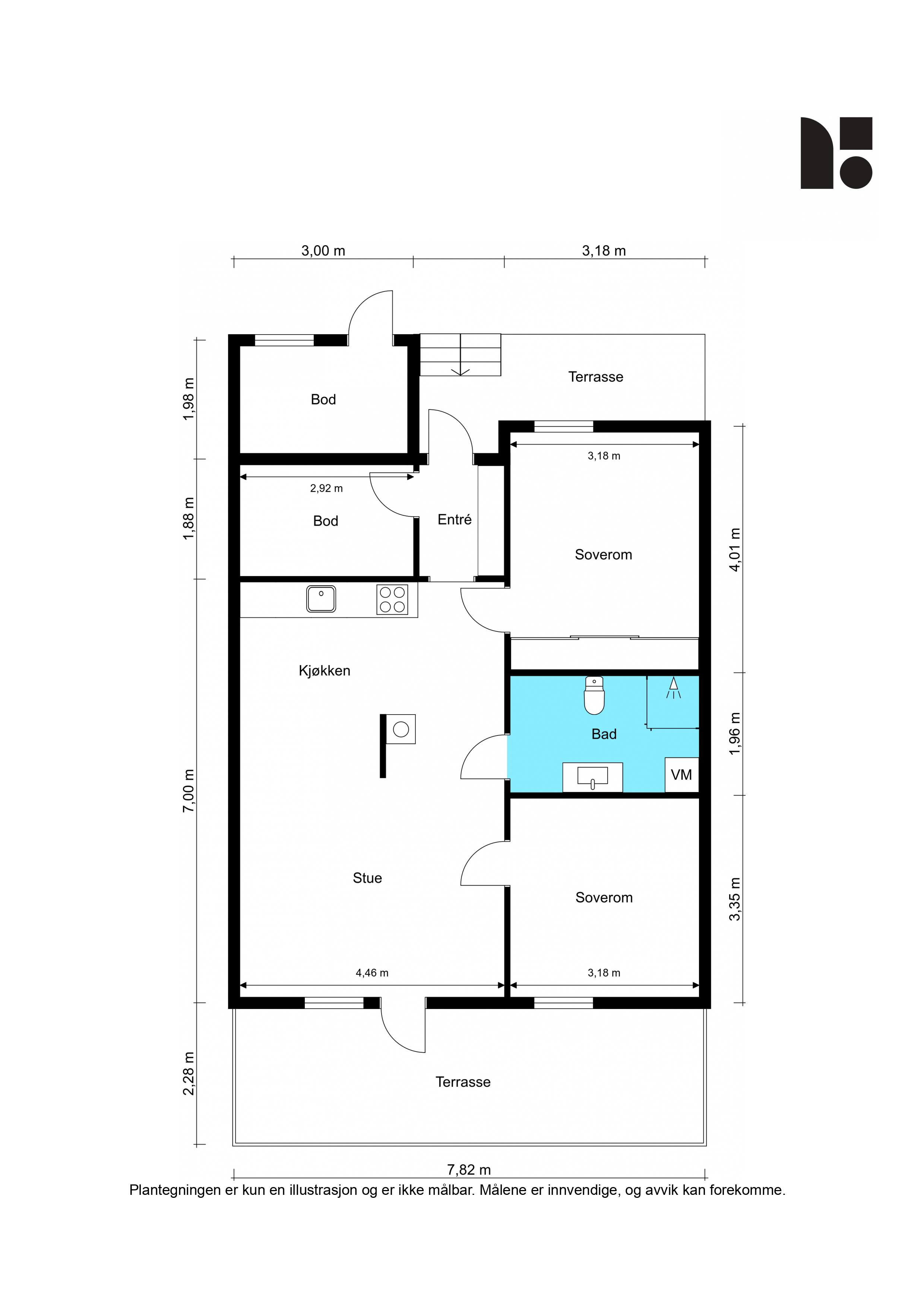
Plantegning. ( 22 av )
4867263_1a
Gode parkeringsmuligheter foran rekkehuset. Felles, gruset gårdsplass. ( 23 av )
4867261_1a
Tomten er gruset ved gårdsplann og belagt med plen og prydbusker rundt eiendommen. ( 24 av )

Gunvor Eliassens vei 19B

Se alle bilder (0)
4867260_1a
4867273_1a
4867259_1a
4867258_1a
4867262_1a
4867265_1a
4867271_1a
4867268_1a
4867272_1a
4867276_1a
4867266_1a
4867267_1a
4867264_1a
4867256_1a
4867257_1a
4867277_1a
4867278_1a
4867269_1a
4867270_1a
4867275_1a
4867274_1a
4866603_1a
4867263_1a
4867261_1a

Gunvor Eliassens vei 19B

Prisantydning:
Fra Kr 3250000,00
til Kr 0,00
Totalpris:
Kr 3343750,00
BRA:
77,00 - 0,00
BRA-i:
71 - 0
Soverom:
2 - 0
Boligtype:
Rekkehus
Eierform:
Eiet tomt
Byggeår:
1983
Etasje:
1
Tomteareal:
1208

Flott enderekkehus med alt på en flate - betydelig oppusset i 2023. 2 uteplasser og parkering. To boder.

Ansvarlig megler:
Markus Alm Thoen

Eiendomsmegler

Visning

Boligen er solgt og er ikke lengre tilgjengelig for visning. 

Gunvor Eliassens vei 19B

image005

Nøkkelinformasjon

plus_G_2025

BELIGGENHET

plus_G
minus_G

BESKRIVELSE AV EIENDOMMEN

plus_G
minus_G

OFFENTLIGE FORHOLD

plus_G
minus_G

PRISANTYDNING INKLUDERT OMKOSTNINGER

plus_G
minus_G

SAMEIET/ØKONOMI

plus_G
minus_G

ØVRIGE KJØPSFORHOLD

plus_G
minus_G

Dokumenter

plus_G_2025

Del boligen

facebook-gold
Twitter-gold

Lurer du på noe om denne boligen?

Ta kontakt under via skjemaet.


Relaterte boliger

Laboratorieveien 14
8500000,00  0,00

Laboratorieveien 14

Holmestrand ­ Sande i vestfold
Eksklusiv 4-roms frontleilighet ved vannet med fantastisk utsikt. Stort uteområde, båtplass og 2 garasjeplasser. 2 bad.

Totalpris:

Kr 8726750,00

BRA-i:

129 m²
Lillemilen 4
4700000,00  0,00

Lillemilen 4

Holmestrand ­ HOF
Nyere arkitekttegnet enebolig i markanært område. Solrik terrasse og familievennlig hage. Carport m/utebod. Lekeplass.

Totalpris:

Kr 4831750,00

BRA-i:

150 m²
Mikkel Revs vei 20
6800000,00  0,00

Mikkel Revs vei 20

Holmestrand ­ HOLMESTRAND
Stor, innholdsrik og flott beliggende familiebolig m/ skjermet uteområde & nydelig utsikt. Godkjent hybel. Dbl. carport

Totalpris:

Kr 6988250,00

BRA-i:

350 m²
Kleiverudveien 39
2690000,00  0,00

Kleiverudveien 39

Holmestrand ­ HOLMESTRAND
Hyggelig rekkehus med fjordutsikt, solrike terrasser & hage. Garasje & god bodplass. Gangavstand til skole, bhg & marka.

Totalpris:

Kr 3230870,00

BRA-i:

108 m²
Platåveien 19B
9950000,00  0,00

Platåveien 19B

Holmestrand ­ Holmestrand
Eksklusiv og prisjustert arkitektbolig med basseng, bergvarme, stor tomt, utsikt, solrikt og sentralt beliggende.

Totalpris:

Kr 10217000,00

BRA-i:

348 m²
Neverveien 14
6790000,00  0,00

Neverveien 14

Holmestrand ­ HOLMESTRAND
Stor og flott familiebolig m/ solrik tomt, råfin utsikt og dbl.garasje. Betydelig oppusset i 2016. Hybel (ikke godkjent)

Totalpris:

Kr 6979000,00

BRA-i:

226 m²
Tunnelveien
2490000,00  0,00

Tunnelveien

Holmestrand ­ Holmestrand
Byggeklar tomt på 711 kvm med utsikt mot fjorden. Attraktivt boligområde med 500 meter til Fjellheisen. Dobbelgarasje.

Totalpris:

Kr 2553600,00

P-rom:

0,00 m²
Kaiveien 4
4950000,00  0,00

Kaiveien 4

Holmestrand ­ SANDE I VESTFOLD
Flott maritim hjørneleilighet på 88 kvm ved fjorden. Terrasse på 32 kvm, garasje og trappefri adkomst. Topp standard.

Totalpris:

Kr 5088000,00

BRA-i:

88 m²
Gartneriveien 32
4290000,00  0,00

Gartneriveien 32

Holmestrand ­ HOLMESTRAND
Nyere og pen 5-roms endeleilighet over to plan. Solrike terrasser m/åpent utsyn + garasjeplass. Fine fellesområder.

Totalpris:

Kr 4410500,00

BRA-i:

112 m²
Røllesveien 21
4790000,00  0,00

Røllesveien 21

Holmestrand ­ Sande i vestfold
Nyere og lekkert enderekkehus m/ rolig beliggenhet og fin utsikt - Carport med lader & p-plass - 4 sov, 2 bad & vaskerom

Totalpris:

Kr 4930000,00

BRA-i:

155 m²
Se flere boliger
Bolig til salgs

Inspirasjon

Inspirerende interiørbilder fra norske hjem.
sov1
Soverom
kjo1
Kjøkken
stue
Stue

Boligartikler

Nyttig informasjon, råd og inspirasjon for deg som er opptatt av bolig.
artikkelaug
Aktuelt

E-takst - Hva er det og hvorfor trenger du det?

En e-takst er en elektronisk verdivurdering av en bolig som utføres av eiendomsmegler, og som sier hva boligen din er verdt i dagens marked. Den er...
aaletidligute
Aktuelt

Kapret først drømmeboligen, solgte egen bolig få dager senere

Konseptet vårt, Tidlig ute, legger til rette for et stressfritt boligsalg på kundens premisser. Poenget er å være ute i god tid, slik at prosessen...
vo4
Aktuelt

178 dager uten bud; - Proaktiv solgte boligen min etter første visning

Huset i Vestre Olsvikveg hadde mistet alt av moment etter et halvt år ute i markedet. Da Proaktiv ved Jon Kristian Røsok kom inn i bildet ble...