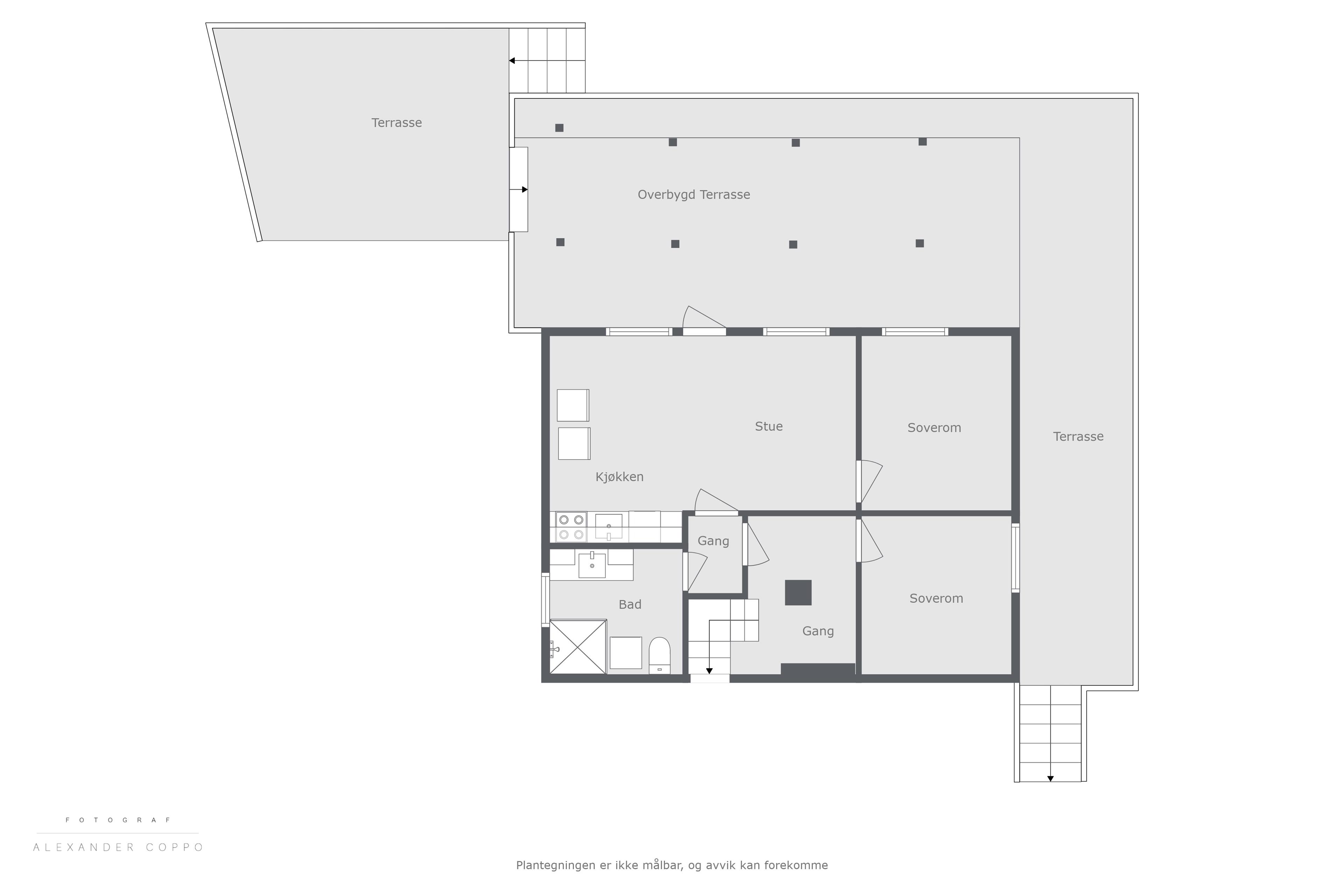
Byggemåte
I forbindelse med salget har det blitt laget en tilstandsrapport for bolig med arealmåling av
Bygningssakkyndig /Takstingeniør Roy Kristian Nordanger. En tilstandsrapport beskriver synlige
skader/avvik eller tegn på skader/avvik på boligen som er særlig relevante ved eierskifte. Den
bygningssakkyndige undersøker rom og bygningsdeler slik det kommer frem av Forskrift til
avhendingsloven. Tilstandsrapporten inneholder bare avvik som den bygningssakkyndige kan se eller
kontrollere med enkle hjelpemidler. Det gjøres ikke nærmere undersøkelser slik som åpning av vegger
eller andre bygningsdeler.
Tilstanden gir uttrykk for en gitt forventet tilstand, blant annet vurdert ut fra alder og normal bruk. Ved
Tilstandsgrad 0 (TG0) og Tilstandsgrad 1 (TG1) gir den bygningssakkyndige normalt ingen begrunnelse
for valg av tilstandsgrad. Grunnen er at bygningen eller bygningsdelen da bare har normal slitasje. Ved
skjulte konstruksjoner kan alder alene avgjøre tilstandsgrad. Når bygningssakkyndige anbefaler tiltak, for
eksempel utbedringer, må brukeren av rapporten vurdere om tiltakene er nødvendige og lønnsomme.
Tilstandsgrad 0 : Ingen avvik
Tilstandsgrad 1 : Mindre eller moderate avvik
Tilstandsgrad 2 : Avvik som ikke krever tiltak
Tilstandsgrad 2 : Avvik som kan kreve tiltak
Tilstandsgrad 3 : Store eller alvorlige avvik
Tilstandsgrad IU: Konstruksjoner som ikke er undersøkt
Hva det vil koste å utbedre rom eller bygningsdeler, er et forsiktig anslag basert på nåværende kvalitet,
registrert avvik og angitte tiltak i rapporten. Anslaget er gitt på generelt grunnlag og må ikke forveksles
med et pristilbud fra en håndverker. Det kan foreligge avvik og tiltak som ikke kommer frem av rapporten.
Utbedringskostnad avhenger blant annet av personlige valg av og markedspris på materialer og
tjenesteyter. For bygningsdeler som er gitt tilstandsgrad 2 eller 3, hvor det er påregnelig med tiltak, settes
et anslag for utbedring.
BYGGEMÅTE:
- Tak: Taktekkingen er av betongtakstein fra 2021 (eiers opplysning).
- Vinduer: Vinduer har trekarmer med isolerglassruter.
- Fasade: Fasade/kledning har liggende bordkledning.
- Etasjeskille: Etasjeskiller er av trebjelkelag.
- Grunnmur: Bygningen har betong/ murverk grunnmur.
TILSTANDSGRADER
TILSTANDSGRAD 0:
- Tekniske installasjoner - Branntekniske forhold
TILSTANDSGRAD 1:
- Utvendig - Taktekking
- Utvendig - Nedløp og beslag
- Utvendig - Veggkonstruksjon
- Utvendig - Vinduer - nyere dato
- Utvendig - Dører
- Utvendig - Terrasse ved kjellerplan
- Utvendig - Balkonger, terrasser og rom under balkonger
- Innvendig - Overflater
- Våtrom - Bad - Sanitærutstyr og innredning
- Våtrom - Bad - Tilliggende konstruksjoner våtrom
- Våtrom - Bad/Vaskerom - Overflater vegger og himling
- Våtrom - Bad/vaskerom - Sanitærutstyr og innredning
- Kjøkken - Avtrekk
- kjøkken - Overflater og konstruksjon
- Tekniske installasjoner - Ventilasjon
- Tekniske installasjoner - Andre VVS-installasjoner
- Tekniske installasjoner - Elektrisk anlegg
- Tomteforhold - Grunnmur og fundamenter
- Tomteforhold - Forstøtningsmur
TILSTANDSGRAD 2:
- Utvendig - Kledningsbord - Dårlig tilpasset/skjært dekkbord på hjørnekjøl.
- Utvendig - Takkonstruksjon/Loft - Det er påvist fuktskjolder i undertak/takkonstruksjon. Gjelder fra
tidligere lekkasje før taktekking ble skiftet.
- Utvendig - Vinduer - Det er påvist at enkelte vinduer er vanskelig å åpne/lukke. Vinduer/glassruter fra
byggeår har passert mer enn halvparten av forvantet levetid.
- Utvendig - Balkongdør 1 etg - Det er påvist utetthet/åpning mellom dørblad og dørkarm. Dvs. at kald trekk
kan oppstå. Dør har ikke espangulett trinnløs luftestilling.
- Utvendig - Bi inngang kjeller - Det er påvist avvik rundt innsettingsdetaljer.
- Utvendig - Utvendige trapper - Det er ikke montert håndlist eller rekkverk ihht dagens forskriftskrav.
- Innvendig - Radon - Det er ikke foretatt radonmålinger, og bygget er heller ikke utført med radonsperre.
Radonmålinger er ikke foretatt, heller ikke andre tiltak mot radon, eiendommen ligger i et område som i
NGU Radon aktsomhetskart er definert med "moderat til lav" aktsomhetsgrad.
- Innvendig - Pipe og ildsted - Ildfast plate mangler på gulvet under sotluke/feieluke på pipe.
- Innvendig - Rom under terreng - Det er gjennom hulltaking påvist høyt fuktnivå inne i trekonstruksjonen i
hulltakingen, men ikke påvist fuktskader i dette området. Høy luktfuktighet kan over tid føre til muggvekst
eller sverting av materialer. Samtidig kan materialer og konstruksjoner bli ødelagt.
- Innvendig - Innvendige trapper - Åpninger mellom trinn i innvendig trapp er større enn dagens
forskriftskrav. Det mangler håndløper på vegg i trappeløpet.
- Innvendig - Innvendige dører - Det er påvist avvik som tilsier at det bør foretas tiltak på enkelte dører. Det
er avvik: de eldste innerdører har passert mer enn halvparten av forventet brukstid. Mangler feielister flere
steder.
- Tekniske installasjoner - Vannledninger - Mer enn halvparten av forventet brukstid er passert på
innvendige vannledninger.
- Tekniske installasjoner - Avløpsrør - Mer enn halvparten av forventet brukstid er passert på innvendige
avløpsledninger.
- Tekniske installasjoner - Varmtvannstank - Det er ikke påvist tilfredsstillende avrenning eller annen
kompenserende løsning fra varmtvannstank. Det er ikke påvist tilfredsstillende el-tilkobling av
varmtvannstank iht. gjeldende forskrift.
- Tomteforhold - Fuktsikring og drenering - Mer enn halvparten av forventet levetid på drenering er
overskredet. Det er avvik: det mangler kantlist på topp knotteplast på side som vender mot nord. Fare for
at vann trenger bak knotteplast.
- Tomteforhold - Terrengforhold - Det er påvist dårlig fall eller flatt terreng inn mot grunnmur og dermed
muligheter for større vannansamlinger.
- Tomteforhold - Utvendige vann- og avløpsledninger - Mer enn halvparten av forventet brukstid er passert
på utvendige vann- og avløpsledninger.
- Våtrom - Bad - Overflater vegger og himling - Det er avvik: ujevnheter og unøyaktig utførelse for
flisarbeider og merkelig plassering av spotter. Fremstår ikke fagmessig.
- Våtrom - Bad - Overflater gulv - Det er mulighet for at det kan forekomme vannlekkasje på våtrommet
hvor vann ikke vil gå til sluk. Ufagmessig flisarbeid med store planavvik / ujevnheter på overflater,
ufagmessig fugarbeid. Det er ingen oppkant for membran ved dørterskel.
- Våtrom - Bad - Sluk, membran og tettesjikt - Dokumentasjon for rommets tetthet/membranoppløsning i
våtsoner er ikke er fremvist.
- Våtrom - Bad - Ventilasjon - Rommet har kun naturlig ventilasjon.
- Kjøkken - Overflater og innredning - På grunn av alder.
- Våtrom - Bad/Vaskerom - Overflater vegger og himling - Sprekker i fliser og sprekk i flis på vegg ved
vaskemaskin.
- Våtrom - Bad/Vaskerom - Våtrommets oppbygging har passert mer enn 50% av forventet brukstid.
- Våtrom - Bad/Vaskerom - Ventilasjon - Rommet har kun naturlig ventilasjon.
- Kjøkken - Underetasje - Stue/Kjøkken - Overflater og innredning - Store synlige skjevheter for oppheng av
overskap.
- Kjøkken - Stue/kjøkken - Avtrekk - Svakt avtrekk, avkast rør er innsnevret før utkast i vegg.
- Tekniske installasjoner - Varmesentral - Mer enn halvparten av forventet brukstid på varmesentral er
oppbrukt.
Se vedlagt boligsalgsrapport avholdt 28.05.25, hvor ovennevnte opplysninger er hentet fra, for
nærmere teknisk beskrivelse av eiendommen.