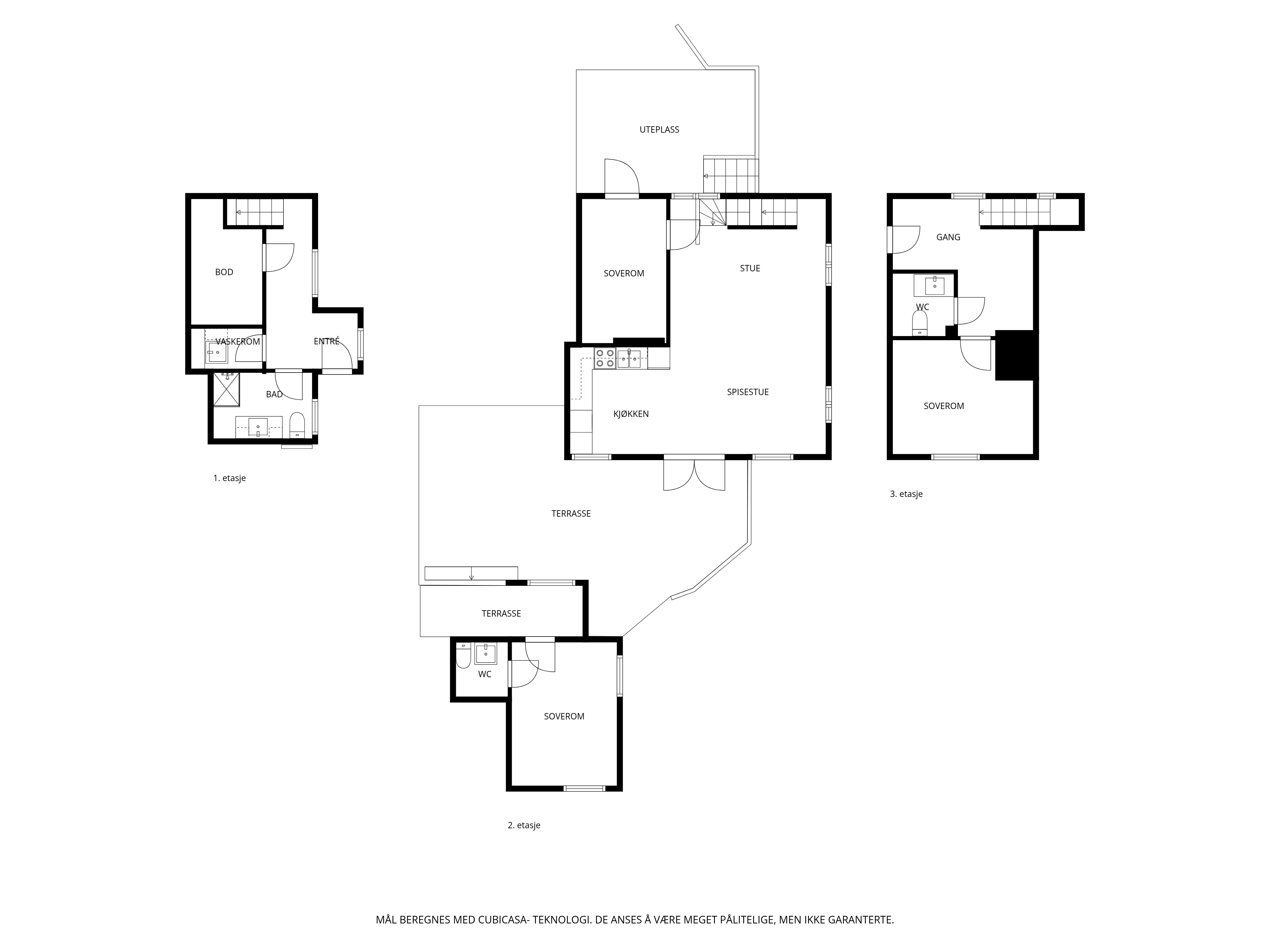
Byggemåte
Fritidsboligen er oppført i 1960 med konstruksjoner som var vanlige for byggeperioden. Dagens krav til isolering og tetthet er strengere enn da bygget ble oppført.
Bygningen er fundamentert på faste masser eller fjell.
Grunnmuren er av betong/mur. Underetasjen er i betong/mur, som er pusset og malt utvendig.
Dreneringen rundt boligen er av ukjent type og alder.
Veggkonstruksjonen består av bindingsverk fra byggeåret, med utvendig stående og overflatebehandlet trepanel.
Taket er en saltakskonstruksjon med plassbygde takstoler og undertak av bordtak. Taktekkingen består av betongtakstein lagt på sløyfer og lekter.
Takrenner, nedløp og beslag er utført i plastbelagt stål.
Etasjeskiller mot grunn har begrenset fuktsikring.
Vinduer er utført med isolerglass i trerammer. Ytterdør og verandadør er i tre, hvorav verandadøren har isolerglass.
Eiendommen har en terrasse i trekonstruksjon med utgang fra stuen, samt en utvendig tretrapp.
TG2 - Avvik som kan kreve tiltak:
- Utvendig - Taktekking
Avvik: • Mer enn halvparten av forventet brukstid er passert på taktekkingen.
• Mer enn halvparten av forventet brukstid er passert på undertak.
- Utvendig - Nedløp og beslag
Avvik: • Det mangler snøfangere på hele eller deler av taket, men det var ikke krav om dette på byggemeldingstidspunktet.
• Mer enn halvparten av forventet brukstid er passert på renner/nedløp/beslag.
Det mangler nedløp på inngangsparti.
- Utvendig - Veggkonstruksjon
Avvik: • Det er ingen eller liten lufting i nedre kant av kledning mot grunnmur.
Noe sprekker i puss. Varierende utlufting bak panel.
- Utvendig - Takkonstruksjon/Loft
Avvik: • Det er begrenset/dårlig ventilering av takkonstruksjonen.
Isolasjon går noen steder helt ut til undertak. Noe fuktskjolder i konstruksjonen enkelte steder. Konstruksjonen er undersøkt fra takluke. Loft har vannskelig adkomst med lav takhøyde og manglene gulv. Dette er en sikkerhetsrisiko som gjør det vanskelig og inspisere hele loftet. Det er også en risiko for å skade konstruksjonen når det ikke er gangbart gulv.
Det opplyses knevegger ikke er isolert.
- Utvendig - Vinduer
Avvik: • Det er avvik:
Noe kondensmerker på enkelte vinduer. Noe værslitasje utvendig. Mer en halvparten av forventet brukstid er passert.
- Utvendig - Balkonger, terrasser og rom under balkonger
Avvik: • Det er avvik:
Noe tørkesprekker. Tildstand også med tanke på alder.
- Innvendig - Overflater
Avvik: • Det er avvik:
Noe bruksslitasje med stedvise merker.
Det er synlig fjell i overgang gulv / vegg i u.etg. Det er noe fukt vandring i fjell.
- Innvendig - Etasjeskille/gulv mot grunn
Avvik: • Det er målt høydeforskjell på mellom 15-30 mm gjennom hele rommet. Tilstandsgrad 2 gis med bakgrunn i standardens krav til godkjente måleavvik.
- Innvendig - Pipe og ildsted
Avvik: • Mer enn halvparten av forventet brukstid er passert på pipe.
• Pipa har rennmerker etter sotvann.
- Innvendig - Rom Under Terreng
Avvik: • Kjeller har begrenset ventilering/luftgjennomstrømning.
Det er gjennom målinger påvist høyt fuktnivå i trevegger i underetg./kjeller, Det er utforede vegger i U.etg. Dette er en risikokonstruksjon. Mulig skjult svikt.
- Våtrom - U.Etasje > Bad > Overflater Gulv
Avvik: • Det er påvist at høydeforskjell fra topp slukrist til gulv/synlig topp membran ved dørterskel er mindre enn 25 mm.
• Det er påvist avvik i fallforhold til sluk i forhold til krav i forskrift på byggetidspunktet.
- Våtrom - U.Etasje > Bad > Sluk, membran og tettesjikt
Avvik: • Mer enn halvparten av forventet brukstid er passert på membranløsningen.
• Det er avvik:
Det foreligger ikke dokumentasjon på oppbygging av baderomsgulv. Hvordan dette og eventuelt membranløsninger er utført er ukjent.
- Våtrom - U.Etasje > Bad > Tilliggende konstruksjoner våtrom
Avvik: • Hulltaking er foretatt og det er påvist avvik i konstruksjonen.
Det er registrert fukt i vegg.
- Våtrom - U.Etasje > Vaskerom > Tilliggende konstruksjoner våtrom
Avvik: • Det er avvik:
Det er tatt hull i vegg og avdekket høye verdier. Dette må sees i sammenheng med måling gjort under "Rom under terreng"
- Kjøkken - 1.Etasje > Kjøkken > Overflater og innredning
Avvik: • Det er avvik:
Tildstand settes med tanke på alder. Noe bruksslitasje med stedvise merker.
- Kjøkken - 1.Etasje > Kjøkken > Avtrekk
Avvik: • Det er manglende forsert mekanisk avtrekk fra kokesone i kjøkkenet.
- Spesialrom - 2.Etasje > Toalettrom > Overflater og konstruksjon
Avvik: • Toalettrom har kun naturlig avtrekk fra rommet, NS 3600 krever mekanisk avtrekk for å kunne gi TG 0/1.
- Tekniske installasjoner - Vannledninger
Avvik: • Rørkursene på rør-i-rør systemet på vannledninger er ikke merket.
• Vurdering er basert på alder. Tilstandsgrad 2 gis med bakgrunn i at mer enn halvparten av forventet brukstid for skjulte røranlegg er passert. Det er nå ingen symptomer på funksjonssvekkelse, men vær oppmerksom på at dette er en risikokonstruksjon.
- Tekniske installasjoner - Avløpsrør
Avvik: • Vurdering er basert på alder. Tilstandsgrad 2 gis med bakgrunn i at mer enn halvparten av forventet brukstid for skjulte røranlegg er passert. Det er nå ingen symptomer på funksjonssvekkelse, men vær oppmerksom på at dette er en risikokonstruksjon.
- Tekniske installasjoner - Ventilasjon
Avvik: • Det er påvist mangelfull ventilasjon på ett eller flere rom i boligen.
- Tekniske installasjoner - Varmtvannstank
Avvik: • Det er påvist at varmtvannstank er over 20 år
- Tomteforhold - Fuktsikring og drenering
Avvik: • Det mangler, eller på grunn av alder er det sannsynlig at det mangler, utvendig fuktsikring av grunnmuren ved kjeller/underetasje.
• Mer enn halvparten av forventet levetid på drenering er overskredet.
- Tomteforhold - Grunnmur og fundamenter
Avvik: • Det er avvik:
Eldre gulv mot grunn har ofte begrenset fuktsikring mot grunnen. Tilstand settes med tanke på alder. Noe tørrsprekker.
TG3 - Store eller alvorlige avvik:
- Våtrom - U.Etasje > Vaskerom > Generell
Avvik: • Våtrommet må oppgraderes for å tåle normal bruk etter dagens krav.
Våtrommet må oppgraderes for å tåle normal bruk etter dagens krav. Det er ikke behov for å gjennomføre en detaljert tilstandsanalyse, etter standardens krav settes tilstand i hht NS 3600 automatisk til TG 3. Selv om rommet skulle fungere tilfredsstillende til dagen bruk.
- Tomteforhold - Terrengforhold
Avvik: • Terrenget faller inn mot bygningen og det er maksimale forhold for vann inn mot muren.
TG IU - Konstruksjoner som ikke er undersøkt:
- Tomteforhold - Utvendige vann- og avløpsledninger: Utvendige vann- og avløpsledninger er nedgrav og av naturlige årsaker ikke sjekket. Det er ikke opplyst om pålegg, funksjonsfeil eller andre mangler ved anlegget.
- Tomteforhold - Andre tomteforhold: Eiendommen har en badestamp. Denne er ikke kontrollert.