Standard
Velkommen til Tuengen Allé 27A - en nyoppført, arkitekttegnet og sjelden enebolig av betydelig størrelse, beliggende i et av Oslos mest etablerte og eksklusive villaområder på Vinderen/Borgen. Eiendommen ligger tilbaketrukket og solrikt, omgitt av klassisk villabebyggelse, grønne hager og rolige gateløp, noe som gir en tydelig følelse av privatliv og kvalitet.
Boligen er ferdigstilt i 2025 og har aldri vært bebodd. Her møter moderne arkitektur tradisjonelle omgivelser på en harmonisk måte, med store vindusflater med 3-lags energiglass som gjør boligen meget energieffektiv, dype vinduskarmer og imponerende takhøyder som gir et eksklusivt, men samtidig varmt uttrykk. Boligen byr på flere attraktive kvaliteter, der den romslige og lyse stuen utmerker seg som et naturlig samlingspunkt med gode møbleringsmuligheter. Den spennende og innholdsrike planløsningen er fleksibel og gir stor frihet til å skape sitt eget preg, med romslige oppholdsarealer, fire bad med fliser fra Fagflis, enstavsparkett, moderne ventilasjonssystem fra Systemair og egen separat del til ungdommen. Boligen har smarte løsninger som vanntett og moderne parkettvinyl i entréene, lyse og luftige men samtidig tette trappetrinn, samt god "samba"-trinn opp til hems.
Uteområdet er en av eiendommens store styrker, med en stor hage som gir rikelig plass til både lek, avslapning og sosiale sammenkomster. Den romslige gårdsplassen er av en god størrelse med praktisk snumulighet, noe som gir enkel adkomst i hverdagen. Eiendommen har også bilheis, som bidrar til ekstra komfort og funksjonalitet. I tillegg gir uteområdet gode muligheter for videre tilpasning og utvikling, slik at du kan sette ditt eget preg på eiendommen.
Entré:
Vi ankommer boligen via et ryddig og stilrent inngangsparti. Inngangspartiet leder videre inn i en lys og romslig entré med god takhøyde og varmekabler i gulvet. Store flater, rene linjer og naturlig lys skaper en rolig og elegant ankomst til boligen. Her er det naturlig plass til garderobeløsning uten at rommet mister sin luftige karakter. Brann- og lydklassifisert entrédør med kodelås fra Nimly.
Bad:
Badet i 1. etasje fremstår moderne og tidløst, med helflisede flater i rolige toner. Dusjhjørne med glass, vegghengt toalett og servantskap gir et stramt og elegant uttrykk. Varmekabler i gulvet og balansert ventilasjon gir høy komfort, og badet oppleves både praktisk og påkostet.
Vaskerom / Sportsbod:
Vaskerommet er romslig og svært funksjonelt. Flislagt gulv, sluk og gode arbeidsflater gjør rommet godt tilpasset en aktiv hverdag. Med egen utgang direkte til uteareal blir rommet også perfekt som sportsbod og sekundær inngang. Sentralstøvsuger er plassert her, og rommet fremstår ryddig og gjennomtenkt.
Soverom 1:
Dette soverommet ligger skjermet i etasjen og har gode vindusflater som slipper inn rikelig med dagslys. Rommet egner seg godt som barnerom, gjesterom eller hjemmekontor, med god plass til seng, skap og eventuelt skrivebord.
Soverom 2:
Det andre soverommet i etasjen har tilsvarende gode proporsjoner og et behagelig lysinnslipp. Utsyn mot grøntarealer gir en rolig atmosfære, og rommet kan enkelt tilpasses ulike behov.
Vi beveger oss videre opp i boligens hovedetasje. Den stilrene, rette trappen er både funksjonell og gir en flott adkomst til stuen;
Stor åpen stue og spisestue:
Når vi kommer opp i 2. etasje, åpner boligens hovedrom seg med en umiddelbar wow følelse. Her møter vi en åpen stue og spisestue med imponerende takhøyde, store vindusflater og et lys som beveger seg gjennom rommet hele dagen.
Rommet har en tydelig katedralfølelse, men oppleves samtidig varmt og inviterende. De dype vinduskarmene gir karakter og understreker kvaliteten i bygget. Planløsningen gir stor frihet til å etablere flere soner, både for sofagrupper, lesekrok og langbord. Vedovn fra Nord peis bidrar med både varme og stemning på kjøligere dager.
Balkong:
Fra stuen er det utgang til en romslig balkong på ca. 13 kvm. Balkongen ligger solrikt til og gir utsyn over nærområdet med klassisk villabebyggelse og grønne omgivelser. Glassrekkverk sørger for uhindret lys og utsikt, og balkongen fungerer som en naturlig forlengelse av oppholdsrommet ved selskap og sommerdager. Balkongen har direkte adkomst til hagen og legger til rette for ulike soner ved besøk og hageselskap.
Kjøkken:
Kjøkkenet er integrert i hovedrommet og har et stilrent og moderne uttrykk. Frontene er fra den nye «London»-serien til KVIK i en brungrå, betonginspirert fargetone, som gir et eksklusivt og tidsriktig preg. Løsningen er både funksjonell og sosial, med god benkeplass, integrert stikkontakt i benken og naturlig plass til spisebord. Integrerte hvitevarer som kjøl-/fryseskap, microbølgeovn, oppvaskmaskin, induksjonstopp og varmluftsovn, samt ventilator i platetopp bidrar til et ryddig helhetsinntrykk. Kjøkkenet er utstyrt med waterguard og komfyrvakt.
Soverom 3:
Dette soverommet ligger tilbaketrukket i etasjen og har et rolig preg. Store vinduer gir godt lys, og rommet passer utmerket som barnerom, gjesterom eller kontor.
Soverom 4:
Hovedsoverommet er romslig og elegant, med store vindusflater og utsyn mot grønne omgivelser. Her er det god plass til dobbeltseng, garderobeløsning og eventuelt sittegruppe. Rommet oppleves som en privat og behagelig sone, godt skjermet fra boligens sosiale arealer.
Baderom:
Baderommet i 2. etasje er helfliset og påkostet, med både dusjhjørne og badekar. Vegghengt toalett, servantskap og speil gir et moderne og ryddig uttrykk. Varmekabler i gulv og balansert ventilasjon sikrer høy komfort.
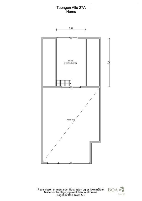
Hems:
Fra stuen er det trapp videre opp til den praktiske hemsen. Hemsens åpne rom gir et ekstra gulvareal på ca. 19 kvm. Dette er et fleksibelt areal som kan benyttes som TV stue, lekerom, arbeidsplass eller ekstra oppbevaring. Den åpne løsningen gir god kontakt med resten av boligen og forsterker den luftige romfølelsen. Hemsen gir rom for praktisk oppbevaring langs hele den ene veggen, perfekt til julepynt og annet utstyr.
Vi beveger oss videre ned i boligens underetasje hvor vi både finner gode oppholrom, lagring, garasje og en separat del. Det er god plass til plassbygd oppbevaring under trapp. Hele underetasjen har varmekabler i gulv, samt varmekabler utenfor den separate delen;
Kjellerstue:
Kjellerstuen har uvanlig god takhøyde og store vinduer som slipper inn rikelig med dagslys. Rommet fremstår lyst og innbydende, og egner seg godt som sekundær stue, ungdomsavdeling, trimrom eller hjemmekino.
Bad:
Badet i underetasjen er helfliset og moderne, med dusjhjørne i glass, vegghengt toalett og servantskap. Varmekabler i gulv gir god komfort.
Separat del:
Boligen har en egen separat del med egen inngang og byr på fleksible bruksmuligheter, velegnet for ungdommen eller gjester. Den inneholder entré, stue med kjøkken, bad og bod. Kjøkkenet har lyse fronter og integrerte hvitevarer, og badet er moderne og helfliset. Uteareal på siden av boligen gir et ekstra kvalitetsløft.
Deler av den separate delen er fremvist som soverom. Bruksendring fra boder til rom for varig opphold er søknadspliktig. Oversendte byggetegninger tilsier at bruksendring fra boder til soverom ikke er omsøkt. Det foreligger tillatelse for varig opphold i deler av rommet. Dokumentasjon kan fremlegges. Det er den til enhver tid eier av eiendommen som er ansvarlig for at eiendommen oppfyller offentligrettslige krav og vilkår for bruk. Dersom bruken ikke endres slik at den blir i samsvar med den opprinnelige bruken eller at søknad om endret bruk inngis, vil kommunen kunne pålegge eier bøter, pålegg, eller krav om tilbakeføring i henhold til godkjente byggetegninger.
Garasje:
Garasjen er utstyrt med elektrisk leddport og hydraulisk bilheis med plass til to biler. Løsningen er både trygg og plassbesparende. Det er opplegg for elbillader.
Bod/teknisk rom:
Boligen har en praktiske og ryddig teknisk rom hvor ventilasjonsanlegg, varmtvannsbereder og øvrige tekniske installasjoner er samlet. Dette gir en oversiktlig og funksjonell løsning.
Utdrag fra tilstandsrapport:
Selger har fått utarbeidet en tilstandsrapport for eiendommen. Rapporten er en teknisk gjennomgang av boligen og angir eventuelle byggetekniske avvik. I rapporten fremkommer det forhold som takstmannen mener kjøper må være særskilt oppmerksom på, herunder:
TG 2 - AVVIK SOM KAN KREVE TILTAK
Utvendig - Veggkonstruksjon: Huset er levert fra entreprenør med grunnet kledning og vurdert til å også ha mellomstrøk. Dette er vanlig praksis ved nybygg. Noe manglende overflatebehandlinger av endeved samt noe manglende tilskjæringer. Terrassebordene er trukket helt inn til panelen.
Etasjeskille/gulv mot grunn: Det er målt høydeforskjell på mellom 15-30 mm gjennom hele rommet. Tilstandsgrad 2 gis med bakgrunn i standardens krav til godkjente måleavvik. Målt høydeforskjell på mellom 10 - 20 mm innenfor en lengde på 2 meter. Tilstandsgrad 2 gis med bakgrunn i standardens krav til godkjente måleavvik. Hems: begge avvik er registrert. Tilstandsrapporten understreker samtidig at dette kan utjevne seg over tid, og at det er vanlig i nybygg de første årene.
Når det gjelder avvik på baderom, opplyses det om at arkitekten vurderer at det kun er mindre tiltak som skal til for å oppnå TG1 på baderom, eksempelvis forheng foran vindu og en mindre glassplate ved servant. Takstmannen har også foreslått disse enkle tiltakene i sin rapport. Byggematerialene er ikke vurdert som uegnede, og det er fremlagt dokumentasjon som bekrefter korrekt utført membran og fuging.
Bad i 2. etasje - Overflater, vegger og himling:
Det er vindu/dør med ikke fuktbestandige materialer i våtsonen (ved vask, dusj, badekar, osv.), løsningen eller byggematerialet er uegnet. Vinduet er i trevirke og plassert rett ved badekaret.
Bad i underetasjen: Det er vindu/dør med ikke fuktbestandige materialer i våtsonen (ved vask, dusj, badekar, osv.), løsningen eller byggematerialet er uegnet. Døren er plassert i det som er definert som våtsone.
Bad i separat del - Det er vindu/dør med ikke fuktbestandige materialer i våtsonen (ved vask, dusj, badekar, osv.), løsningen eller byggematerialet er uegnet.
Utfyllende informasjon om ovenfor nevnte bygningsdeler fremgår av vedlagte tilstandsrapport, herunder forslag til utbedringsmetoder og sjablongmessige kostnadsanslag.