Standard
Trivelig leilighet i øverste etasje.
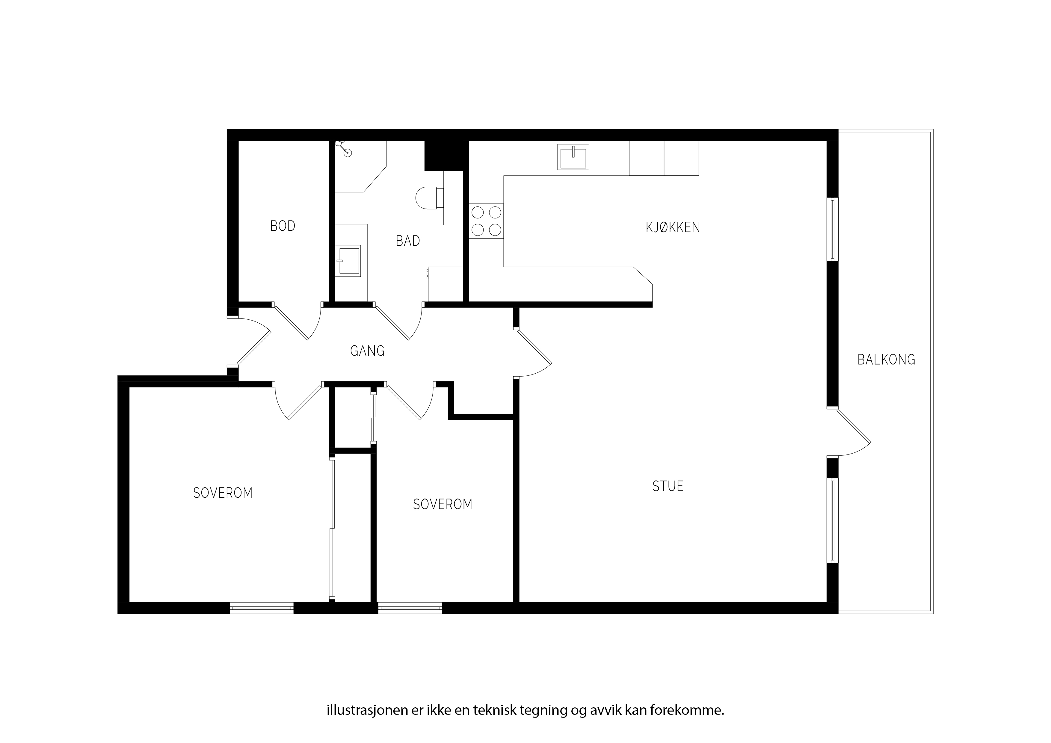
Når en kommer inn i leiligheten har en god plass til å henge fra seg yttertøy før en tar seg videre inn.
Stuen og kjøkkenet har en delvis åpen og behagelig løsning, hvor det er god plass til både sittegruppe og spisegruppe. Her kan en invitere over gode venner på en bedre middag en lørdagskveld.
Flott kjøkken med glatte fronter og laminat benkeplate. Det er integrerte hvitevarer som oppvaskmaskin, kjøleskap med frys, komfyr og platetopp. Kjøkken fra 2014.
Baderommet er helfliset med elektriske varmekabler på gulv. Innredet med vegghengt toalett, dusjkabinett, baderomsservant, skap på vegg og opplegg til vaskemaskin. Et lyst og pent baderom.
2 romslige soverom med god plass til garderobe.
Bod i leiligheten og bod i kjeller.
Vi vil gjøre spesielt oppmerksom på viktigheten av å lese igjennom rapportens TGIU (tilstandsgrad ikke undersøkt), samt TG2 og TG3 som angir avvik fra normal slitasje, høy alder, bygningsdel som må utbedres, og lignende. Boligen har fått følgende TG3 og TG2: For ytterligere informasjon om byggemåte, årsak bak tilstandsgrader, konsekvens og anslag på eventuelle utbedringskostnader, se tilstandsrapport som ligger vedlagt. Interessenter oppfordres til å kontakte bygningssakyndig ved eventuelle bygningstekniske spørsmål.
Utvendig
Balkonger, terrasser og rom under balkonger,TG2
Balkong tekket med pvc duk.
Vurdering av avvik:
- Det er avvik:
- Det er registrert vannansamling på overflaten, noe som indikerer mangelfullt fall mot avløp/sluk.
Tiltak
- Tiltak:
- Redusert fall kan medføre stående vann på overflaten, noe som over tid kan gi økt belastning på tekkingen og redusere levetiden på membranen. Stående vann kan også bidra til økt smuss- og algevekst. Vannansamling kan også gi redusert sklisikkerhet på overflaten og dermed økt risiko for fall. Forholdet bør holdes under oppsyn. Ved fremtidig vedlikehold eller rehabilitering av balkongen bør det vurderes tiltak for å bedre fallforholdene slik at vann ledes mer effektivt mot sluk/avløp. Det kan også vurderes tiltak som bedrer overflatens sklisikkerhet.
Innvendig
Etasjeskille/gulv mot grunn,TG3
Etasjeskiller er av betongdekke.
Vurdering av avvik:
- Målt høydeforskjell på over 30 mm gjennom hele rommet. Tilstandsgrad 3 gis med bakgrunn i standardens krav til godkjente måleavvik.
- Det er ved stikkprøvemålinger registrert høydeforskjell i gulvet i stue på ca. 32 mm gjennom rommet.
Tiltak
- Andre tiltak:
- Store høydeforskjeller kan gi redusert brukskomfort og kan medføre utfordringer ved montering av fast innredning eller nye gulvoverflater. Tiltak vurderes ut fra behov og ønsket standard. Avretting av gulv eller andre utbedringer kan være aktuelt ved oppgradering av overflater.
Kostnadsestimat : 20 000 - 100 000
Innvendige dører,TG2
Innvendig har boligen malte glatte dører.
Vurdering av avvik:
- Det er avvik:
- Det er påvist mindre kosmetiske skader på enkelte dørblader.
Tiltak
- Tiltak:
- Forholdet vurderes som kosmetisk og har ikke betydning for funksjon. Overflatebehandling eller utskifting av dørblad kan vurderes ved behov.
Våtrom
Etasje > Bad
Overflater Gulv,TG2
Gulvet er flislagt. Rommet har elektriske varmekabler. Fall mot sluk er målt til ca. 13mm. Høydeforskjell fra toppen av sluket til toppen av membranen ved dørterskelen er ca. 53mm.
Vurdering av avvik:
- Det er avvik:
- Gulvet er flislagt. Det er registrert at enkelte fliser har bom (hulrom under flis). Bom eller hullyd i fliser er ikke nødvendigvis et umiddelbart problem, men kan over tid føre til at fliser løsner eller at det oppstår sprekker i fuger. Det er videre påvist avvik i fallforhold til sluk sett opp mot krav i forskrift på byggetidspunktet.
Tiltak
- Tiltak:
- Bom i fliser bør holdes under oppsyn med tanke på eventuell videre utvikling, som sprekkdannelser i fuger eller løse fliser. Ved slik utvikling bør tiltak gjennomføres for å begrense skadeutvikling. Til tross for avvik i fall/høydeforskjell til sluk vil gulvet fortsatt kunne lede vann mot sluket, men med redusert effektivitet. Dette kan medføre vannansamling i enkelte områder av badet. Ved fremtidig rehabilitering av våtrommet bør fallforholdene utbedres slik at de tilfredsstiller gjeldende krav.
Etasje > Bad
Sluk, membran og tettesjikt,TG2
Badet har eldre soilsluk. Det er observert smøremembran ved sluk og ved terskel, men utførelsen er ukjent. Membranen er ført ned mot sluket, men det er ikke registrert klemring ved tilkoblingen. Det foreligger ikke dokumentasjon på utførelsen av tettesjiktet.
Vurdering av avvik:
- Det er avvik:
- Forventet brukstid for sluk er passert. Ifølge SINTEF Byggforsk er forventet normal brukstid for sluk ca. 50 år. Det er registrert rustskader i sluket. Manglende klemring ved tilkobling mellom membran og sluk gir redusert sikkerhet mot lekkasjer. Sluket er integrert i byggets konstruksjon, og utskiftning vil normalt kreve omfattende inngrep i konstruksjonen, noe som også kan berøre branntekniske forhold.
Tiltak
- Tiltak:
- Alder, rustskader og ukjent utførelse på membran/slukforbindelse gir økt risiko for lekkasjer over tid. Forholdet bør holdes under oppsyn. Ved fremtidig rehabilitering av våtrommet anbefales utskiftning av sluk og etablering av nytt tettesjikt med forskriftsmessig tilkobling til sluk.
Etasje > Bad
Sanitærutstyr og innredning,TG2
Rommet har veggmontert toalett, dusjkabinett og opplegg for vaskemaskin.
Vurdering av avvik:
- Det er ikke påvist tilfredsstillende løsning for å synliggjøre lekkasje fra innebygget sisterne.
- Det er ikke fremlagt dokumentasjon på bruk av lekkasje pose eller boks på innebygd sisterne. Over halvparten av forventet brukstid er passert for dusjkabinettet. Ifølge SINTEF Byggforsk er forventet brukstid for dusjkabinett ca. 20 år.
Tiltak
- Andre tiltak:
- Manglende løsning for synliggjøring av lekkasje øker risikoen for skjulte vannskader i veggkonstruksjon og tilstøtende bygningsdeler. Eventuelle lekkasjer kan bli stående uoppdaget over tid, med fare for fuktskader, råte og muggdannelse. Det anbefales å etablere forskriftsmessig løsning for synliggjøring av lekkasje, eksempelvis ved montering av godkjent lekkasjeboks eller lekkasjepose tilknyttet innebygget sisterne. Alternativt må dokumentasjon på korrekt utførelse fremlegges. Dusjkabinettet fungerer på befaringsdagen og det er ikke registrert behov for utskifting. For å oppnå tilstandsgrad 0 eller 1 må dusjkabinettet skiftes ut. Det må påregnes utskifting som følge av alder og normal slitasje over tid.
Tekniske installasjoner
Vannledninger,TG2
Innvendige vannledninger er av kobber.
Vurdering av avvik:
- Det er avvik:
- Forventet brukstid er passert på innvendige vannledninger. Anbefalt brukstid på innvendige vannrør av kobber er i følge Sintef byggforsk ca 50 år
Tiltak
- Tiltak:
- Eldre vannrør av kobber kan få korrosjon innvendig, som over tid kan føre til lekkasjer eller redusert vanntrykk. Selv om det ikke er registrert lekkasjer på befaringsdagen, øker risikoen for skader etter hvert som rørene eldes. Det er ikke behov for umiddelbare tiltak ettersom anlegget fungerer som tiltenkt i dag. Ut fra alder bør det imidlertid påregnes utskifting av røropplegget ved neste oppgradering eller ved oppussing av våtrom. Ved oppgradering anbefales bruk av moderne rør-i-rør-system i henhold til dagens forskrifter.
Avløpsrør,TG2
Det er avløpsrør av støpejern og plast.
Vurdering av avvik:
- Det er avvik:
- Forventet brukstid er passert på innvendige avløpsledninger. Anbefalt brukstid på innvendige avløpsrør er i følge Sintef byggforsk ca 50 år
Tiltak
- Tiltak:
- Det er ikke behov for umiddelbare tiltak, da rørene fungerer som tiltenkt i dag. Ved oppgradering av våtrom eller ved fremtidige vedlikeholdsarbeider bør utskifting vurderes for å sikre god driftssikkerhet og redusere risiko for lekkasjer.
Varmesentral,TG2
Det er installert varmepumpe.
Vurdering av avvik:
- Mer enn halvparten av forventet brukstid på varmesentral er oppbrukt.
- Normalt forventet brukstid på varmepumper er 12-15 år.
Tiltak
- Det er ikke behov for utbedringstiltak siden varmesentralen fungerer i dag, men ut ifra alder kan skader plutselig oppstå på eldre anlegg.