4878202_1a
Stephan Erichsen v/Proaktiv Eiendomsmegling Sola har gleden av å presentere Sandangersvingen 32 for salg. ( 1 av )
4878213_1a
Her får du en lekker, vertikaldelt tomannsbolig med god planløsning, funksjonelle løsninger og et stilfullt uttrykk. ( 2 av )
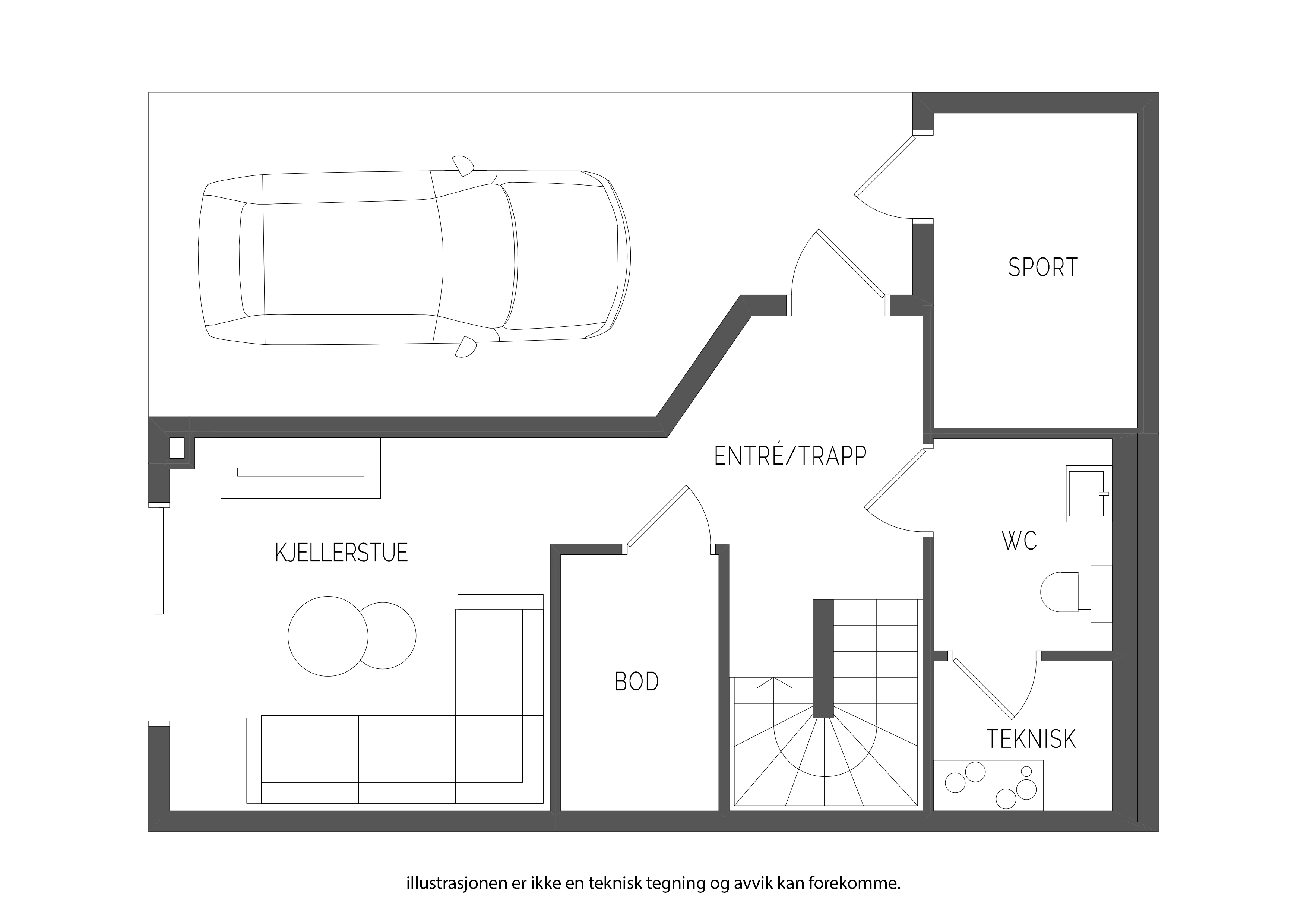
4878166_1a
Plantegning 1. etasje. Kjellerstuen er lukket igjen med dør og brukes i dag som et soverom. ( 3 av )
4878214_1a
Praktisk sportsbod ved inngangsparti. ( 4 av )
4878204_1a
Lys og innbydende entré. ( 5 av )
4878205_1a
God plass til oppbevaring av sko og ytterklær. Parkett på gulv og listefri utførelse mellom vegg og tak. Gode lagringsmuligheter i bod ved trapp og under trappen. ( 6 av )
4878198_1a
Romslig kjellerstue/soverom med tilkomst til stor terrasse. ( 7 av )
4878199_1a
Blir i dag brukt som soverom, med god plass til dobbeltseng, garderobeløsning, pult og tv-seksjon. ( 8 av )
4878206_1a
Pent opparbeidet uteområde på 40 m² med god plass til flere oppholdssoner. ( 9 av )
4878207_1a
( 10 av )
4878208_1a
Med nok av plass til både sittegruppe og grill ligger alt til rette for å kunne nyte lange, solrike dager og hyggelige sommerkvelder i godt selskap. ( 11 av )
4878209_1a
Deler av uteområde er steinbelagt og resten består av terrassebord. ( 12 av )
4878201_1a
Praktisk gjestetoalett med moderne innredning. Badet har vegghengt toalett, servant, god oppbevaringsplass i speil og tidsriktig fargevalg på vegg. ( 13 av )
4878164_1a
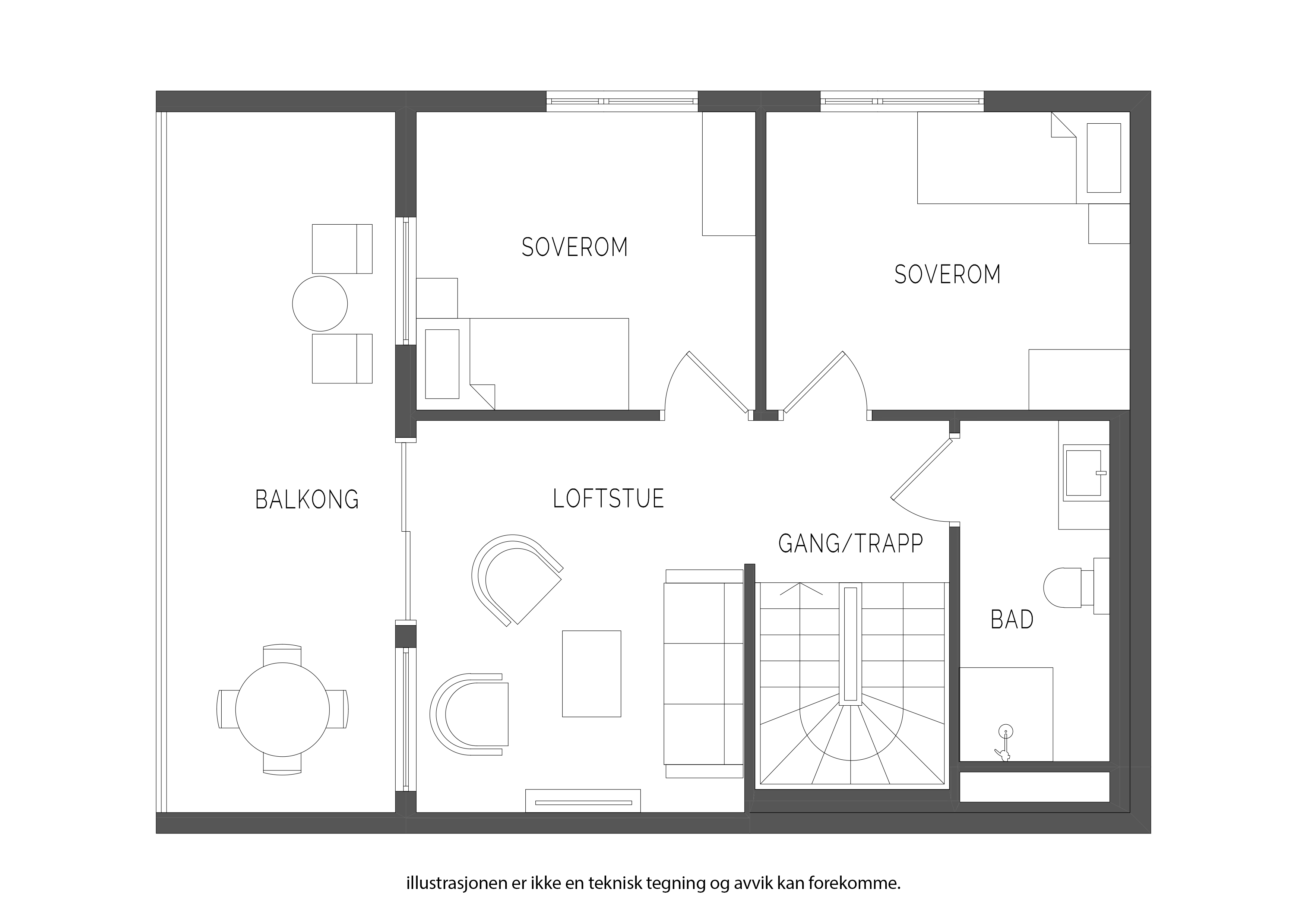
Plantegning 2. etasje ( 14 av )
4878196_1a
( 15 av )
4878179_1a
Romslig stue hvor det kan innredes med både sittegruppe og tv-seksjon. ( 16 av )
4878180_1a
Stue og kjøkken ligger i en åpen og sosial løsning. ( 17 av )
4878203_1a
Den praktiske inndelingen skaper en naturlig flyt mellom sonene og gjør allrommet til et naturlig samlingspunkt for hele familien. ( 18 av )
4878181_1a
Naturlig plass til spisebord av ønsket størrelse i allrom. ( 19 av )
4878182_1a
Fra kjøkken kan man enkelt underholde middagsgjestene samtidig som man kokkelerer. ( 20 av )
4878183_1a
Lekkert kjøkken fra HTH. ( 21 av )
4878184_1a
Hvite, slette fronter og rikelig med skap- og benkplass. Hvitevarer som kombiskap, stekeovn, platetopp og oppvaskmaskin medfølger som hovedregel i handelen. ( 22 av )
4878185_1a
Kjøkkenøya gir godt med arbeidsflate til matlaging og praktisk kjøkkenbruk. ( 23 av )
4878188_1a
Hovedsoverom av god størrelse. ( 24 av )
4878191_1a
God plass til dobbeltseng og garderobeløsning. ( 25 av )
4878173_1a
Utsikt fra hovedsoverom. ( 26 av )
4878194_1a
Delikat, helfliset bad med moderne innredning og vannbåren varme i gulv. ( 27 av )
4878192_1a
Badet har vegghengt toalett, dusjhjørne, speil med belysning og god oppbevaringsplass under servant. ( 28 av )
4878193_1a
Fra bad har man tilkomst til vaskerom med gjennomtenkte løsninger som gjør hverdagen enklere. Her er det god skapplass, benkeplate, utslagsvask og opplegg til vaskemaskin. Belegg på gulv. ( 29 av )
4878165_1a
Plantegning 3. etasje ( 30 av )
4878170_1a
Takvindu i trappeoppgang som bidrar til en god følelse. I 3.etg. har du et praktisk koffertloft med god lagringsplass. ( 31 av )
4878216_1a
Lys og fin loftstue. ( 32 av )
4878217_1a
Her har man tilkomst til balkong. ( 33 av )
4878218_1a
Kan innredes med sittegruppe og tv-seksjon. ( 34 av )
4878167_1a
Stor, overbygget balkong. ( 35 av )
4878211_1a
God takhøyde og plass til flere oppholdssoner. ( 36 av )
4878219_1a
3. etasje har to romslige soverom. ( 37 av )
4878168_1a
Store vindusflater som slipper inn rikelig med dagslys og gir en luftig romfølelse. ( 38 av )
4878169_1a
Skråtak som gir god takhøyde. ( 39 av )
4878171_1a
God plass til seng, pult og garderobeløsning. ( 40 av )
4878172_1a
( 41 av )
4878175_1a
Flott helfliset bad med moderne innredning. ( 42 av )
4878176_1a
Vannbåren varme i gulv som bidrar til ekstra komfort i hverdagen og energieffektiv oppvarming. ( 43 av )
4878177_1a
Badet har vegghengt toalett, dusjhjørne, speil med belysning og god oppbevaringsplass i vegghengt baderomsmøbel. ( 44 av )
4878212_1a
Gode parkeringsmuligheter i gårdsrom. ( 45 av )
4878215_1a
Gjesteparkering like ved boligen og gode kollektivmuligheter like ved. ( 46 av )
4878189_1a
Beboere i Sandangersvingen har første prioritet på barnehagen like ved. ( 47 av )
4878160_1a
Kort vei til Sola sentrum sine mange fasiliteter. Her har du det meste du trenger i nærområde for å trives i lang tid. ( 48 av )
4878159_1a
Sola kulturhus ( 49 av )
4878155_1a
Barnehager og skoler i alle trinn i gåavstand fra boligen. ( 50 av )
4878154_1a
Nærhet til kjekke aktivitetstilbud. ( 51 av )
4878158_1a
Stort utvalg av fotballbaner like ved. ( 52 av )
4878153_1a
Kort avstand til Sola golfklubb med flotte baner. I tillegg til egen golfbane på Skadberg. ( 53 av )
4878156_1a
Åsenhallen med flere gode idrettstilbud. ( 54 av )
4878157_1a
Sola turnhall ( 55 av )
4878163_1a
Joa Jordbær ligger like ved og byr på jordbær i en helt egen særklasse. Disse gir jeg min personlige anbefaling. ( 56 av )

Sandangersvingen 32

Se alle bilder (0)
4878202_1a
4878213_1a
4878166_1a
4878214_1a
4878204_1a
4878205_1a
4878198_1a
4878199_1a
4878206_1a
4878207_1a
4878208_1a
4878209_1a
4878201_1a
4878164_1a
4878196_1a
4878179_1a
4878180_1a
4878203_1a
4878181_1a
4878182_1a
4878183_1a
4878184_1a
4878185_1a
4878188_1a
4878191_1a
4878173_1a
4878194_1a
4878192_1a
4878193_1a
4878165_1a
4878170_1a
4878216_1a
4878217_1a
4878218_1a
4878167_1a
4878211_1a
4878219_1a
4878168_1a
4878169_1a
4878171_1a
4878172_1a
4878175_1a
4878176_1a
4878177_1a
4878212_1a
4878215_1a
4878189_1a
4878160_1a
4878159_1a
4878155_1a
4878154_1a
4878158_1a
4878153_1a
4878156_1a
4878157_1a
4878163_1a

Sandangersvingen 32

Prisantydning:
Fra Kr 6390000,00
til Kr 0,00
Totalpris:
Kr 6569000,00
BRA:
158,00 - 0,00
BRA-i:
152 - 0
Soverom:
4 - 0
Boligtype:
Tomannsbolig
Eierform:
Eiet tomt
Byggeår:
2019
Etasje:
0
Tomteareal:
175

Moderne og innholdsrik tomannsbolig av høy standard, beliggende i veletablert boligområde - 3 bad, 2 stuer og 4 soverom

Ansvarlig megler:
Stephan Michael Erichsen

Daglig leder / Partner / Eiendomsmegler MNEF

Visning

18.11.2025 16:30 - 17:30

Legg visning til i kalender 18.11.2025 16:30 18.11.2025 17:30 Central European Time Visning av Sandangersvingen 32 Boligvisning av Sandangersvingen 32 Sandangersvingen 32

Passer ikke visningstidspunktene?

Visningspåmelding
Avtal privatvisning her

Sandangersvingen 32

image005

Nøkkelinformasjon

plus_G_2025

BELIGGENHET

plus_G
minus_G

BESKRIVELSE AV EIENDOMMEN

plus_G
minus_G

OFFENTLIGE FORHOLD

plus_G
minus_G

PRISANTYDNING INKLUDERT OMKOSTNINGER

plus_G
minus_G

ØVRIGE KJØPSFORHOLD

plus_G
minus_G

Dokumenter

plus_G_2025

Del boligen

facebook-gold
Twitter-gold

Lurer du på noe om denne boligen?

Ta kontakt under via skjemaet.


Relaterte boliger

Øvrehusvegen 37P
2590000,00  0,00

Øvrehusvegen 37P

Sola ­ TJELTA
Flott 3-roms endeleilighet med moderne standard, på bakkeplan med pent felles opparbeidet uteområde og god planløsning

Totalpris:

Kr 2791313,00

BRA-i:

62 m²
Åsenstubben 1
3775000,00  0,00

Åsenstubben 1

Sola ­ SOLA
Moderne 3-roms hjørneleilighet av høy standard med både terrasse og balkong - Parkering m/elbillader

Totalpris:

Kr 4109373,00

BRA-i:

75 m²
Se flere boliger
Bolig til salgs

Inspirasjon

Inspirerende interiørbilder fra norske hjem.
sov1
Soverom
kjo1
Kjøkken
stue
Stue

Boligartikler

Nyttig informasjon, råd og inspirasjon for deg som er opptatt av bolig.
aaletidligute
Aktuelt

Kapret først drømmeboligen, solgte egen bolig få dager senere

Konseptet vårt, Tidlig ute, legger til rette for et stressfritt boligsalg på kundens premisser. Poenget er å være ute i god tid, slik at prosessen...
vo4
Aktuelt

178 dager uten bud; - Proaktiv solgte boligen min etter første visning

Huset i Vestre Olsvikveg hadde mistet alt av moment etter et halvt år ute i markedet. Da Proaktiv ved Jon Kristian Røsok kom inn i bildet ble...
n_r-16
Aktuelt

Drømmer du om å drive ditt eget meglerkontor?

Proaktiv Eiendomsmegling er alltid på utkikk etter flinke folk som ønsker å skape sin egen suksess. Er du en målrettet og verdiskapende megler, med...