4777865_1a
Flott bolig med mye utstyr og gode løsninger. ( 1 av )
4777909_1a
Om sommeren nytes spektakulære solnedganger fra den kjekke hagen. ( 2 av )
4777911_1a
Rask og trappefri adkomst fra garasje og stort gårdsrom til kjøkken i hovedetasjen. ( 3 av )
4777894_1a
Hele 1. etasje er viet stue, kjøkken og et ekstra baderom. ( 4 av )
4777888_1a
Den langstrakte utsikten er det første en legger merke til. ( 5 av )
4777889_1a
Store vindusflater og ekstra takhøyde gir en god atmosfære til allrommet. ( 6 av )
4777890_1a
Et ypperlig samlingspunkt for familien. ( 7 av )
4777884_1a
Kjøkken i åpen løsning hvor vinkelform tydelig definere rommet opp i to soner ( 8 av )
4777885_1a
Innholdsrik kjøkkeninnredning i tidløs stil med slette fronter og gripekant. ( 9 av )
4777887_1a
Fin gjennomgående helhetlig stil med lune, tidsriktig rom. ( 10 av )
4777886_1a
Smarthus (Fibaro - Z-wave) med mange supre funksjoner. ( 11 av )
4777892_1a
Elko Plus design på brytere og stikkontakter. Dimmere på nesten all belysning. ( 12 av )
4777891_1a
Varmekabler i tilnærmet alle gulv innendørs (ikke på hems). ( 13 av )
4777895_1a
Bad 1 av 2. Pent, flislagt baderom som er lettstelt og funksjonelt. ( 14 av )
4777896_1a
Flislagt entré. ( 15 av )
4777875_1a
Sokkeletasje med 3 soverom, multifunksjonsrom med opplegg til kjøkken, baderom og vaskerom/bi-inngang. Det ene soverommet og vaskerommet er ikke byggemeldt, se beskrivelse under "ferdigattest". ( 16 av )
4777873_1a
Bjelkelag er isolert i hovedetasje. Under gulv er det lagt ca. 20mm trinnlydsplater. Det er lagt dobbel gips i taket til det meste av underetasjen. Dette ble gjort siden eier leide ut deler av egen bolig de første årene. ( 17 av )
4777874_1a
Fint multifunksjonsrom i senter med innfelt belysning. Her er det også lagt frem opplegg til kjøkkenløsning. Ypperlig rom til lek, hobby og gaming ( 18 av )
4777872_1a
Et av soverommene med utgang til hage. ( 19 av )
4777871_1a
Lys og pent laminat fra Pergo og hvite overflater i fin kombinasjon med lune fargevalg. ( 20 av )
4777876_1a
Sokkeletasje ( 21 av )
4777877_1a
Sokkeletasje ( 22 av )
4777879_1a
Sokkeletasje ( 23 av )
4777878_1a
Sokkeletasje ( 24 av )
4777870_1a
Bad 2 av 2 - Fliser på gulv og i dusjsone. Toalett, servant i skuffeseksjon og dusj med glassdører som kan foldes mot vegg. Det er opplegg til vaskemaskin. ( 25 av )
4777898_1a
Flott loft med teppefliser og innfelt belysning. ( 26 av )
4777899_1a
( 27 av )
4777897_1a
( 28 av )
4777902_1a
( 29 av )
4777883_1a
Fra loftet er det utgang til stilig takterrasse. ( 30 av )
4777881_1a
( 31 av )
4779344_1a
1. etasje. ( 32 av )
4780886_1a
Sokkeletasje - deler ikke byggemeldt. ( 33 av )
4780887_1a
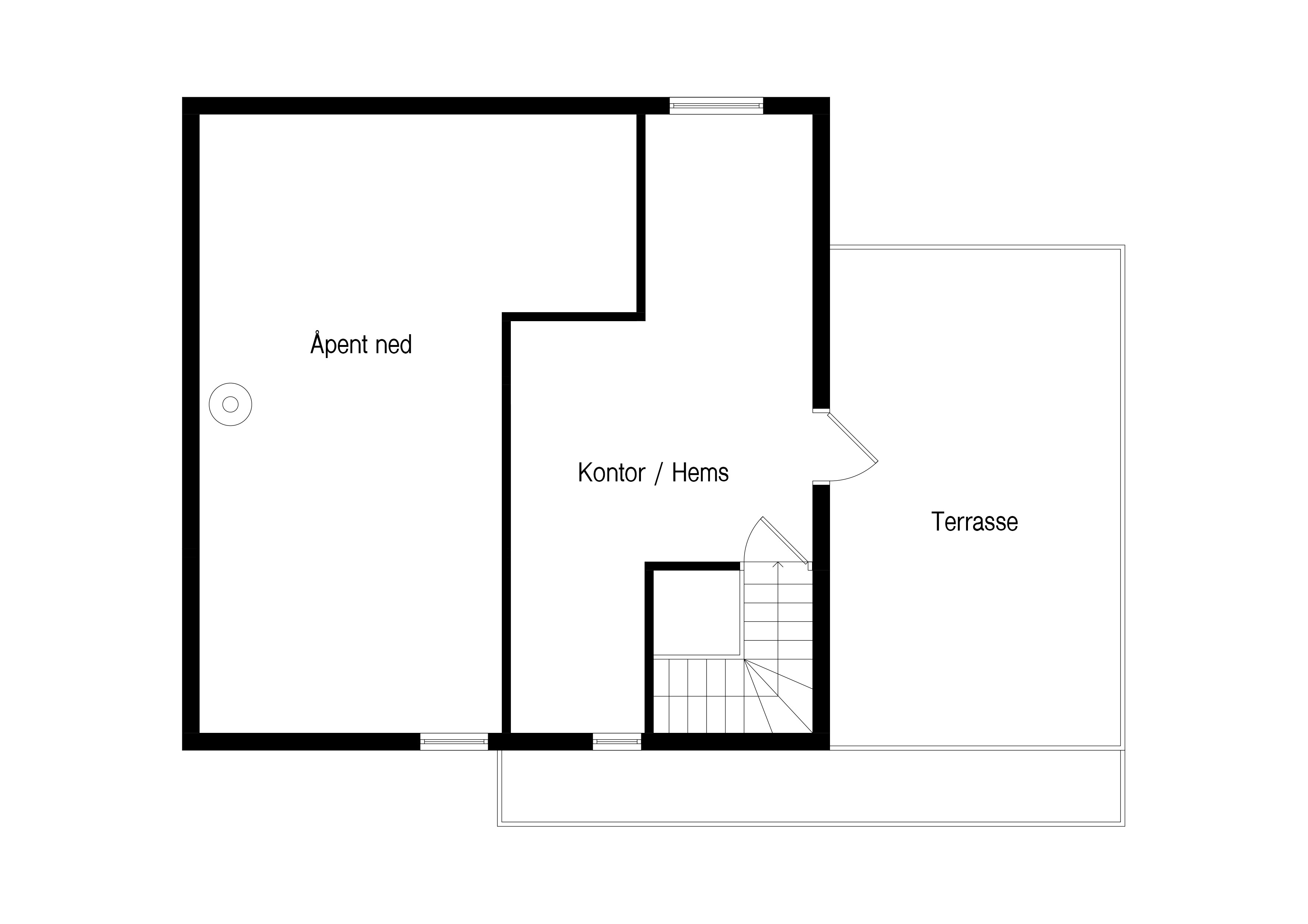
Loft ( 34 av )
4777867_1a
Fra garasjen er det gjennomgang til terrasse og hage i front. ( 35 av )
4777910_1a
Elbillader 3-fase, 32A (22kW). ( 36 av )
4777904_1a
I hagen er bed med jordbær, bringebær, blåbær, rips, solbær og stikkelsbær. ( 37 av )
4777903_1a
Hagebod under trappen. ( 38 av )
4777908_1a
( 39 av )
4779965_1a
Blinkskudd fra eier. ( 40 av )
4779964_1a
Blinkskudd fra eier. ( 41 av )
4779962_1a
Blinkskudd fra eier. ( 42 av )
4777907_1a
( 43 av )
4777906_1a
( 44 av )
4777868_1a
Det er installert 8,4 kWp solceller på taket. ( 45 av )
4777869_1a
Strålende boligfelt for deg som søker naturskjønne omgivelser i kombinasjon med akkurat passe antall naboer. ( 46 av )
4780649_1a
Bogafjell har et flott fotballanlegg, Bogafjell kirke og Bogafjell senter med dagligvarebutikken Meny, apotek, treningssenter, Europris og legesenter. ( 47 av )

Tyttebærstien 4

Se alle bilder (0)
4777865_1a
4777909_1a
4777911_1a
4777894_1a
4777888_1a
4777889_1a
4777890_1a
4777884_1a
4777885_1a
4777887_1a
4777886_1a
4777892_1a
4777891_1a
4777895_1a
4777896_1a
4777875_1a
4777873_1a
4777874_1a
4777872_1a
4777871_1a
4777876_1a
4777877_1a
4777879_1a
4777878_1a
4777870_1a
4777898_1a
4777899_1a
4777897_1a
4777902_1a
4777883_1a
4777881_1a
4779344_1a
4780886_1a
4780887_1a
4777867_1a
4777910_1a
4777904_1a
4777903_1a
4777908_1a
4779965_1a
4779964_1a
4779962_1a
4777907_1a
4777906_1a
4777868_1a
4777869_1a
4780649_1a

Tyttebærstien 4

Prisantydning:
Fra Kr 5800000,00
til Kr 0,00
Totalpris:
Kr 5975750,00
BRA:
159,00 - 0,00
BRA-i:
135 - 0
Soverom:
2 - 0
Boligtype:
Enebolig
Eierform:
Eiet tomt
Byggeår:
2016
Etasje:
0
Tomteareal:
298

Stilig bolig med fantastisk utsikt | Innholdsrik og tilrettelagt planløsning | God standard og mye utstyr | Garasje

Ansvarlig megler:
Øyvind Rege

Partner / Eiendomsmegler MNEF

Visning

Boligen er solgt og er ikke lengre tilgjengelig for visning. 

Tyttebærstien 4

image005

Nøkkelinformasjon

plus_G_2025

BELIGGENHET

plus_G
minus_G

BESKRIVELSE AV EIENDOMMEN

plus_G
minus_G

OFFENTLIGE FORHOLD

plus_G
minus_G

PRISANTYDNING INKLUDERT OMKOSTNINGER

plus_G
minus_G

ØVRIGE KJØPSFORHOLD

plus_G
minus_G

Dokumenter

plus_G_2025

Del boligen

facebook-gold
Twitter-gold

Lurer du på noe om denne boligen?

Ta kontakt under via skjemaet.


Relaterte boliger

Sandvedmarka 9
5790000,00  0,00

Sandvedmarka 9

Sandnes ­ SANDNES
Lekkert enderekkehus med to stuer og tre soverom | Separat vaskerom | Carport | Hage

Totalpris:

Kr 5954000,00

BRA-i:

126 m²
Buggeland 41A
4190000,00  0,00

Buggeland 41A

Sandnes ­ SANDNES
Rålekker 3-roms endeleilighet med høy standard & moderne kvaliteter. Solrikt uteområde, garasje m/elbil-lader, 2.etasjer

Totalpris:

Kr 4309000,00

BRA-i:

105 m²
Granlisvingen 9
4890000,00  0,00

Granlisvingen 9

Sandnes ­ FIGGJO
Naturskjønt og innholdsrikt | 4 sov, 2 stuer og 2 bad | Hage grenser til friområde | Barnevennlig i rolig blindgate

Totalpris:

Kr 5031500,00

BRA-i:

137 m²
Kvednaberget 5A
5790000,00  0,00

Kvednaberget 5A

Sandnes ­ FIGGJO
Innholdsrik generasjonsbolig med 3 stuer, 2 kjøkken og 4 (7) soverom. Sentral beliggenhet med flott utsikt!

Totalpris:

Kr 5954000,00

BRA-i:

358 m²
Skogsbakken 8
12000000,00  0,00

Skogsbakken 8

Sandnes ­ SANDNES
Skogsbakken - Funksjonalistisk villa tegnet av Tonning & Øglænd - 280 m2 BRA over 2 plan - 1476 m2 parkmessig tomt

Totalpris:

Kr 12319250,00

BRA-i:

244 m²
Jærveien 5
4290000,00  0,00

Jærveien 5

Sandnes ­ Sandnes
Lekker og moderne leilighet med balkong | Sentral beliggenhet | 2 soverom

Totalpris:

Kr 4411500,00

BRA-i:

62 m²
Skaraveien 22
9600000,00  0,00

Skaraveien 22

Sandnes ­ SANDNES
Villa på 244 kvm BRA m/godkjent utleiedel og unike løsninger. Rå arkitektur og utsikt. Romslig garasje og nydelig hage

Totalpris:

Kr 9859250,00

BRA-i:

235 m²
Rogneveien 8
6300000,00  0,00

Rogneveien 8

Sandnes ­ SANDNES
Enebolig med fantastisk utsikt i attraktivt område - 853 kvm tomt

Totalpris:

Kr 6476750,00

BRA-i:

154 m²
Jærveien 22C
9900000,00  0,00

Jærveien 22C

Sandnes ­ Sandnes
Eksklusivt, nyoppført townhouse (174 kvm BRA) m/3sov/3bad/3 stuer - takterrasse - parkering - utleiemulighet

Totalpris:

Kr 9943250,00

BRA-i:

166 m²
Jærveien 22A
8900000,00  0,00

Jærveien 22A

Sandnes ­ Sandnes
Svært påkostet enebolig i eksklusive materialer som sink, aluminium, tegl (takstein) og impregnert tre.

Totalpris:

Kr 9140750,00

BRA-i:

122 m²
Se flere boliger
Bolig til salgs

Inspirasjon

Inspirerende interiørbilder fra norske hjem.
sov1
Soverom
kjo1
Kjøkken
stue
Stue

Boligartikler

Nyttig informasjon, råd og inspirasjon for deg som er opptatt av bolig.
aaletidligute
Aktuelt

Kapret først drømmeboligen, solgte egen bolig få dager senere

Konseptet vårt, Tidlig ute, legger til rette for et stressfritt boligsalg på kundens premisser. Poenget er å være ute i god tid, slik at prosessen...
vo4
Aktuelt

178 dager uten bud; - Proaktiv solgte boligen min etter første visning

Huset i Vestre Olsvikveg hadde mistet alt av moment etter et halvt år ute i markedet. Da Proaktiv ved Jon Kristian Røsok kom inn i bildet ble...
n_r-16
Aktuelt

Drømmer du om å drive ditt eget meglerkontor?

Proaktiv Eiendomsmegling er alltid på utkikk etter flinke folk som ønsker å skape sin egen suksess. Er du en målrettet og verdiskapende megler, med...