Byggemåte
UTVENDIG
Taktekkingen er av pappshingel. Taket er besiktiget fra taknivå. Takrenner, beslag og nedløp i plastbelagt stål og plast. Veggene har trekonstruksjon av ukjent utførelse. Fasade/kledning har stående bordkledning. Takkonstruksjonen har W-takstoler i tre. Adkomst til konstruksjonen
fra luke i himlingen på et soverom. Bygningen har PVC vinduer med 3-lags glass. Bygningen har malte hovedytterdører. Bygningen har malt hovedytterdører. Bygningen har skyvebalkongdør i PVC.
Terrasse i trevirke fundamentert på lettbetongblokker mot fjell. Adkomst fra stue, inngangsparti og hage. Terrasse i trevirke fundamentert på lettbetongblokker mot fjell. Adkomst hagen. Terrasse over carport utført med dekke av betong/lettbetong. Overflaten er tekket med skifer. Det er etablert beslag og takrenner for bortledning av vann. Rekkverk er utført i trevirke. Konstruksjonen fungerer som tak over underliggende rom (carport/bod), og stiller derfor krav til tett sjikt og kontrollert vannavrenning. Tretrapper med adkomst fra carport til boligen, samt på boligens vestside fra gressplen til terrassen.
INNVENDIG
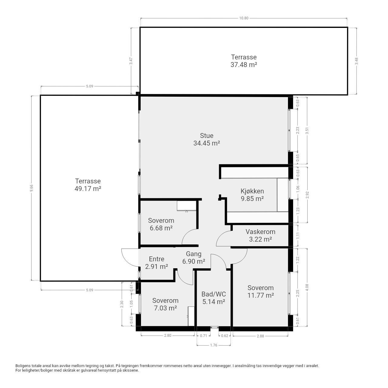
Innvendig er det gulv av laminat og fliser. Veggene har malte plater og malte overflater. Innvendige tak har malte plater og himlingsplater. Boligen har etasjeskille i trevirke mellom underetasjen og 1.etasje,
samt betonggulv mot terrenget i underetasjen. Boligen har elementpipe og vedovn. Sotluke i kjelleren.
Gulvet har laminat. Veggene har plater. Hulltaking er foretatt uten å påvise unormale forhold. Hulltaking er foretatt ved/i I ytterhjørnet på soverommet i underetasjen. Bygningen har krypkjeller under trebjelkelag og stubbegulv. Innvendig har boligen malte fyllingsdører.
TEKNISKE INSTALLASJONER
Utenpåliggende og skjulte vannrør i kobber. Inntak og stoppekran ved varmtvannsberederen i krypkjelleren. Det er avløpsrør av plast. Boligen har naturlig ventilasjon gjennom friskluftventiler på
soverommene og i stuen/kjøkkenet. Forserte avtrekk fra bad, vaskerom og kjøkken. Luft/luft varmepumpe.
Varmtvannstanken er på ca. 300 liter og er plassert i krypkjelleren. Ingen synlig datering, men kan stamme fra byggeåret. Hovedsikring. strømmåler og automatsikringer i skapet på kjøkkenet. Jordfeilbrytere på alle kurser. Overspenningsvern. Anlegget er delvis skjult/delvis åpent. Det vil si at kabelføringer og lignende både er skjult i vegger og himling, men noe klamret på listverk og andre overflater. Lamper stikk-kontakter og brytere er synlig. Belysning i boligen består i hovedsak av lamper og
downlights.
TOMTEFORHOLD
Det er byggegrunn av fjell. Synlige fjell i krypkjelleren. Det er ingen synlig grunnmursplast rundt boligen. Fuktsikring og drenering antas å være fra byggeåret, men det foreligger ingen dokumentasjon eller sikre opplysninger om dette. Bygningen har grunnmur i lettklinkerblokker. Forstøtningsmurer er av betong og lettbetong, samt en mindre støttemur i trevirke. Det er viktig at terreng heller riktig i områder ved grunnmuren. Overflatevann skal hurtigst mulig vekk for å unngå unødvendig fuktbelastning på utvendig fuktsikring og drenering. Terrenget bør ha fall på minst 1:50 fra bygningen i en avstand på minst 3 m. Fallforhold ved grunnmur er vurdert som ok basert på visuelle observasjoner uten måling.
TG2 - Avvik som kan kreve tiltak:
- Utvendig > Taktekking: Mer enn halvparten av forventet brukstid er passert på taktekkingen.
Taktekking består av shingel fra ca. 1981. Tekkingen har passert forventet brukstid. Ved befaring fremstår taket generelt uten synlige lekkasjer, men det er registrert enkelte spiker som har arbeidet seg opp gjennom tekkingen. Videre fremstår shingelen som sprø, noe som er typisk for eldre taktekking og indikerer nedbrutt materiale og redusert fleksibilitet.
- Utvendig > Nedløp og beslag: Mer enn halvparten av forventet brukstid er passert på renner/nedløp/beslag. Det er ikke registrert funksjonelle feil eller synlige lekkasjer ved befaring, men alder tilsier økt risiko for slitasje, korrosjon og nedsatt funksjon over tid. Det
regnet ikke på befaringsdagen, så en fullverdig vurdering av funksjonen er vanskelig.
- Utvendig > Veggkonstruksjon: Det er ingen musesperre i nedre kant av konstruksjon. Dette er synlig dersom man titter opp bak overliggerene på panelene.
- Utvendig > Takkonstruksjon/Loft: Det er påvist fuktskjolder/skader i takkonstruksjonen.
Noen skjolder ved gjennomføringen. Slike observasjoner gjøres ofte og betraktes som normalt på 44-45 år gamle bygg. Det var ingen tegn til pågående lekkasje på befaringsdagen.
- Utvendig > Terrasser i trevirke: Det er værslitt/oppsprukket trevirke/trepaneler. Konstruksjonene har skjevheter.
- Utvendig > Terrasse over carporten: Balkong/terrasse ligger over innredede boligrom, usikker konstruksjon. Konstruksjonsutforming gir økt fare for skader. Det er opplyst at vann blir liggende på overflaten, noe som tyder på utilstrekkelig fall mot avrenning. Samtidig er det usikkerhet knyttet til oppbygning og tilstand på tettesjiktet under skiferdekket. Skifer eller fuger er ikke et tett materiale, og konstruksjonen er derfor avhengig av at membranen under fungerer som forutsatt. Det er også registrert/opplyst kalkutslag på grunnmur, noe som indikerer fukttransport gjennom konstruksjonen.
- Utvendig > Utvendige trapper: Konstruksjonene har skjevheter. Trappene i uteområdene har synlig slitasje/manglende vedlikehold i trevirket. I tillegg er det registrert skjevheter, noe som tyder på ustabile grunnforhold og bevegelse i underlaget.
- Innvendig > Overflater: Det er påvist andre avvik: Ved dunking på enkelte fliser i underetasjen ble det avdekket en hul lyd, som indikerer «bom». Dette betyr at flisene ikke har tilfredsstillende vedheft til underlaget over hele flisens areal. Mangelfull liming under leggingen kan være årsaken. Gjelder 4-5 fliser.
- Innvendig > Etasjeskille/gulv mot grunn: Det er målt høydeforskjell på mellom 15-30 mm gjennom hele rommet. Tilstandsgrad 2 gis med bakgrunn i standardens krav til godkjente måleavvik.
- Innvendig > Pipe og ildsted: Ildfast plate mangler på gulvet under sotluke/feieluke på pipe.
Det er ikke etablert ildfast plate eller lignende på gulvet foran sotluken. Noe slitasje/avskalling av pusslag på pipen utvendig. Avskallinger av pusslag gjør pipen mer eksponert mot vann.
- Innvendig > Krypkjeller: Det er ikke adkomst til deler av krypkjelleren. Krypkjeller er kun vurdert i tilgjengelige deler. Krypkjeller regnes for å være en risikokonstruksjon som er utsatt for fukt- og råteskader i bunnsvill, trebjelkelaget og andre tilstøtende konstruksjoner, på grunn av fuktighet fra grunnen og kondensering ved temperaturforskjeller. Selv om det ikke er avdekket tegn på skader, betyr ikke dette nødvendigvis at det ikke foreligger skader i eller i forbindelse med krypkjelleren. Det er manglende fuktsperre på bakken. Deler av krypkjelleren er ikke tilgjengelig for kontroll som følge av oppbygget gulv. Krypkjellere er generelt utsatt for fuktpåvirkning, og bruk av trevirke i slike konstruksjoner er uheldig med tanke på fuktrisiko. Det opplyses i egenerklæring at det kan forekomme tilsig av fukt/vann i krypkjelleren ved store nedbørsmengder. Dette var ikke synlig for meg under befaringen. Krypkjeller er fra byggeår og har en løsning som er tidstypisk for oppføringsperioden, uten fuktsperre mot grunnen.
- Tekniske installasjoner > Vannledninger Kobber: Mer enn halvparten av forventet brukstid er passert på innvendige vannledninger.
- Tekniske installasjoner > Avløpsrør: Mer enn halvparten av forventet brukstid er passert på innvendige avløpsledninger.
- Tekniske installasjoner > Andre VVS-installasjoner: Mer enn halvparten av forventet brukstid på VVS-installasjoner er oppbrukt. Det har ikke vært avholdt service på anlegget senere år.
- Tekniske installasjoner > Varmtvannstank: Det er ikke påvist tilfredsstillende avrenning eller annen kompenserende løsning fra varmtvannstank. Det er ikke påvist tilfredsstillende el-tilkobling av varmtvannstank iht. gjeldende forskrift. Det er påvist at varmtvannstank er over 20 år.
- Tomteforhold > Fuktsikring og drenering: Mer enn halvparten av forventet levetid på drenering er overskredet. Det er ikke registrert opplysninger om utskifting eller vesentlig oppgradering av dreneringen. På grunn av byggets alder må det derfor påregnes at dreneringen kan være svekket eller nær slutten av forventet levetid. Tiltak bør vurderes i sammenheng med opplysninger om fuktforhold i krypkjeller og ved grunnmur, samt terrengforhold og overvannshåndtering rundt bygningen. Stedvis har grunnmursplasten har topplist (klemlist), men denne er stedvis kuttet og utilstrekkelig festet mot grunnmuren. Løse eller manglende fester kan føre til at listen ikke klemmer plasten godt nok inntil veggen, og det er da økt risiko for at fuktighet kan komme bak grunnmursplasten. Dette svekker funksjonen som fuktsperre/beskyttelse av grunnmuren.
- Tomteforhold > Grunnmur og fundamenter: Det er registrert horisontalriss som er symptom på jordtrykk.Grunnmur er visuelt undersøkt fra utside og innside der den er tilgjengelig. Det ble observert horisontalriss på grunnmuren i krypkjeller mot vest. Horisontale riss indikerer normalt jordtrykk. Det er ikke kjent når rissene oppstod, men har vært der siden dagens eier overtok og har ikke utviklet seg.
Det ble ellers registrert enkelte småsprekker og riss i muren. Slike sprekker vurderes som aldersrelaterte og typiske for denne type konstruksjon, men kan i kombinasjon med fuktbelastning bidra til lokal forvitring over tid.
- Tomteforhold > Utvendige vann- og avløpsledninger: Mer enn halvparten av forventet brukstid er passert på utvendige avløpsledninger. Mer enn halvparten av forventet brukstid er passert på utvendige vannledninger.
- Våtrom > 1.Etasje > Bad/WC > Sluk, membran og tettesjikt: Sluk har begrenset mulighet for inspeksjon og rengjøring.
- Våtrom > 1.Etasje > Vaskerom > Sluk, membran og tettesjikt: Sluk har begrenset mulighet for inspeksjon og rengjøring.
- Våtrom > Underetasje > Bad/WC > Overflater Gulv: Det er påvist at høydeforskjell fra topp slukrist til gulv/synlig topp membran ved dørterskel er mindre enn 25 mm.
- Våtrom > Underetasje > Bad/WC > Sanitærutstyr og innredning: Det er påvist skader på innredning.
Og døren. Typiske svelleskader på innredningen sider mot gulvet og på døren mot terskelen. Oppstår som følge av fuktbelastning over tid.
- Våtrom > Underetasje > Bad/WC > Ventilasjon: Våtrommet mangler tilluftsventilering, f.eks. spalte/ventil ved dør.
- Kjøkken > Underetasje > Kjøkken > Avtrekk: Det er kun kullfilterventilator på kjøkkenet og heller ikke andre forserte/mekaniske avtrekksløsninger fra kokesonen.
TG3 - Store eller alvorlige avvik:
- Utvendig > Ytterdør > Bod/carport/krypkj: Det er påvist dør(er) med fukt/råteskader. Gjelder terskel og deler av karmen til dørbladet i krypkjelleren. (TG 3) Begge dørene henger noe og subber/tar lett i karm. (TG 2)
- Våtrom > Underetasje > Bad/WC > Sluk, membran og tettesjikt: Membran kan ikke konstateres (ikke synlig og det foreligger heller ikke dokumentasjon). Sluk er ikke tilgjengelig for inspeksjon.