Beliggenhet
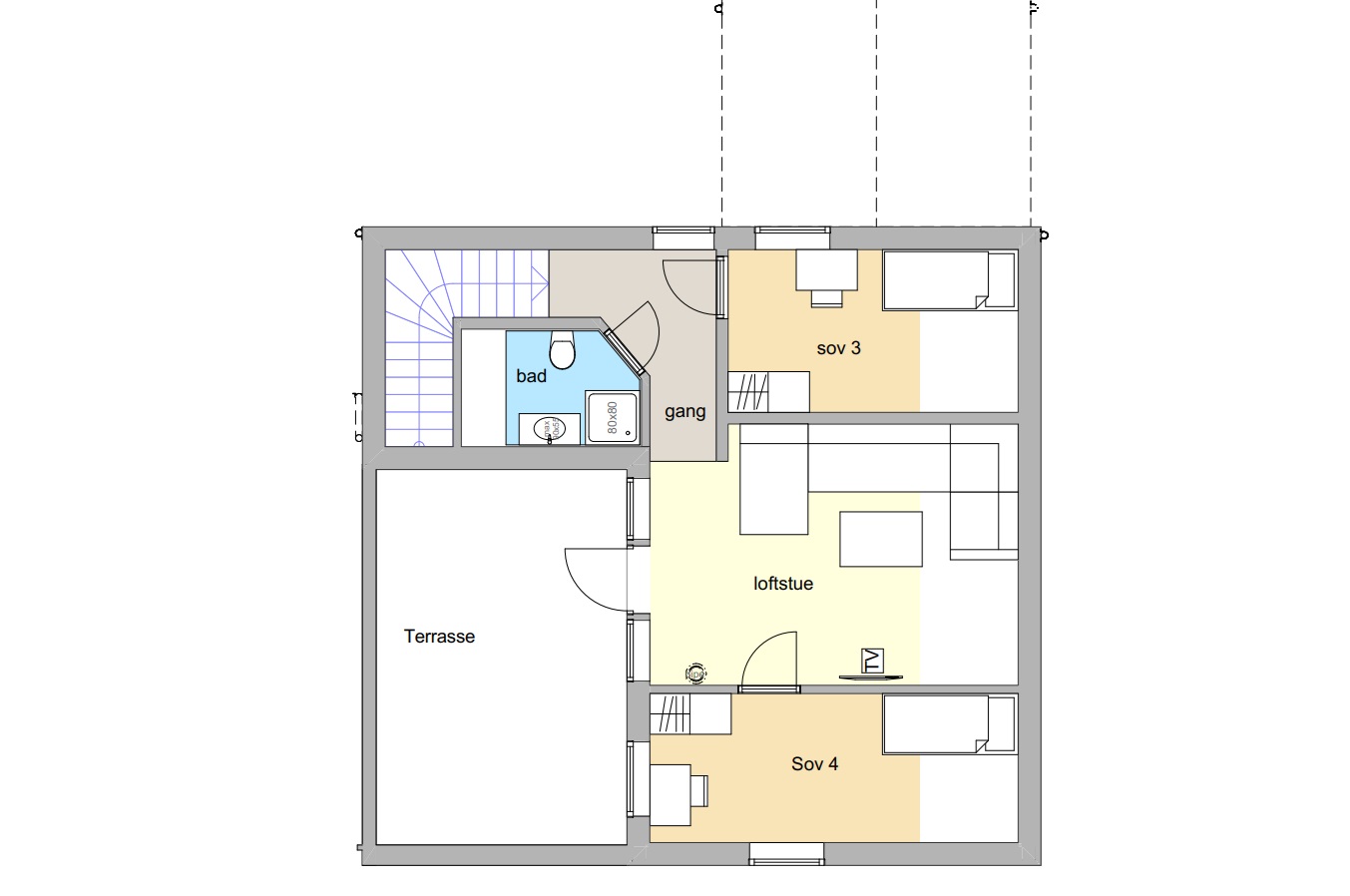
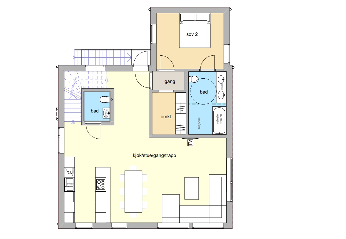
I Eidsvoldsgata 62C skal det nå oppføres en eksklusiv enebolig over tre plan med svært gode kvaliteter
for en barnefamilie. Huset blir oppført etter de nyeste standardene, med moderne og lekkert interiør,
optimal planløsning og store, gode rom. Ypperlig for en familie som ønsker å bo med det lille ekstra. I
tillegg blir det integrert garasje, hageareal og terrasser med svært gode solforhold. Mulighet for alternativ
bruk av deler av 1 etasje med egen inngang.
Ferdigstillelse medio Juni 2026. Det vil bli utarbeidet fremdriftsplan som vil bli gått gjennom på
oppstartsmøte og som vil indikere dato for innflytting.
Her bor du i et familietilpasset nabolag øverst på Vigernes, med alle sentrumsfasiliteter i kort
sykkelavstand. Beliggenheten er ideell for en barnefamilie med kort gangavstand til Vigernes barneskole
samt flere barnehager. I tillegg ligger Skedmohallen like ved med gode fritidsaktivteter for barn og unge.
For de minste er det trygg og kort gangavstand via Vigernesgata til Vigernes barneskole. Skolen ble
etablert i 1957 og har ca. 525 elever i 1-7. trinn. Kort sykkelavstand til nye Sophie Radichs ungdomsskole,
oppkalt etter den første kvinnelige læreren i Lillestrøm. Kort vei også til Lillestrøm og Skedsmo
videregående skole i Lillestrøm. Det er flere barnehager i området, blant annet Lillestrøm barnehage og
Lillehagen FUS barnehage.
Ca. 400 meter fra eiendommen finner du nærmeste bussholdeplass "Vigernes" med linjene 320, 470,
480 og 490. Det er ca. 20 min gangavstand til Lillestrøm togstasjon med bussterminal. Stasjonen er et
knutepunkt for buss- og togtrafikk på Nedre Romerike med blant annet hyppige avganger mot Oslo og
Gardermoen. Reisetid til Oslo S er kun 10 min med ekspresstog. Reisetid til Gardermoen med flytoget er
12 minutter. Med bil fra boligen tar det ca. 8 min til Strømmen, 14 min til Lørenskog, 23 min til Oslo S og
24 min til Oslo lufthavn.
De fleste butikkene ligger i den oversiktlige og kompakte bykjernen, sentrert rundt Lillestrøm Torv. Her har
du enkel tilgang til konserter, kunstutstillinger, teater og kino. De hyggelige restaurantene i Lillestrøms
hovedgate er absolutt verdt et besøk. Nyt en god italiensk inspirert middag på Olivia eller en deilig
pastarett på Casa Mia. Mirabell kan også bistå med et godt måltid. Om du vil se LSK-kamper eller ha noe
godt i glasset kan Lillestrøm by på flere puber og utesteder som Martins, Gevir og Fuser Bar. Shuffleboard
og god stemning finnes i andre etasjen på Lillestrøm Bar. Flere kjedebutikker, nisjebutikker og
shoppingsentre finnes både i Lillestrøm samt Strømmen som har et av Norges største shoppingsentre
med over 200 butikker og spennende spisesteder.
I Kirkegata utvikles Kulturkvartalet i Lillestrøm. Her kan man blant annet oppleve Villa Cara (kulturverksted
for ungdom) og Byparken, som er tegnet av Snøhetta. Den nye parken i kulturkvartalet er et lekent, offentlig
byrom og møteplass for alle - både lokalbefolkning og øvrige besøkende i kvartalet.
Nitja senter for samtidskunst, tidligere Akershus Kunstsenter åpnet sine dører våren 2021. Det nye navnet
er det gamle norrøne navnet på Nitelva. I Nitjas første etasje finner du både Kafé Nitja, aktivitetsrom,
kunstbutikk og lounge. Flott takterrasse i tredje etasje med utsikt over byen. Byens nye bibliotek åpnet i
2022. Et flott bibliotek og storstue på ca. 1000 kvm fordelt på tre etasjer. Biblioteket er åpent for alle og et
perfekt sted å rusle innom for å jobbe, lære eller bare være.
Liker du å starte eller avslutte dagen med en joggetur, anbefales ruten gjennom Elvebredden kunstpark
langs Nitelva og Sagelva. Kunstparken skaper opplevelser og inntrykk med flotte skulpturer fra anerkjente
samtidskunstnere. Området er godt opparbeidet og det er lett å ta seg fram til fots, i rullestol, med vogn
eller på sykkelen. Lillestrøm by har for øvrig en geografi og gatenett som egner seg svært godt til sykling.
Skulle været forhindre utendørstreningen er det fere treningssentre i Lillestrøm som Fresh Fitness, Sats
og Nr1 Fitness.
Kun 4-5 km avstand til tur-/skiterreng i Østmarka, på Romeriksåsen og i Tæruddalen. Her finnes turstier,
fiske- og badevann, skiløyper/lysløyper m.m. Det er også turveier og rekreasjonsmuligheter langs Nitelva
og i områdene rundt Lillestrøm stadion og Oksefjellet.
Lillestrøm har et rikt utvalg av idrettstilbud, og mye foregår i området rundt Skedsmohallen. Her er det
friidrettsbane, hestegård, stor innehall, bowling, fotballhall, gressbaner, kunstgressbaner og driving
range. Ved Skedsmohallen ligger en helt ny treningspark på hele 900 kvm med en rekke apparater,
gummi- og kunstgressdekke, hinderløype, slynge-apparat, kettlebells-apparat, 30 meter løpebane,
boksepute m.m. som gir treningsglede for både store og små. Parken er gratis og er åpen for alle. Legg
gjerne søndagsaktiviteten til Lillestrøm Golfklubb, eller Sørum fritidsgård med mange koselige aktiviteter
innenfor ridning og stell av dyr.
På sommeren er det bare å finne frem badehåndklærne. Populære Nebbursvollen Friluftsbad ligger en
kort sykkeltur unna med basseng, vannsklier, frodige grøntområder, gratis parkering, kiosk m.m.