Vi har byttet meglersystem. Noe avvik kan derfor forekomme. Kontakt oss om du opplever utfordringer.
Vi har byttet meglersystem. Noe avvik kan derfor forekomme. Kontakt oss om du opplever utfordringer.
logo
search
835740506261154
Hektnerhagan 14 | Presentert av Proaktiv v/Truls Hauge ( 1 av )
830242948124921
Lekkert rekkehus over to plan fra 2014 med fine kvaliteter for en barnefamilie. ( 2 av )
835740506261117
Inngjerdet inngangsparti med terrasse og tilliggende utebod. ( 3 av )
835740506261141
( 4 av )
830242948124919
( 5 av )
835740506261104
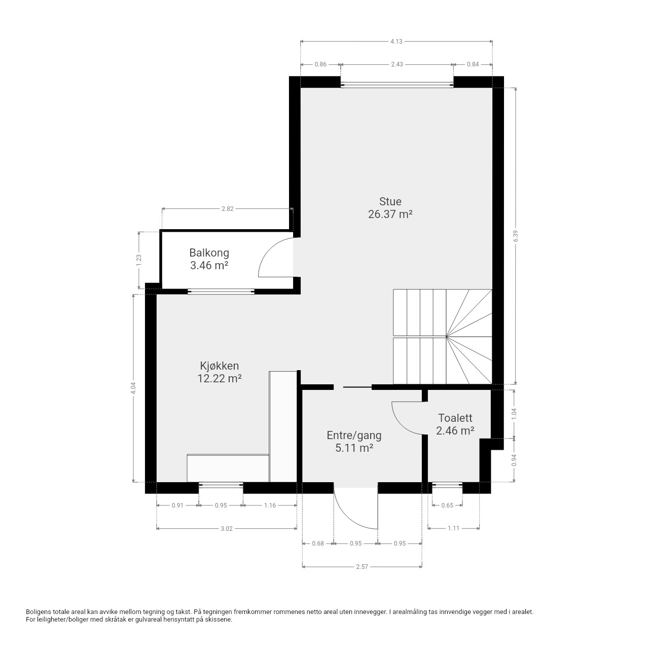
Plantegning 1. etasje med entré, gjestetoalett, kjøkken og stue. ( 6 av )
835740506261133
Inne er det delikat, lyst og romslig. ( 7 av )
835740506261118
Lekre farger, spilevegg, parkett på gulvet, downlightsbelysning og plass til sofagruppe og spisebord i egne soner. ( 8 av )
835740506261120
Det er installert Pleijd lysstyring i huset. ( 9 av )
830242948124923
( 10 av )
835740506261122
Kjøkken i egen sone. ( 11 av )
835740506261121
Spisebordet finner sin naturlige plassering ved kjøkkendelen. ( 12 av )
835740506261124
( 13 av )
835740506261123
Tidløst kjøkken med hvite, glatte fronter, laminat benkeplate med kum og takhøy innredning. ( 14 av )
835740506261138
Balkong på ca. 3 kvm utenfor stue og kjøkken. ( 15 av )
835740506261136
Entré med flislagt gulv, skyvedørsgarderobe og kodelås på ytterdøren. ( 16 av )
830242948124922
Praktisk gjestetoalett ved entreen. ( 17 av )
830242948124918
( 18 av )
835740506261103
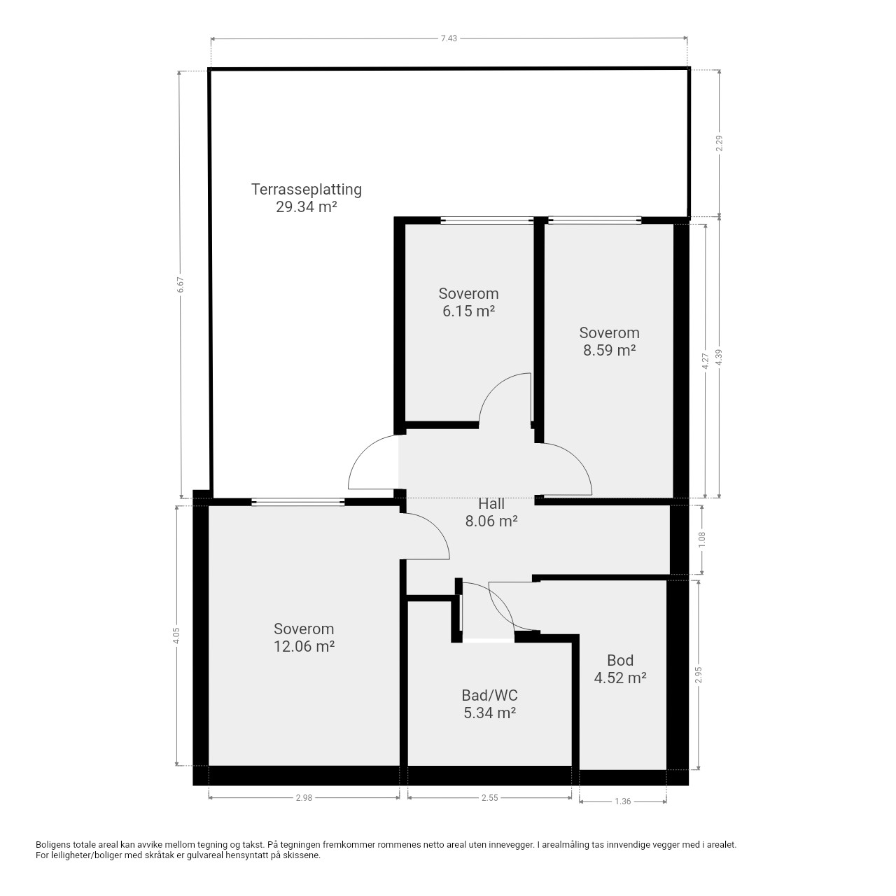
Plantegning underetasje med bad/vaskerom, bod, tre soverom og gang med adkomst til terrassen. ( 19 av )
835740506261125
Flislagt bad med varme i gulvet. Komplett utstyrt inkludert opplegg for vask/tørk i nisje. ( 20 av )
835740506261126
( 21 av )
835740506261130
Hovedsoverom med bred skyvedørsgarderobe. ( 22 av )
835740506261129
( 23 av )
835740506261128
Soverom 2. ( 24 av )
835740506261131
Soverom 3. ( 25 av )
835740506261132
( 26 av )
835740506261135
Adkomst til terrassen fra gangen nede. ( 27 av )
835740506261139
I underetasjen ligger en flott platting på hele 29 kvm. ( 28 av )
835740506261140
( 29 av )
835740506261142
Parkering i carport-rekke. El.bil-lader er etablert. ( 30 av )
830242948124920
( 31 av )
835740506261114
Huset ligger i et populært og barnevennlig nabolag med nyere småhusbebyggelse, flere lekeplasser og et aktivt nærmiljø preget av barnefamilier. ( 32 av )
835740506261113
Fra Hektneråsen bruker du under 10 minutter til Lillestrøm med bil. Bussholdeplassen er like i nærheten med avganger hvert tiende minutt i rushtiden. ( 33 av )
835740506261115
Det er ca. 100 meter til lysløype og markagrensen. ( 34 av )
830242948124869
Kort vei til Smestad skole. ( 35 av )
830242948124865
Nye Fjerdingby skole. ( 36 av )
830242948124867
Marikollen Torg. ( 37 av )
830242948124868
Rema 1000 på torget. ( 38 av )
830242948124864
Marikollen idrettspark ligger en rask kjøretur unna boligen og er et fantastisk område med naturlig glede for alle som synes det er best å være ute. ( 39 av )
830242948124863
Fantastiske turområder i Østmarka. ( 40 av )
830242948124866
Dagligvarehandelen kan også enkelt gjøres ved bl.a. Kiwi og Joker Hektnersletta som ligger innen gangavstand. ( 41 av )

Hektnerhagan 14

Se alle bilder (0)
835740506261154
830242948124921
835740506261117
835740506261141
830242948124919
835740506261104
835740506261133
835740506261118
835740506261120
830242948124923
835740506261122
835740506261121
835740506261124
835740506261123
835740506261138
835740506261136
830242948124922
830242948124918
835740506261103
835740506261125
835740506261126
835740506261130
835740506261129
835740506261128
835740506261131
835740506261132
835740506261135
835740506261139
835740506261140
835740506261142
830242948124920
835740506261114
835740506261113
835740506261115
830242948124869
830242948124865
830242948124867
830242948124868
830242948124864
830242948124863
830242948124866

Hektnerhagan 14

Prisantydning:
Kr 5250000
Totalpris:
Kr 5445703
BRA:
100
BRA-i:
95
Soverom:
3
Boligtype:
Rekkehus
Eierform:
​Eierseksjon
Byggeår:
2014
Etasje:
0
Tomteareal:
10241

Pent rekkehus over to plan med fin utsikt, solrike uteplasser og carport m/lader | 3 soverom, 2 bad/wc | 2 boder

Velkommen til en delikat og velholdt rekkehus over to plan i populære Hektnerhagan. Huset ligger i et populært og barnevennlig nabolag med nyere småhusbebyggelse, flere lekeplasser og et aktivt nærmiljø preget av barnefamilier. Skoler og barnehager finnes i umiddelbar nærhet, og Lillestrøm sentrum med et komplett servicetilbud, kollektivknutepunkt og byliv ligger kun få minutter unna med buss eller bil. Et helhetlig hjem over to plan med god plass til familien - 3 soverom, toalett i hver etasje, kjøkken med spiseplass i definert sone, stue og romslig entré. Moderne standard, balansert ventilasjon og Pleijd smarthusstyring som gir deg full oversikt over husets tekniske finesser med noen få tastetrykk på telefon/nettbrett. Med huset følger også carport m/EL og tre flotte uteplasser.
Ansvarlig megler:
Truls Hauge

Daglig leder/ Partner/ Eiendomsmegler MNEF

Ansvarlig megler:
Justyna Szabla

Eiendomsmeglerfullmektig

Visning

For at vår megler og selger skal kunne gi deg den beste oppfølgingen og kjøpsopplevelsen er det obligatorisk påmelding til alle våre visninger. Dersom ditt reserverte tidspunkt likevel ikke kan benyttes trenger vi beskjed så tidlig som mulig sånn at vi kan finne en alternativ løsning. Vi har alltid tid til deg. Visninger uten påmeldte deltagere avlyses.

22.03.2026 15:30 - 16:30

Legg visning til i kalender 22.03.2026 15:30 22.03.2026 16:30 Central European Time Visning av Hektnerhagan 14, 2008 FJERDINGBY Boligvisning av Hektnerhagan 14, 2008 FJERDINGBY Hektnerhagan 14, 2008 FJERDINGBY

Passer ikke visningstidspunktene?

Visningspåmelding
Avtal privatvisning her

Hektnerhagan 14

image005

Nøkkelinformasjon

plus_G

Områdebeskrivelse

plus_G
minus_G

Beskrivelse av eiendommen

plus_G
minus_G

Takst og Tilstand

plus_G
minus_G

Borettslaget/sameie/økonomi

plus_G
minus_G

Offentlige forhold

plus_G
minus_G

Prisantydning inkl. omkostninger

plus_G
minus_G

Øvrige kjøpsforhold

plus_G
minus_G

Dokumenter

plus_G

Del boligen

facebook-gold
Twitter-gold

Lurer du på noe om denne boligen?

Ta kontakt under via skjemaet.


Relaterte boliger

830242948121702
3350000 

Elgtråkket 1F

Rælingen ­ BLYSTADLIA
Innholdsrik 3-roms leilighet med 18 m² terrasse og flott utsikt. Fast garasjeplass. Rolig område ved marka.

Totalpris:

Kr 3783730

BRA-i:

78 m²
830242948123664
3150000 

Spellmannsplassen 4

Rælingen ­ FJERDINGBY
Flott 3-roms selveier med p-plass og sydvendt balkong med utsikt. Bad fra 2020. Rett ved buss, butikker og Marikollen.

Totalpris:

Kr 3575147

BRA-i:

60 m²
Se flere boliger
Bolig til salgs

Inspirasjon

Inspirerende interiørbilder fra norske hjem.
sov1
Soverom
kjo1
Kjøkken
stue
Stue

Boligartikler

Nyttig informasjon, råd og inspirasjon for deg som er opptatt av bolig.
A1_06776
Aktuelt

E-takst vs takstmanns tilstandsrapport – hva er forskjellene?

En e-takst er en standardisert verdivurdering utført av en eiendomsmegler, mens en tilstandsrapport - utført av en takstmann, beskriver boligens...
_RM_9989
Aktuelt

E-takst vs. verdivurdering – hva er forskjellene?

Skal du refinansiere eller selge bolig, møter du begrepene E-takst og verdivurdering. Folk bruker dem om hverandre, men det finnes viktige...
_RM_0829

Digital verdivurdering vs meglers verdivurdering – dette må du vite

En digital verdivurdering gir et raskt, automatisk estimat basert på data og algoritmer. En meglers verdivurdering bygger på fysisk befaring, faglig...