Vi har byttet meglersystem. Noe avvik kan derfor forekomme. Kontakt oss om du opplever utfordringer.
Vi har byttet meglersystem. Noe avvik kan derfor forekomme. Kontakt oss om du opplever utfordringer.
logo
search
720291785344848
Proaktiv Eiendomsmegling v/Malin Skevik har gleden av å presentere Aunegrenda 3, en flott 2-roms leilighet på Brundalen. ( 1 av )
720291785344862
Leiligheten har en usjenert beliggenhet i 4. etasje med vestvendt orientering og innglasset balkong. ( 2 av )
720291785344859
Fra balkongen nyter man svært gode solforhold og flott utsikt mot Trondheimsfjorden. ( 3 av )
720291785344869
Leiligheten er en del av Brundalen borettslag, et veldrevet borettslag som gjennomgikk omfattende rehabilitering i perioden 2016–2021 med bl.a nye vinduer, etterisolering, skifte av fasadeplater, drenering og nye sykkelboder. ( 4 av )
720291785344643
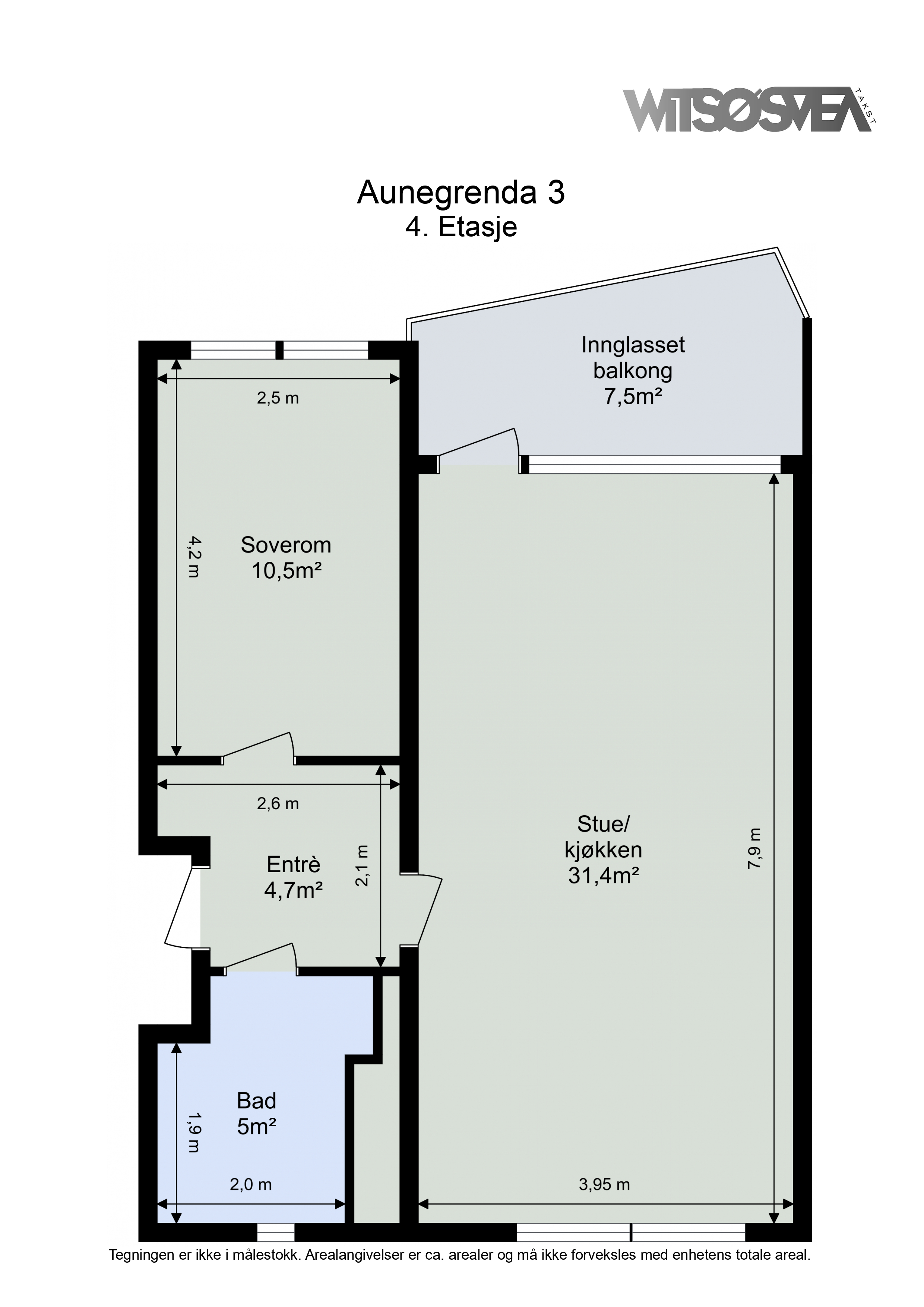
Planskisse. ( 5 av )
720291785344843
Man kommer inn i leiligheten via en romslig entré/gang med god plass for ulike garderobeløsninger. ( 6 av )
720291785344844
Videre fordeler gangen seg til soverommet, badet og stue/kjøkkenløsningen. ( 7 av )
720291785344849
Leiligheten ble omfattende renovert i 2015/2020 og holder en gjennomgående moderne standard. ( 8 av )
720291785344850
( 9 av )
720291785344851
Kjøkkenet, som var nytt i 2015, har en tidløst innredning med gode benkeplater, praktiske løsninger og rikelig med oppbevaringsplass. ( 10 av )
720291785344852
Det er medfølgende hvitevarer i form av stekeovn, platetopp, kombiskap og oppvaskmaskin. Kjøkkenet er utstyrt med en effektiv kjøkkenvifte fra Witt. ( 11 av )
720291785344853
Vinduer i to himmelretninger gir gjennomgående dagslys og en behagelig atmosfære. ( 12 av )
720291785344845
Stuen har plass for både spisebord, sofagruppe og ytterligere møblering. ( 13 av )
720291785344871
( 14 av )
720291785344846
Med leiligheten følger det to boder i kjeller med et samlet areal på 14 kvm. ( 15 av )
720291785344867
( 16 av )
720291785344847
Det ble installert balansert ventilasjon i leiligheten i 2016 for et behagelig inneklima. ( 17 av )
720291785344857
( 18 av )
720291785344863
Fra stuen er det utgang til en romslig, innglasset balkong på 7,5 m². Balkongen ble oppgradert med nytt dekke i 2024. ( 19 av )
720291785344858
Herfra nyter man flott utsikt over nærområdet og i retning Trondheimsfjorden. ( 20 av )
720291785344866
( 21 av )
720291785344861
På sommerhalvåret kan du nyte lange kvelder og kveldssolen fra balkongen. ( 22 av )
720291785344838
Soverommet er av god størrelse på hele 10,5 m². Det ble lagt nytt gulv i 2022. ( 23 av )
720291785344839
Her er det god plass til stor seng, garderobeskap og kontorløsning. ( 24 av )
720291785344840
Badet ble oppusset i 2020, og er utstyrt med en romslig baderomsinnredning med godt med oppbevaringsplass. Badet ble renovert av fagfolk og dokumentasjon foreligger. ( 25 av )
720291785344841
Videre er badet utstyrt med behagelig varmekabler i gulvet, dusjhjørne med innfellbare dører, vegghengt toalett og opplegg for vaskemaskin. ( 26 av )
720291785344868
Fellesarealene er opparbeidet med interne veier, lekeplasser, grøntarealer og diverse prydbusker/beplantning. ( 27 av )
720291785344870
Bilen parkerer man på felles biloppstillingsplass like ved blokken. Borettslaget har lagt opp infrastruktur for lading av elbil på et stort antall parkeringsplasser. ( 28 av )
720291785344426
Hverdagen er svært enkel og effektiv med flere nærliggende dagligvarebutikker som blant annet Rema 1000, Coop Prix, Bunnpris og Kiwi. I nærheten er det også døgnåpen bensinstasjon på Tungasletta. ( 29 av )
720291785344424
Kort avstand til Estenstadmarka med sine flotte tur- og rekreasjonsmuligheter sommer som vinter. ( 30 av )
720291785344427
Nærmeste treningssenter er TrenHer Angelltrøa, som ligger 15 minutter unna i gangavstand. ( 31 av )
720291785344644
Fra leiligheten bruker man ca. 15 minutter på sykkel ned til sjøkanten, hvor man har kort vei til Rotvollfjæra samt flere flotte badestrender langs Ladestien. ( 32 av )
720291785344425
Boligen sogner til Brundalen barneskole, som ligger kun 5 minutter unna i gangavstand. ( 33 av )
720291785344645
Charlottenlund videregående skole er den nærmeste skolen for videregående utdanning og har et bredt fagtilbud. ( 34 av )

Aunegrenda 3

Se alle bilder (0)
720291785344848
720291785344862
720291785344859
720291785344869
720291785344643
720291785344843
720291785344844
720291785344849
720291785344850
720291785344851
720291785344852
720291785344853
720291785344845
720291785344871
720291785344846
720291785344867
720291785344847
720291785344857
720291785344863
720291785344858
720291785344866
720291785344861
720291785344838
720291785344839
720291785344840
720291785344841
720291785344868
720291785344870
720291785344426
720291785344424
720291785344427
720291785344644
720291785344425
720291785344645

Aunegrenda 3

Prisantydning:
Kr 2590000
Totalpris:
Kr 3001337
BRA:
77
BRA-i:
55
Soverom:
1
Boligtype:
Leilighet
Eierform:
Andel​
Byggeår:
1971
Etasje:
4
Tomteareal:
59717,7

Tiltalende 2-roms toppleilighet. Innglasset balkong med gode sol- og utsiktsforhold. Oppgradert i perioden 2015/2020.

Velkommen til Aunegrenda 3 - En delikat 2-roms leilighet med en sentral og tilbaketrukket beliggenhet. Leiligheten ble omfattende renovert i 2015/2020 og holder en gjennomgående moderne standard. Leiligheten nyter en flott beliggenhet i byggets 4. etasje og har en herlig innglasset balkong med svært gode sol- og utsiktsforhold. Kort avstand til dagligvare, studiesteder, turområder og et hyppig kollektivtilbud. Kvaliteter: - Moderne kjøkken fra 2015 med mye skap- og benkeplass - Balansert ventilasjon - Delikat baderom renovert av fagfolk i 2020 - Romslig stue med plass til både sofagruppe og spisestuemøbler - Parkering like ved blokken. Mulighet for lading av elbil - Mye lagringsplass i 2 private boder - Borettslaget har gjennomgått en større rehabilitering i perioden 2016-2021
Ansvarlig megler:
Malin Skevik

Eiendomsmegler

Visning

For at vår megler og selger skal kunne gi deg den beste oppfølgingen og kjøpsopplevelsen er det obligatorisk påmelding til alle våre visninger. Dersom ditt reserverte tidspunkt likevel ikke kan benyttes trenger vi beskjed så tidlig som mulig sånn at vi kan finne en alternativ løsning. Vi har alltid tid til deg. Visninger uten påmeldte deltagere avlyses.

25.03.2026 17:00 - 18:00

Legg visning til i kalender 25.03.2026 17:00 25.03.2026 18:00 Central European Time Visning av Aunegrenda 3, 7047 TRONDHEIM Boligvisning av Aunegrenda 3, 7047 TRONDHEIM Aunegrenda 3, 7047 TRONDHEIM

Passer ikke visningstidspunktene?

Visningspåmelding
Avtal privatvisning her

Aunegrenda 3

image005

Nøkkelinformasjon

plus_G

Områdebeskrivelse

plus_G
minus_G

Beskrivelse av eiendommen

plus_G
minus_G

Takst og Tilstand

plus_G
minus_G

Borettslaget/sameie/økonomi

plus_G
minus_G

Offentlige forhold

plus_G
minus_G

Prisantydning inkl. omkostninger

plus_G
minus_G

Øvrige kjøpsforhold

plus_G
minus_G

Dokumenter

plus_G

Del boligen

facebook-gold
Twitter-gold

Lurer du på noe om denne boligen?

Ta kontakt under via skjemaet.


Relaterte boliger

714794227204727
3100000 

Østersunds gate 9

Trondheim ­ TRONDHEIM
Lys og innbydende 3- roms selveierleilighet med sentral beliggenhet. Lave fellesutgifter. Peis. Felles takterrasse.

Totalpris:

Kr 3100000

BRA-i:

53 m²
720291785344800
3490000 

Fjordgata 9C

Trondheim ­ TRONDHEIM
Lys og sjarmerende bygårdsleilighet. Takhøyde på 3,30m. Gode lagringsmuligheter. Etterspurt beliggenhet i Midtbyen.

Totalpris:

Kr 3591240

BRA-i:

60 m²
714794227207554
3600000 

Marie Sørdals veg 8D

Trondheim ­ TRONDHEIM
Lys, innholdsrik 3-roms utsikts-leilighet over to plan. Tre solrike uteplasser. Garasjeplass. Familievennlig boligområde

Totalpris:

Kr 3739228

BRA-i:

102 m²
725789343483610
7700000 

Hans Finnes gate 37A

Trondheim ­ TRONDHEIM
Familieperfekt tomannsbolig hvor barnefamilien kan vokse seg større. Carport og solrike uteplasser. Mulighet for utleie.

Totalpris:

Kr 7911490

BRA-i:

219 m²
714794227207803
2950000 

Asbjørn Øverås veg 20C

Trondheim ­ TRONDHEIM
Romslig og delikat 2-roms leilighet i 1. etg. Fin beliggenhet - 2 uteplasser og hage. Gode solforhold. Stor bod. Garasje

Totalpris:

Kr 3063132

BRA-i:

55 m²
714794227207796
5950000 

Dronning Åsas vei 3A

Trondheim ­ TRONDHEIM
Stor & lys halvpart av horisontaldelt tomannsbolig m/ potensial. Solrik veranda. Fantastisk fjordutsikt. Parkering.

Totalpris:

Kr 6137740

BRA-i:

129 m²
725789343483374
7500000 -  7900000

Litavegen 14A og B

Trondheim ­ TRONDHEIM
Ny bolig på STAVSET?- Lekker tomannsbolig med dbl. carport, gode uterom og moderne uttrykk. Kun 2 stk.-Først til mølla!

Totalpris:

Kr 0

P-rom:

 m²
720291785344788
3850000 

Elgeseter gate 35

Trondheim ­ TRONDHEIM
Stilig toppleilighet fra 2007 med raus takhøyde og etterspurt beliggenhet. Nær Gløshaugen & St. Olavs. Kjøkken fra 2018.

Totalpris:

Kr 3977350

BRA-i:

62 m²
714794227207640
2490000 

Parallellen 25

Trondheim ­ SJETNEMARKA
Lys og romslig 2-roms selveier i 1. etg. Vestvendt terrasse. Flotte fellesarealer. Parkeringsmulighet. Bod i kjeller.

Totalpris:

Kr 2568358

BRA-i:

60 m²
714794227207443
8100000 

Theodor Overwiens veg 13

Trondheim ­ RANHEIM
Lekkert og moderne rekkehus fra 2024. Parkering i p-kjeller. Fire soverom. Vaskerom. Barnevennlig.

Totalpris:

Kr 8316490

BRA-i:

146 m²
Se flere boliger
Bolig til salgs

Inspirasjon

Inspirerende interiørbilder fra norske hjem.
sov1
Soverom
kjo1
Kjøkken
stue
Stue

Boligartikler

Nyttig informasjon, råd og inspirasjon for deg som er opptatt av bolig.
A1_06776
Aktuelt

E-takst vs takstmanns tilstandsrapport – hva er forskjellene?

En e-takst er en standardisert verdivurdering utført av en eiendomsmegler, mens en tilstandsrapport - utført av en takstmann, beskriver boligens...
_RM_9989
Aktuelt

E-takst vs. verdivurdering – hva er forskjellene?

Skal du refinansiere eller selge bolig, møter du begrepene E-takst og verdivurdering. Folk bruker dem om hverandre, men det finnes viktige...
_RM_0829

Digital verdivurdering vs meglers verdivurdering – dette må du vite

En digital verdivurdering gir et raskt, automatisk estimat basert på data og algoritmer. En meglers verdivurdering bygger på fysisk befaring, faglig...