Byggemåte
Generelt
Selveierleilighet fra 2021. Leiligheten har moderne standard på overflater, innredning og tekniske
installasjoner. Bygget/leiligheten er jevnlig vedlikeholdt. Felles bygningsmasse inngår i sameiets
vedlikeholdsansvar.
Om ikke annet er oppgitt vil tilstandsgraden være satt til TG1 eller TG0.
UTVENDIG
Vinduer
Vinduer med 3-lags isolerglass i fabrikkmalte trekarmer.
Dører
Slett entrédør med brannklasse B-30 og lydklasse 43dB. Kikkehull og porttelefon. Skyvedør med 3-lags
isolerglass i fabrikkmalte trekarmer.
Merk: Entrédør tar noe i karm.
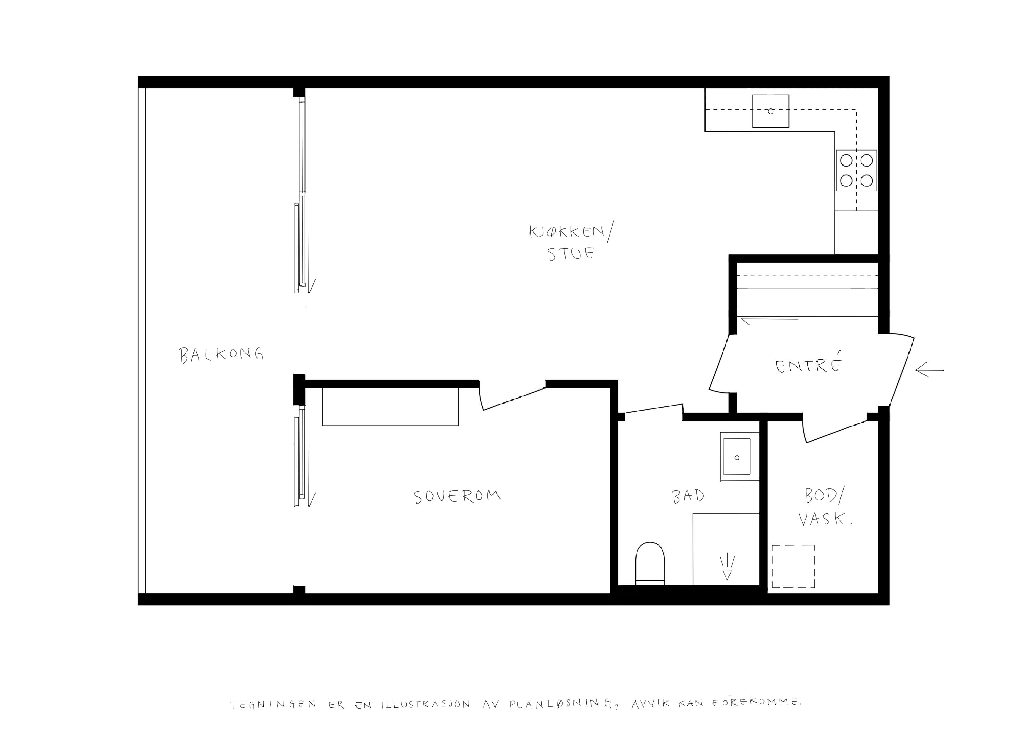
Balkonger, terrasser og rom under balkonger
Balkong på 14,0 m² med utgang fra stue/kjøkken. Terrassebord og rekkverk i glass m/metallprofiler.
Utvendig vegglampe samt stikkontakt.
UTVENDIG
Overflater
Observasjoner:
Normal bruksslitasje i forhold til alder på overflater.
Merk: Noen mindre hakk/sår i parkett.
Kommentar:
Overflater er en skjønnsmessig vurdering og TG er vurdert ut fra om det er skader/større slitasje på
overflatene. Stedvis noe hakk og merker, hull i vegger etter bilder, misfarging på gulv etter tepper og
lignende må forventes i en brukt bolig. Det ble ikke flyttet på tunge møbler etc.
Se sammendrag for beskrivelse av overflater i leiligheten.
Etasjeskille/gulv mot grunn
Etasjeskillere av betong. Det ble foretatt måling av ujevnheter ved lasermåling, uten å avdekke avvik utover
standardens krav. Merk at det ikke ble flyttet på tunge møbler etc. Målinger er basert på stikkprøver. Avvik
kan forekomme.
Radon
Radonmålinger er ikke relevant.
Bygget har på grunn av en løsning med godt ventilert grunnplan uten rom for varig opphold, en akseptert
løsning uten bruk av radonsperre. Det ventilerte grunnplanet må være avgrenset mot øvrige plan med
betong eller annet skille med tilsvarende lufttetthet, inkludert tetthet ved gjennomføringer, sjakter,
trapperom og dører.
Innvendige dører
Hvite kompaktdører. Glassdør til stue/kjøkken.
VÅTROM
VASKEROM (3,6 M²)
Generell
Keramiske fliser på gulv m/sokkelflis, malte plater på vegger og i himling.
Inneholder:
Opplegg for vaskemaskin, plass til tørketrommel, div. hyller, ventilasjonsaggregat og fordelerskap til
rør-i-rør. Plastsluk og avtrekksventil i himling.
Overflater vegger og himling
Det ble gjort visuell inspeksjon av overflater uten å avdekke avvik utover normal bruksslitasje.
Overflater Gulv TG2
Det ble gjort visuell kontroll av overflater samt kontroll av bom (hulrom under fliser). Fallforhold ble
kontrollert med høydelaser. Se kommentarer under avvik.
Merk: Det ble registrert oppkant ved dør, men det kan ikke verifiseres at membransjiktet følger oppkanten.
Vurdering av avvik:
- Det er påvist avvik i fallforhold til sluk i forhold til krav i forskrift på byggetidspunktet.
- Det er påvist avvik i krav til høydeforskjell/fall-løsning på våtrommet.
- Ingen fall.
Tiltak:
- Våtrommet fungerer med avviket.
- Begrenset med bruksvann i rommet. Innhent evt. dokumentasjon på evt. membranoppkant bak
terskellist (for å forhindre evt. lekkasjer ut av rommet).
Sluk, membran og tettesjikt
Plastsluk. Synlig klemring i sluk. Smøremembran. Bilder av membranutførelse eller øvrig dokumentasjon
er ikke mottatt/kontrollert.
Sanitærutstyr og innredning
Sanitærutstyr og innredning er visuelt kontrollert uten å avdekke avvik utover normal bruksslitasje.
Ventilasjon
Balansert ventilasjon med tilluft via luftespalte under dør. Avtrekksventil i himling.
Tilliggende konstruksjoner våtrom
Hulltaking vurderes som unødvendig da våtrommet er av nyere alder og levert med garanti og
dokumentasjon.
BAD (4,2 M²)
Generell
Fliser på gulv, malte flater på vegger og i himling. Innfelte spotter.
Inneholder:
Baderomsmøbel med slette fronter, heldekkende servant og ett-greps blandebatteri, speilskap med
belysning, vegghengt toalett og dusj med foldedører i herdet glass samt dusjgarnityr med hånddusj.
Vannbåren gulvvarme, rennesluk og avtrekksventil i himling.
Overflater vegger og himling
Det ble gjort visuell inspeksjon av overflater uten å avdekke avvik utover normal bruksslitasje.
Overflater Gulv TG2
Det ble gjort visuell kontroll av overflater samt kontroll av bom (hulrom under fliser). Fallforhold ble
kontrollert med høydelaser. Se kommentarer under avvik.
Merk: Det ble registrert oppkant ved dør, men det kan ikke verifiseres at membransjiktet følger oppkanten.
Vurdering av avvik:
- Det er påvist avvik i fallforhold til sluk i forhold til krav i forskrift på byggetidspunktet.
- Det er påvist avvik i krav til høydeforskjell/fall-løsning på våtrommet.
- Vannsamling v/dusjtest.
Tiltak:
- Våtrommet fungerer med dette avviket.
- For å lukke avviket må det gjøres tiltak, men en må være oppmerksom på at våtrommet har vært i
fungerende bruk siden byggeår med dagens fallforhold.
Sluk, membran og tettesjikt
Plastsluk. Synlig klemring i sluk. Smøremembran. Bilder av membranutførelse eller øvrig dokumentasjon
er ikke mottatt/kontrollert.
Sanitærutstyr og innredning
Sanitærutstyr og innredning er visuelt kontrollert uten å avdekke avvik utover normal bruksslitasje.
Tilliggende konstruksjoner våtrom
Hulltaking vurderes som unødvendig da våtrommet er av nyere alder og levert med garanti og
dokumentasjon.
KJØKKEN
Overflater og innredning
Kjøkkeninnredning fra Sigdal med glatte fronter, benkeplate i laminat og nedfelt stålvask med ett-greps
servantkran. Belysning under overskap. Det er montert komfyrvakt og lekkasjestopper (Aquastop) på
kjøkkenet.
Integrerte hvitevarer som følger med er stekeovn, induksjonstopp, oppvaskmaskin og kjøleskap med
frysedel.
Hvitevarer fra Siemens. Integrert ventilator.
Avtrekk
Integrert ventilator. Det ble gjort funksjonstest av ventilator uten å avdekke avvik med avtrekk.
TEKNISKE INSTALLASJONER
Vannledninger
Vannforsyningsrør av PEX-rør (rør-i-rør system). Fordelerskap samt stoppekran er plassert i innvendig
bod.
Avløpsrør
Avløpsrør av plast og MA. Plastsluker. Stakeluke er antatt plassert i fellesarealer. Vurdering er utelukkende
gitt på bakgrunn av alder. Hovedstamme/avløpsrør er skjult. Felles avløpsrør, stigeledninger e.l. er ikke
kontrollert.
Ventilasjon
Balansert ventilasjonsanlegg med varmegjenvinner. Ventilasjonssystemet sørger for at ny, frisk, filtrert og
oppvarmet luft føres inn i leiligheten. Anlegget er kun enkelt, visuelt kontrollert. Det anbefales å foreta
service og filterbytte etter leverandørens anbefalinger.
Varmesentral
Felles oppvarming av varmtvann/tappevann. Varmesentral inngår i sameiets vedlikeholdsansvar og er
ikke nærmere vurdert.
Vannbåren varme
Vannbåren gulvvarme i entré, stue/kjøkken og på bad (ut i fra merking i fordelerskap til vannbåren varme).
Elektrisk anlegg
El. anlegg fra byggeår. Sikringsskap er plassert på vaskerom. Automatsikringer (jordfeilautomater).
Automatisk strømmåler m/fjernavlesning, montert i fellestavle. Sikringsskapet inneholder hovedbryter på
40A, 1 kurs på 25A og 8 kurser på 15A.
Belysning:
Vanlig belysning og spotter (se rombeskrivelse).
Branntekniske forhold
Røykvarslere og brannslukningsapparat. Leiligheten er sprinklet. Tilkoblet felles brannsentral. I følge
forskrift om brannforebyggende tiltak og branntilsyn, skal alle boliger ha minst én godkjent røykvarsler,
samt manuelt slukningsutstyr i form av enten pulverapparat eller brannslange. Teknisk anlegg er ikke
funksjonstestet på befaring, det er heller ikke opplyst om problemer ved tekniske anlegg eller funksjoner i
boligen.
Se vedlagt boligsalgsrapport avholdt 02.09.24, hvor ovennevnte opplysninger er hentet fra, for
nærmere teknisk beskrivelse av eiendommen.