4867102_1a
Velkommen til en lys og hyggelig 3-roms leilighet over to plan i Strandtunet 31. ( 1 av )
4867086_1a
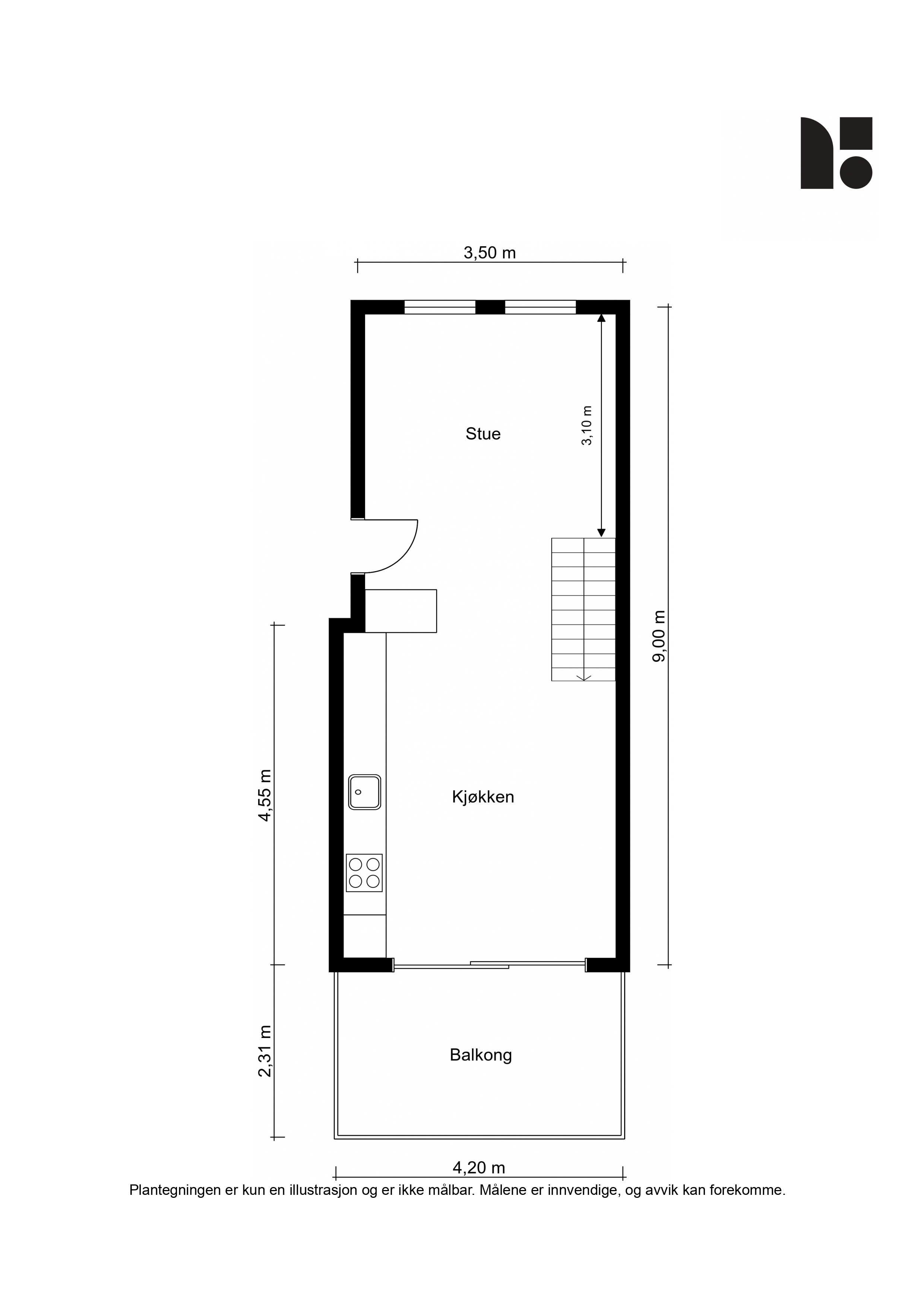
Leiligheten har åpent allrom i hovedetasjen, med stuekrok og kjøkken med plass til spisebord. ( 2 av )
4867792_1a
16141-PG-Finn-Skillesider-PG2022146-2etg ? Kopi ( 3 av )
4867085_1a
Det er plass til å innrede sofagruppe og tv i egen sone. ( 4 av )
4867097_1a
( 5 av )
4867087_1a
Leiligheten har parkettgulv i alle rom (unntatt bad), og vegger er malt i hvitt. Her kan du enkelt sette ditt personlige preg. ( 6 av )
4867094_1a
( 7 av )
4867093_1a
Kjøkkenet har praktisk løsning med god skapplass, og mulighet for stort spisebord og oppbevaringsmøblement i tilknytning. ( 8 av )
4867088_1a
( 9 av )
4867090_2a
Kjøkkeninnredningen har slette fronter, laminat benkeplate og integrerte hvitevarer som medfølger. Egen nisje med plass til kombiskap. ( 10 av )
4867089_1a
( 11 av )
4867091_1a
Det er utgang til balkongen som blir en fin forlengelse av rommet. ( 12 av )
4867082_1a
Inntrukket og lun balkong på ca. 10 kvm, med kveldssol og hyggelig utsyn mot felles hage. ( 13 av )
4867081_1a
Her kan du nyte lange kvelder uansett vær. ( 14 av )
4867083_1a
( 15 av )
4867084_1a
Utsikt fra balkongen. ( 16 av )
4867776_1a
Leiligheten har balkong i 2.etg. ( 17 av )
4867793_1a
16141-PG-Finn-Skillesider-PG2022146-Etg_Loft ( 18 av )
4867750_2a
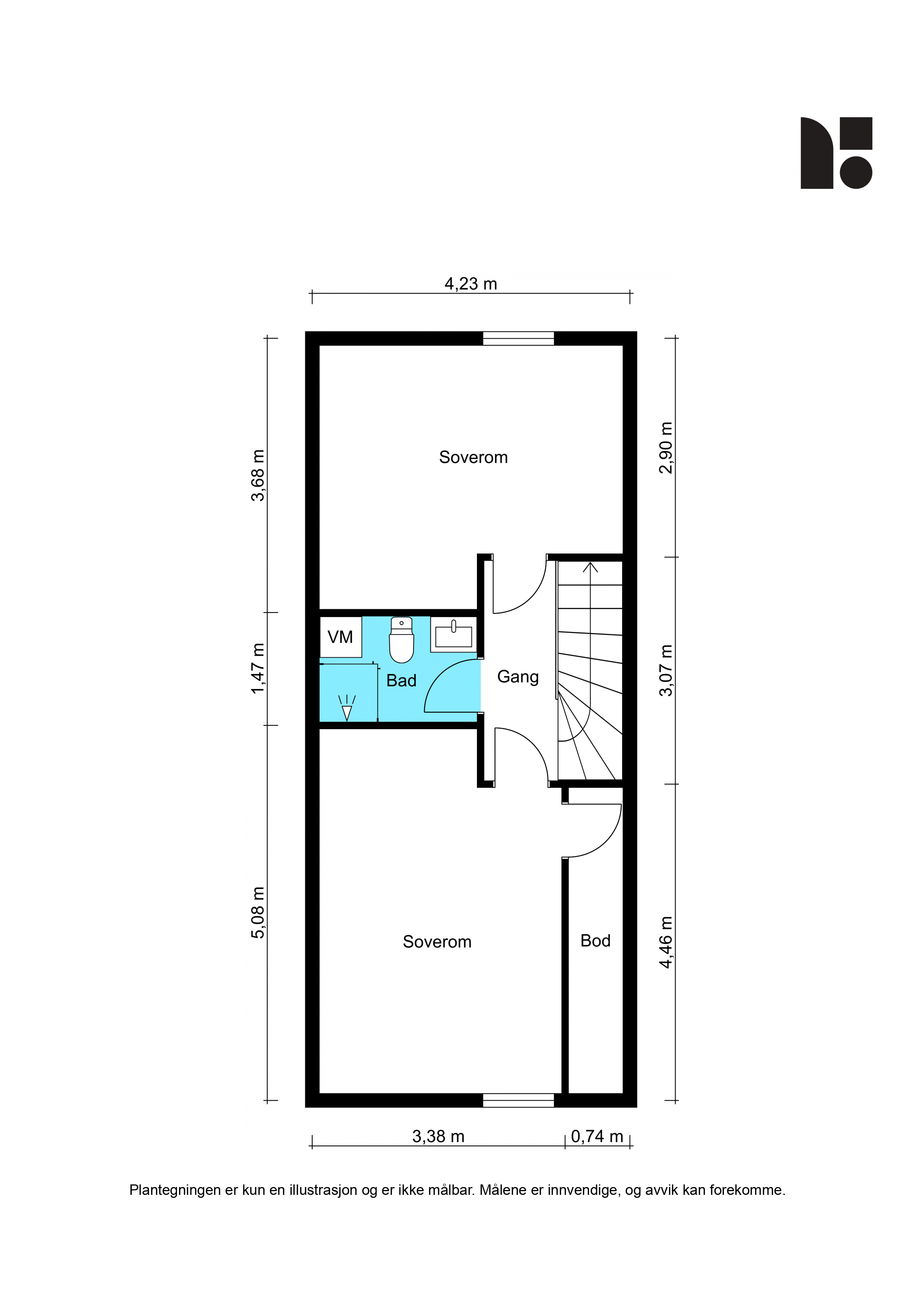
Trappegang i 3.etg/loft. I etasjen er det også innvendig bod. ( 19 av )
4867748_1a
Badet har flislagte overflater og gulvvarme. Det er opplegg for vaskemaskin. ( 20 av )
4867749_1a
( 21 av )
4867747_1a
I 3.etg/loft er det to soverom. Ett av rommene har praktisk hems-løsning og stort garderobeskap med god plass til lagring. ( 22 av )
4867746_1a
Begge rommene har takvindu som gir fint lysinnslipp helt uten innsyn. ( 23 av )
4867080_1a
Begge rommene har plass til seng og oppbevaringsløsning. ( 24 av )
4867079_1a
( 25 av )
4867751_1a
( 26 av )
4867101_1a
Leiligheten har inngang i 2. etasje. ( 27 av )
4867100_1a
Det medfølger bruksrett til carport med tilliggende utebod på ca. 5 kvm. ( 28 av )
4867099_1a
I carporten er det installert elbillader. ( 29 av )
4867461_1a
Plantegning - 2. Etasje. ( 30 av )
4867462_1a
Plantegning - 3.etasje/ Loft ( 31 av )
4867777_1a
Plantegning 2.etg 3D. ( 32 av )
4867778_1a
Plantegning 3.etg/loft 3D. ( 33 av )

Strandtunet 31

Se alle bilder (0)
4867102_1a
4867086_1a
4867792_1a
4867085_1a
4867097_1a
4867087_1a
4867094_1a
4867093_1a
4867088_1a
4867090_2a
4867089_1a
4867091_1a
4867082_1a
4867081_1a
4867083_1a
4867084_1a
4867776_1a
4867793_1a
4867750_2a
4867748_1a
4867749_1a
4867747_1a
4867746_1a
4867080_1a
4867079_1a
4867751_1a
4867101_1a
4867100_1a
4867099_1a
4867461_1a
4867462_1a
4867777_1a
4867778_1a

Strandtunet 31

Prisantydning:
Fra Kr 3800000,00
til Kr 0,00
Totalpris:
Kr 3909250,00
BRA:
65,00 - 0,00
BRA-i:
65 - 0
Soverom:
2 - 0
Boligtype:
Leilighet
Eierform:
Fellestomt
Byggeår:
2009
Etasje:
0
Tomteareal:
12400

Gjennomgående 3-roms leilighet over to plan. Balkong med kveldssol og carport m/lader. Utleie tillatt. Sentralt.

Ansvarlig megler:
Fredrik Engebråten

Partner / Eiendomsmegler

Visning

Det er for tiden ikke satt opp visningstid på denne eiendommen.
Ønsker du å avtale et visningstidspunkt?
Avtal privatvisning her

Strandtunet 31

image005

Nøkkelinformasjon

plus_G_2025

BELIGGENHET

plus_G
minus_G

BESKRIVELSE AV EIENDOMMEN

plus_G
minus_G

OFFENTLIGE FORHOLD

plus_G
minus_G

PRISANTYDNING INKLUDERT OMKOSTNINGER

plus_G
minus_G

SAMEIET/ØKONOMI

plus_G
minus_G

ØVRIGE KJØPSFORHOLD

plus_G
minus_G

Dokumenter

plus_G_2025

Del boligen

facebook-gold
Twitter-gold

Lurer du på noe om denne boligen?

Ta kontakt under via skjemaet.


Relaterte boliger

Mellomenga 21
5150000,00  0,00

Mellomenga 21

Lier ­ LIER
Delikat rekkehus betydelig oppusset i 2024. Perfekt for en barnefamilie. 3 soverom+loft. Garasje m/lader og bod.

Totalpris:

Kr 5293000,00

BRA-i:

120 m²
Kunterudveien 14C
3150000,00  0,00

Kunterudveien 14C

Lier ­ GULLAUG
Innbydende 3-roms leilighet over 2 plan. Balkong med gode solforhold og fin utsikt. Garasje m/lader. IN-ordning.

Totalpris:

Kr 3799878,00

BRA-i:

95 m²
Haugane 27
4500000,00  0,00

Haugane 27

Lier ­ TRANBY
Flott halvpart tomannsbolig over to plan med sol, utsikt og fine uteplasser. Garasje. Bad fra 2020. Blindvei.

Totalpris:

Kr 4908742,00

BRA-i:

124 m²
Saueveien 40
6800000,00  0,00

Saueveien 40

Lier ­ LIER
Fint beliggende enebolig på 1 måls hjørnetomt. Nydelig hage og solrik terrasse. 3 soverom + 2 bad. Garasje.

Totalpris:

Kr 6989250,00

BRA-i:

202 m²
Frydenlund 22C
2700000,00  0,00

Frydenlund 22C

Lier ­ LIERSTRANDA
Fin 2-roms toppleilighet med fjordutsikt og sydvestvendt balkong. Bad fra 2023. Ingen gjenboere. Kort vei til Drammen.

Totalpris:

Kr 3152587,00

BRA-i:

55 m²
Øvre Solspillet 4
7500000,00  0,00

Øvre Solspillet 4

Lier ­ LIER
Stor og delikat familiebolig i blindvei med panoramautsikt, 140m² uteplasser & dobbelgarasje. 4 sov. Rolig og markanært

Totalpris:

Kr 7705750,00

BRA-i:

212 m²
Haskollveien 28B
2600000,00  0,00

Haskollveien 28B

Lier ­ LIER
Stor 3-roms toppleilighet med nytt kjøkken fra 2023/2024, fin utsikt fra sydvestvendt innglasset balkong på 26m²

Totalpris:

Kr 3153689,00

BRA-i:

80 m²
Dokka 27
4500000,00  0,00

Dokka 27

Lier ­ REISTAD
Rålekker 3-roms selveier fra 2020, ytterligere oppgradert i 2022-2025, garasje og heis, sydvestvendt balkong m/utsikt.

Totalpris:

Kr 4625750,00

BRA-i:

62 m²
Torskroken 12C
2750000,00  0,00

Torskroken 12C

Lier ­ LIER
Lettstelt 2-roms selveierleilighet med solrik terrasse på hele 41m² og parkeringsplass. Rolig blindvei like ved marka.

Totalpris:

Kr 2832000,00

BRA-i:

49 m²
Haskollveien 6B
3350000,00  0,00

Haskollveien 6B

Lier ­ LIER
Rekkehus o/3 plan med 27 m² solrik terrasse, utebod og garasje. Nytt tak og vinduer i 2024. 3 sov og sep.vaskerom.

Totalpris:

Kr 4272818,00

BRA-i:

130 m²
Se flere boliger
Bolig til salgs

Inspirasjon

Inspirerende interiørbilder fra norske hjem.
sov1
Soverom
kjo1
Kjøkken
stue
Stue

Boligartikler

Nyttig informasjon, råd og inspirasjon for deg som er opptatt av bolig.
vo4
Aktuelt

178 dager uten bud; - Proaktiv solgte boligen min etter første visning

Huset i Vestre Olsvikveg hadde mistet alt av moment etter et halvt år ute i markedet. Da Proaktiv ved Jon Kristian Røsok kom inn i bildet ble...
n_r-16
Aktuelt

Drømmer du om å drive ditt eget meglerkontor?

Proaktiv Eiendomsmegling er alltid på utkikk etter flinke folk som ønsker å skape sin egen suksess. Er du en målrettet og verdiskapende megler, med...
ole4
Aktuelt

Bygget i 2021. Solgt for 2,5 millioner mer i 2025

Boligen i Ole I. Bores veg ble solgt for én million over prisantydning etter å ha ligget ute i markedet i kun en uke.