4867066_1a
Velkommen til en fin toppleilighet i Frydenlund borettslag på Lierstanda, rett utenfor Drammen sentrum. ( 1 av )
4867073_1a
Leiligheten ligger høyt og fritt uten gjenboere og med fjordutsikt og gode solforhold. ( 2 av )
4867057_1a
Utenfor stue og kjøkken er det 12 kvm sydvestvendt balkong. ( 3 av )
4867056_1a
Her kan du nyte solen uten innsyn. ( 4 av )
4867058_1a
Utsyn mot fellesområdene i borettslaget. ( 5 av )
4867074_1a
Utsikt fra balkongen. ( 6 av )
4866187_1a
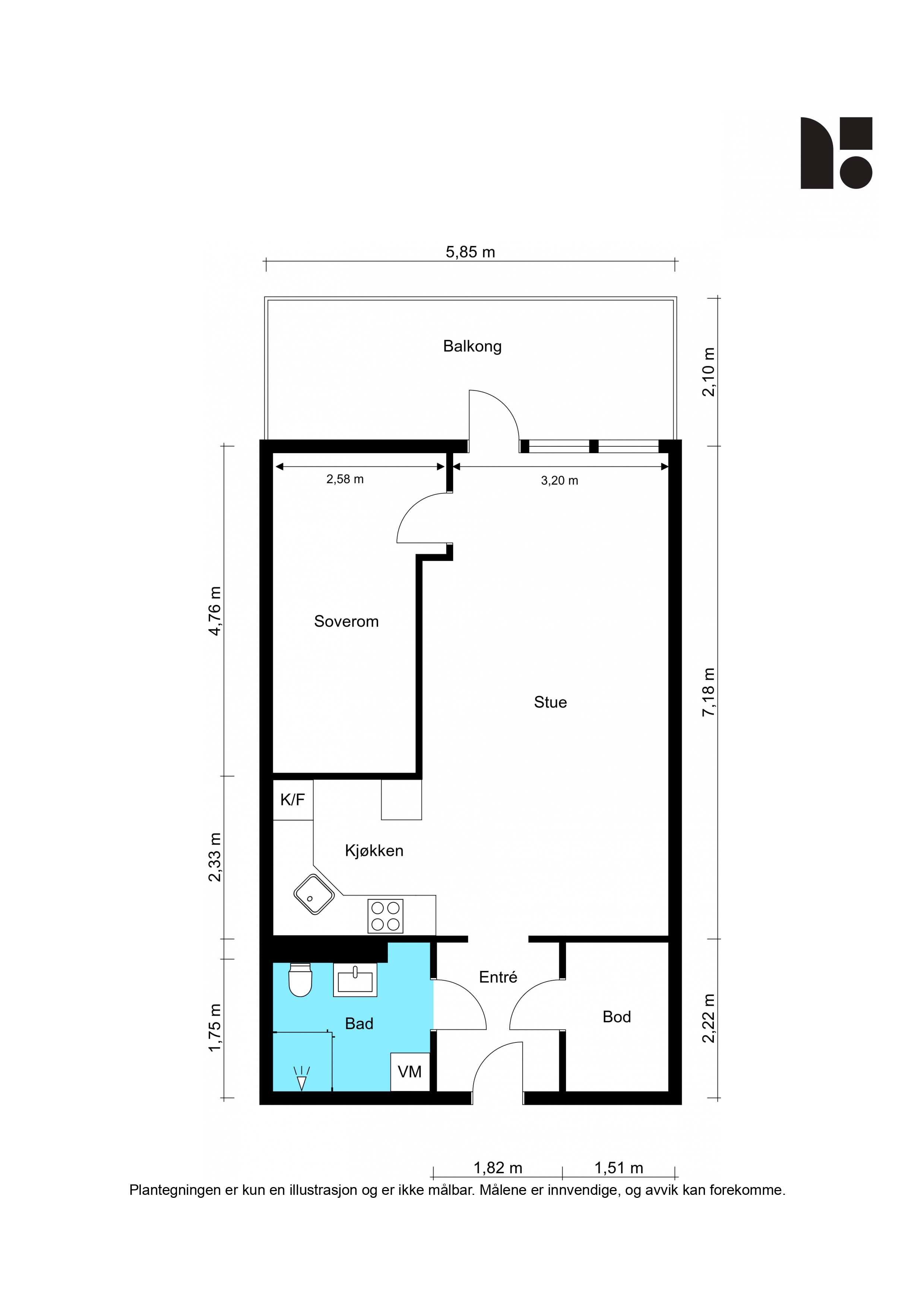
Plantegning 4. etasje. ( 7 av )
4867065_1a
Leiligheten har stue og kjøkken i åpen løsning. ( 8 av )
4867067_1a
Lyst og hyggelig med fin utsikt fra stuen. ( 9 av )
4867068_1a
Allrommet har parkettgulv, malt tak og malte og tapetserte vegger. ( 10 av )
4867069_1a
Det er plass til møblering av både sofagruppe og spisebord. ( 11 av )
4867070_1a
Stue, spisestue og kjøkken i åpen løsning. ( 12 av )
4867071_1a
Kjøkken i åpen løsning og likevel i egen sone. ( 13 av )
4867072_1a
Spisestue i tilknytning til kjøkken ( 14 av )
4867063_1a
Kjøkkenet har profilert innredning med malte fronter og laminat benkeplate. ( 15 av )
4867064_1a
Det er opplegg for oppvaskmaskin. ( 16 av )
4867061_1a
Lyst og delikat baderom totalrenovert i regi av borettslaget i 2023. ( 17 av )
4867059_1a
Badet har gulvvarme og downlightsbelysning. ( 18 av )
4867060_1a
( 19 av )
4867054_1a
Soverom med plass til dobbeltseng. ( 20 av )
4867055_1a
God oppbevaringsplass i stort skap. Naturlig lysinnslipp med fin utsikt, uten innsyn. ( 21 av )
4867062_1a
Flislagt entré med brann- og lyfklassifisert ytterdør. ( 22 av )
4867075_1a
Et hyggelig og veletablert borettslag med fine fellesområder. ( 23 av )
4867077_1a
Leiligheten ligger i 4. etasje (toppetasjen). ( 24 av )
4867076_1a
( 25 av )
4867078_1a
Plantegning 3D. ( 26 av )

Frydenlund 22C

Se alle bilder (0)
4867066_1a
4867073_1a
4867057_1a
4867056_1a
4867058_1a
4867074_1a
4866187_1a
4867065_1a
4867067_1a
4867068_1a
4867069_1a
4867070_1a
4867071_1a
4867072_1a
4867063_1a
4867064_1a
4867061_1a
4867059_1a
4867060_1a
4867054_1a
4867055_1a
4867062_1a
4867075_1a
4867077_1a
4867076_1a
4867078_1a

Frydenlund 22C

Prisantydning:
Fra Kr 2700000,00
til Kr 0,00
Totalpris:
Kr 3152587,00
BRA:
58,00 - 0,00
BRA-i:
55 - 0
Soverom:
1 - 0
Boligtype:
Leilighet
Eierform:
Eiet tomt
Byggeår:
1970
Etasje:
4
Tomteareal:
16600

Fin 2-roms toppleilighet med fjordutsikt og sydvestvendt balkong. Bad fra 2023. Ingen gjenboere. Kort vei til Drammen.

Ansvarlig megler:
Fredrik Engebråten

Partner / Eiendomsmegler

Visning

Det er for tiden ikke satt opp visningstid på denne eiendommen.
Ønsker du å avtale et visningstidspunkt?
Avtal privatvisning her

Frydenlund 22C

image005

Nøkkelinformasjon

plus_G_2025

BELIGGENHET

plus_G
minus_G

BESKRIVELSE AV EIENDOMMEN

plus_G
minus_G

BORETTSLAGET/ØKONOMI

plus_G
minus_G

OFFENTLIGE FORHOLD

plus_G
minus_G

PRISANTYDNING INKLUDERT OMKOSTNINGER

plus_G
minus_G

ØVRIGE KJØPSFORHOLD

plus_G
minus_G

Dokumenter

plus_G_2025

Del boligen

facebook-gold
Twitter-gold

Lurer du på noe om denne boligen?

Ta kontakt under via skjemaet.


Relaterte boliger

Mellomenga 21
5150000,00  0,00

Mellomenga 21

Lier ­ LIER
Delikat rekkehus betydelig oppusset i 2024. Perfekt for en barnefamilie. 3 soverom+loft. Garasje m/lader og bod.

Totalpris:

Kr 5293000,00

BRA-i:

120 m²
Kunterudveien 14C
3150000,00  0,00

Kunterudveien 14C

Lier ­ GULLAUG
Innbydende 3-roms leilighet over 2 plan. Balkong med gode solforhold og fin utsikt. Garasje m/lader. IN-ordning.

Totalpris:

Kr 3799878,00

BRA-i:

95 m²
Haugane 27
4500000,00  0,00

Haugane 27

Lier ­ TRANBY
Flott halvpart tomannsbolig over to plan med sol, utsikt og fine uteplasser. Garasje. Bad fra 2020. Blindvei.

Totalpris:

Kr 4908742,00

BRA-i:

124 m²
Strandtunet 31
3800000,00  0,00

Strandtunet 31

Lier ­ LIERSTRANDA
Gjennomgående 3-roms leilighet over to plan. Balkong med kveldssol og carport m/lader. Utleie tillatt. Sentralt.

Totalpris:

Kr 3909250,00

BRA-i:

65 m²
Saueveien 40
6800000,00  0,00

Saueveien 40

Lier ­ LIER
Fint beliggende enebolig på 1 måls hjørnetomt. Nydelig hage og solrik terrasse. 3 soverom + 2 bad. Garasje.

Totalpris:

Kr 6989250,00

BRA-i:

202 m²
Øvre Solspillet 4
7500000,00  0,00

Øvre Solspillet 4

Lier ­ LIER
Stor og delikat familiebolig i blindvei med panoramautsikt, 140m² uteplasser & dobbelgarasje. 4 sov. Rolig og markanært

Totalpris:

Kr 7705750,00

BRA-i:

212 m²
Haskollveien 28B
2600000,00  0,00

Haskollveien 28B

Lier ­ LIER
Stor 3-roms toppleilighet med nytt kjøkken fra 2023/2024, fin utsikt fra sydvestvendt innglasset balkong på 26m²

Totalpris:

Kr 3153689,00

BRA-i:

80 m²
Dokka 27
4500000,00  0,00

Dokka 27

Lier ­ REISTAD
Rålekker 3-roms selveier fra 2020, ytterligere oppgradert i 2022-2025, garasje og heis, sydvestvendt balkong m/utsikt.

Totalpris:

Kr 4625750,00

BRA-i:

62 m²
Torskroken 12C
2750000,00  0,00

Torskroken 12C

Lier ­ LIER
Lettstelt 2-roms selveierleilighet med solrik terrasse på hele 41m² og parkeringsplass. Rolig blindvei like ved marka.

Totalpris:

Kr 2832000,00

BRA-i:

49 m²
Haskollveien 6B
3350000,00  0,00

Haskollveien 6B

Lier ­ LIER
Rekkehus o/3 plan med 27 m² solrik terrasse, utebod og garasje. Nytt tak og vinduer i 2024. 3 sov og sep.vaskerom.

Totalpris:

Kr 4272818,00

BRA-i:

130 m²
Se flere boliger
Bolig til salgs

Inspirasjon

Inspirerende interiørbilder fra norske hjem.
sov1
Soverom
kjo1
Kjøkken
stue
Stue

Boligartikler

Nyttig informasjon, råd og inspirasjon for deg som er opptatt av bolig.
vo4
Aktuelt

178 dager uten bud; - Proaktiv solgte boligen min etter første visning

Huset i Vestre Olsvikveg hadde mistet alt av moment etter et halvt år ute i markedet. Da Proaktiv ved Jon Kristian Røsok kom inn i bildet ble...
n_r-16
Aktuelt

Drømmer du om å drive ditt eget meglerkontor?

Proaktiv Eiendomsmegling er alltid på utkikk etter flinke folk som ønsker å skape sin egen suksess. Er du en målrettet og verdiskapende megler, med...
ole4
Aktuelt

Bygget i 2021. Solgt for 2,5 millioner mer i 2025

Boligen i Ole I. Bores veg ble solgt for én million over prisantydning etter å ha ligget ute i markedet i kun en uke.