4837275_1a
PROAKTIV - Eksklusivt, nyoppført townhouse (168 kvm BRA) m/3sov/3bad/3 stuer - takterrasse - parkering - utleiemulighet ( 1 av )
4837317_1a
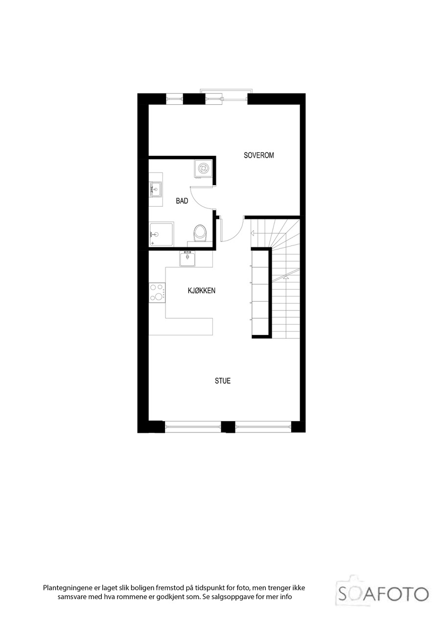
Planillustrasjon 1. etasje ( 2 av )
4837221_1a
Fra inngangspartiet blir du møtt av eksklusiv eikeparkett i en flott entré. Herfra går det en trapp opp til etasjen over og en dør inn i hovedstua. ( 3 av )
4837220_1a
( 4 av )
4837216_1a
Stue m/opplegg for kjøkken i 1. etasje ( 5 av )
4837217_1a
Videre inn i etasjen byr boligen på en fleksibel løsning, som kan brukes som næringsdel. Her kan ungdommen boltre seg med eget rom, bad og lydtette vinduer ut mot gata. Det er også en egen inng. i denne delen, hvis mor vil ha et kaffebesøk på hjemmekontor ( 6 av )
4837215_1a
( 7 av )
4837218_1a
Bad i 1. etasje ( 8 av )
4837219_1a
( 9 av )
4837222_1a
( 10 av )
4837318_1a
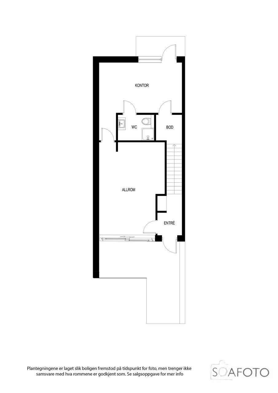
Planillustrasjon 2. etasje ( 11 av )
4837228_1a
I andre etasje blir du møtt med et lekkert Svane-kjøkken i eik. Den lyse eikefargen kjenner du igjen flere steder i boligen. Integrerte hvitevarer medfølger ( 12 av )
4837229_1a
( 13 av )
4837230_1a
( 14 av )
4837234_1a
Kjøkkenet er godt plassert i et innholdsrikt allrom med en ny stue/oppholdsdel. Dette allrommet vil garantert bli mye brukt! ( 15 av )
4837235_1a
( 16 av )
4837236_1a
Kjøkkenet er utstyrt med platetopp, stekeovn, oppvaskmaskin, kjøleskap og fryseskap. ( 17 av )
4837238_1a
( 18 av )
4837231_1a
( 19 av )
4837232_1a
( 20 av )
4837319_1a
Planillustrasjon 3. etasje ( 21 av )
4837223_1a
På den ene siden av kjøkkenet finner du master bedroom med et eget lekkert bad. Badet er innredet med store, sandfargede fliser og treffer godt med andre fargevalg i huset. På hovedsoverommet kan nye eiere enkelt sette opp en dør for walking closet. ( 22 av )
4837224_1a
( 23 av )
4837233_1a
DSCF8673 ( 24 av )
4837225_1a
( 25 av )
4837226_1a
( 26 av )
4837227_1a
( 27 av )
4837239_1a
En stor loftstue klar for tv og gaming, eller som et stort soverom for husets unge. Og utenfor: en herlig, solrik takterrasse med utsikt. På takterrassen er det også bygget en fullt isolert bod med utendørs vannuttak som holder sofaputer tørre og varme. ( 28 av )
4837242_1a
I etasjen er det også en soveromsdel med to gode soverom med tilhørende bad. ( 29 av )
4837243_1a
( 30 av )
4837244_1a
( 31 av )
4837241_1a
( 32 av )
4837240_1a
Takterrassen med sol fra tidlig formiddag til sene kvelden ( 33 av )
4837274_1a
( 34 av )
4837276_1a
( 35 av )
4837277_1a
( 36 av )
4837245_1a
MArkterrasse mot tunet i 1. etasje ( 37 av )
4837253_1a
Med sentrum for dine føtter! Fra boligen er det enkel gangavstand til alt av fasiliteter ( 38 av )
4837254_1a
( 39 av )
4837255_1a
( 40 av )
4837256_1a
( 41 av )
4837257_1a
( 42 av )
4837258_1a
( 43 av )

Jærveien 22C

Se alle bilder (0)
4837275_1a
4837317_1a
4837221_1a
4837220_1a
4837216_1a
4837217_1a
4837215_1a
4837218_1a
4837219_1a
4837222_1a
4837318_1a
4837228_1a
4837229_1a
4837230_1a
4837234_1a
4837235_1a
4837236_1a
4837238_1a
4837231_1a
4837232_1a
4837319_1a
4837223_1a
4837224_1a
4837233_1a
4837225_1a
4837226_1a
4837227_1a
4837239_1a
4837242_1a
4837243_1a
4837244_1a
4837241_1a
4837240_1a
4837274_1a
4837276_1a
4837277_1a
4837245_1a
4837253_1a
4837254_1a
4837255_1a
4837256_1a
4837257_1a
4837258_1a

Jærveien 22C

Prisantydning:
Fra Kr 9900000,00
til Kr 0,00
Totalpris:
Kr 9943250,00
BRA:
174,00 - 0,00
BRA-i:
166 - 0
Soverom:
3 - 0
Boligtype:
Leilighet
Eierform:
Fellestomt
Byggeår:
2025
Etasje:
0
Tomteareal:
823

Eksklusivt, nyoppført townhouse (174 kvm BRA) m/3sov/3bad/3 stuer - takterrasse - parkering - utleiemulighet

Ansvarlig megler:
Torbjørn Mannes Johansen

Daglig leder / Partner / Eiendomsmegler MNEF

Visning

Det er for tiden ikke satt opp visningstid på denne eiendommen.
Ønsker du å avtale et visningstidspunkt?
Avtal privatvisning her

Jærveien 22C

image005

Nøkkelinformasjon

plus_G_2025

BELIGGENHET

plus_G
minus_G

BESKRIVELSE AV EIENDOMMEN

plus_G
minus_G

OFFENTLIGE FORHOLD

plus_G
minus_G

PRISANTYDNING INKLUDERT OMKOSTNINGER

plus_G
minus_G

ØVRIGE KJØPSFORHOLD

plus_G
minus_G

Dokumenter

plus_G_2025

Del boligen

facebook-gold
Twitter-gold

Lurer du på noe om denne boligen?

Ta kontakt under via skjemaet.


Relaterte boliger

Amboltveien 132
6650000,00 - 7290000,00

Amboltveien 132

Sandnes ­ Hommersåk
1 AV 4 SOLGT | Eksklusive leiligheter på taket av Hommersåk | Oppvarming basert på vannbåren varme | Parkeringsanlegg

Totalpris:

Kr 6650000,00

BRA-i:

94 m²
Skogsbakken 8
12000000,00  0,00

Skogsbakken 8

Sandnes ­ SANDNES
Skogsbakken - Funksjonalistisk villa tegnet av Tonning & Øglænd - 280 m2 BRA over 2 plan - 1476 m2 parkmessig tomt

Totalpris:

Kr 12319250,00

BRA-i:

244 m²
Skaraveien 22
9600000,00  0,00

Skaraveien 22

Sandnes ­ SANDNES
Villa på 244 kvm BRA m/godkjent utleiedel og unike løsninger. Rå arkitektur og utsikt. Romslig garasje og nydelig hage

Totalpris:

Kr 9859250,00

BRA-i:

235 m²
Jærveien 22A
7900000,00  0,00

Jærveien 22A

Sandnes ­ Sandnes
Svært påkostet enebolig i eksklusive materialer som sink, aluminium, tegl (takstein) og impregnert tre.

Totalpris:

Kr 7943250,00

BRA-i:

122 m²
Jærveien 22B
10900000,00  0,00

Jærveien 22B

Sandnes ­ Sandnes
Eksklusivt, nyoppført townhouse (189 kvm BRA) med høy standard midt i sentrum - takterrasse - parkering - utleiemulighet

Totalpris:

Kr 10943250,00

BRA-i:

179 m²
Dreggjavikveien Tomt C
2400000,00  0,00

Dreggjavikveien Tomt C

Sandnes ­ Sandnes
Bersagel | Hyttetomt med fjordutsikt i nydelige omgivelser | Båtplass | Vann, avløp og veg

Totalpris:

Kr 2478250,00

P-rom:

0,00 m²
Dreggjavikveien Tomt A
2200000,00  0,00

Dreggjavikveien Tomt A

Sandnes ­ Sandnes
Bersagel | Hyttetomt med fjordutsikt i nydelige omgivelser | Båtplass | Vann, avløp og veg

Totalpris:

Kr 2273250,00

P-rom:

0,00 m²
Dreggjavikveien Tomt E
2200000,00  0,00

Dreggjavikveien Tomt E

Sandnes ­ Sandnes
Bersagel | Stor hyttetomt ved sjøen med skogen som nabo | Båtplass | Vann, avløp og veg

Totalpris:

Kr 2273250,00

P-rom:

0,00 m²
Dreggjavikveien Tomt B
2400000,00  0,00

Dreggjavikveien Tomt B

Sandnes ­ Sandnes
Bersagel | Hyttetomt med fjordutsikt i nydelige omgivelser | Båtplass | Vann, avløp og veg

Totalpris:

Kr 2478250,00

P-rom:

0,00 m²
Selvikveien 108
5000000,00  0,00

Selvikveien 108

Sandnes ­ Sandnes
Sjelden mulighet! Idyllisk landsted på 56 mål med strandlinje | Hytte, uthus, brygge og naust m/liten båt m/ 6 hk.

Totalpris:

Kr 5143250,00

BRA-i:

78 m²
Se flere boliger
Bolig til salgs

Inspirasjon

Inspirerende interiørbilder fra norske hjem.
sov1
Soverom
kjo1
Kjøkken
stue
Stue

Boligartikler

Nyttig informasjon, råd og inspirasjon for deg som er opptatt av bolig.
aaletidligute
Aktuelt

Kapret først drømmeboligen, solgte egen bolig få dager senere

Konseptet vårt, Tidlig ute, legger til rette for et stressfritt boligsalg på kundens premisser. Poenget er å være ute i god tid, slik at prosessen...
vo4
Aktuelt

178 dager uten bud; - Proaktiv solgte boligen min etter første visning

Huset i Vestre Olsvikveg hadde mistet alt av moment etter et halvt år ute i markedet. Da Proaktiv ved Jon Kristian Røsok kom inn i bildet ble...
n_r-16
Aktuelt

Drømmer du om å drive ditt eget meglerkontor?

Proaktiv Eiendomsmegling er alltid på utkikk etter flinke folk som ønsker å skape sin egen suksess. Er du en målrettet og verdiskapende megler, med...