Byggemåte
Utdrag fra tilstandsrapporten fra takstmann:
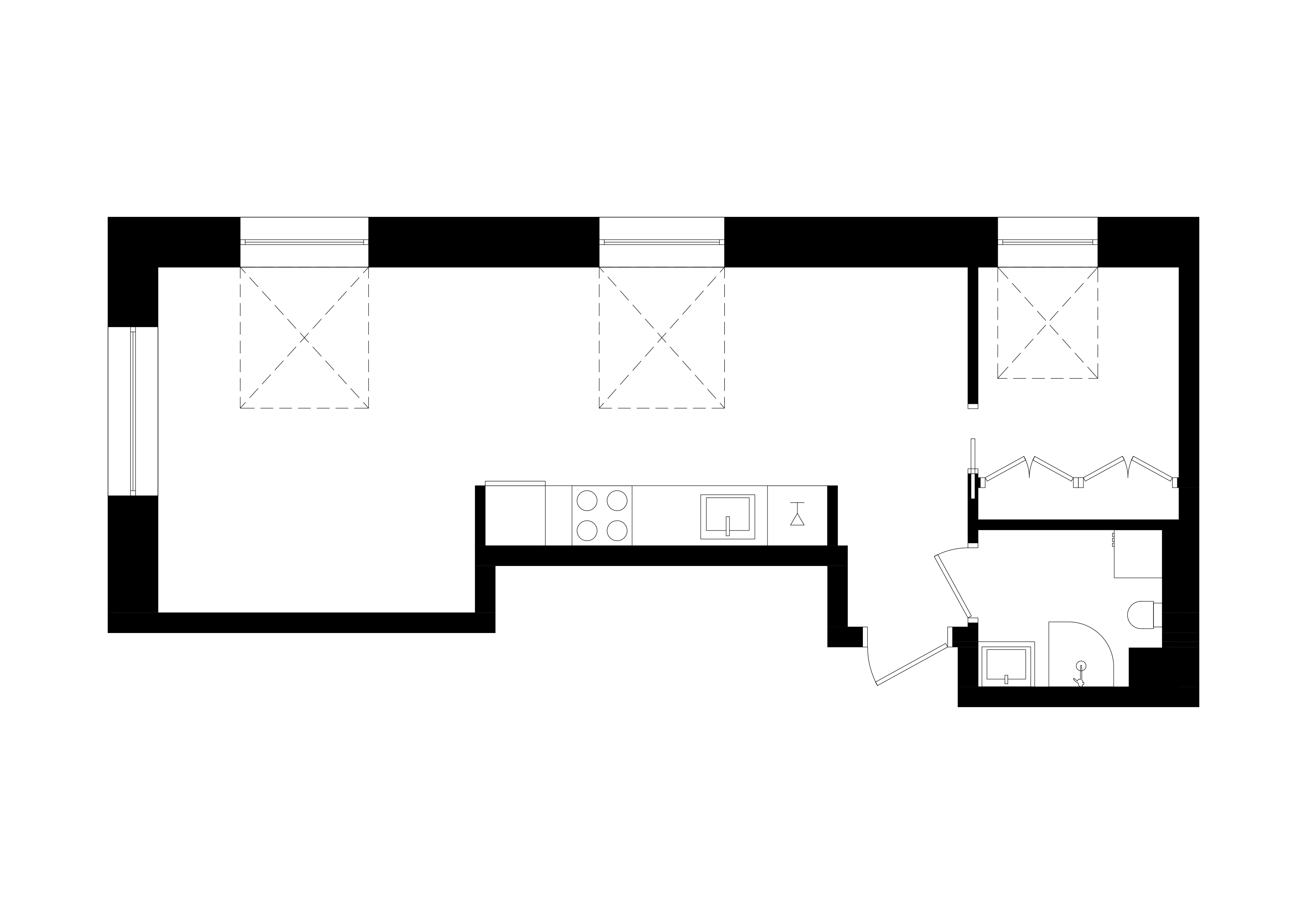
Leilighet i leilighetsbygg fra 2007.
Den er oppgradert med nytt gulv og malte overflater i 2025. Boligen er godt ivaretatt og gir ved gjennomsyn
et godt helhetsinntrykk.
Det er ikke registrert avvik utover normal slitasje iht alder.
For nærmere spesifisering, se vurderinger av de enkelte bygnings komponentene utover i rapporten.
UTVENDIG
Betongkonstruksjon med tett tekke. Takrenner, beslag og nedløp. Yttervegg i betongkonstruksjon. Vinduer
i tre med isolerglass. Ytterdør i tre.
INNVENDIG
Parkett på gulvoverflater. Malte veggoverflater. Malte takflater. Etasjeskillere i betong. Innvendig dører i tre
og finer.
VÅTROM
Bad/vaskerom fra byggeåret. Flis på veggoverflater. Malt tak. Flislagt gulv med elektriske varmekabler.
Plast sluk med metallrist. Innredning på bad med speil, benkeskap, servant og blandebatteri.
Vegg-montert toalett. Dusj med glass-vegg. Opplegg for vaskemaskin med stoppekrane. Mekanisk
ventilasjon.
KJØKKEN
Kjøkken fra byggeåret, velutstyrt med god skapplass. Mekanisk ventilasjon.
TEKNISKE INSTALLASJONER
Rør i rør system. Avløpsrør i plast. Mekanisk avtrekk fra kjøkken og bad/vaskerom. Ventilering via åpning
av vinduer. Sprinkler anlegg. Varmtvannstank fra 2007.
LOVLIGHET
Boligbygg med flere boenheter.
Det foreligger godkjente og byggemeldte tegninger, men de stemmer ikke med dagens bruk:
Det er i dag skille-vegg med dør mellom stue/kjøkken og soverom.
Det er gitt 10 stk. TG-2 og 5 stk. TG-IU i rapporten.
Bygningsdeler med TG-2, Avvik som kan kreve tiltak:
Utvendig > Vinduer
Vinduer i tre med isolerglass. Normal levetid er 20- 60 år. Byggforskserien 700.320
Vurdering av avvik:
Mer enn 50% av normal levetid som er 20- 60 år er oversteget. Byggforskserien 700.320
Konsekvens/tiltak:
Justeringer/vedlikehold som normalt. Utskifting via sameie.
Utvendig > Dører
Ytterdør i tre. Normal levetid på ytterdører er 20-40 år. Byggforskserien 700.320
Vurdering av avvik:
Ytterdører bærer preg av slitasje. Mer enn 50% av normal levetid som er 20-40 år er oversteget.
Byggforskserien 700.320
Konsekvens/tiltak:
Justeringer/vedlikehold anbefales.
Innvendig > Etasjeskille/gulv mot grunn
Etasjeskillere i betong.
Vurdering av avvik:
- Stue/kjøkken har høydeforskjeller på opp mot 25mm på kontrollerte steder.
- Soverom har høydeforskjeller på opp mot 10mm på kontrollerte steder.
Konsekvens/tiltak:
Ingen umiddelbare tiltak er påkrevd. Årsak/grunn til høydeforskjeller er ikke vurdert. Jevnlig kontroll
anbefales over tid.
Tekniske installasjoner > Vannledninger
Rør i rør system.
Vurdering av avvik:
Rør i rør skap/fordelerskap var ikke tilgjengelig på befaringsdagen.
Konsekvens/tiltak:
Det anbefales kontroll av godgkjendt foretak grunnet tilkomst og alder.
Tekniske installasjoner > Varmtvannstank
Varmtvannstank fra 2007.
Vurdering av avvik:
Bereder er plassert på soverom/sovealkove på vegg. Det er ikke montert fast tilkobling med egen bryter
og elektrisk vannstopper.
Konsekvens/tiltak:
Bereder fungerer i dag, men grunnet alder og ovenstående punkter på avvik anbefales
utskiftning/oppgradering i tiden som kommer. Det må monteres elektrisk fast tilkobling med egen bryter
og elektronisk vannstopper/Waterguard for å tilfredsstille dagens krav.
Våtrom > 6. Etasje > Bad/vaskerom > Overflater vegger og himling
Flis på veggoverflater. Malt tak.
Vurdering av avvik:
Alder på membran og fliser på lettvegg har oversteget 50% av normal levetid på 10-20 år iht.
Byggforskserien 700.320 Det registreres noe slitasje i flisefuger og silikonfuger. Slitasjen er normal iht.
alder.
Konsekvens/tiltak:
Jevnlig kontroll og ettersyn anbefales da bad har oversteget 50% av levetid. Lokale oppgraderinger av
silikonfuger/fuger mellom fliser anbefales i tiden som kommer.
Våtrom > 6. Etasje > Bad/vaskerom > Overflater Gulv
Flislagt gulv med elektriske varmekabler.
Vurdering av avvik:
Alder på membran og fliser har oversteget 50% av normal levetid på 20-40 år iht. Byggforskserien
700.320. Noe slitasje i silikonfuger og flisefuger registreres. Manglende vedheft og noe kalkutslag. Fall på
gulvtil sluk tilfredstiller ikke dagens krav. Slitasjen er normal iht. alder.
Konsekvens/tiltak:
Jevnlig kontroll og ettersyn anbefales da bad/vaskerom har oversteget 50% av levetid. Oppgraderinger
anbefales i tiden som kommer.
Våtrom > 6. Etasje > Bad/vaskerom > Sluk, membran og tettesjikt
Plast sluk med metallrist.
Vurdering av avvik:
Alder på membran har oversteget 50% av normal levetid på 20-40 år iht. Byggforskserien 700.320. Ikke
synlig membran under klemring i sluk, den kan være skjult.
Konsekvens/tiltak:
Jevnlig kontroll og ettersyn anbefales da bad har oversteget 50% av levetid.
Våtrom > 6. Etasje > Bad/vaskerom > Sanitærutstyr og innredning
Innredning på bad med speil, benkeskap, servant og blandebatteri. Vegg-montert toalett. Det er ikke
synlig drenering fra innebygget sisternen. Den kan være skjult. Dusj med glass-vegg. Opplegg for
vaskemaskin med stoppekrane.
Vurdering av avvik:
Innredning er av eldre dato.
Konsekvens/tiltak:
Jevnlig kontroll og ettersyn anbefales da innredning har oversteget 50% av levetid.
Kjøkken > 6. Etasje > Stue/kjøkken > Overflater og innredning
Kjøkken fra byggeåret, velutstyrt med god skapplass.
Vurdering av avvik:
Vannstopper og komfyrvakt anbefales innstallert iht dagens krav. Slitasje rift og merker registreres.
Slitasjen er normal iht. alder.
Konsekvens/tiltak:
Oppgraderinger anbefales iht dagens krav mtp. el. vannstopper og komfyrvakt. Generell oppgradering av
overflater etter ønske/behov.
Bygningsdeler med TG-IU, konstruksjoner som ikke er undersøkt:
Utvendig > Taktekking
Utvendig > Nedløp og beslag
Utvendig > Veggkonstruksjon
Tekniske installasjoner > Andre VVS-installasjoner
Våtrom > 6. Etasje > Bad/vaskerom > Fukt i tilliggende konstruksjoner
Hulltaking er ikke foretatt da det ikke er fysisk mulig pga. tilliggende konstruksjoner.
Se vedlagt tilstandsrapport avholdt 27.11.25, hvor ovennevnte opplysninger er hentet fra, for
nærmere teknisk beskrivelse av eiendommen.