Standard
En gjennomgang av boligens rom:
1. etasje:
Romslig og gjennomgående stue med mye lysinnslipp og utgang til terrassen. Stuens utforming gir
plass til flere soner og midt i rommet er det etablert en plassbygget peis. I stuen er det også montert en
luft/luft varmepumpe i 2022.
Kjøkkenet ligger separat med adkomst fra gangen og i fra stuen. Et hyggelig kjøkkenrom med god plass
til spisebord. Takhøy innredning fra Norema, montert i 2020 med hvite, profilerte fronter og laminat
benkeplate med kum. Komplett utstyrt med integrerte hvitevarer som kjøl/frys, oppvaskmaskin, platetopp
og stekeovn og kombiovn i riktig høyde.
Badet i 1. etasje ble pusset opp i 2021 og fremstår som moderne og lekkert. Her er det flislagt gulv med
varme, våtromsplater på veggene og panel i taket med downlightsbelysning. Stilren innredning med
servant nedfelt i skuffeseksjon, speilskap med belysning og ekstra veggskap ved siden av. Videre er det
vegghengt toalett og regnfallsdusj i hjørnet.
Soverom i 1. etasje med god plass til dobbeltsengen. Garderobeskap langs den ene veggen. Mellom
soverommet og vaskerommet ligger et kontor med god plass til hjemmearbeid.
Vaskerommet har egen dør ut. Innredning med profilerte fronter, laminat benkeplate og skyllekum.
Opplegg for vaskemaskin og tørketrommel.
2. etasje:
Oppe ligger to soverom, begge med plass til seng, nattbord og garderobeskap. Loftstue med plass til en
avslappende sofagruppe. Et flott tilleggsareal for familien.
Toalettrom med gulvbelegg, tapetvegger og enkel innredning med toalett og servant.
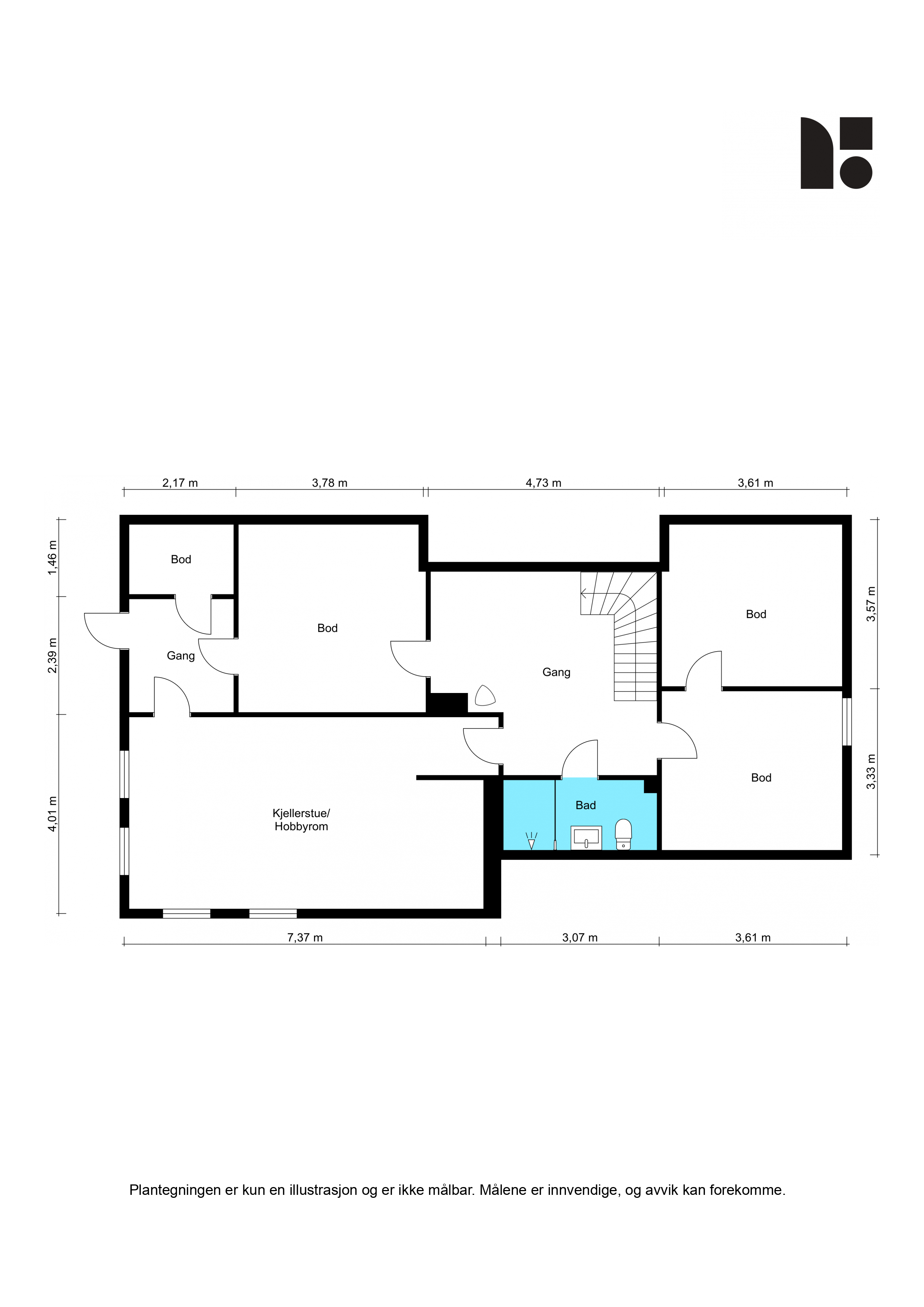
Kjeller:
Gode oppbevaringsmuligheter i kjelleren i flere boder og skap. Varmtvannstank á 198 liter fra 2006 er
plassert i en av bodene.
Det gjøres oppmerksomt på at kjellerstuen ikke er godkjent for varig opphold. Tegnet inn og godkjent som
hobbyrom på byggetegninger. Varmekabler i gulvet.
I trappegangen er det montert en sjarmerende støpejernsovn.
Badet var opprinnelig deler av en bod. Innredning med dusjnisje, toalett og servant med skap og speil.
Selger har i forbindelse med salget innhentet en tilstandsrapport. Rapporten er en teknisk gjennomgang
av boligen og angir eventuelle byggetekniske avvik, samt kostnadsoverslag for eventuelle oppgraderinger.
Vi vil gjøre spesielt oppmerksom på viktigheten av å lese igjennom rapportens TGIU (tilstandsgrad ikke
undersøkt), samt TG2 og TG3 som angir avvik fra normal slitasje, høy alder, bygningsdel som må
utbedres, og lignende.
Tilstandsgrad 0, TG0: Ingen avvik.
Tilstandsgrad 1, TG1: Mindre avvik.
Tilstandsgrad 2, TG2: Vesentlige avvik og mindre avvik som etter NS 3600 gir TG2.
Tilstandsgrad 3, TG3: Store eller alvorlige avvik.
- Taktekking: Det ble registrert fuktmerker i undertaket og på isolasjonsmatter. Det er registrert mose på
taket. Taktekkingen har nådd en alder der slitasje øker risikoen for lekkasjer.
- Nedløp og beslag: Det er registrert avvik i beslagsløsningene. Det er ikke montert snøfangere på hele
taket, men dette var ikke et krav da boligen ble oppført. Beslag, takrenner og nedløp har oppnådd en alder
der slitasje kan øke muligheten for reparasjoner/utskiftning.
- Veggkonstruksjon: Kledningen har værslitasje inkludert sprekkdannelser. Det ble ikke registrert synlig
musesperre ved stikkprøvekontroll. Ved stikkprøvekontroll er det registrert manglende luftespalte i
nedkant av kledningen. Malingen «bobler» på flere steder rundt fasaden. Det er registrert vegetasjon
på/mot fasaden.
- Takkonstruksjon/loft: Det er registrert fuktmerker i undertaket enkelte steder. Takkonstruksjonen over
loftstuen og detaljer rundt pipen er en lukket konstruksjon og kan ikke inspiseres.
- Vinduer: Vinduene har passert mer enn halvparten av forventet levetid og har bruksslitasje. Det ble ved
stikkprøver registrert vinduer som tar i karmen ved en enkel funksjonstest.
- Dører: Det er registrert værslitt treverk med sprekker, spesielt på ytterdør i kjeller. Det ble registrert dør
som tar i karmen. Dører har passert mer enn halvparten av forventet levetid og har bruksslitasje.
- Terrasser/balkonger: Rekkverket er lavere enn dagens krav. Det er registrert sprekker i treverket. Det er
registrert slitasje på konstruksjonen.
- Rom under terreng: Rom som er utforet og kledd med organisk materiale som for eksempel treverk eller
gips og ligende, må anses som risikoutsatt for fuktproblematikk. Det er målt moderate fuktnivåer som
tyder på fuktbelastning i konstruksjonen.
- Innvendige trapper: Rekkverkshøyden er målt til under dagens krav på 0,9 meter. Det er registrert
åpninger større enn 0,1 meter.
- Innvendige dører: Det er registrert at enkelte er eldre og tar i karmen.
- Kjellerbad: Riss er observert i flisefuger. Det er registrert sprekker i enkelte fliser. Det er registrert bom i
fliser (hulrom mellom flis og fliselim). Det er registrert svertesopp på fuger. Det er en dør innenfor en våt
sone i rommet. Konstruksjonen har passert halvparten av forventet levetid og har bruksslitasje. Overflater
gulv; Riss er observert i flisefuger. Det er registrert sprekker i enkelte fliser. Det er registrert bom i fliser
(hulrom mellom flis og fliselim). Det er registrert svertesopp på fuger. Fallet mot sluket er ikke
tilfredsstillende. Det er noe muligheter for vannansamlinger på gulvet. Konstruksjonen har passert
halvparten av forventet levetid og har bruksslitasje. Membranen og sluket har passert halvparten av
forventet levetid. Det er registrert svelling i baderomsinnredningen. Armaturer har passert halvparten av
forventet levetid. Avtrekket skjer via naturlig oppdriftsventilasjon. Det er ingen luftespalte under døren eller
annen tilluftåpning.
- Vaskerom: Veggene er dekket med malte overflater, en eldre løsning uten dokumentert våtromsegnet
malingssystem. onstruksjonen har passert halvparten av forventet levetid og har bruksslitasje. Fallet mot
sluket er ikke tilfredsstillende. Høydeforskjell mellom topp slukrist og overkant gulv ved døren er lavere
enn 25 mm. Membranen og sluket har passert halvparten av forventet levetid. Konstruksjonen er oppført
før det kom krav om vanntett sjikt i alle våtsoner. Det er registrert svelling i baderomsinnredningen.
Armaturer har passert halvparten av forventet levetid. Det er ingen luftespalte under døren eller annen
tilluftåpning.
- Toalettrom: Rommet er utstyrt med et oppdriftsventilasjonssystem, som fungerer ved hjelp av naturlig
luftstrøm. Sanitærutstyret har passert halvparten av forventet levetid.
- Vannledninger: Det er registrert korrosjon på vannrørene. Vannledningene har passert halvparten av
forventet levetid.
- Avløpsrør: Rørene har passert halvparten av forventet levetid.
- Ventilasjon: Boligen har oppdriftsventilasjon (naturlig ventilering), noe som var vanlig da den ble bygget,
men regnes som avvik etter rapportens referansenivå. Det er ingen luftespalte under døren mot et eldre
bad og vaskerom eller annen tilluftåpning.
- Varmepumpe ved trapp: Ingen dokumentasjon på service eller inspeksjon de siste to årene på eldre
varmepumpe. Alder.
- Fuktsikring og drenering: Eventuell drenering skjult i bakken har oppnådd mer enn halvparten av
forventet levetid.
- Grunnmur og fundamenter: Det er skjevheter i gulvoverflatene i boligen, noe som kan sees i
sammenheng med mindre setninger. Boligen er oppført med multimur, en grunnmur av betong med
gips-/treinnslag og polyuretan-isolasjon i kjernen.
- Terrengforhold: Terrenget har ikke tilfredstillende fall fra grunnmuren (mindre enn ca. 1:50 over 3 m).
Se vedlagte tilstandsrapport der byggemåte er nærmere beskrevet, og også gitte tilstandsgrader
fremkommer.