Standard
En gjennomgang av boligens rom:
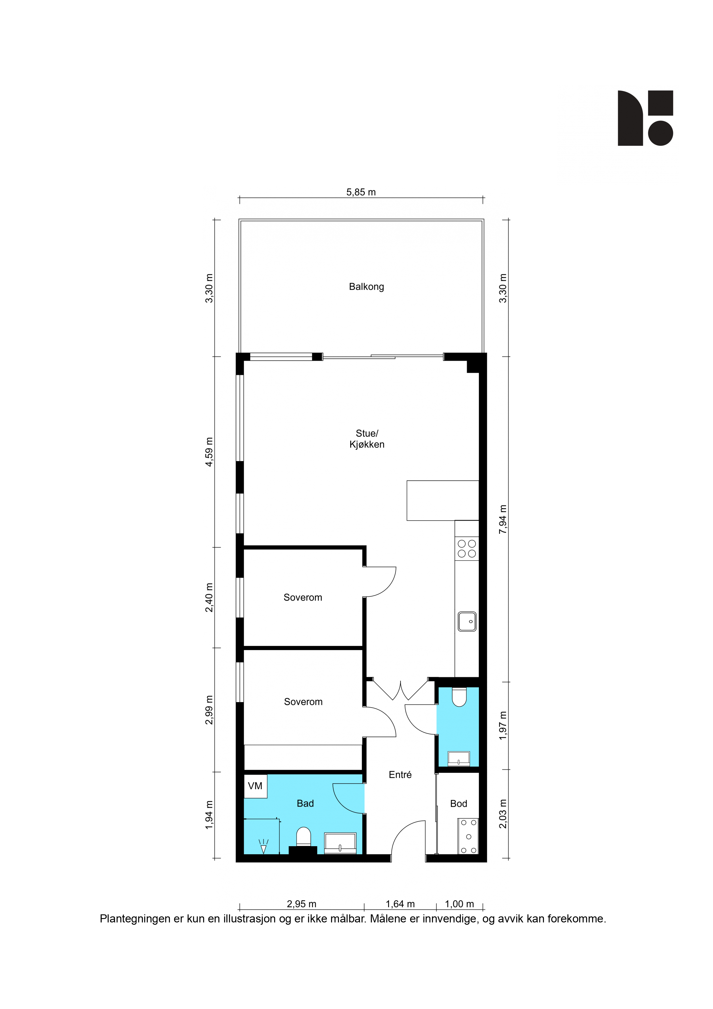
Entré:
Trappefri adkomst via heis opp til leiligheten som ligger i byggets 2. etasje. Her venter en
imøtekommende entré som gir et solid førsteinntrykk. Her er det plassbygget skyvedørsgarderobe som
skaper en fin orden i hverdagen. Fra entreen er det tilgang til ett av soverommene, badet og et flott
gjestetoalett, og det er dør inn til allrommet, noe som regulerer både støy og temperatur. Gulvfliser med
vannbåren varme under og ny ytterdør fra 2025.
Stue og kjøkken:
Leiligheten har en åpen stue/kjøkken-løsning som er lys, praktisk og enkel å møblere. Her er det deilig å
slappe av, men dette er også et sted hvor venner og familie alltid er velkomne. Gulvet er dekket lyst
parkettgulv med vannbåren varme og veggene er holdt i nøytrale toner, noe som gjør det enkelt å sette sitt
personlige preg. Store vinduer ut mot balkongen og bred skyvedør i glass ut til uteplassen hvor utsikten
kan nytes ytterligere.
Stilrent og moderne kjøkken fra Huseby med glatte fronter, rene linjer og godt med oppbevaringsplass.
Hvit innredning og laminat benkeplate med nedfelt kum. Komplett utstyrt med integrerte hvitevarer som
platetopp, stekeovn, oppvaskmaskin og kjøleskap med fryser.
Baderom og toalettrom:
Helfliset og lekkert baderom med flislagte vegger og gulv i beige-toner, behagelig gulvvarme og diskret
downlightsbelysning. Utstyrt med dusjhjørne, vegghengt toalett, servant nedfelt i skuffeseksjon og speil
med integrert belysning over. Opplegg for vaskemaskin.
Leiligheten har i tillegg et separat toalettrom med adkomst fra entreen. Toalettrommet har tilsvarende
fliser som badet med behagelig varme i gulvet. Utstyrt med vegghengt toalett og servant med speil.
Soverom:
Leiligheten har to gode soverom med lyse overflater, parkettgulv og god plass til seng, nattbord og
garderobeskap.
Selger har i forbindelse med salget innhentet en tilstandsrapport. Rapporten er en teknisk gjennomgang
av boligen og angir eventuelle byggetekniske avvik, samt kostnadsoverslag for eventuelle oppgraderinger.
Det er ikke registrert noen tilfeller av tilstandsgrad 2 eller tilstandsgrad 3.
Se vedlagte tilstandsrapport der byggemåte er nærmere beskrevet.