Vi har byttet meglersystem. Noe avvik kan derfor forekomme. Kontakt oss om du opplever utfordringer.
Vi har byttet meglersystem. Noe avvik kan derfor forekomme. Kontakt oss om du opplever utfordringer.
logo
search
879720971373992
Proaktiv v/ Markus Alm Thoen ønsker velkommen til Tors vei 44A! ( 1 av )
879720971374000
Pen leilighet i 3. etasje, med flott utsikt ned mot Drammen sentrum. ( 2 av )
879720971373998
Leiligheten byr på vestvendt og overbygd balkong med lite innsyn. ( 3 av )
879720971374002
Balkongen er ca. 4 kvm. ( 4 av )
879720971374006
Rett utenfor leiligheten er det stort markaområde med turstier. Stille og rolig og samtidig kort vei til alle nødvendigheter. ( 5 av )
879720971373957
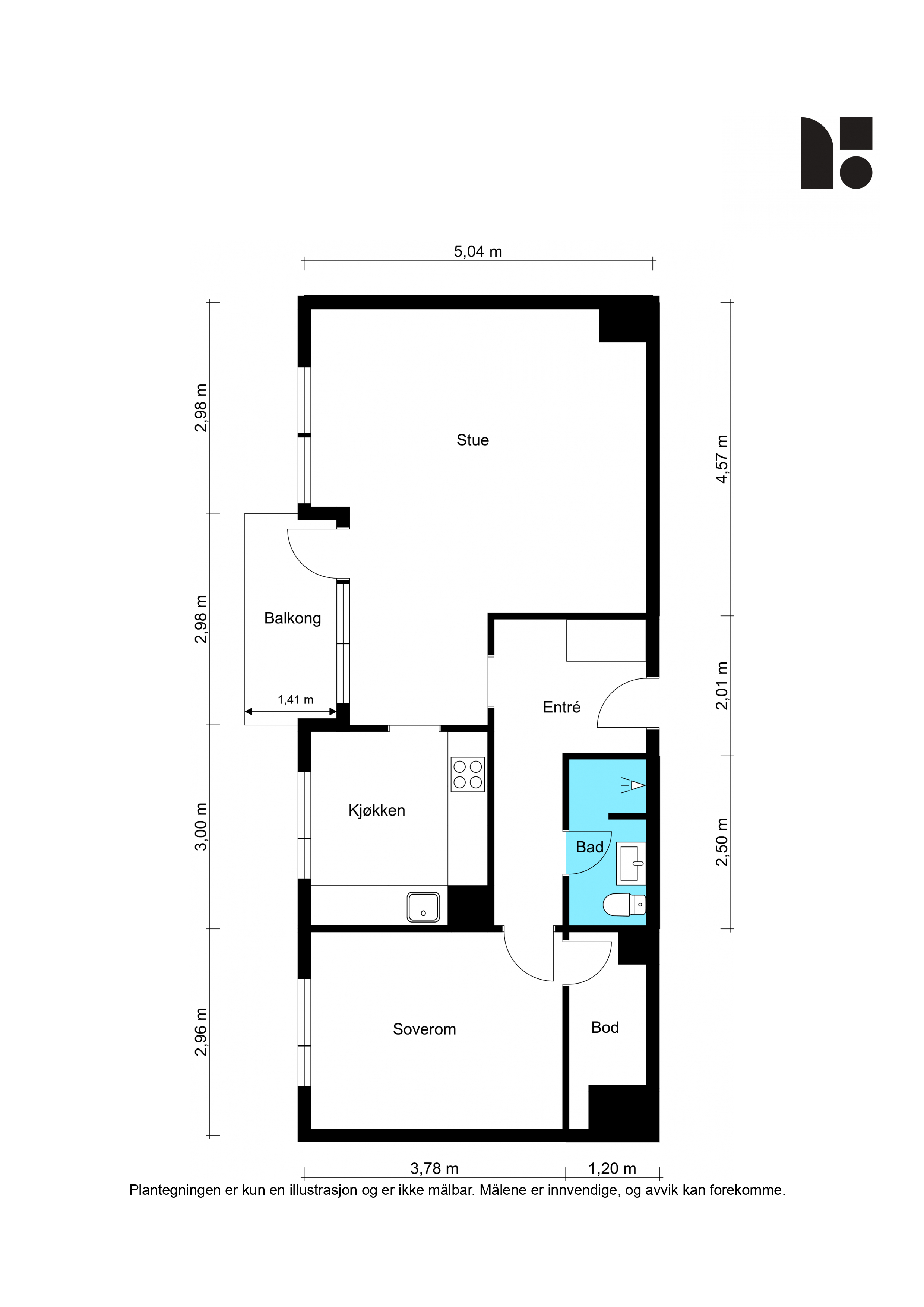
Plantegning. ( 6 av )
879720971373994
Leiligheten har stor og lys stue med vinduer langs hele langsiden og utgang til balkong. ( 7 av )
879720971373993
Rommet er malt i hvitt med kontrastvegger i sort. ( 8 av )
879720971373995
Gulvet har laminat. Her kan du enkelt innrede etter egen smak. ( 9 av )
879720971373996
Det er plass til sofagruppe m/tv-møblement, spisebord og oppbevaring. ( 10 av )
879720971373997
Hyggelig utsikt fra spiseplassen. ( 11 av )
879720971374003
Kjøkkenet ligger i eget rom med delvis åpen løsning til stuen. ( 12 av )
879720971374001
Romslig og praktisk kjøkken med god lagringsplass og opplegg for vaskemaskin. ( 13 av )
879720971373999
Hyggelig utsyn også her. ( 14 av )
879720971374012
Bad med flislagt gulv og elektrisk vifte. ( 15 av )
879720971374015
Badet har dusjnisje, toalett, servantskap og speil. ( 16 av )
879720971374004
Lunt og hyggelig soverom vendt mot marka. ( 17 av )
879720971374007
Rommet har garderobeskap og plass til dobbeltseng. ( 18 av )
879720971374010
Innenfor soverommet er det innvendig bod. ( 19 av )
879720971374017
Gang med plassbygd garderobeskap. ( 20 av )
879720971374009
( 21 av )
879720971374020
Leiligheten disponerer to boder i kjelleren. ( 22 av )
879720971374018
Et hyggelig og veldrevet borettslag med fine uteområder og umiddelbar nærhet til marka og buss. ( 23 av )
879720971374014
Ingen dokumentavgift ved kjøp. ( 24 av )

Tors vei 44A

Se alle bilder (0)
879720971373992
879720971374000
879720971373998
879720971374002
879720971374006
879720971373957
879720971373994
879720971373993
879720971373995
879720971373996
879720971373997
879720971374003
879720971374001
879720971373999
879720971374012
879720971374015
879720971374004
879720971374007
879720971374010
879720971374017
879720971374009
879720971374020
879720971374018
879720971374014

Tors vei 44A

Prisantydning:
Kr 2750000
Totalpris:
Kr 2800033
BRA:
63
BRA-i:
60
Soverom:
1
Boligtype:
Leilighet
Eierform:
Andel​
Byggeår:
1973
Etasje:
3
Tomteareal:
13287

Pen 2-roms i 3 etg med fin utsikt og balkong. Rolig område ved marka. Direkte tilgang til Nordbykollen.

Velkommen til en fin og praktisk 2-roms andelsleilighet i Tors vei 44A. Her bor du i stille og rolig område med tursti rett utenfor døren, samt umiddelbar tilgang til buss ned til Drammen sentrum og togstasjonen. Det er kort vei til alle nødvendige servicetilbud. Leiligheten ligger i byggets 3. etasje, høyt og fritt med fin utsikt og lite innsyn. Vestvendt og overbygd balkong på ca. 4 kvm, med gode solforhold og hyggelig utsyn. God planløsning innvendig med romslig entré, stue, kjøkken m/opplegg for vaskemaskin, bad, og soverom m/ tilliggende bod. To eksterne boder i kjeller medfølger også. Utenfor blokkene er det gruset plass med mulighet for parkering for beboerne. - Ingen dokumentavgift ved kjøp. - Sikringsordning i borettslaget. - Lave månedlige felleskostnader.
Ansvarlig megler:
Markus Alm Thoen

Eiendomsmegler

Visning

For at vår megler og selger skal kunne gi deg den beste oppfølgingen og kjøpsopplevelsen er det obligatorisk påmelding til alle våre visninger. Dersom ditt reserverte tidspunkt likevel ikke kan benyttes trenger vi beskjed så tidlig som mulig sånn at vi kan finne en alternativ løsning. Vi har alltid tid til deg. Visninger uten påmeldte deltagere avlyses.

23.04.2026 17:00 - 17:45

Legg visning til i kalender 23.04.2026 17:00 23.04.2026 17:45 Central European Time Visning av Tors vei 44A, 3040 DRAMMEN Boligvisning av Tors vei 44A, 3040 DRAMMEN Tors vei 44A, 3040 DRAMMEN

Passer ikke visningstidspunktene?

Avtal privatvisning her
Visningspåmelding

Tors vei 44A

image005

Nøkkelinformasjon

plus_G

Områdebeskrivelse

plus_G
minus_G

Beskrivelse av eiendommen

plus_G
minus_G

Takst og Tilstand

plus_G
minus_G

Borettslaget/sameie/økonomi

plus_G
minus_G

Offentlige forhold

plus_G
minus_G

Prisantydning inkl. omkostninger

plus_G
minus_G

Øvrige kjøpsforhold

plus_G
minus_G

Dokumenter

plus_G

Del boligen

facebook-gold
Twitter-gold

Lurer du på noe om denne boligen?

Ta kontakt under via skjemaet.



Relaterte boliger

879720971373668
2490000 

Maria Fegths gate 8E

Drammen ­ DRAMMEN
Smakfull 2-roms toppleilighet i stille og rolig område. Peis. Solrik balkong med hyggelig utsyn. Fast p-plass.

Totalpris:

Kr 2607745

BRA-i:

46 m²
879720971371561
2300000 

Svelvikveien 61B

Drammen ­ DRAMMEN
Nyoppført og innflyttningsklar 3-roms med utsikt mot fjorden. Stor balkong, heis og fast garasjeplass. 2 delikate bad.

Totalpris:

Kr 5753990

BRA-i:

90 m²
830242948126057
3850000 

Myrvangen 26

Drammen ­ DRAMMEN
Halvpart tomannsbolig innerst i rolig blindvei. Vestvendt hage og terrasse. Garasje og p-plass. 3 minutter til skolen!

Totalpris:

Kr 4026732

BRA-i:

122 m²
830242948125999
8750000 

Meiselen 42

Drammen ­ DRAMMEN
Særdeles delikat og oppgradert enebolig fra 2015. Sol og panoramautsikt over Drammen by. Garasje og carport. Blindvei!

Totalpris:

Kr 8987740

BRA-i:

143 m²
879720971373592
4490000 

Linneaveien 25

Drammen ­ MJØNDALEN
Flott familiebolig o/3 plan i rolig og markanært område. Usjenert uteplass + hage & garasje. Gangavstand til barnehage og skole.

Totalpris:

Kr 4621240

BRA-i:

145 m²
879720971373623
2300000 

Ingeniør Rybergs gate 11A

Drammen ­ DRAMMEN
Attraktiv og pen 2-roms med bad fra 2025. Innglasset balkong på 14m² mot vest og p-plass. Sentralt beliggende.

Totalpris:

Kr 2656864

BRA-i:

35 m²
830242948125334
4250000 

Nedre Kiøsterudsgate 2

Drammen ­ DRAMMEN
Gjennomført og stor selveierleilighet på 100m² med balkong og p-plass. Stort lagringsloft. Rett ved Drammenselva.

Totalpris:

Kr 4357340

BRA-i:

100 m²
879720971373282
2350000 

Underlia 45

Drammen ­ DRAMMEN
Delikat 2-roms med balkong og flott utsikt. A konto varmtvann inkl. Parkeringsmulighet. Ingen forkjøpsrett. Rett v marka

Totalpris:

Kr 2472459

BRA-i:

43 m²
879720971373257
3090000 

Christen Smiths gate 12A

Drammen ­ DRAMMEN
Perfekt førstegangskjøp - Sentral og gjennomgående 2-roms med gangavstand til "alt". Gasspeis. Garasjeplass, bod og heis. Fjernvarme inkl.

Totalpris:

Kr 3168340

BRA-i:

33 m²
879720971373755
3890000 

Båtbyggerveien 19

Drammen ­ SOLBERGELVA
Pen rekkehusleilighet med alt på en flate, stor terrasse og garasje. Kjøkken fra 2023. Peis. Rolig og barnevennlig nabolag.

Totalpris:

Kr 4032389

BRA-i:

76 m²
Se flere boliger
Bolig til salgs

Inspirasjon

Inspirerende interiørbilder fra norske hjem.
sov1
Soverom
kjo1
Kjøkken
stue
Stue

Boligartikler

Nyttig informasjon, råd og inspirasjon for deg som er opptatt av bolig.
art

Hvilken tid på året er best for å selge bolig?

Først og fremst avhenger tidspunktet av både boligtype og boligens fasiliteter når du skal selge bolig. Rekkehus med hage eller sentrumsleilighet...
hage4

Dette bør du gjøre for å øke boligens verdi før salg

Du har sikkert hørt flere nyttige råd i forbindelse med klargjøring av bolig før salg. Male tak og vegger, gå over alle lyskilder og høytrykk-spyle...
GA4

Slik gjør du boligen klar for salg; - Jeg fikk konkrete råd før foto

Mange er i gang med det årlige vedlikeholdsarbeidet, spesielt utendørs rundt boligen. Da Robert skulle selge eneboligen i Gåseidmarka i Ålesund kom...