Vi har byttet meglersystem. Noe avvik kan derfor forekomme. Kontakt oss om du opplever utfordringer.
Vi har byttet meglersystem. Noe avvik kan derfor forekomme. Kontakt oss om du opplever utfordringer.
logo
search
830242948127741
Proaktiv v/Ola Skarra Arnesen har gleden av å presentere et nyoppført og eksklusivt familiehjem i Tårnveien 4E på Gulskogen/Strømsåsen. ( 1 av )
830242948127712
Nylig ferdigstilt og klar for sin første eier - gjennomgående høy standard og kvalitet. ( 2 av )
830242948127749
Townhouse over tre plan med et moderne hoveduttrykk, løftet av klassiske detaljer som mansardtak. ( 3 av )
830242948127717
Nydelige uteplasser med god plass til familien. ( 4 av )
830242948127761
Her bor man i barnevennlige omgivelser, samtidig som by, handel og kollektivtilbud er kun minutter unna. ( 5 av )
830242948127750
Vedlikeholdsvennlig familiebolig med Plannja-tak og kledning fra Alvdal Royal. ( 6 av )
830242948127833
( 7 av )
830242948127760
Romslig carport og plass til flere biler foran denne. ( 8 av )
879720971372163
( 9 av )
879720971372195
Plantegning 1. etasje. ( 10 av )
830242948127694
I mellometasjen kan ny eier glede seg over et eksklusivt kjøkken, god plass til spisebordet og en flott peis. ( 11 av )
830242948127695
Toppmoderne kvalitetskjøkken fra JKE Design som tilføyer en eksklusiv og stilsikker look til allrommet. ( 12 av )
830242948127696
De sorte karmene bryter opp de ellers lyse linjene og vinduene slipper inn lyset du trenger med sol til ca kl 22 midtsommers. ( 13 av )
830242948127713
Flott uteplass ved stue/kjøkken. ( 14 av )
879720971372167
Innredningen er en drøm både med tanke på utformingen og funksjonaliteten, og det er rikelig med oppbevaringsplass i skap og skuffer, inkludert under barløsningen. ( 15 av )
830242948127759
Komplett utstyrt med integrerte hvitevarer. ( 16 av )
830242948127697
Praktisk soverom i 1. etasje med egen inngang og eget bad med opplegg for vaskemaskin. ( 17 av )
879720971372171
Delikat baderom i 1. etasje. Komplett utstyrt inkludert opplegg for vaskemaskin. ( 18 av )
879720971372172
Inngang i mellometasjen via et flott inngangsparti med et fresht og moderne design av topp kvalitet. ( 19 av )
879720971372173
( 20 av )
879720971372174
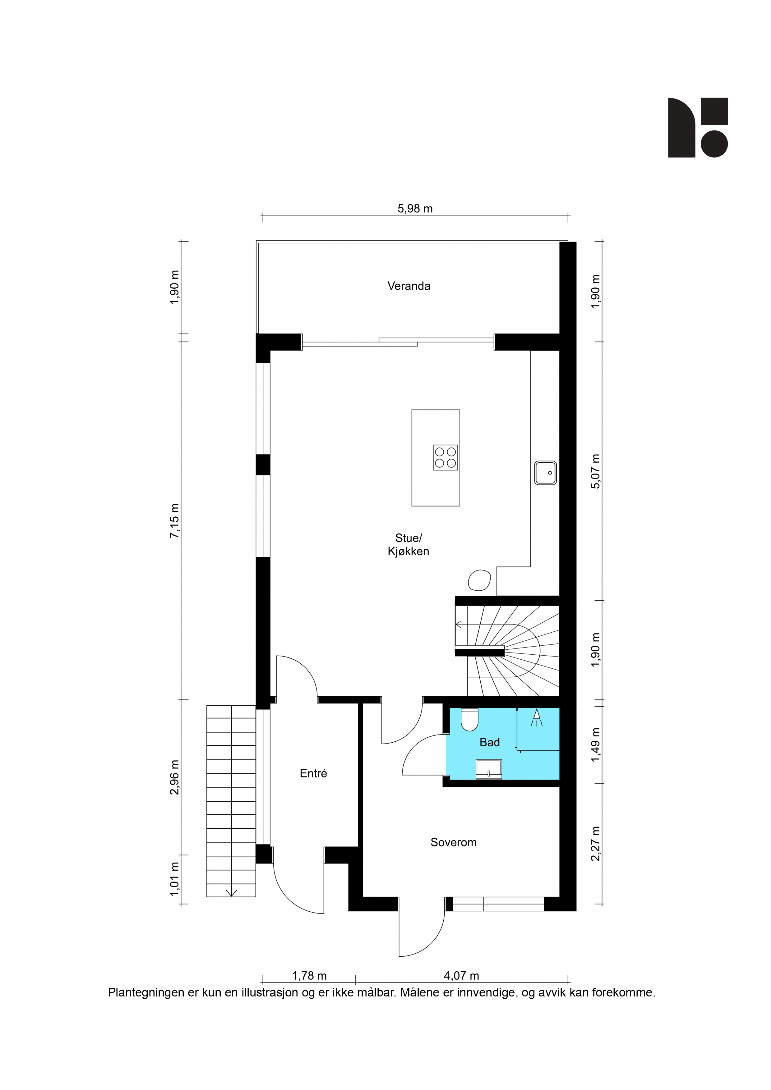
Plantegning 2. etasje. ( 21 av )
830242948127707
Stue i toppetasjen. Et perfekt oppholdsrom når barna har venner på besøk. Takhøyde opp mot ca. 3,5 meter i 2. etasje. ( 22 av )
830242948127758
( 23 av )
830242948127709
Mastersoverom med walk-in closet og privat bad i tilknytning. ( 24 av )
830242948127692
( 25 av )
830242948127708
( 26 av )
879720971372178
Walk-in closet. ( 27 av )
879720971372179
Her er det blant annet doble skålservanter med skuffeseksjon, noe som sørger for en god flyt i morgenrushet. ( 28 av )
830242948127710
Totalt tre soverom i toppetasjen. ( 29 av )
830242948127711
( 30 av )
879720971372182
Ytterligere ett bad i denne etasjen, perfekt som barnas eget bad. ( 31 av )
879720971372183
( 32 av )
879720971372184
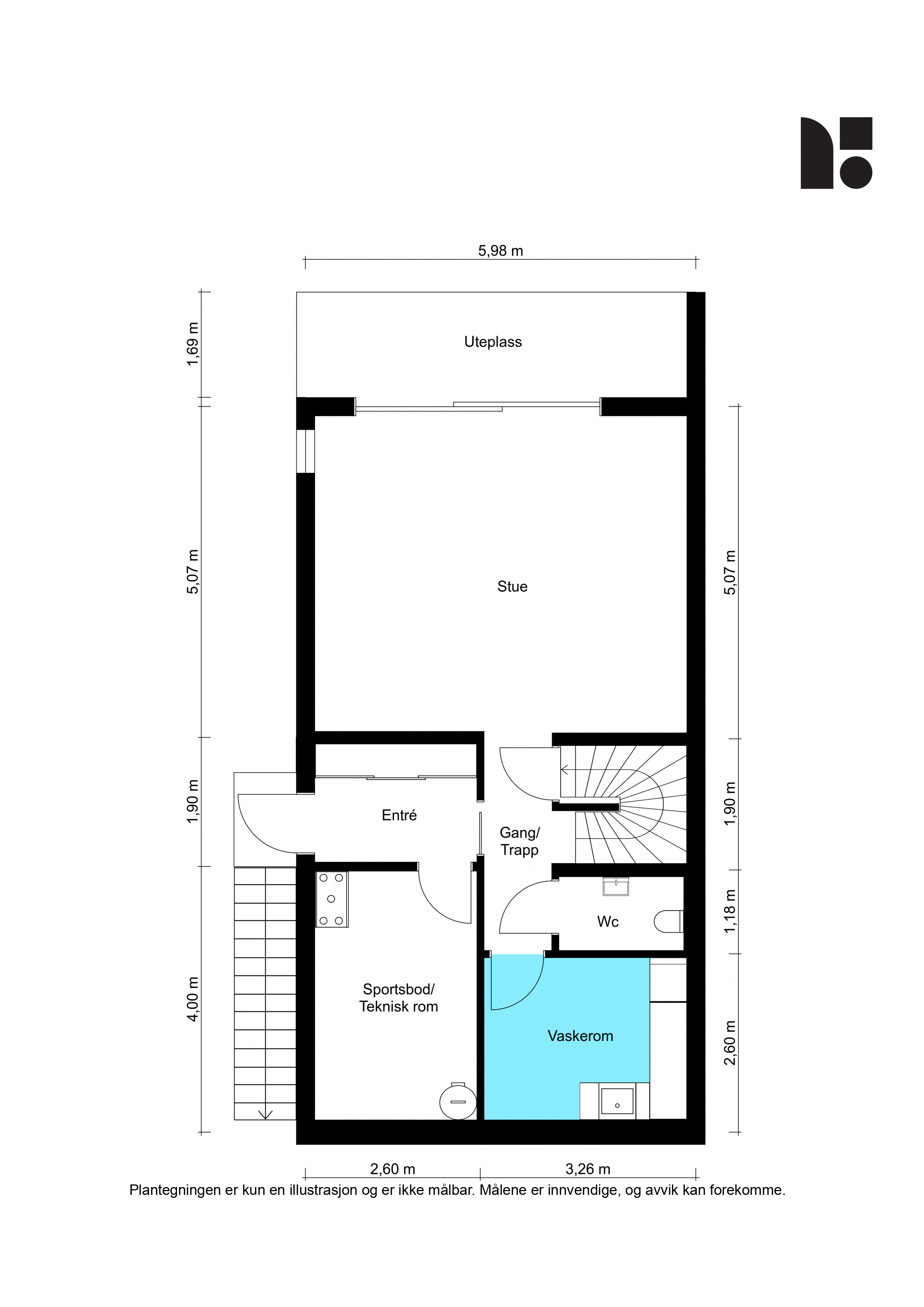
Plantegning underetasje. ( 33 av )
830242948127701
Flott stue med plass til sofagruppe, kontor eller leker. Alt etter familiens behov. ( 34 av )
830242948127757
Generøs takhøyde på ca. 260 cm gir en eksklusiv romfølelse. ( 35 av )
830242948127756
Utenfor stuen ligger en stor terrasse med tilhørende hage. Her kan barna løpe inn og ut som de selv ønsker. ( 36 av )
879720971372188
Fra entreen er det praktisk adkomst inn til vaskerommet hvor våte parkdresser og gjørmete støvler kan sparkes av. ( 37 av )
879720971372189
Separat toalettrom. ( 38 av )
830242948127699
Egen inngang inn til underetasjen. ( 39 av )
830242948127700
Teknisk rom. ( 40 av )
830242948127755
( 41 av )
830242948127754
Flott inngangsparti med trapp rett ned fra carporten. ( 42 av )
830242948127743
( 43 av )
830242948127716
( 44 av )
830242948127718
( 45 av )
830242948127737
( 46 av )
830242948127762
( 47 av )
830242948127736
( 48 av )
830242948127832
( 49 av )

Tårnveien 4E

Se alle bilder (0)
830242948127741
830242948127712
830242948127749
830242948127717
830242948127761
830242948127750
830242948127833
830242948127760
879720971372163
879720971372195
830242948127694
830242948127695
830242948127696
830242948127713
879720971372167
830242948127759
830242948127697
879720971372171
879720971372172
879720971372173
879720971372174
830242948127707
830242948127758
830242948127709
830242948127692
830242948127708
879720971372178
879720971372179
830242948127710
830242948127711
879720971372182
879720971372183
879720971372184
830242948127701
830242948127757
830242948127756
879720971372188
879720971372189
830242948127699
830242948127700
830242948127755
830242948127754
830242948127743
830242948127716
830242948127718
830242948127737
830242948127762
830242948127736
830242948127832

Tårnveien 4E

Prisantydning:
Kr 10990000
Totalpris:
Kr 11078990
BRA:
210
BRA-i:
210
Soverom:
4
Boligtype:
Tomannsbolig
Eierform:
​Eierseksjon
Byggeår:
2026
Etasje:
0
Tomteareal:
760

Splitter nytt townhouse fra 2026 med høy standard og kvalitet. 210 kvm. 4 soverom. Carport, hage og fantastisk utsikt!

Utsøkt, eksklusiv og splitter nytt townhouse på Strømsøåsen i Tårnveien 4E. Huset er nylig ferdigstilt og gjennomført til fingerspissene med gjennomgående gode kvaliteter og moderne design, signert Solli Arkitekter. Boligen byr på 210 m² over tre plan med god plass til hele familien. Planløsningen rommer fire soverom, tre stuer, tre bad + toalett og eget vaskerom, i tillegg til rikelig med oppbevaringsplass og smarte løsninger. Den generøse takhøyden på 2,6 m, med opptil nærmere 3,5 m i øverste etasje, gir en lys og luftig romfølelse. Ute er det solrikt med hageareal og balkong med sol til ca. kl. 22 midtsommer, samt gode parkeringsmuligheter ved inngangspartiet. Trygt og familievennlig nabolag med kort vei til daglige fasiliteter.
Ansvarlig megler:
Ola Skarra Arnesen

Salgsleder / Partner / Eiendomsmegler

Visning

For at vår megler og selger skal kunne gi deg den beste oppfølgingen og kjøpsopplevelsen er det obligatorisk påmelding til alle våre visninger. Dersom ditt reserverte tidspunkt likevel ikke kan benyttes trenger vi beskjed så tidlig som mulig sånn at vi kan finne en alternativ løsning. Vi har alltid tid til deg. Visninger uten påmeldte deltagere avlyses.

06.05.2026 17:00 - 18:00

Legg visning til i kalender 06.05.2026 17:00 06.05.2026 18:00 Central European Time Visning av Tårnveien 4E, 3047 DRAMMEN Boligvisning av Tårnveien 4E, 3047 DRAMMEN Tårnveien 4E, 3047 DRAMMEN

Passer ikke visningstidspunktene?

Avtal privatvisning her
Visningspåmelding

Tårnveien 4E

image005

Nøkkelinformasjon

plus_G

Områdebeskrivelse

plus_G
minus_G

Beskrivelse av eiendommen

plus_G
minus_G

Takst og Tilstand

plus_G
minus_G

Borettslaget/sameie/økonomi

plus_G
minus_G

Offentlige forhold

plus_G
minus_G

Prisantydning inkl. omkostninger

plus_G
minus_G

Øvrige kjøpsforhold

plus_G
minus_G

Dokumenter

plus_G

Del boligen

facebook-gold
Twitter-gold

Lurer du på noe om denne boligen?

Ta kontakt under via skjemaet.



Relaterte boliger

879720971372033
2600000 

Hagatjernveien 225

Drammen ­ MJØNDALEN
Koselig hytte m/ idyllisk beliggenhet inntil Hagatjern. Bademulighet & terrasse m/ flott utsikt. Kjøkken fra 2022.

Totalpris:

Kr 2683990

BRA-i:

41 m²
879720971374613
6300000 

Drafnkollen 98F

Drammen ­ DRAMMEN
Flott 5-roms selveier på 143m² med ellevill utsikt. Terrasse på 50m² og garasje m/lader. Bad fra 2020, wc rom + vaskerom

Totalpris:

Kr 6731249

BRA-i:

143 m²
879720971374335
5590000 

Buskerudveien 60

Drammen ­ DRAMMEN
Strøken 3-roms selveier fra 2021. Vestvendt balkong og nydelig utsikt. Heis og garasjeplass med lader. Nærhet til elva.

Totalpris:

Kr 5743740

BRA-i:

73 m²
549867483040072
7550000 

Fredrik Bødtkers gate 9

Drammen ­ SVELVIK
Sjelden Strandeiendom - Strand og dypvannsbrygge - Hovedhus og sjøbod/anneks - Hage - INGEN BOPLIKT!

Totalpris:

Kr 7756740

BRA-i:

57 m²
879720971373668
2490000 

Maria Fegths gate 8E

Drammen ­ DRAMMEN
Smakfull 2-roms toppleilighet i stille og rolig område. Peis. Solrik balkong med hyggelig utsyn. Fast p-plass.

Totalpris:

Kr 2607745

BRA-i:

46 m²
879720971373992
2750000 

Tors vei 44A

Drammen ­ DRAMMEN
Pen 2-roms i 3 etg med fin utsikt og balkong. Rolig område ved marka. Direkte tilgang til Nordbykollen.

Totalpris:

Kr 2800033

BRA-i:

60 m²
879720971371561
2300000 

Svelvikveien 61B

Drammen ­ DRAMMEN
Nyoppført og innflyttningsklar 3-roms med utsikt mot fjorden. Stor balkong, heis og fast garasjeplass. 2 delikate bad.

Totalpris:

Kr 5753990

BRA-i:

90 m²
879720971373623
2300000 

Ingeniør Rybergs gate 11A

Drammen ­ DRAMMEN
Attraktiv og pen 2-roms med bad fra 2025. Innglasset balkong på 14m² mot vest og p-plass. Sentralt beliggende.

Totalpris:

Kr 2656864

BRA-i:

35 m²
830242948125334
4250000 

Nedre Kiøsterudsgate 2

Drammen ­ DRAMMEN
Gjennomført og stor selveierleilighet på 100m² med balkong og p-plass. Stort lagringsloft. Rett ved Drammenselva.

Totalpris:

Kr 4357340

BRA-i:

100 m²
879720971373282
2350000 

Underlia 45

Drammen ­ DRAMMEN
Delikat 2-roms med balkong og flott utsikt. A konto varmtvann inkl. Parkeringsmulighet. Ingen forkjøpsrett. Rett v marka

Totalpris:

Kr 2472459

BRA-i:

43 m²
Se flere boliger
Bolig til salgs

Inspirasjon

Inspirerende interiørbilder fra norske hjem.
sov1
Soverom
kjo1
Kjøkken
stue
Stue

Boligartikler

Nyttig informasjon, råd og inspirasjon for deg som er opptatt av bolig.
art

Hvilken tid på året er best for å selge bolig?

Først og fremst avhenger tidspunktet av både boligtype og boligens fasiliteter når du skal selge bolig. Rekkehus med hage eller sentrumsleilighet...
hage4

Dette bør du gjøre for å øke boligens verdi før salg

Du har sikkert hørt flere nyttige råd i forbindelse med klargjøring av bolig før salg. Male tak og vegger, gå over alle lyskilder og høytrykk-spyle...
GA4

Slik gjør du boligen klar for salg; - Jeg fikk konkrete råd før foto

Mange er i gang med det årlige vedlikeholdsarbeidet, spesielt utendørs rundt boligen. Da Robert skulle selge eneboligen i Gåseidmarka i Ålesund kom...