Vi har byttet meglersystem. Noe avvik kan derfor forekomme. Kontakt oss om du opplever utfordringer.
Vi har byttet meglersystem. Noe avvik kan derfor forekomme. Kontakt oss om du opplever utfordringer.
logo
search
676311320233877
Ytre Eiganesveien 15 presenteres av Proaktiv Eiendomsmegling v/ Ordin Fikstvedt. ( 1 av )
676311320233868
Stuen er lekker, lys, romslig og innbydende, med store vindusflater som slipper inn rikelig med naturlig lys og gir en flott utsikt. ( 2 av )
676311320233893
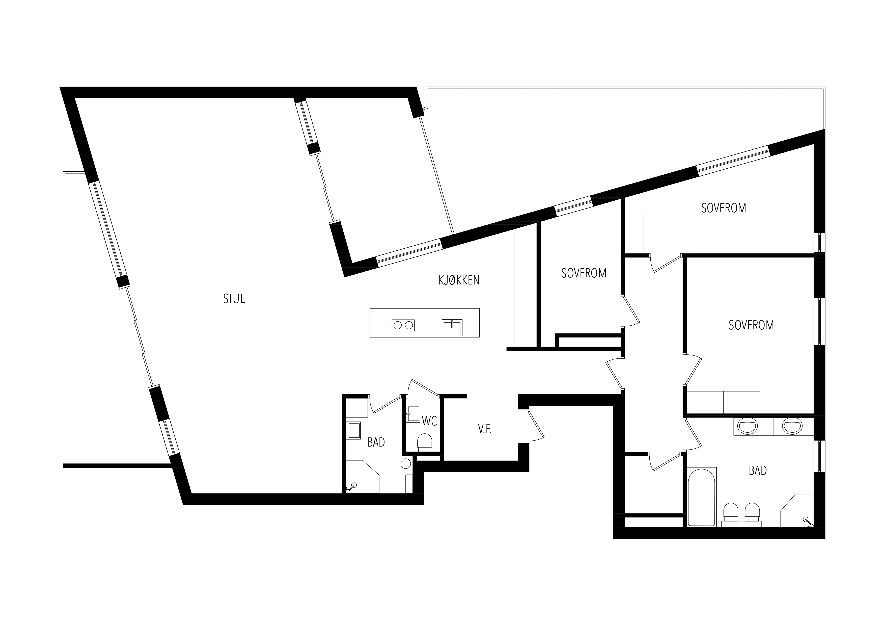
Plantegning. ( 3 av )
676311320233871
Her er det god plass til både sofagruppe, spisebord og øvrig møblement, med flere gode innredningsmuligheter. ( 4 av )
676311320233866
( 5 av )
676311320233881
( 6 av )
676311320233882
( 7 av )
676311320233885
DSCF2535.jpg ( 8 av )
676311320233878
( 9 av )
676311320233876
Fra stuen er det utgang til balkong. ( 10 av )
676311320233874
( 11 av )
676311320233873
( 12 av )
676311320233867
( 13 av )
676311320233870
Det er også utgang til innglasset balkong. ( 14 av )
676311320233872
Perfekt for morgenkaffen eller hyggelige sammenkomster med familie og venner. ( 15 av )
676311320233875
( 16 av )
676311320233865
Kjøkkenet ligger i åpen løsning med stuen, noe som skaper en sosial og luftig atmosfære. ( 17 av )
676311320233884
( 18 av )
676311320233879
( 19 av )
676311320233883
( 20 av )
676311320233864
Innredningen er stilren med lyse, slette fronter, og kjøkkenet har både kjøkkenøy og rikelig med skap- og benkeplass. Her ligger alt til rette for at hobbykokken vil trives. ( 21 av )
676311320233863
( 22 av )
676311320233859
Leiligheten har tre gode soverom av fine størrelser. ( 23 av )
676311320233852
Hovedsoverommet er romslig, med plass til dobbeltseng og tilhørende møblement, og er utstyrt med skyvedørsgarderobe. ( 24 av )
676311320233853
( 25 av )
676311320233854
De øvrige soverommene egner seg godt som barnerom, gjesterom eller hjemmekontor. ( 26 av )
676311320233855
( 27 av )
676311320233858
Hovedbadet ligger ved hovedsoverommet og er lekkert, helfliset og utstyrt med vannbåren gulvvarme. ( 28 av )
676311320233856
Badet er innredet med servant, vegghengt toalett, dusjhjørne med glassdører samt badekar - perfekt for avslapning etter en lang dag. ( 29 av )
676311320233857
( 30 av )
676311320233860
Toalettrom. ( 31 av )
676311320233861
Leiligheten har også et ekstra bad ved stuen. Badet er helfliset med vannbåren gulvvarme, og innredet med dusjhjørne samt opplegg for vaskemaskin. ( 32 av )
676311320233862
Inngangsparti. ( 33 av )
676311320233886
Uteområde. ( 34 av )
676311320233887
Uteområde. ( 35 av )
676311320233888
Uteområde. ( 36 av )
676311320233889
Nærområde. ( 37 av )
676311320233890
Nærområde. ( 38 av )
676311320233891
Nærområde. ( 39 av )
676311320233892
Nærområde. ( 40 av )

Ytre Eiganesveien 15

Se alle bilder (0)
676311320233877
676311320233868
676311320233893
676311320233871
676311320233866
676311320233881
676311320233882
676311320233885
676311320233878
676311320233876
676311320233874
676311320233873
676311320233867
676311320233870
676311320233872
676311320233875
676311320233865
676311320233884
676311320233879
676311320233883
676311320233864
676311320233863
676311320233859
676311320233852
676311320233853
676311320233854
676311320233855
676311320233858
676311320233856
676311320233857
676311320233860
676311320233861
676311320233862
676311320233886
676311320233887
676311320233888
676311320233889
676311320233890
676311320233891
676311320233892

Ytre Eiganesveien 15

Prisantydning:
Kr 10500000
Totalpris:
Kr 10776750
BRA:
179
BRA-i:
145
Soverom:
3
Boligtype:
Eierseksjon
Eierform:
​Eierseksjon
Byggeår:
2008
Etasje:
5
Tomteareal:
512,6

Lekker toppleilighet med 2 park. plasser i lukket anlegg, 3 soverom, innglasset balkong og attraktiv beliggenhet.

Velkommen til Ytre Eiganesveien 15 - en lekker toppleilighet med 2 parkeringsplasser i lukket anlegg, 2 boder i kjeller. 3 soverom, innglasset balkong, 2 terrasser, og attraktiv beliggenhet. Leiligheten byr i tillegg på 2 bad, innvendig bod og gjestetoalett. Det er i kjelleren et felles verksted med diverse verktøy og utstyr som beboerne i blokka kan benytte seg fritt av. Leiligheten har en sentral beliggenhet i Ytre Eiganesveien 15, med flotte turområder rett utenfor døren og kort vei til det meste du trenger i hverdagen. Alt i alt er dette en delikat og innholdsrik leilighet med fantastisk beliggenhet. De fleste overflater er pusset opp, så her er det bare å flytte rett inn. Velkommen til visning!
Ansvarlig megler:
Ordin Fikstvedt

Eiendomsmegler / Fagansvarlig / Partner

Visning

For at vår megler og selger skal kunne gi deg den beste oppfølgingen og kjøpsopplevelsen er det obligatorisk påmelding til alle våre visninger. Dersom ditt reserverte tidspunkt likevel ikke kan benyttes trenger vi beskjed så tidlig som mulig sånn at vi kan finne en alternativ løsning. Vi har alltid tid til deg. Visninger uten påmeldte deltagere avlyses.

25.03.2026 17:00 - 18:00

Legg visning til i kalender 25.03.2026 17:00 25.03.2026 18:00 Central European Time Visning av Ytre Eiganesveien 15, 4022 STAVANGER Boligvisning av Ytre Eiganesveien 15, 4022 STAVANGER Ytre Eiganesveien 15, 4022 STAVANGER

Passer ikke visningstidspunktene?

Visningspåmelding
Avtal privatvisning her

Ytre Eiganesveien 15

image005

Nøkkelinformasjon

plus_G

Områdebeskrivelse

plus_G
minus_G

Beskrivelse av eiendommen

plus_G
minus_G

Takst og Tilstand

plus_G
minus_G

Borettslaget/sameie/økonomi

plus_G
minus_G

Offentlige forhold

plus_G
minus_G

Prisantydning inkl. omkostninger

plus_G
minus_G

Øvrige kjøpsforhold

plus_G
minus_G

Dokumenter

plus_G

Del boligen

facebook-gold
Twitter-gold

Lurer du på noe om denne boligen?

Ta kontakt under via skjemaet.


Relaterte boliger

676311320233730
8990000 

Lundsvågen 3A

Stavanger ­ HUNDVÅG
Nyoppført enebolig | 4 soverom | 2 stuer | Flott beliggenhet | Carport| Lave omkostninger!

Totalpris:

Kr 9033990

BRA-i:

140 m²
676311320233036
3400000 

Boganesveien 3B

Stavanger ­ STAVANGER
Lekker hageleilighet med innglasset balkong, parkering i lukket garasjeanlegg og sentral beliggenhet.

Totalpris:

Kr 3714283

BRA-i:

79 m²
676311320232314
6790000 

Geitastova 1

Stavanger ­ STAVANGER
Stor og lekker leilighet med sentral beliggenhet og kjekke uteområder. Parkeringsplass i lukket anlegg.

Totalpris:

Kr 6790000

BRA-i:

126 m²
676311320233603
8900000 

Nedreveien 13B

Stavanger ­ STAVANGER
Flott og innholdsrik enebolig i attraktivt område på Nedre Vaulen med terrasse, hage og balkong.

Totalpris:

Kr 9141750

BRA-i:

211 m²
670813762093197
14000000 

Madlaveien 18 og 20

Stavanger ­ STAVANGER
Sentrum - Hospits/pensjonat & forretning/kontor/restaurant | Stort næringsbygg med gode utviklingsmuligheter

Totalpris:

Kr 14000000

P-rom:

 m²
676311320232804
1050000 -  1815000

Eventyrkroken - Tastarustå (Leiligheter)

Stavanger ­ STAVANGER
Svært flotte leiligheter med god planløsning, solrikt uteområde og bra prispunkt - Etterspurt og familievennlig område
676311320232242
21000000 

Nordvikveien 6A

Stavanger ­ HUNDVÅG
Eksklusiv villaeiendom i idylliske omgivelser med, naust, brygge, store balkonger, carport og utleiedel.

Totalpris:

Kr 21544250

BRA-i:

359 m²
676311320232810
2169000 -  2277000

Eventyrkroken - Tastarustå (Rekkehus)

Stavanger ­ STAVANGER
Innholdsrike og moderne rekkehus med god planløsning - Etterspurt familievennlig område - Flere valgmuligheter
Se flere boliger
Bolig til salgs

Inspirasjon

Inspirerende interiørbilder fra norske hjem.
sov1
Soverom
kjo1
Kjøkken
stue
Stue

Boligartikler

Nyttig informasjon, råd og inspirasjon for deg som er opptatt av bolig.
_ProAktivEiendom_236A2953_Foto-Sandra_Lovise_Saetrang_Olsen_0255

Åpnet nytt meglerkontor i Kristiansand: - Det føles ganske enkelt helt fantastisk

Teamet i Kristiansand driver Proaktiv-kjedens sydligste kontor. Vi har tatt en prat med Asbjørn Svaland og Geir Flaa Johansen i forbindelse med...
A1_06776
Aktuelt

E-takst vs takstmanns tilstandsrapport – hva er forskjellene?

En e-takst er en standardisert verdivurdering utført av en eiendomsmegler, mens en tilstandsrapport - utført av en takstmann, beskriver boligens...
_RM_9989
Aktuelt

E-takst vs. verdivurdering – hva er forskjellene?

Skal du refinansiere eller selge bolig, møter du begrepene E-takst og verdivurdering. Folk bruker dem om hverandre, men det finnes viktige...