Standard
En gjennomgang av boligens rom:
1. etasje:
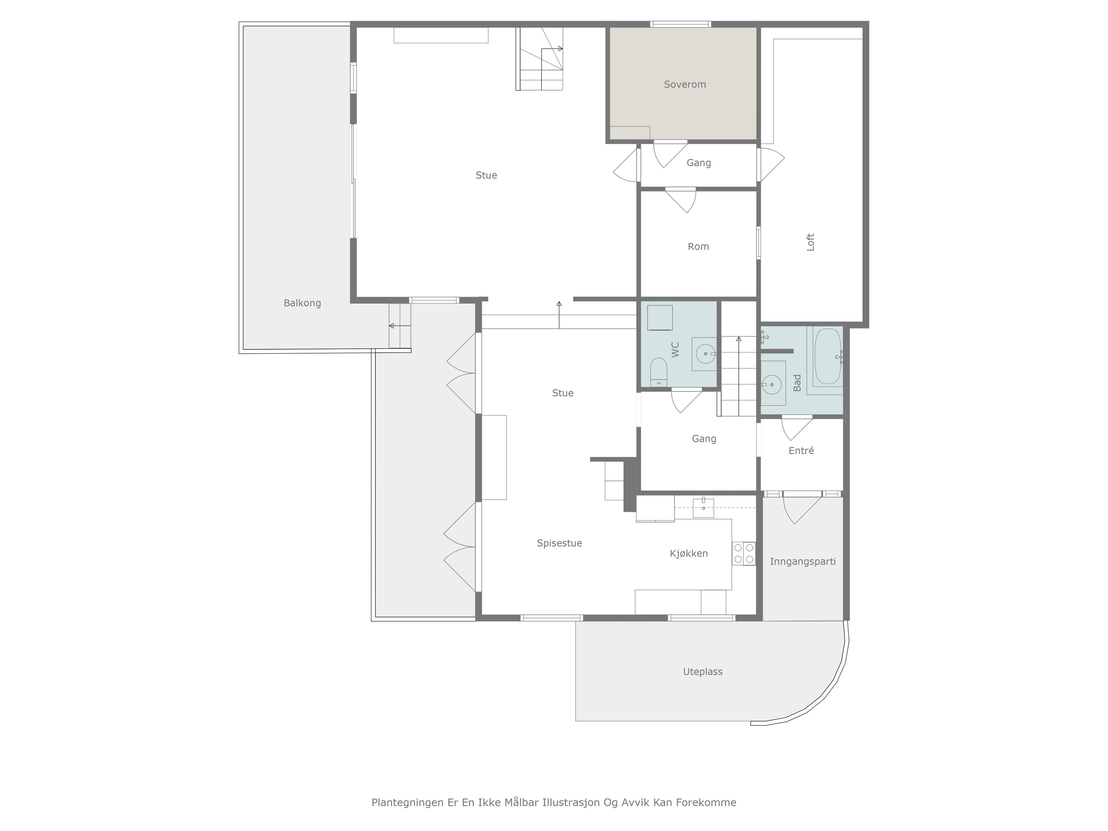
Entré:
Lys og romslig entré med tilknyttet gang og god plass for oppbevaring av familiens ytterbekledning. Ytterst
i entreen er det flislagt gulv som tåler direkte vannsøl. Det er tilgang til både bad og separat wc.
Bad:
Badet i 1. etasje har flislagt gulv og vegger, samt malt panel i taket. Badet ble pusset opp i 2014 og er
innredet med nedfelt badekar, dusjhjørne med glassbyggerstein og servantskap med tilknyttet speilskap
på veggen. Elektrisk styrt vifte på veggen og varmekabler i gulvet. Tilluft via luftespalter i dør.
Separat vaskerom m/wc:
Tilknyttet vaskerom/wc utstyrt med servant, toalett og opplegg for vaskemaskin/tørketrommel. Rommet har
flislagt overflater og stråleovn på veggen. Våtrommet ble oppgradert/renovert av tidligere eier i ca. 2014.
TG3 er gitt grunnet manglende ventilasjon.
Stue og kjøkken:
Stuen har åpen løsning til spisestue og kjøkken, noe som gir et sosialt allrom med god plass til gjester. I
stuedelen er det plass til sofa og langbordet kan plasseres nærmest kjøkkenet.
Boligen har et stort og praktisk kjøkken med mye skap og store benkeflater for matlagingen. Kjøkkenet ble
pusset opp i 2018, og har innredning fra Kvik med lyse laminerte fronter, sorte håndtak og benkeplate
med underlimt kum. Ettgreps blandebatteri er installert. Videre har kjøkkener integrert stekeovn,
oppvaskmaskin og platetopp som medfølger. Det er plass til kjøleskap i egen nisje. Takmontert ventilator
med avtrekk over kokesonen. Det er installert vannstoppsystem og komfyrvakt.
Innenfor stue og kjøkken ligget ytterligere en lys og luftig stue med generøs takhøyde og lysinnslipp fra
flere himmelretninger. Det er delvis åpent opp mot stuen i 2. etasje. Overflatene er lyse, med parkettgulv
og sjarmerende blyglassvinduer som gir rommet særpreg. Det er god plass til møblering av ønske.
Utgang til veranda.
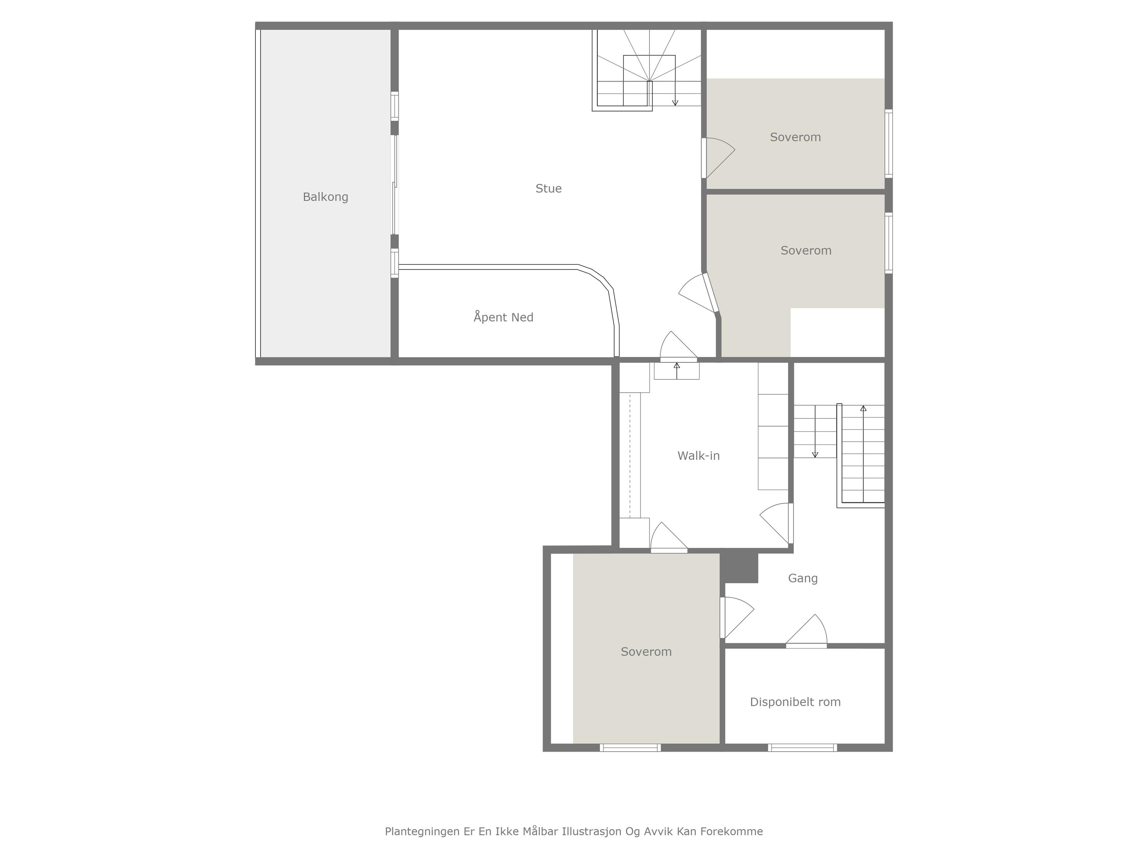
2.etasje:
Stue:
Stor stue som passer ypperlig som tv-stue, lekerom eller kombinert hjemmekontor - alt etter ditt behov. I
stuen er det plass til stor sofagruppe og tv. Det er utgang til egen balkong med flott utsikt.
Soverom:
Det et totalt 5 soverom i boligen, med ett i 1.etg, 3 i 2.etg, og ett i u.etg (ikke omsøkt). Alle soverommene
har plass til møblement som seng, nattbord og skap.
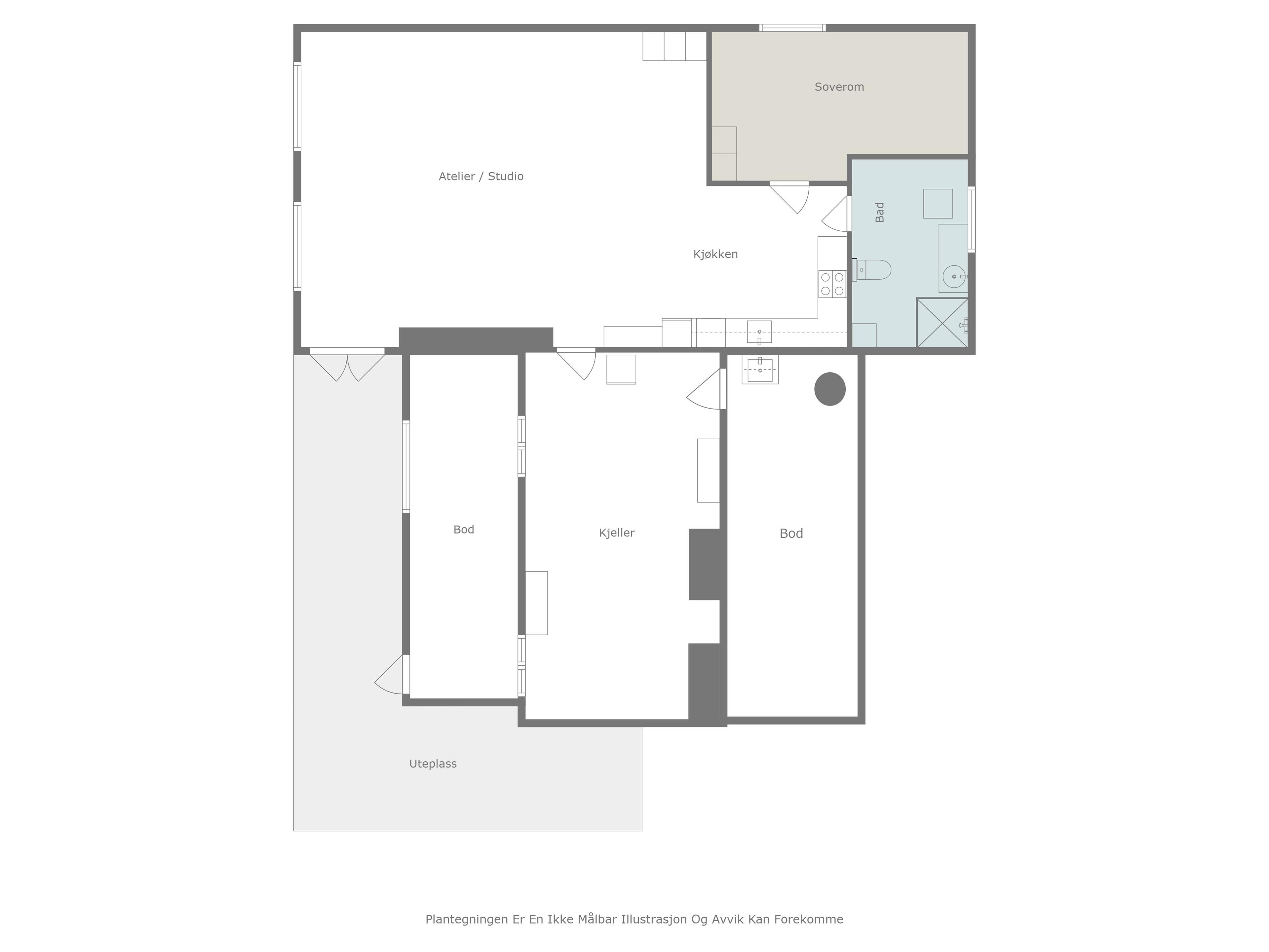
Underetasje:
Innholdsrik underetasje med atelier/studio som har tilknyttet soverom og bad (ikke omsøkt eller godkjent
for varig opphold). Det er utgang til egen uteplass. Denne delen av boligen ble betydelig oppgradert i
2018.
Oppholdsrommet er romslig og lyst, med store glassflater mot hagen og god plass til møblering av sofa
og spisebord.
Kjøkken i åpen løsning, med vinklet innredning fra Ikea som var ny i 2018. Innredningen har slette fronter i
hvitt og laminert benkeplate i fin kontrastfarge. Vegg over kjøkkenbenk med rustfritt stål plater. Kjøkkenet
har stekeovn, platetopp og oppvaskmaskin integrert i innredningen. Det er plass til kjøleskap på enden.
Ventilator med kullfilter.
Badet tilhørende atelier/studio ble renovert i 2018 og fremstår moderne og delikat. Badet har
skuffeseksjon med hel benk og lekker skålservant, veggskap, dusjhjørne med innfellbare glassdører,
veggmontert toalett, og opplegg for vaskemaskin. Det er flislagt gulv med underliggende gulvvarme, plater
på veggene og downlights i taket. Rommet har mekanisk ventilasjon med tilluft via luftespalte i dør.
I tillegg til atelier har kjelleren disponibelt rom og bod.
Selger har fått utarbeidet en tilstandsrapport for eiendommen. Rapporten er en teknisk gjennomgang
av boligen og angir eventuelle byggetekniske avvik. Takstmann har gjennomgått boligen og gjort
vurderinger på en tilstandsgrad fra 1 til 3. Graderingene er som følger:
Tilstandsgrad 0, TG0: Ingen avvik.
Tilstandsgrad 1, TG1: Mindre avvik.
Tilstandsgrad 2, TG2: Vesentlige avvik og mindre avvik som etter NS 3600 gir TG2.
Tilstandsgrad 3, TG3: Store eller alvorlige avvik.
TGIU: Ikke tilgjengelig for undersøkelse.
TG3:
- Forstøtningsmurer: Det er påvist mindre sprekker og/eller skjevheter i muren. Det mangler
rekkverk/annen sikring på forstøtningsmuren(e) ut ifra dagens krav. Forstøtningsmurer er skjeve som
følge av setningsskader. Høyde på rekkverk er for lavt/ manglende i forhold til forskrift. Kostnadsestimat:
50 000 - 100 000 kr.
- Forstøtningsmurer - 2: Det er påvist større sprekker og/eller skjevheter i muren. Forstøtningsmurer er
skjeve som følge av setningsskader. Høyde på rekkverk er for lavt/ manglende i forhold til forskrift.
Kostnadsestimat: 100 000 - 300 000 kr.
TG2 avvik som kan kreve tiltak:
- Taktekking: Mer enn halvparten av forventet brukstid er passert på taktekkingen og undertak.
- Nedløp og beslag: Det er ikke tilfredsstillende bortledning av vann fra taknedløp ved grunnmur. Mer enn
halvparten av forventet brukstid er passert på renner/nedløp/beslag. Takrenner og nedløp med
antydninger til aldersslitasje. Ikke tilstrekkelig fall på takrenner, vann ligger i takrenne. Eldre pipebeslag
som har behov for oppgradering.
- Veggkonstruksjon: Det er ingen eller liten lufting i nedre kant av kledning mot grunnmur. Kledningsbord
er aldersslitt, dels sprukket treverk grunnet normal uttørking. Noe lokale råteskader i utvendig kledning/
vindskier. Kledningsbord er satt stedvis tett ned på vannbrett. Ikke tilstrekkelig luftespalte i nedkant bak
kledning. Det er registrert ufagmessig utførsel.
- Takkonstruksjon/loft: Det er påvist fuktskjolder/skader i takkonstruksjonen. Isolasjon ligger stedvis tett
på undertak, og dette gir begrensninger for lufting av kaldtloft. Loft kan med fordel isoleres og luftes bedre.
Undertaket er misfarget som følge av kondens.
- Eldre vinduer: Litt slitt overflate enkelte steder. Karmene/ rammer er værslitte utvendig og det er sprekker
i trevirket.
- Dører: Litt slitt overflate enkelte steder. Karmene/ rammer er værslitte utvendig og det er sprekker i
trevirket.
- Terrassedør: Litt slitt overflate enkelte steder. Karmene/ rammer er værslitte utvendig og det er sprekker i
trevirket. Tettelister begynner å bli dårlige (morkne og slitte tetningslister).
- Balkong/terrasse: Treverk på gulv og rekkverk er aldersslitt, dels sprukket treverk grunnet normal
uttørking. Noe lokale råteskader i trevek. Stedvis er det registrert "bom" på fliser.
- Balkonger/terrasse 2: Treverk på gulv og rekkverk er aldersslitt, dels sprukket treverk grunnet normal
uttørking.
- Innvendige overflater: Overflater fremstår i normalt stand i forhold til alder med forventet bruksslitasje,
noe oppgraderinger må påregnes. Stedvis er det registrert "bom" på fliser. Stedvis ufagmessig utførsel
på overflater.
- Etasjeskille/gulv mot grunn: Stedvis registrert noe knirk i gulvene.
- Radon: Det er ikke foretatt radonmålinger, og bygget er heller ikke utført med radonsperre.
- Pipe og ildsted: Krav til avstand rundt teglpipe er ikke overholdt ihht. brennbart materiale.
- Rom under terreng: Det er påvist indikasjoner på noe fuktgjennomtrenging i kjellergulv. Det er registrert
saltutslag på vegger. Innsiden av grunnmuren har misfarging. Oppgradering av drenering og god
ventilering anbefales. Rom under terreng har høy luftfuktighet og det er målt forhøyede verdier i
trekonstruksjonen mot 1. etasje.
- Innvendige trapper: Det mangler håndløper på vegg i trappeløpet.
- Innvendige trapper - tilbygg: Det mangler håndløper på vegg i trappeløpet.
- Innvendige dører: Dører er fra ulik årgang og kvaliteten er således også varierende. Enkelte dører går
tregt samt noe overflateslitasje.
- Bad 1.etg - overflater vegger og himling: Det er påvist at flisfuger har riss/sprekker. Stedvis dårlige
silikonfuger/ fuger. Enkelte riss/ sprekker i flisfuger/ fliser. Gerikter (lister på dør) går helt ned til gulvet.
- Bad 1.etg - overflater gulv: Det er påvist at flisfuger har riss/sprekker. Det er påvist at høydeforskjell fra
topp slukrist til gulv/synlig topp membran ved dørterskel er mindre enn 25 mm. Det er påvist avvik i
fallforhold til sluk i forhold til krav i forskrift på byggetidspunktet. Stedvis dårlige silikonfuger/ fuger. Enkelte
riss/ sprekker i flisfuger/ fliser.
- Bad 1.etg - Sluk, membran og tettesjikt: Se beskrivelse under konstruksjon; (Våtrom - 1. etasje - Bad)
Overflater gulv. Badet har ikke fremlagt dokumentasjon på utførelse av membran, slukmansjett/ tettesjikt.
- Bad 1.etg - sanitærutstyr og innredning: Det er påvist riss/sprekker i utstyr på våtrommet. Riss/ sprekker i
glassur på porselen, samt avskalling på emalje på badekar (Utbedre avvik ved reparasjon eller
utskifting.)
- Vaskerom m/wc - overflater vegger og himling: Stedvis dårlige silikonfuger/ fuger. Stedvis merker etter
eldre innfesting.
- Vaskerom/wc - overflater gulv: Det er påvist at høydeforskjell fra topp slukrist til gulv/synlig topp membran
ved dørterskel er mindre enn 25 mm. Det er påvist avvik i fallforhold til sluk i forhold til krav i forskrift på
byggetidspunktet. Stedvis dårlige silikonfuger/ fuger. Stedvis er det registrert "bom" på fliser. Ingen
mansjett opp rundt rør/ avløpsrør/ gjennomføringer i gulv. Det er påvist avvik (ikke tilstrekkelig fall på målte
flater) fra topp flis ved dør til topp flis ved slukrist.
- Vaskerom /wc - sluk, membran og tettesjikt: Se beskrivelse under konstruksjon; (Våtrom - 1. etasje -
Vaskerom m/ toalett) Overflater gulv. Badet har ikke fremlagt dokumentasjon på utførelse av membran,
slukmansjett/ tettesjikt.
- Vaskerom m/wc - ventilasjon: Rommet har ingen ventilasjon. Våtrommet mangler tilluftsventilering, f.eks.
spalte/ventil ved dør. Våtrommet har ingen ventilering i form av avtrekk fra rommet eller tilluft til rommet.
- Bad/vaskerom - overflater vegger og himling: Noe gjenstående arbeider, dekkoppper og lister. Det er
registrert ufagmessig utførsel.
- Bad/vaskerom - overflater gulv: Det er påvist avvik i krav til høydeforskjell/fall-løsning på våtrommet. Det
er påvist avvik (ikke tilstrekkelig fall på målte flater) fra topp flis ved dør til topp flis ved slukrist.
- Bad/vaskerom - sluk, membran og tettesjikt: Se beskrivelse under konstruksjon; (Våtrom - underetasje -
Bad-/ vaskerom) Overflater gulv.
- Bad/vaskerom - ventilasjon: Våtrommet mangler tilluftsventilering, f.eks. spalte/ventil ved dør. Det er
registrert utilfredsstillende tilluftsløsning til rommet.
- Vannledninger: Det er påvist ufagmessig utførelse av vannledninger. Mer enn halvparten av forventet
brukstid er passert på innvendige vannledninger. Rørkursene på rør-i-rør systemet på vannledninger er
ikke merket. Det mangler tettemuffer i enden av varerør på rør-i-rør-system. Mer enn halvparten av
forventet brukstid er oppbrukt på innvendige vannledninger.
- Avløpsrør: Det er påvist ufagmessig utførelse av avløpsledninger. Mer enn halvparten av forventet
brukstid er passert på innvendige avløpsledninger. Avløpsrør med varierende alder og tilstand. Mer enn
halvparten av forventet brukstid er oppbrukt på innvendige avløpsrør.
- Ventilasjon: Det er påvist mangelfull ventilasjon på ett eller flere rom i boligen.
- Varmtvannstank: Det er ikke påvist tilfredsstillende el-tilkobling av varmtvannstank iht. gjeldende forskrift.
- Elektrisk anlegg: Det anbefales utvidet el-kontroll av det elektriske anlegget på bakgrunn av manglende
dokumentasjon for hele eller deler av det elektriske anlegget.
- Drenering: Mer enn halvparten av forventet levetid på drenering er overskredet. Boligen ligger i skrånede
terreng, dette fører naturlig til fuktbelastning mot deler av grunnmur. Rommet har en konstruksjon som
gjør hulltaking unødvendig. Det anbefales å føre vann fra taknedløp bort fra bygningskroppen.
- Grunnmur og fundamenter: Utvendig grunnmur med riss/ sprekker og avflassing av puss og maling.
Overflater med mur og puss, det bemerkes at det kan forekomme bom (løs murpuss). Innsiden av
grunnmuren har misfarging. Det er registrert saltutslag på innsiden av vegger.
- Terrengforhold: Terreng rundt byggverk skal planeres med fall utover minimum 1:50 i en avstand på
minimum 3 meter. Hvor terrenget gjør dette vanskelig, kan alternative tiltak være fall langs veggen,
avskjæringsgrøfter/ ledegrøft o.l. Terrengforholdet fører til at overflatevann kan ledes til boligen. Dette kan
føre til fuktskade i boligen.