4859752_1a
Proaktiv v/Markus Alm Thoen presenterer en innholdsrik enebolig i Oscar Kiærs vei 24. ( 1 av )
4859746_1a
Panoramautsikt mot Drammensfjorden. ( 2 av )
4859749_1a
Kort vei til Drammensfjorden med Sota fjordpark med strand og småbåthavn. ( 3 av )
4859745_1a
Stor terrasse (39 m²) over garasjen med sol og utsikt. ( 4 av )
4859747_1a
Terrassen har adkomst fra stuen. ( 5 av )
4859751_1a
Integrert garasje med lader til el.bilen. ( 6 av )
4859754_1a
Huset ligger på en høyde i terrenget med sol og flott utsikt. ( 7 av )
4859753_1a
Nyanlagt terrasse (mai 2025) vendt mot solrike vest. - Entrè ikke omsøkt/byggemeldt ( 8 av )
4859748_1a
Utsikt. ( 9 av )
4855380_1a
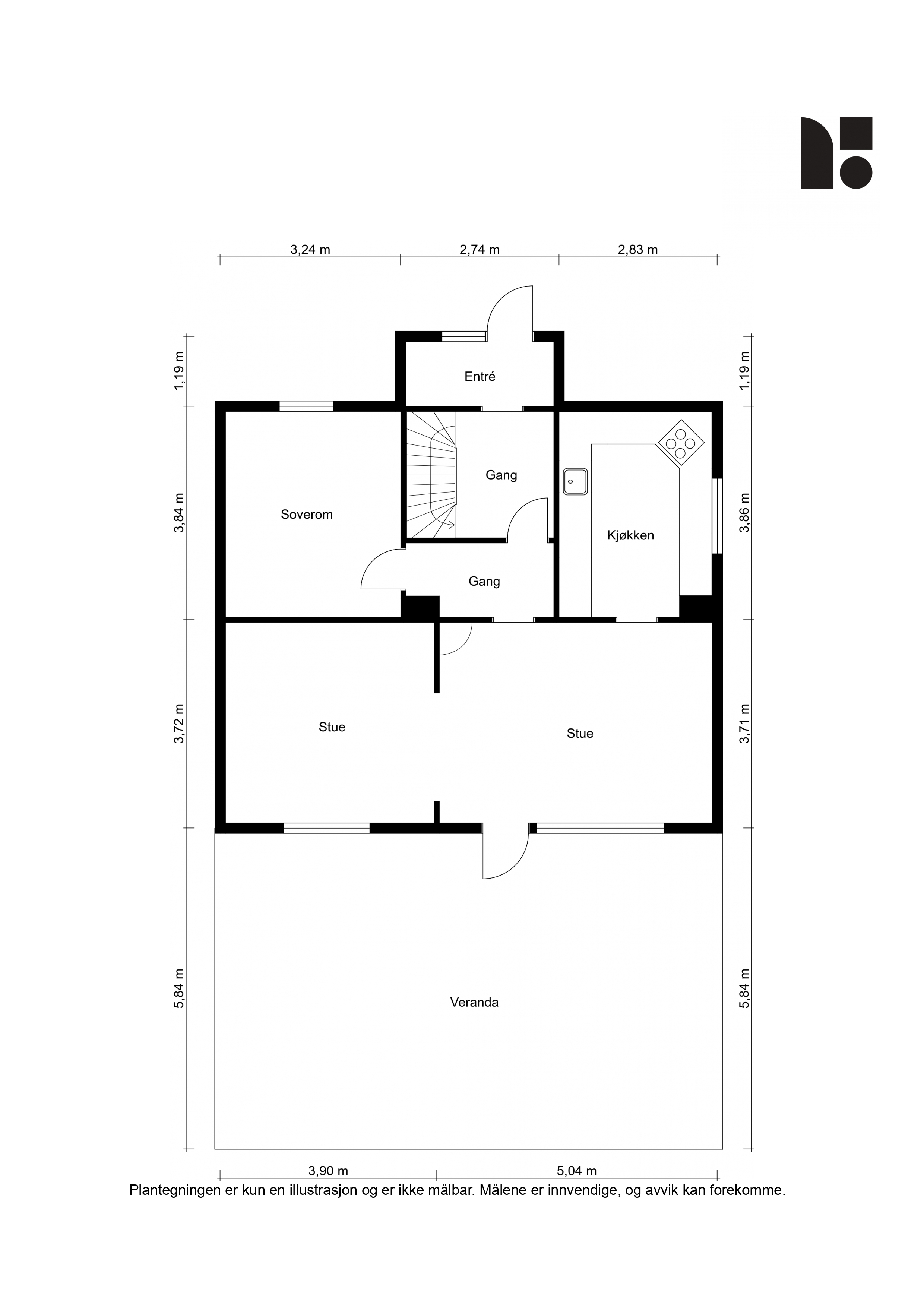
Plantegning 1. etasje. ( 10 av )
4859719_1a
Stuens utforming gir plass til å møblere med spisebord og sofagruppe i egne soner. ( 11 av )
4859721_1a
Her er det lysmalte panelvegger og parkettgulv. Kjøkkenet ligger i et eget rom i bakkant. ( 12 av )
4859743_1a
Peis i stuen. ( 13 av )
4859723_1a
Den flotte utsikten kan også nytes innendørs. ( 14 av )
4859722_1a
Stue. ( 15 av )
4859720_1a
Romslig spisestue med direkte adkomst til terrassen. ( 16 av )
4859718_1a
Også her har man fin utsikt mot fjorden fra kjøkkenvinduet, og under vinduet er det etablert en plassbygget sittebenk med praktiske skuffer under. ( 17 av )
4859716_1a
Pent utført med innredning fra 2015 helt opp til taket og integrerte hvitevarer. ( 18 av )
4859717_1a
Integrerte hvitevarer som platetopp, oppvaskmaskin, kjøl/frys og ovn i riktig høyde. ( 19 av )
4859724_1a
Mellomgang. ( 20 av )
4859727_1a
Boligen har tre soverom, hvorav det ene rommet er plassert i inngangsetasjen. ( 21 av )
4859728_1a
Soverommet er romslig med god plass til nødvendig soveromsmøblement, i tillegg er det garderobeskap med speilfronter som medfølger salget. ( 22 av )
4859726_1a
Ytterdør fra 2024 med praktisk kodelås. ( 23 av )
4859725_1a
Det er lagt belegg på gulvet og overflatene er lysmalte. I tillegg er det malt tretrapp mellom etasjene. ( 24 av )
4855379_1a
Plantegning 2. etasje. ( 25 av )
4859732_1a
Oppe ligger en stor og romslig stue med fjordutsikt, peisovn og lyse overflater med malt tregulv. ( 26 av )
4859733_1a
Peisovnen ble byttet ut ifb. med piperehabiliteringen i 2021. ( 27 av )
4859730_1a
Soverom. ( 28 av )
4859731_1a
Soverom. ( 29 av )
4859729_1a
Soverom. ( 30 av )
4859735_1a
Badet i 2. etasje er ifølge eier pusset opp i 1997, og er modent for oppussing. ( 31 av )
4859734_1a
Her er det både dusj og innmurt badekar. ( 32 av )
4859736_1a
Mellomgang. ( 33 av )
4855381_1a
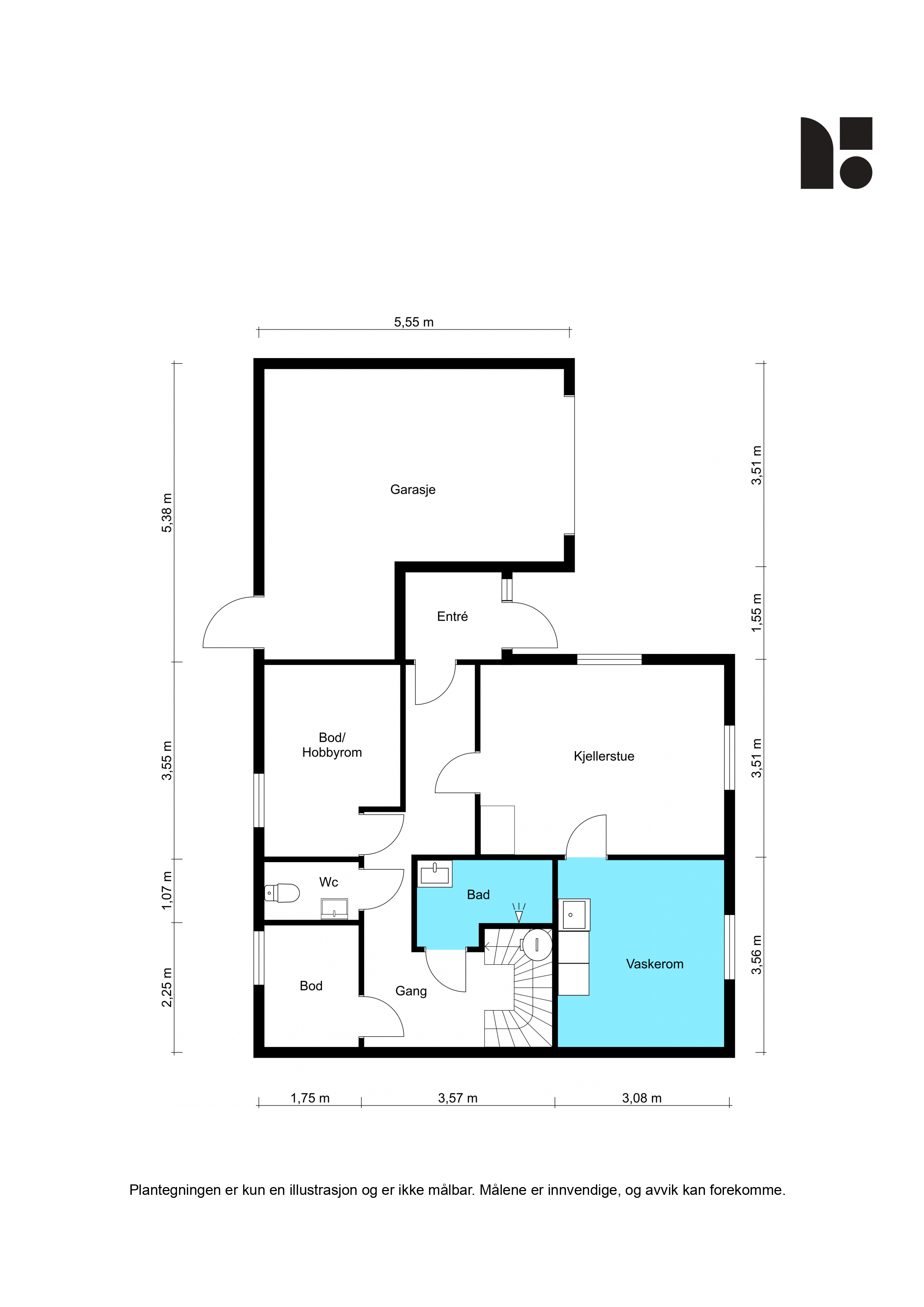
Plantegning underetasje. ( 34 av )
4859737_1a
Nede ligger bad, vaskerom og et separat toalettrom. ( 35 av )
4859738_1a
Eldre bad, modent for oppussing. ( 36 av )
4859739_1a
Toalettrommet fikk nye veggplater i 2012. ( 37 av )
4859742_1a
Kjellerstue med åpen peis. ( 38 av )
4859741_1a
Kjellerstue. ( 39 av )
4859740_1a
Egen inngang i underetasjen rett ved garasjeporten. ( 40 av )
4859755_1a
Barnevennlig og etablert boligområde på Åskollen. ( 41 av )
4859756_1a
Her bor du rett ved Drammensfjorden og utallige turområder i marka/Nordbykollen, samtidig som det er god tilgjengelighet til skoler, barnehager, buss og matvarebutikker. ( 42 av )
4859758_1a
Drone ( 43 av )

Oscar Kiærs vei 24

Se alle bilder (0)
4859752_1a
4859746_1a
4859749_1a
4859745_1a
4859747_1a
4859751_1a
4859754_1a
4859753_1a
4859748_1a
4855380_1a
4859719_1a
4859721_1a
4859743_1a
4859723_1a
4859722_1a
4859720_1a
4859718_1a
4859716_1a
4859717_1a
4859724_1a
4859727_1a
4859728_1a
4859726_1a
4859725_1a
4855379_1a
4859732_1a
4859733_1a
4859730_1a
4859731_1a
4859729_1a
4859735_1a
4859734_1a
4859736_1a
4855381_1a
4859737_1a
4859738_1a
4859739_1a
4859742_1a
4859741_1a
4859740_1a
4859755_1a
4859756_1a
4859758_1a

Oscar Kiærs vei 24

Prisantydning:
Fra Kr 5590000,00
til Kr 0,00
Totalpris:
Kr 5749000,00
BRA:
224,00 - 0,00
BRA-i:
200 - 0
Soverom:
3 - 0
Boligtype:
Enebolig
Eierform:
Eiet tomt
Byggeår:
1954
Etasje:
0
Tomteareal:
779

Enebolig over tre plan (200m²) med flott fjordutsikt, stor terrasse og integrert garasje. Kjøkken fra 2015. To innganger

Ansvarlig megler:
Markus Alm Thoen

Eiendomsmegler

Visning

Det er for tiden ikke satt opp visningstid på denne eiendommen.
Ønsker du å avtale et visningstidspunkt?
Avtal privatvisning her

Oscar Kiærs vei 24

image005

Nøkkelinformasjon

plus_G_2025

BELIGGENHET

plus_G
minus_G

BESKRIVELSE AV EIENDOMMEN

plus_G
minus_G

OFFENTLIGE FORHOLD

plus_G
minus_G

PRISANTYDNING INKLUDERT OMKOSTNINGER

plus_G
minus_G

ØVRIGE KJØPSFORHOLD

plus_G
minus_G

Dokumenter

plus_G_2025

Del boligen

facebook-gold
Twitter-gold

Lurer du på noe om denne boligen?

Ta kontakt under via skjemaet.


Relaterte boliger

Tomtegata 12A
3700000,00  0,00

Tomtegata 12A

Drammen ­ DRAMMEN
Supersentral og innbydende 2 roms - rett ved Bragernes strand. Fransk balkong & garasjeplass m/lader. Fjernvarme inkl.

Totalpris:

Kr 3806750,00

BRA-i:

47 m²
Grubegata 26J
5950000,00  0,00

Grubegata 26J

Drammen ­ DRAMMEN
Delikat halvpart tomannsbolig over to plan. Garasje, hage, store uteplasser og flott utsikt. To bad + wc og vaskerom.

Totalpris:

Kr 6113000,00

BRA-i:

139 m²
Amtmand Bangs gate 5
4700000,00  0,00

Amtmand Bangs gate 5

Drammen ­ DRAMMEN
Delikat 3-roms selveier i klassisk og historisk nabolag. Carport med lader. Solrikt fellesareal med hage og terrasse.

Totalpris:

Kr 4831750,00

BRA-i:

76 m²
Tangenveien 35
5840000,00  0,00

Tangenveien 35

Drammen ­ SVELVIK
Flott beliggende enebolig på 250 kvm i rolig nabolag. Garasje, carport og fine utearealer. Kjøkken og bad fra 2020/2021.

Totalpris:

Kr 6005250,00

BRA-i:

250 m²
Skippergata 32N
2800000,00  0,00

Skippergata 32N

Drammen ­ DRAMMEN
Hyggelig enebolig over to plan med fjordutsikt, hage og fine utearealer. Garasjeplass. Nye vinduer fra 2022. Oppussing.

Totalpris:

Kr 3213114,00

BRA-i:

75 m²
Bulows vei 10
4950000,00  0,00

Bulows vei 10

Drammen ­ DRAMMEN
Flott beliggende generasjonsbolig med oppussingsbehov. Trippelgarasje. Nydelig utsikt. Rolig blindvei ved skogen.

Totalpris:

Kr 5093000,00

BRA-i:

158 m²
Bragernes Torg 12
3890000,00  0,00

Bragernes Torg 12

Drammen ­ DRAMMEN
Supersentral selveierleilighet på 63 m² på Bragernes Torg. Heis og vestvendt fransk balkong. Fjernvarme inkl. 3 boder.

Totalpris:

Kr 4001500,00

BRA-i:

63 m²
Hagatjernveien 8D
3790000,00  0,00

Hagatjernveien 8D

Drammen ­ MJØNDALEN
Nyere 3-roms selveierleilighet fra 2020 vendt mot Consto Arena | Garasje m/lader, heis og vestvendt terrasse | Sentralt!

Totalpris:

Kr 3899000,00

BRA-i:

50 m²
Wærners gate 11Q
4100000,00  0,00

Wærners gate 11Q

Drammen ­ DRAMMEN
Flott rekkehus i sentralt & barnevennlig område | 3 soverom | 2 bad & nyere kjøkken | P-plasser | Gangavstand til skole

Totalpris:

Kr 4344010,00

BRA-i:

147 m²
Svelvikveien 61B
2500000,00  0,00

Svelvikveien 61B

Drammen ­ DRAMMEN
Nyoppført og innflyttningsklar 3-roms med utsikt mot fjorden. Stor balkong, heis og fast garasjeplass. 2 delikate bad.

Totalpris:

Kr 5954250,00

BRA-i:

90 m²
Se flere boliger
Bolig til salgs

Inspirasjon

Inspirerende interiørbilder fra norske hjem.
sov1
Soverom
kjo1
Kjøkken
stue
Stue

Boligartikler

Nyttig informasjon, råd og inspirasjon for deg som er opptatt av bolig.
aaletidligute
Aktuelt

Kapret først drømmeboligen, solgte egen bolig få dager senere

Konseptet vårt, Tidlig ute, legger til rette for et stressfritt boligsalg på kundens premisser. Poenget er å være ute i god tid, slik at prosessen...
vo4
Aktuelt

178 dager uten bud; - Proaktiv solgte boligen min etter første visning

Huset i Vestre Olsvikveg hadde mistet alt av moment etter et halvt år ute i markedet. Da Proaktiv ved Jon Kristian Røsok kom inn i bildet ble...
n_r-16
Aktuelt

Drømmer du om å drive ditt eget meglerkontor?

Proaktiv Eiendomsmegling er alltid på utkikk etter flinke folk som ønsker å skape sin egen suksess. Er du en målrettet og verdiskapende megler, med...