4852103_1a
Proaktiv v/Ola Skarra Arnesen ønsker velkommen til Hagatjernveien 8D på Consto Arena i Mjøndalen sentrum. ( 1 av )
4852104_1a
Stor balkong med utsikt utover Consto Arena ( 2 av )
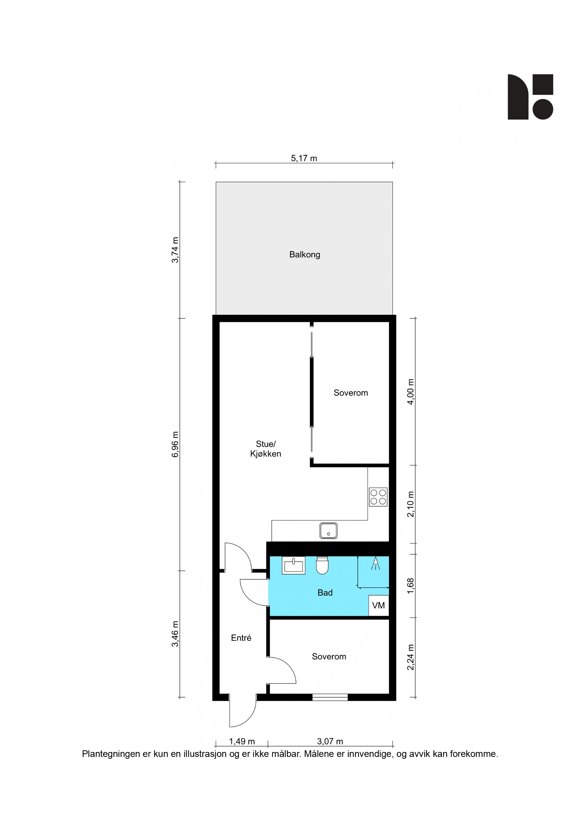
4853290_1a
Plantegning. ( 3 av )
4852119_1a
Lys og fresh selveierleilighet fra 2020. ( 4 av )
4852120_1a
( 5 av )
4852121_1a
Gjennomgående parkettgulv i hele leiligheten og moderne interiør. Vannbåren gulvvarme. ( 6 av )
4852122_1a
Det er ikke registrert noen tilfeller av TG2 eller TG3 i leiligheten. Her kan du flytte rett inn! ( 7 av )
4852123_1a
( 8 av )
4852124_1a
Tidsriktig og pent kjøkken med helintegrerte hvitevarer. ( 9 av )
4852125_1a
Delikat, flislagt bad med varme i gulvet og opplegg for vaskemaskin. ( 10 av )
4852105_1a
Leiligheten har to soverom. ( 11 av )
4852106_1a
Soverom ved stuen. ( 12 av )
4852107_1a
Soverom 2 ved entreen. ( 13 av )
4852108_1a
Flott inngangsparti med plass til ytterbekledningen. ( 14 av )
4852109_1a
Leiligheten har adkomst via heis og felles svalgang. ( 15 av )
4852110_1a
Fast garasjeplass med lader medfølger. ( 16 av )
4852111_1a
Stor, vestvendt uteplass vendt mot stadion. ( 17 av )
4852112_1a
Terrassen har delvis takoverbygg, markise og levegger mot naboene. ( 18 av )
4852113_1a
( 19 av )
4852114_1a
( 20 av )
4852116_1a
Her bor man sentralt til i Mjøndalen med det meste innen gangavstand. ( 21 av )
4852117_1a
( 22 av )
4852118_1a
Her kan man ikke klage på utsikten når MIF spiller hjemmekamper! ( 23 av )

Hagatjernveien 8D

Se alle bilder (0)
4852103_1a
4852104_1a
4853290_1a
4852119_1a
4852120_1a
4852121_1a
4852122_1a
4852123_1a
4852124_1a
4852125_1a
4852105_1a
4852106_1a
4852107_1a
4852108_1a
4852109_1a
4852110_1a
4852111_1a
4852112_1a
4852113_1a
4852114_1a
4852116_1a
4852117_1a
4852118_1a

Hagatjernveien 8D

Prisantydning:
Fra Kr 3790000,00
til Kr 0,00
Totalpris:
Kr 3899000,00
BRA:
52,00 - 0,00
BRA-i:
50 - 0
Soverom:
2 - 0
Boligtype:
Leilighet
Eierform:
Eiet tomt
Byggeår:
2020
Etasje:
2
Tomteareal:
1953

Nyere 3-roms selveierleilighet fra 2020 vendt mot Consto Arena | Garasje m/lader, heis og vestvendt terrasse | Sentralt!

Ansvarlig megler:
Ola Skarra Arnesen

Salgsleder / Partner / Eiendomsmegler

Visning

03.11.2025 16:30 - 17:15

Legg visning til i kalender 03.11.2025 16:30 03.11.2025 17:15 Central European Time Visning av Hagatjernveien 8D Boligvisning av Hagatjernveien 8D Hagatjernveien 8D

Passer ikke visningstidspunktene?

Visningspåmelding
Avtal privatvisning her

Hagatjernveien 8D

image005

Nøkkelinformasjon

plus_G_2025

BELIGGENHET

plus_G
minus_G

BESKRIVELSE AV EIENDOMMEN

plus_G
minus_G

OFFENTLIGE FORHOLD

plus_G
minus_G

PRISANTYDNING INKLUDERT OMKOSTNINGER

plus_G
minus_G

SAMEIET/ØKONOMI

plus_G
minus_G

ØVRIGE KJØPSFORHOLD

plus_G
minus_G

Dokumenter

plus_G_2025

Del boligen

facebook-gold
Twitter-gold

Lurer du på noe om denne boligen?

Ta kontakt under via skjemaet.


Relaterte boliger

Strømsø torg 5D
1850000,00  0,00

Strømsø torg 5D

Drammen ­ DRAMMEN
Supersentral 2-roms endeleilighet midt i byen! Rett ved tog, buss og alle servicetilbud. God takhøyde. Fjernvarme inkl.

Totalpris:

Kr 2169902,00

BRA-i:

44 m²
Tangenveien 35
5840000,00  0,00

Tangenveien 35

Drammen ­ SVELVIK
Flott beliggende enebolig på 250 kvm i rolig nabolag. Garasje, carport og fine utearealer. Kjøkken og bad fra 2020/2021.

Totalpris:

Kr 6005250,00

BRA-i:

250 m²
Skippergata 32N
3000000,00  0,00

Skippergata 32N

Drammen ­ DRAMMEN
Hyggelig enebolig over to plan med fjordutsikt, hage og fine utearealer. Garasjeplass. Nye vinduer fra 2022. Oppussing.

Totalpris:

Kr 3413114,00

BRA-i:

75 m²
Bulows vei 10
5600000,00  0,00

Bulows vei 10

Drammen ­ DRAMMEN
Flott beliggende generasjonsbolig med oppussingsbehov. Trippelgarasje. Nydelig utsikt. Rolig blindvei ved skogen.

Totalpris:

Kr 5759250,00

BRA-i:

158 m²
Bragernes Torg 12
3990000,00  0,00

Bragernes Torg 12

Drammen ­ DRAMMEN
Supersentral selveierleilighet på 63 m² på Bragernes Torg. Heis og vestvendt fransk balkong. Fjernvarme inkl. 3 boder.

Totalpris:

Kr 4104000,00

BRA-i:

63 m²
Brenmehls gate 12
4750000,00  0,00

Brenmehls gate 12

Drammen ­ SVELVIK
Frittliggende, oppusset enebolig på 182m² med dobbelgarasje, solrike uteplasser og lettstelt hage. Nytt kjøkken fra 2025

Totalpris:

Kr 4888000,00

BRA-i:

182 m²
Wærners gate 11Q
4100000,00  0,00

Wærners gate 11Q

Drammen ­ DRAMMEN
Flott rekkehus i sentralt & barnevennlig område | 3 soverom | 2 bad & nyere kjøkken | P-plasser | Gangavstand til skole

Totalpris:

Kr 4344010,00

BRA-i:

147 m²
Oscar Kiærs vei 24
5590000,00  0,00

Oscar Kiærs vei 24

Drammen ­ DRAMMEN
Enebolig over tre plan (200m²) med flott fjordutsikt, stor terrasse og integrert garasje. Kjøkken fra 2015. To innganger

Totalpris:

Kr 5749000,00

BRA-i:

200 m²
Svelvikveien 61B
2500000,00  0,00

Svelvikveien 61B

Drammen ­ DRAMMEN
Nyoppført og innflyttningsklar 3-roms med utsikt mot fjorden. Stor balkong, heis og fast garasjeplass. 2 delikate bad.

Totalpris:

Kr 5954250,00

BRA-i:

90 m²
Sundlandveien 12
3990000,00  0,00

Sundlandveien 12

Drammen ­ DRAMMEN
Strøken 2-r hjørneleilighet oppført i 2023. Sydvendt balkong m/utsikt, 2 boder og garasjeplass m/lader. Nybygg garanti

Totalpris:

Kr 4104000,00

BRA-i:

52 m²
Se flere boliger
Bolig til salgs

Inspirasjon

Inspirerende interiørbilder fra norske hjem.
sov1
Soverom
kjo1
Kjøkken
stue
Stue

Boligartikler

Nyttig informasjon, råd og inspirasjon for deg som er opptatt av bolig.
vo4
Aktuelt

178 dager uten bud; - Proaktiv solgte boligen min etter første visning

Huset i Vestre Olsvikveg hadde mistet alt av moment etter et halvt år ute i markedet. Da Proaktiv ved Jon Kristian Røsok kom inn i bildet ble...
n_r-16
Aktuelt

Drømmer du om å drive ditt eget meglerkontor?

Proaktiv Eiendomsmegling er alltid på utkikk etter flinke folk som ønsker å skape sin egen suksess. Er du en målrettet og verdiskapende megler, med...
ole4
Aktuelt

Bygget i 2021. Solgt for 2,5 millioner mer i 2025

Boligen i Ole I. Bores veg ble solgt for én million over prisantydning etter å ha ligget ute i markedet i kun en uke.