4880862_1a
Stor og delikat familiebolig på Nøste - Velkommen til visning! ( 1 av )
4880854_1a
Sydvestvendte uteplasser, opparbeidet hage og svært gode parkeringsmuligheter. ( 2 av )
4880856_1a
Sol fra morgen til kveld og nydelig utsikt retning fjorden. ( 3 av )
4880859_1a
Frittliggende terrasse i hagen med pergola. ( 4 av )
4880860_1a
Her kan sommeren nytes fra flere fine uteplasser rundt huset. ( 5 av )
4880861_1a
Uteområdet er gjennomført og oppgradert, og har flere soner og mye boltreplass for stor og liten. ( 6 av )
4881003_1a
( 7 av )
4880309_1a
Plantegning 1. etasje. ( 8 av )
4880834_1a
Velkommen inn! ( 9 av )
4880833_1a
Entreen gir et solid førsteinntrykk og har fliser på gulvet med underliggende varme og plassbygget skyvedørsgarderobe. ( 10 av )
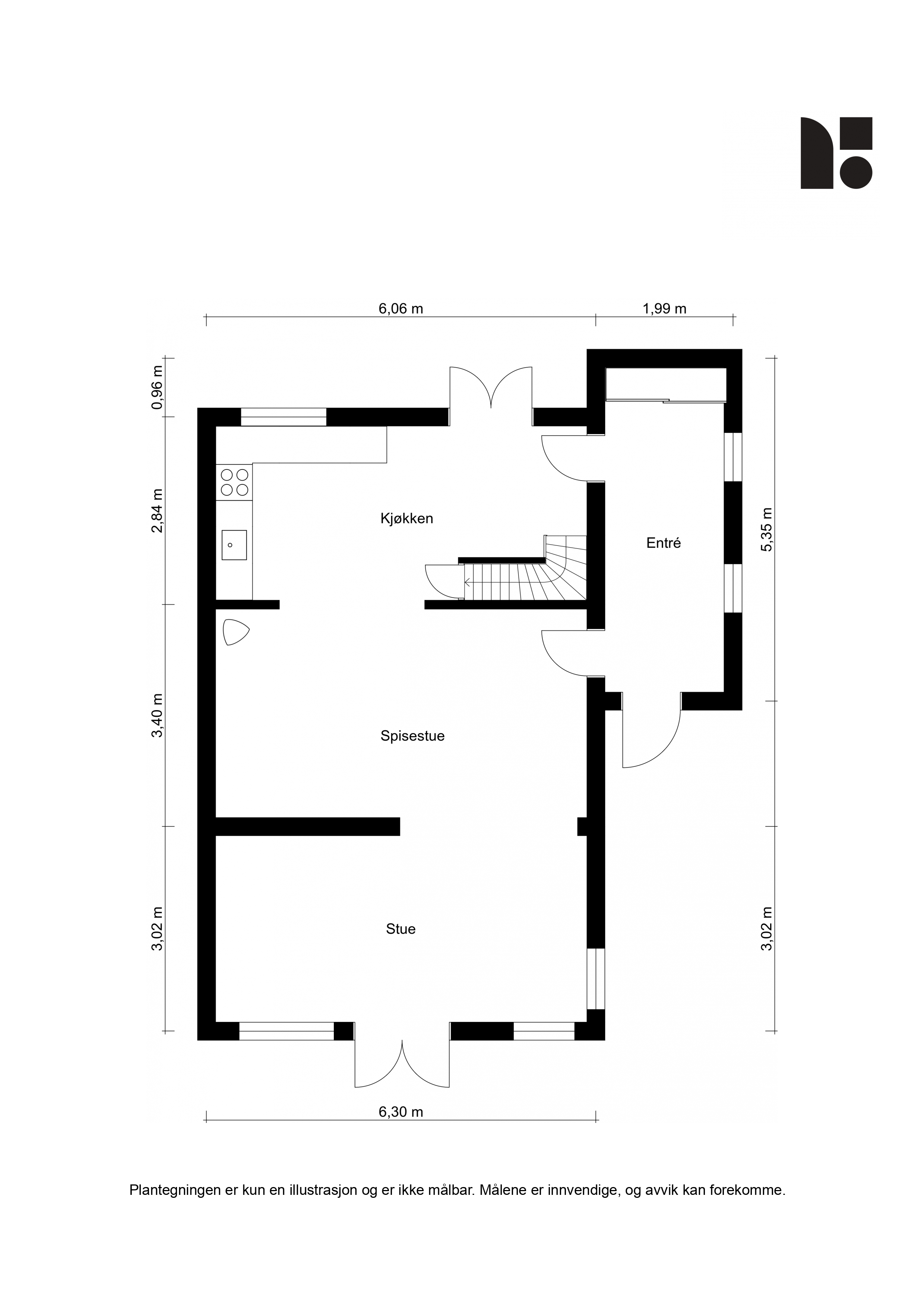
4880849_1a
Fra entreen kommer man inn til kjøkkenrommet med tilliggende spisestue. ( 11 av )
4880817_1a
Kjøkkenet har flott øy mot spisestuen med plass til flere bartsoler. ( 12 av )
4880818_1a
Takhøy innredning fra Epoq fra 2017. ( 13 av )
4880819_1a
( 14 av )
4880821_1a
Komplett utstyrt med integrerte hvitevarer. ( 15 av )
4880824_1a
( 16 av )
4880822_1a
God varme fra peisen. ( 17 av )
4880826_1a
Sosial og barnevennlig planløsning med naturlig inndeling av sonene. ( 18 av )
4880828_1a
Mye av lys og varme i huset kan styres via app på telefon/nettbrett. ( 19 av )
4880852_1a
Stuens utforming gir plass til en avslappende sofagruppe, tv-møblement og lenestoler. ( 20 av )
4880851_1a
( 21 av )
4880853_1a
Utsikt fra stuevinduet. ( 22 av )
4880827_1a
Lyse overflater, utstrakt bruk av downlightsbelysning og store vinduer med flott utsikt. ( 23 av )
4880829_1a
Dør i glass ut til terrassen. ( 24 av )
4880857_1a
Ut fra stuen ligger en stor og solrik veranda på ca. 24 kvm. vendt mot sydvest. ( 25 av )
4880858_1a
( 26 av )
4880831_1a
Her har man glimrende solforhold, lite innsyn og flott utsikt retning fjorden. ( 27 av )
4881004_1a
( 28 av )
4880310_1a
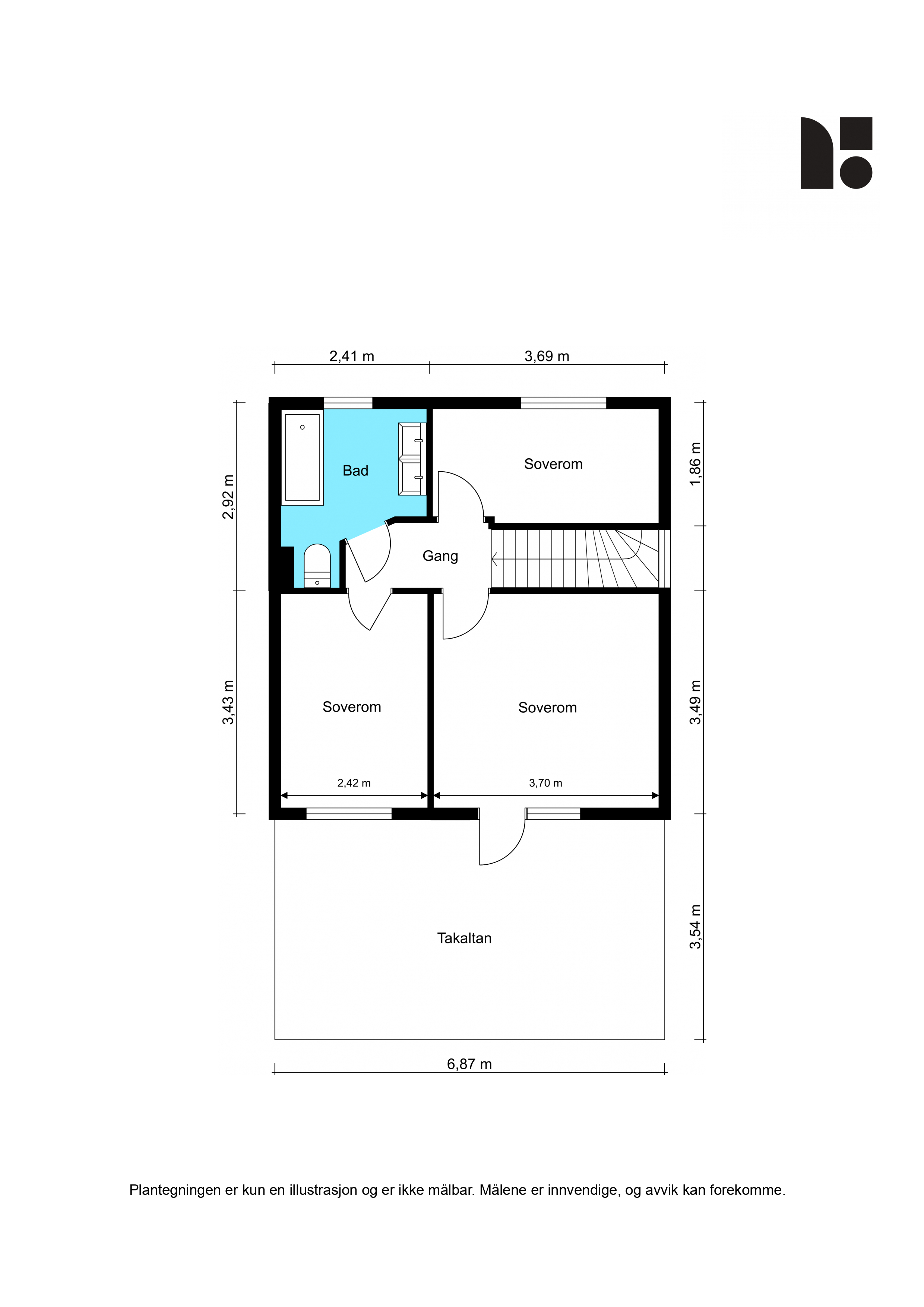
Plantegning 2. etasje. ( 29 av )
4880814_1a
Badet oppe ble pusset opp i 2022 og fremstår moderne og lekkert. Praktisk med doble servanter når man skal være flere på badet samtidig. ( 30 av )
4880813_1a
Komplett utstyrt. Flislagt med varme i gulvet. ( 31 av )
4880809_1a
Hovedsoverom av god størrelse med dør ut til en privat veranda. ( 32 av )
4880810_1a
( 33 av )
4880855_1a
Flott uteplass utenfor hovedsoverommet. ( 34 av )
4880816_1a
Soverom 2. ( 35 av )
4880811_1a
Soverom 3. ( 36 av )
4880815_1a
Trappegang. ( 37 av )
4881005_1a
( 38 av )
4880308_1a
Plantegning underetasje. ( 39 av )
4880802_1a
Trappegang nede. ( 40 av )
4880801_1a
Arbeidsrom/TV-stue. ( 41 av )
4880798_1a
Arbeidsrom/TV-stue. ( 42 av )
4880800_1a
Bad/vaskerom tilknyttet hoveddelen. ( 43 av )
4880797_1a
( 44 av )
4881006_1a
( 45 av )
4880840_1a
Godkjent utleiedel i underetasjen med entré, stue/kjøkken, soverom, bad og bod med adkomst inn til hoveddelen. ( 46 av )
4880844_1a
Kjøkken fra 2017. ( 47 av )
4880839_1a
Soverom. ( 48 av )
4880841_1a
Soverom. ( 49 av )
4880838_1a
Bad med opplegg for vaskemaskin. ( 50 av )
4880835_1a
Egen inngang inn til utleiedelen. Utleiemegleren estimerer leieinntekt på ca. 11.000,- ( 51 av )
4880842_1a
Inngangsparti. ( 52 av )
4880848_1a
( 53 av )
4880837_1a
Stor, gruset gårdsplass med plass til flere biler. 2 stk. elbil-ladere er etablert. Ved siden av står en frittstående garasje tilknyttet denne seksjonen. ( 54 av )
4880836_1a
To stk. ladere er etablert på gårdsplassen. ( 55 av )

1.Nøste Terrasse 1

Se alle bilder (0)
4880862_1a
4880854_1a
4880856_1a
4880859_1a
4880860_1a
4880861_1a
4881003_1a
4880309_1a
4880834_1a
4880833_1a
4880849_1a
4880817_1a
4880818_1a
4880819_1a
4880821_1a
4880824_1a
4880822_1a
4880826_1a
4880828_1a
4880852_1a
4880851_1a
4880853_1a
4880827_1a
4880829_1a
4880857_1a
4880858_1a
4880831_1a
4881004_1a
4880310_1a
4880814_1a
4880813_1a
4880809_1a
4880810_1a
4880855_1a
4880816_1a
4880811_1a
4880815_1a
4881005_1a
4880308_1a
4880802_1a
4880801_1a
4880798_1a
4880800_1a
4880797_1a
4881006_1a
4880840_1a
4880844_1a
4880839_1a
4880841_1a
4880838_1a
4880835_1a
4880842_1a
4880848_1a
4880837_1a
4880836_1a

1.Nøste Terrasse 1

Prisantydning:
Fra Kr 8500000,00
til Kr 0,00
Totalpris:
Kr 8731750,00
BRA:
196,00 - 0,00
BRA-i:
196 - 0
Soverom:
4 - 0
Boligtype:
Tomannsbolig
Eierform:
Eiet tomt
Byggeår:
1954
Etasje:
0
Tomteareal:
563

Romslig og gjennomført familiebolig m/utleiedel. Tilbygg fra 2017. Løpende modernisert 2017 - 2025. Nydelig fjordutsikt.

Ansvarlig megler:
Alexander Abelseth

Daglig leder / Partner / Eiendomsmegler

Visning

27.11.2025 17:00 - 17:45

Legg visning til i kalender 27.11.2025 17:00 27.11.2025 17:45 Central European Time Visning av 1.Nøste Terrasse 1 Boligvisning av 1.Nøste Terrasse 1 1.Nøste Terrasse 1

Passer ikke visningstidspunktene?

Visningspåmelding
Avtal privatvisning her

1.Nøste Terrasse 1

image005

Nøkkelinformasjon

plus_G_2025

BELIGGENHET

plus_G
minus_G

BESKRIVELSE AV EIENDOMMEN

plus_G
minus_G

OFFENTLIGE FORHOLD

plus_G
minus_G

PRISANTYDNING INKLUDERT OMKOSTNINGER

plus_G
minus_G

ØVRIGE KJØPSFORHOLD

plus_G
minus_G

Dokumenter

plus_G_2025

Del boligen

facebook-gold
Twitter-gold

Lurer du på noe om denne boligen?

Ta kontakt under via skjemaet.


Relaterte boliger

Vestsideveien 1A
4250000,00  0,00

Vestsideveien 1A

Lier ­ LIER
Stor selveierleilighet på 110 kvm med rekkehusfølelsen. Renovert i 2015. Trappefritt. Parkeringsplass.Sentralt!

Totalpris:

Kr 4370500,00

BRA-i:

110 m²
Fossveien 13B
3800000,00  0,00

Fossveien 13B

Lier ­ LIER
Innholdsrik 4-roms leilighet over to plan i flermannsbolig. 19 m² balkong og garasje m/bod. Nær skole, bhg og marka.

Totalpris:

Kr 4221317,00

BRA-i:

130 m²
Roseveien 39F
4450000,00  0,00

Roseveien 39F

Lier ­ TRANBY
Påkostet og delikat enderekkehus med ekstra stor uteplass og fast garasjeplass. 4 soverom. Barnevennlig nabolag.

Totalpris:

Kr 4867597,00

BRA-i:

122 m²
Haugane 27
4500000,00  0,00

Haugane 27

Lier ­ TRANBY
Flott halvpart tomannsbolig over to plan med sol, utsikt og fine uteplasser. Garasje. Bad fra 2020. Blindvei.

Totalpris:

Kr 4908742,00

BRA-i:

124 m²
Strandtunet 31
3800000,00  0,00

Strandtunet 31

Lier ­ LIERSTRANDA
Gjennomgående 3-roms leilighet over to plan. Balkong med kveldssol og carport m/lader. Utleie tillatt. Sentralt.

Totalpris:

Kr 3909250,00

BRA-i:

65 m²
Saueveien 40
6800000,00  0,00

Saueveien 40

Lier ­ LIER
Fint beliggende enebolig på 1 måls hjørnetomt. Nydelig hage og solrik terrasse. 3 soverom + 2 bad. Garasje.

Totalpris:

Kr 6989250,00

BRA-i:

202 m²
Frydenlund 22C
2600000,00  0,00

Frydenlund 22C

Lier ­ LIERSTRANDA
Fin 2-roms toppleilighet med fjordutsikt og sydvestvendt balkong. Bad fra 2023. Ingen gjenboere. Kort vei til Drammen.

Totalpris:

Kr 3052587,00

BRA-i:

55 m²
Øvre Solspillet 4
7300000,00  0,00

Øvre Solspillet 4

Lier ­ LIER
Stor og delikat familiebolig i blindvei med panoramautsikt, 140m² uteplasser & dobbelgarasje. 4 sov. Rolig og markanært

Totalpris:

Kr 7500750,00

BRA-i:

212 m²
Dokka 27
4500000,00  0,00

Dokka 27

Lier ­ REISTAD
Rålekker 3-roms selveier fra 2020, ytterligere oppgradert i 2022-2025, garasje og heis, sydvestvendt balkong m/utsikt.

Totalpris:

Kr 4625750,00

BRA-i:

62 m²
Haskollveien 6B
3350000,00  0,00

Haskollveien 6B

Lier ­ LIER
Rekkehus o/3 plan med 27 m² solrik terrasse, utebod og garasje. Nytt tak og vinduer i 2024. 3 sov og sep.vaskerom.

Totalpris:

Kr 4272818,00

BRA-i:

130 m²
Se flere boliger
Bolig til salgs

Inspirasjon

Inspirerende interiørbilder fra norske hjem.
sov1
Soverom
kjo1
Kjøkken
stue
Stue

Boligartikler

Nyttig informasjon, råd og inspirasjon for deg som er opptatt av bolig.
aaletidligute
Aktuelt

Kapret først drømmeboligen, solgte egen bolig få dager senere

Konseptet vårt, Tidlig ute, legger til rette for et stressfritt boligsalg på kundens premisser. Poenget er å være ute i god tid, slik at prosessen...
vo4
Aktuelt

178 dager uten bud; - Proaktiv solgte boligen min etter første visning

Huset i Vestre Olsvikveg hadde mistet alt av moment etter et halvt år ute i markedet. Da Proaktiv ved Jon Kristian Røsok kom inn i bildet ble...
n_r-16
Aktuelt

Drømmer du om å drive ditt eget meglerkontor?

Proaktiv Eiendomsmegling er alltid på utkikk etter flinke folk som ønsker å skape sin egen suksess. Er du en målrettet og verdiskapende megler, med...