4807341_1a
Stephan Erichsen v/Proaktiv Eiendomsmegling har gleden av å presentere Mellomstraen 11 for salg. ( 1 av )
4808837_1a
Østvendt balkong med flott utsikt og plass til lett møblering. ( 2 av )
4808839_1a
Utsikt mot Stavanger sentrum fra balkong. ( 3 av )
4807330_1a
( 4 av )
4807358_1a
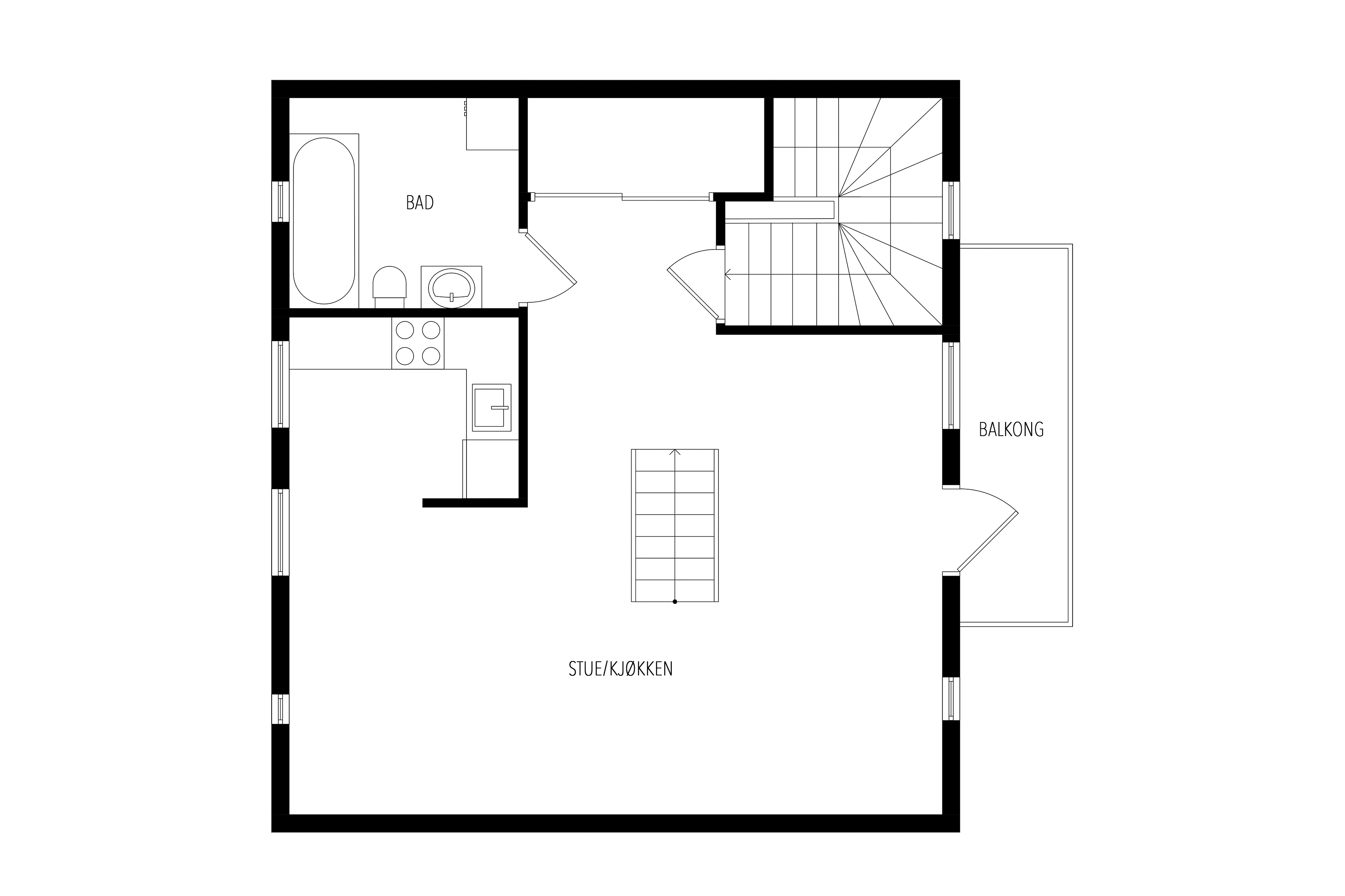
Plantegning 3.etg. ( 5 av )
4807343_1a
Entré med god garderobeplass i skyvedørsgarderobe. ( 6 av )
4807340_1a
Lysmalt stue med daglys fra vinduer i begge retninger som bidrar til en god romfølelse. ( 7 av )
4807342_1a
Plass til sittegruppe- TV-sekson og spisebord. ( 8 av )
4807339_1a
( 9 av )
4808838_1a
( 10 av )
4808835_1a
( 11 av )
4807328_1a
Bilde tatt av solnedgangen av selger. ( 12 av )
4807335_1a
Kjøkkenet er naturlig tilbaketrukket fra stuen. ( 13 av )
4807336_1a
Kjøkken med enkel standard og frittstående hvitevarer, som medfølger i handelen. ( 14 av )
4807337_1a
Oppussing må påregnes. ( 15 av )
4807338_1a
( 16 av )
4807344_1a
Helfliset bad med moderne innredning, toalett og badekar m/dusj. ( 17 av )
4807345_1a
Opplegg for vaskemaskin på bad. ( 18 av )
4807359_1a
Plantegning 2.etg. ( 19 av )
4807334_1a
( 20 av )
4807332_1a
Loftsetasjen er innredet som 2 soverom, men er ikke godkjente rom for varig opphold. ( 21 av )
4807333_1a
( 22 av )
4807329_1a
Plantegninger. ( 23 av )
4807347_1a
Her ligger du midt i smørøyet av Stavanger med utsikt mot sentrum, sjø og cruisebåtene som legger til kai. ( 24 av )
4807350_1a
Rett utenfor ytterdøren kommer du ut i Stavanger flott brosteinsgater og den verdensberømte trehusbebyggelsen i Stavanger. ( 25 av )
4807348_1a
Her har du nærhet til alt du trenger for å trives i lang tid. ( 26 av )
4807349_1a
( 27 av )
4807352_1a
Nærområde. ( 28 av )
4807331_1a
Nærområde. ( 29 av )
4807353_1a
Nærområde. ( 30 av )
4807354_1a
Nærområde. ( 31 av )
4807355_1a
Nærområde. ( 32 av )
4807356_1a
Nærområde. ( 33 av )
4807357_1a
Nærområde. ( 34 av )
4807360_1a
Nærområde. ( 35 av )
4807361_1a
Nærområde. ( 36 av )

Mellomstraen 11

Se alle bilder (0)
4807341_1a
4808837_1a
4808839_1a
4807330_1a
4807358_1a
4807343_1a
4807340_1a
4807342_1a
4807339_1a
4808838_1a
4808835_1a
4807328_1a
4807335_1a
4807336_1a
4807337_1a
4807338_1a
4807344_1a
4807345_1a
4807359_1a
4807334_1a
4807332_1a
4807333_1a
4807329_1a
4807347_1a
4807350_1a
4807348_1a
4807349_1a
4807352_1a
4807331_1a
4807353_1a
4807354_1a
4807355_1a
4807356_1a
4807357_1a
4807360_1a
4807361_1a

Mellomstraen 11

Prisantydning:
Fra Kr 2990000,00
til Kr 0,00
Totalpris:
Kr 3081370,00
BRA:
42,00 - 0,00
BRA-i:
42 - 0
Soverom:
0 - 0
Boligtype:
Leilighet
Eierform:
Fellestomt
Byggeår:
1875
Etasje:
3
Tomteareal:
131

Toppetasjes leilighet midt i sentrumskjernen av Stavanger, i den verdensberømte trehusbebyggelsen - Balkong med utsikt

Ansvarlig megler:
Stephan Michael Erichsen

Daglig leder / Partner / Eiendomsmegler MNEF

Visning

Boligen er solgt og er ikke lengre tilgjengelig for visning. 

Mellomstraen 11

image005

Nøkkelinformasjon

plus_G_2025

BELIGGENHET

plus_G
minus_G

BESKRIVELSE AV EIENDOMMEN

plus_G
minus_G

OFFENTLIGE FORHOLD

plus_G
minus_G

PRISANTYDNING INKLUDERT OMKOSTNINGER

plus_G
minus_G

SAMEIET/ØKONOMI

plus_G
minus_G

ØVRIGE KJØPSFORHOLD

plus_G
minus_G

Dokumenter

plus_G_2025

Del boligen

facebook-gold
Twitter-gold

Lurer du på noe om denne boligen?

Ta kontakt under via skjemaet.


Relaterte boliger

Lars Vaages gate 25B
3850000,00  0,00

Lars Vaages gate 25B

Stavanger ­ Stavanger
Kjekk leilighet like ved Mosvannet | 2 soverom | Sentrumsnært | Fast parkering

Totalpris:

Kr 3960500,00

BRA-i:

54 m²
Riiser-Larsens gate 1
4490000,00  0,00

Riiser-Larsens gate 1

Stavanger ­ STAVANGER
Lys og sentralt beliggende 3 roms leliighet på topplan med parkering i lukket anlegg

Totalpris:

Kr 4619419,00

BRA-i:

75 m²
Boganessletta 50
6600000,00  0,00

Boganessletta 50

Stavanger ­ Stavanger
Endeleilighet | 2 Balkonger | Stille og rolig område | Heis | Garasje | BRA 139 KVM | Solrikt

Totalpris:

Kr 6779250,00

BRA-i:

116 m²
Solåsveien 5B
2490000,00  0,00

Solåsveien 5B

Stavanger ­ STAVANGER
Lys og flott 2-roms leilighet med sentral beliggenhet og vestvendt balkong.

Totalpris:

Kr 2566500,00

BRA-i:

38 m²
Geitastova 1
6790000,00  0,00

Geitastova 1

Stavanger ­ STAVANGER
Stor og lekker leilighet med sentral beliggenhet og kjekke uteområder. Parkeringsplass i lukket anlegg.

Totalpris:

Kr 6973000,00

BRA-i:

126 m²
Nordvikveien 6
21000000,00  0,00

Nordvikveien 6

Stavanger ­ HUNDVÅG
Eksklusiv villaeiendom i idylliske omgivelser med, naust, brygge, store balkonger, carport og utleiedel.

Totalpris:

Kr 21544250,00

BRA-i:

359 m²
Condeep-veien 25
6590000,00  0,00

Condeep-veien 25

Stavanger ­ STAVANGER
Søstrene Hinna - Helt ny leilighet med 3 soverom - 2025, 2 balkonger, p-plass og bod - Flotte fellesfasiliteter.

Totalpris:

Kr 6768000,00

BRA-i:

74 m²
Madlaveien 18 og 20
14000000,00  0,00

Madlaveien 18 og 20

Stavanger ­ STAVANGER
Sentrum - Hospits/pensjonat & forretning/kontor/restaurant | Stort næringsbygg med gode utviklingsmuligheter

Areal (BTA):

723,00
Dronningens gate 10
16900000,00  0,00

Dronningens gate 10

Stavanger ­ STAVANGER
Ærverdig og vakker murvilla med ettertraktet beliggenhet. Frodig, skjermet og solfylt hage. Garasje.

Totalpris:

Kr 17340750,00

BRA-i:

343 m²
Se flere boliger
Bolig til salgs

Inspirasjon

Inspirerende interiørbilder fra norske hjem.
sov1
Soverom
kjo1
Kjøkken
stue
Stue

Boligartikler

Nyttig informasjon, råd og inspirasjon for deg som er opptatt av bolig.
aaletidligute
Aktuelt

Kapret først drømmeboligen, solgte egen bolig få dager senere

Konseptet vårt, Tidlig ute, legger til rette for et stressfritt boligsalg på kundens premisser. Poenget er å være ute i god tid, slik at prosessen...
vo4
Aktuelt

178 dager uten bud; - Proaktiv solgte boligen min etter første visning

Huset i Vestre Olsvikveg hadde mistet alt av moment etter et halvt år ute i markedet. Da Proaktiv ved Jon Kristian Røsok kom inn i bildet ble...
n_r-16
Aktuelt

Drømmer du om å drive ditt eget meglerkontor?

Proaktiv Eiendomsmegling er alltid på utkikk etter flinke folk som ønsker å skape sin egen suksess. Er du en målrettet og verdiskapende megler, med...