Standard
Boligen rom for rom:
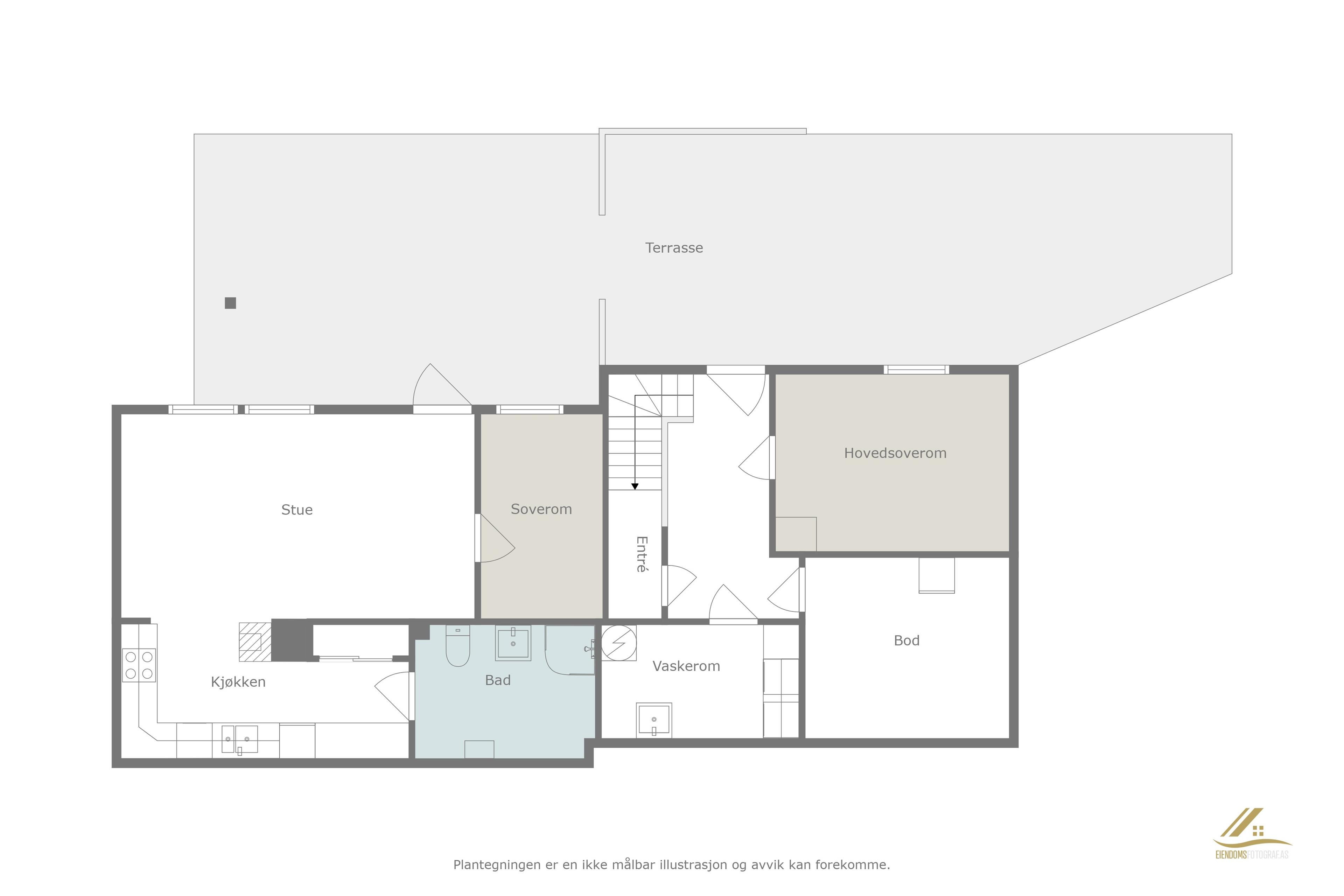
1.etasje:
Stuen har fin utforming og store vinduer langs hele ytterveggen som gir masse lysinnslipp og fin utsikt.
Det er god plass til møblering av sofagruppe og spisebord, og sentralt i rommet er det montert nyere
peisovn og varmepumpe. På gulvet er det laminat og veggene har malte plater.
Kjøkkenet ligger i eget rom med delvis åpen løsning ut stil stuen og spisestuen. Kjøkkenet har nyere og
moderne innredning med slette fronter, grepslister og laminert benkeplate med nedfelt oppvaskkum. Det
er montert plater mellom benk og overskap. Kjøkkenet er utstyrt med integrert platetopp, stekeovn,
oppvaskmaskin og kombinert kjøl- og fryseskap som alle medfølger. Over kokesonen er det ventilator
med avtrekk ut. God skap og benkeplass, og masse lysinnslipp fra stort vindu over benken.
Badet i 1. etasje har belegg på gulv og plater på veggene, og er innredet med dusjkabinett, skuffeseksjon
med nedfelt servant og tilhørende speilskap. Badet har fått TG3.
Vegg i vegg med badet er det separat toalettrom med wc og servant. Wc ble skiftet i 2020. Toalettrommet
har adkomst fra entreen.
Videre inn i etasjen ligger tre soverom. Alle soverommene har plass til seng, nattbord og
oppbevaringsløsninger.
Underetasje:
Boligen har to innganger i underetasjen, en til hoveddelen og egen inngang til hybelen ved siden av.
Hovedinngangen ligger i 1. etasje via en liten veranda rett ved gårdsplass og garasje. Inne i hoveddelen
av huset er det entré og tilliggende gang med plass til sko og ytterjakker til familien.
Det er god lagringsplass i innvendige boder i underetasjen. En av bodene er i dag innredet som
soverom. Rommet er ikke omsøkt eller godkjent for varig opphold.
Innerst i etasjen er det vaskekjeller/vaskerom med eldre standard. Rommet har malt betong på vegger og
belegg på gulv, og er innredet med utlagsvask, samt innredning med plass til både vaskemaskin og
tørketrommel. TG3.
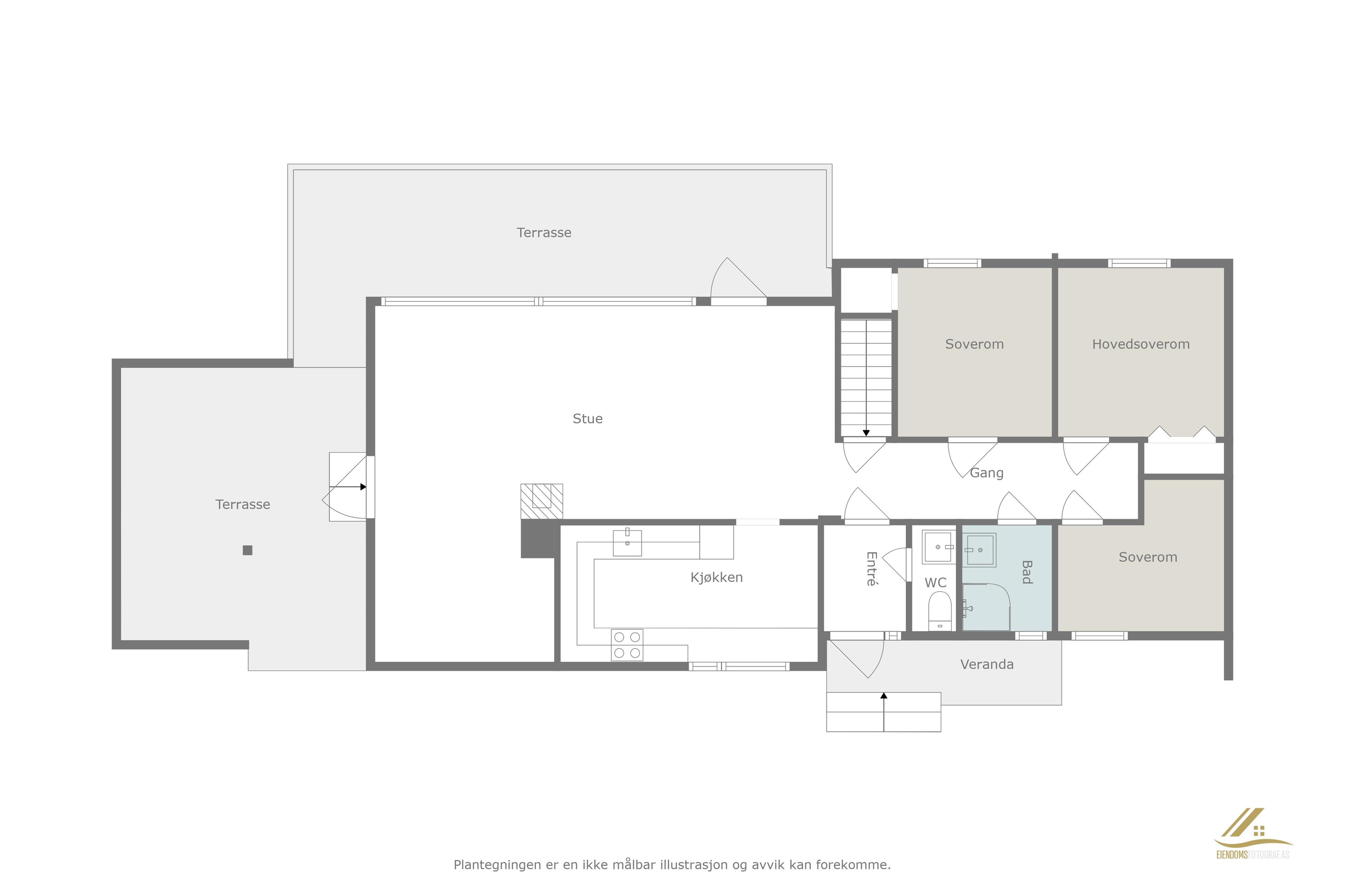
Hybel:
I deler av underetasjen er det godkjent hybel på ca. 47 kvm bestående av stue/kjøkken, bad og
sovealkove.
Stue og kjøkken i åpen løsning med vedovn og plass til sofagruppe og tv.
Kjøkkenet har vinklet innredning med profilerte fronter, laminat benkeplate og integrert platetopp og
stekeovn. Opplegg for oppvaskmaskin og plass til kjøleskap. Det er ventilator med avtrekk ut. TG3 er gitt.
Badet ligger innenfor kjøkkenet og er utstyrt med servantskap og speilskap, dusjkabinett, toalett og
opplegg for vaskemaskin. Rommet har malte murvegger og belegg på gulvet. TG3.
Selger har fått utarbeidet en tilstandsrapport for eiendommen. Rapporten er en teknisk gjennomgang
av boligen og angir eventuelle byggetekniske avvik. Takstmann har gjennomgått boligen og gjort
vurderinger på en tilstandsgrad fra 1 til 3. Graderingene er som følger:
Tilstandsgrad 0, TG0: Ingen avvik.
Tilstandsgrad 1, TG1: Mindre avvik.
Tilstandsgrad 2, TG2: Vesentlige avvik og mindre avvik som etter NS 3600 gir TG2.
Tilstandsgrad 3, TG3: Store eller alvorlige avvik.
TGIU: Ikke tilgjengelig for undersøkelse.
TG3:
- Balkonger, terrasser og rom under balkonger: Terrassen er underdimensjonert og tåler ikke de fulle
snølastene det skal beregnes for. Markterrassen har spredt råte i terrassebordene og betydelige
skjevheter. Kostnadsestimat: 50 000 - 100 000 kr.
- Bad 1.etg - overflater vegger og himling: Det er observert utette hull rundt rør i våtsone. Veggplatene er
ikke montert i henhold til leverandørens anvisninger; det mangler en aluminiumslist i bunnen av platene
og en tettefuge som forsegler platene nederst. Badet har et vindu i våtsone. Kostnadsestimat: 100 000 -
300 000 kr.
- Bad 1.etg - sluk, membran og tettesjikt: Det er påvist mangelfull/feil utførelse rundt rørgjennomføringer
e.l. som gir fare for fukt i konstruksjonen i våtsone. Mer enn halvparten av forventet brukstid er passert på
slukløsningen. Det er ikke tilfredsstillende membran/tettesjikt på våtrommet. Kostnadsestimat: 100 000 -
300 000 kr.
- Bad hybel: Våtrommet må oppgraderes for å tåle normal bruk etter dagens krav. Kostnadsestimat: Over
300 000 kr.
- Kjøkken hybel: Det er påvist skader på overflater/kjøkkeninnredning utover normal slitasjegrad. Avløpet
fra vaskemaskinen er ikke tilfredsstillende festet og må utbedres. Blandebatteriet på vasken har lekkasje
og drypper. Kostnadsestimat: Under 10 000 kr.
- Oljetank: Det foreligger krav om sanering av oljetank. Det bør fjernes utstyr på loftet, herunder dagtank og
løfter.
TG2 avvik som kan kreve tiltak:
- Taktekking: Mer enn halvparten av forventet brukstid er passert på taktekkingen og undertak.
- Nedløp og beslag: Noe rust og avflassing av belegg/maling på beslagsføringen.
- Veggkonstruksjon: Det er registrert manglende lufting bak kledning. Kledning uten tilstrekkelig lufting
kan medføre økt risiko for fukt- og råteskader.
- Takkontruksjon/loft: Det er registrert fuktskjolder på undertaket rundt luftehatten og pipe. Det er spredt
råte i vindskier.
- Dører: Dører/karmer har noe værslitasje og sprekker i treverket. Det er registrert at dører subber i terskel.
- Innvendige overflater: Enkelte skjøter på laminatgulvet har svulmet opp pga. fuktighet.
- Radon: Det er ikke foretatt radonmålinger, og bygget er heller ikke utført med radonsperre.
- Pipe og ildsted: Mer enn halvparten av forventet brukstid er passert på pipe og ildsted.
- Rom under terreng: Det er påvist indikasjoner på noe fuktgjennomtrenging i kjellergulv og inn i
kjellermur. Det er registrert kapillært fuktoppsug samt soppsporer på kjellervegger og kjellergulv.
- Innvendige trapper: Åpninger i rekkverk er større enn dagens forskriftskrav til rekkverk i trapper. Det
mangler håndløper på vegg i trappeløpet. Rekkverkshøyder er under dagens forskriftskrav til rekkverk i
trapper.
- Innvendige dører: Enkelte dører er vanskelig å lukke, da de subber i karm/terskel. Det er enkelte slarkete
låskasser.
- Bad 1.etg - overflater gulv: Belegget har synlige skjøter og er ikke forskriftsmessig festet til sluket eller
fagmessig utført.
- Toalettrom: Toalettrom har kun naturlig avtrekk fra rommet, NS 3600 krever mekanisk avtrekk for å kunne
gi TG 0/1. Toalettrom mangler tilluftsventilering, f.eks. spalte/ventil ved dør.
- Vaskekjeller/vaskerom: Vaskekjelleren har verken membran på vegger eller gulv. For å oppfylle dagens
standarder må rommet totalrenoveres.
- Vannledninger: Mer enn halvparten av forventet brukstid er passert på innvendige vannledninger.
- Avløpsrør: Mer enn halvparten av forventet brukstid er passert på innvendige avløpsledninger. Luftingen
til avløpet er ikke isolert på kald side på loft.
- Ventilasjon: Det er påvist avvik i ventilasjonsløsning i forhold til gjeldende krav på oppføringstidspunktet.
Det er registrert en ventilasjonskanal av eternitt.
- Elektrisk anlegg: Det anbefales å gjennomføre en elkontroll, da det elektriske anlegget ikke har vært
kontrollert av Lede eller en autorisert elektroinstallatør i løpet av de siste fem årene.
- Fuktsikring og drenering: Mer enn halvparten av forventet levetid på drenering er overskredet. Det er
synlig saltutslag innvendig på vegg.
- Grunnmur og fundamenter: Grunnmuren har mindre svinnriss og stedvis avflassing i
overflatebehandlingen.
- Terrengforhold: Det er påvist dårlig fall eller flatt terreng inn mot grunnmur og dermed muligheter for
større vannansamlinger. Det er påvist områder på eiendommen med stående vann.
- Utvendige vann- og avløpsledninger: Mer enn halvparten av forventet brukstid er passert.