Vi har byttet meglersystem. Noe avvik kan derfor forekomme. Kontakt oss om du opplever utfordringer.
Vi har byttet meglersystem. Noe avvik kan derfor forekomme. Kontakt oss om du opplever utfordringer.
logo
search
879720971372157
Proaktiv v/Ola Skarra Arnesen har gleden av å presentere et nyoppført og eksklusivt familiehjem i Tårnveien 4E på Gulskogen/Strømsåsen. ( 1 av )
879720971372158
Nylig ferdigstilt og klar for sin første eier - gjennomgående høy standard og kvalitet. ( 2 av )
879720971372159
Townhouse over tre plan med et moderne hoveduttrykk, løftet av klassiske detaljer som mansardtak. ( 3 av )
879720971372160
Her bor man i barnevennlige omgivelser, samtidig som by, handel og kollektivtilbud er kun minutter unna. ( 4 av )
879720971372161
Vedlikeholdsvennlig familiebolig med Plannja-tak og kledning fra Alvdal Royal. ( 5 av )
879720971372162
Romslig carport og plass til flere biler foran denne. ( 6 av )
879720971372163
( 7 av )
879720971372195
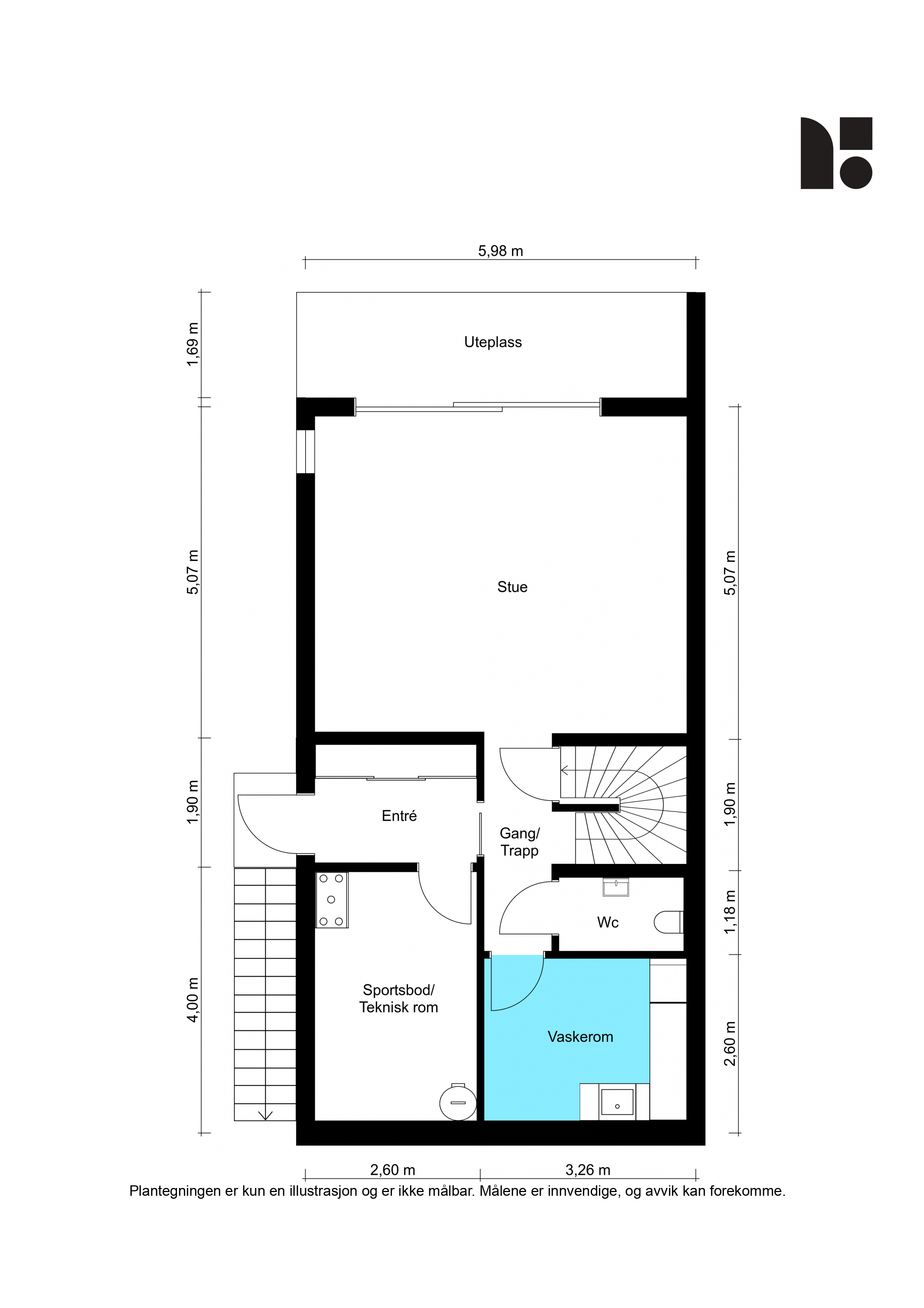
Plantegning 1. etasje. ( 8 av )
879720971372164
I mellometasjen kan ny eier glede seg over et eksklusivt kjøkken, god plass til spisebordet og en flott peis. ( 9 av )
879720971372165
De sorte karmene bryter opp de ellers lyse linjene og vinduene slipper inn lyset du trenger med sol til ca kl 22 midtsommers. ( 10 av )
879720971372166
Toppmoderne kvalitetskjøkken fra JKE Design som tilføyer en eksklusiv og stilsikker look til allrommet. ( 11 av )
879720971372167
Innredningen er en drøm både med tanke på utformingen og funksjonaliteten, og det er rikelig med oppbevaringsplass i skap og skuffer, inkludert under barløsningen. ( 12 av )
879720971372168
Komplett utstyrt med integrerte hvitevarer. ( 13 av )
879720971372169
Praktisk soverom i 1. etasje med egen inngang og eget bad med opplegg for vaskemaskin. ( 14 av )
879720971372170
Soverommet har stor fleksibilitet og flere bruksmuligheter med egen inngang og skjermet uteplass. ( 15 av )
879720971372171
Delikat baderom i 1. etasje. Komplett utstyrt inkludert opplegg for vaskemaskin. ( 16 av )
879720971372172
Inngang i mellometasjen via et flott inngangsparti med et fresht og moderne design av topp kvalitet. ( 17 av )
879720971372173
( 18 av )
879720971372174
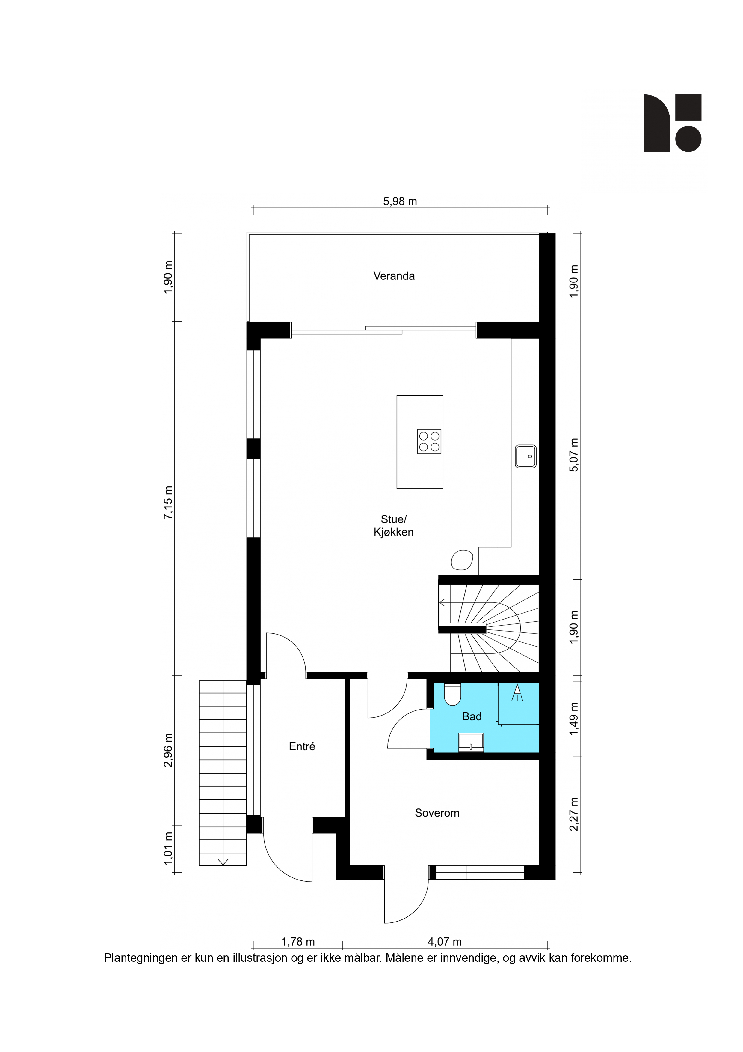
Plantegning 2. etasje. ( 19 av )
879720971372175
Stue i toppetasjen. Et perfekt oppholdsrom når barna har venner på besøk. Takhøyde opp mot ca. 3,5 meter i 2. etasje. ( 20 av )
879720971372176
Mastersoverom med walk-in closet og privat bad i tilknytning. ( 21 av )
879720971372177
( 22 av )
879720971372178
Walk-in closet. ( 23 av )
879720971372179
Her er det blant annet doble skålservanter med skuffeseksjon, noe som sørger for en god flyt i morgenrushet. ( 24 av )
879720971372180
Totalt tre soverom i toppetasjen. ( 25 av )
879720971372181
( 26 av )
879720971372182
Ytterligere ett bad i denne etasjen, perfekt som barnas eget bad. ( 27 av )
879720971372183
( 28 av )
879720971372184
Plantegning underetasje. ( 29 av )
879720971372185
Flott stue med plass til sofagruppe, kontor eller leker. Alt etter familiens behov. ( 30 av )
879720971372186
Generøs takhøyde på ca. 260 cm gir en eksklusiv romfølelse. ( 31 av )
879720971372187
Utenfor stuen ligger en stor terrasse med tilhørende hage. Her kan barna løpe inn og ut som de selv ønsker. ( 32 av )
879720971372188
Fra entreen er det praktisk adkomst inn til vaskerommet hvor våte parkdresser og gjørmete støvler kan sparkes av. ( 33 av )
879720971372189
Separat toalettrom. ( 34 av )
879720971372190
Egen inngang inn til underetasjen. ( 35 av )
879720971372191
Flott inngangsparti med trapp rett ned fra carporten. ( 36 av )
879720971372192
( 37 av )
879720971372193
( 38 av )
879720971372194
( 39 av )

Tårnveien 4E

Se alle bilder (0)
879720971372157
879720971372158
879720971372159
879720971372160
879720971372161
879720971372162
879720971372163
879720971372195
879720971372164
879720971372165
879720971372166
879720971372167
879720971372168
879720971372169
879720971372170
879720971372171
879720971372172
879720971372173
879720971372174
879720971372175
879720971372176
879720971372177
879720971372178
879720971372179
879720971372180
879720971372181
879720971372182
879720971372183
879720971372184
879720971372185
879720971372186
879720971372187
879720971372188
879720971372189
879720971372190
879720971372191
879720971372192
879720971372193
879720971372194

Tårnveien 4E

Prisantydning:
Kr 11000000
Totalpris:
Kr 11088990
BRA:
210
BRA-i:
210
Soverom:
4
Boligtype:
Tomannsbolig
Eierform:
​Obligasjon
Byggeår:
2026
Etasje:
0
Tomteareal:
760

Splitter nytt townhouse fra 2026 med høy standard og kvalitet. 210 kvm. 4 soverom. Carport, hage og fantastisk utsikt!

Utsøkt, eksklusiv og splitter nytt townhouse på Strømsøåsen i Tårnveien 4E. Huset er nylig ferdigstilt og gjennomført til fingerspissene med gjennomgående gode kvaliteter og moderne design, signert Solli Arkitekter. Boligen byr på 210 m² over tre plan med god plass til hele familien. Planløsningen rommer fire soverom, tre stuer, tre bad + toalett og eget vaskerom, i tillegg til rikelig med oppbevaringsplass og smarte løsninger. Den generøse takhøyden på 2,6 m, med opptil nærmere 3,5 m i øverste etasje, gir en lys og luftig romfølelse. Ute er det solrikt med hageareal og balkong med sol til ca. kl. 22 midtsommer, samt gode parkeringsmuligheter ved inngangspartiet. Trygt og familievennlig nabolag med kort vei til daglige fasiliteter.
Ansvarlig megler:
Ola Skarra Arnesen

Salgsleder / Partner / Eiendomsmegler

Visning

12.02.2026 16:00 - 17:00

Legg visning til i kalender 12.02.2026 16:00 12.02.2026 17:00 Central European Time Visning av Tårnveien 4E, 3047 DRAMMEN Boligvisning av Tårnveien 4E, 3047 DRAMMEN Tårnveien 4E, 3047 DRAMMEN

Passer ikke visningstidspunktene?

Visningspåmelding
Avtal privatvisning her

Tårnveien 4E

image005

Nøkkelinformasjon

plus_G

Beskrivelse av eiendommen

plus_G
minus_G

Borettslaget/sameie/økonomi

plus_G
minus_G

Offentlige forhold

plus_G
minus_G

Områdebeskrivelse

plus_G
minus_G

Prisantydning inkl. omkostninger

plus_G
minus_G

Takst og Tilstand

plus_G
minus_G

Øvrige kjøpsforhold

plus_G
minus_G

Dokumenter

plus_G

Del boligen

facebook-gold
Twitter-gold

Lurer du på noe om denne boligen?

Ta kontakt under via skjemaet.


Relaterte boliger

879720971372075
1590000 

Hedensrudveien 48C

Drammen ­ DRAMMEN
Flott beliggenede tomt med gode solforhold og fjordutsikt | Kort vei til skole og barnehage - Attraktivt boområde

Totalpris:

Kr 1630840

P-rom:

 m²
830242948122760
4700000 

Grønland 70A

Drammen ­ DRAMMEN
Stor og strøken 2-roms sentrumsleilighet i PIR 7. 5.etasje med heis og balkong med elveutsikt. Vannbåren varme.

Totalpris:

Kr 4831490

BRA-i:

60 m²
879720971371561
2300000 

Svelvikveien 61B

Drammen ­ DRAMMEN
Nyoppført og innflyttningsklar 3-roms med utsikt mot fjorden. Stor balkong, heis og fast garasjeplass. 2 delikate bad.

Totalpris:

Kr 5753990

BRA-i:

90 m²
879720971371719
4290000 

Hotvetveien 43

Drammen ­ DRAMMEN
Delikat og lekker 3-roms selveierleilighet med solrik balkong,ny heis og parkeringsplass | Nydelig utsikt!

Totalpris:

Kr 4567510

BRA-i:

75 m²
879720971371812
3700000 

Tomtegata 12A

Drammen ­ DRAMMEN
Supersentral og innbydende 2 roms - rett ved Bragernes strand. Fransk balkong & garasjeplass m/lader. Fjernvarme inkl.

Totalpris:

Kr 3806750

BRA-i:

47 m²
879720971371411
2950000 

Solbergs gate 14A

Drammen ­ DRAMMEN
Gjennomgående 3-roms med god internbeliggenhet på feltet. Usjenert balkong og fast parkeringsplass. Vannbåren varme

Totalpris:

Kr 3210448

BRA-i:

73 m²
879720971371317
10490000 

Granlia 1

Drammen ­ MJØNDALEN
Klassisk murvilla på 215m². Høyt og solrikt beliggende med utsikt over Mjøndalen. Dobbelgarasje og vestvendte uteområder

Totalpris:

Kr 10770240

BRA-i:

215 m²
879720971371136
2590000 

Maria Fegths gate 14C

Drammen ­ DRAMMEN
Lys og hyggelig 2-roms andelsleilighet. Vestvendt veranda og parkeringsplass. Peisovn. Rolig, men sentralt boligområde.

Totalpris:

Kr 2707745

BRA-i:

45 m²
879720971370833
3600000 

Bragernes torg 12

Drammen ­ DRAMMEN
Delikat selveierleilighet med orkesterplass mot Bragernes Torg. Heis og vestvendt fransk balkong.

Totalpris:

Kr 3703990

BRA-i:

63 m²
879720971371214
4750000 

Herman Wildenveys gate 36

Drammen ­ DRAMMEN
Vertikaldelt tomannsbolig på toppen av Øren | 3 sov | Rå panoramautsikt, flere solrike uteplasser og gar m/EL.

Totalpris:

Kr 4888740

BRA-i:

135 m²
Se flere boliger
Bolig til salgs

Inspirasjon

Inspirerende interiørbilder fra norske hjem.
sov1
Soverom
kjo1
Kjøkken
stue
Stue

Boligartikler

Nyttig informasjon, råd og inspirasjon for deg som er opptatt av bolig.
aaletidligute
Aktuelt

Kapret først drømmeboligen, solgte egen bolig få dager senere

Konseptet vårt, Tidlig ute, legger til rette for et stressfritt boligsalg på kundens premisser. Poenget er å være ute i god tid, slik at prosessen...
vo4
Aktuelt

178 dager uten bud; - Proaktiv solgte boligen min etter første visning

Huset i Vestre Olsvikveg hadde mistet alt av moment etter et halvt år ute i markedet. Da Proaktiv ved Jon Kristian Røsok kom inn i bildet ble...
n_r-16
Aktuelt

Drømmer du om å drive ditt eget meglerkontor?

Proaktiv Eiendomsmegling er alltid på utkikk etter flinke folk som ønsker å skape sin egen suksess. Er du en målrettet og verdiskapende megler, med...