Standard
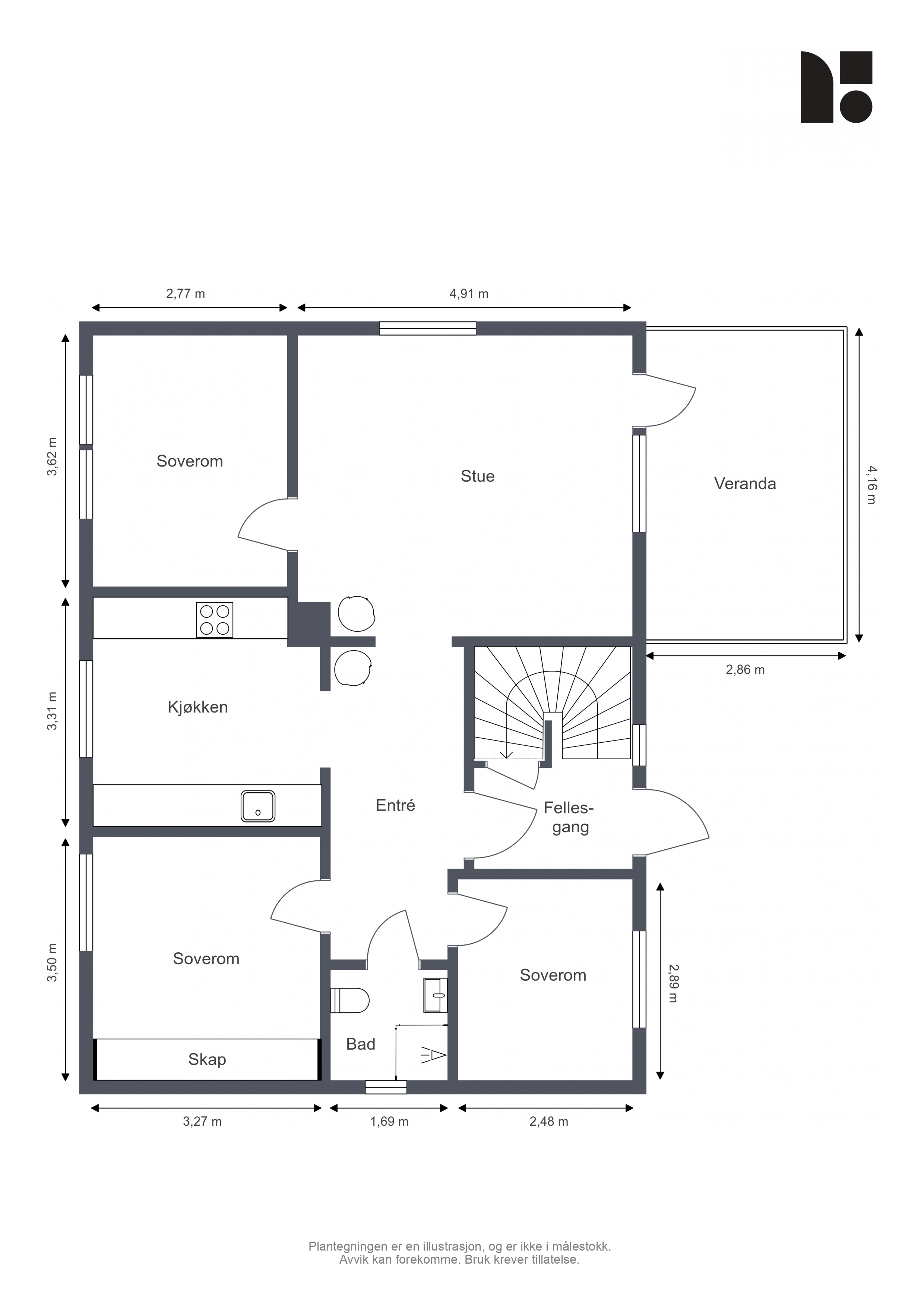
En gjennomgang av boligens rom:
Entré og gang:
Åpen entré og gang med god plass til skap, knaggrekke og hyller for yttertøy og utstyr. Gangen har laminatgulv som tåler mye, og alle overflater er malt i hvitt. I hjørnet v
rommet er det vedovn.
Stue:
Romslig og lyst oppholdsrom med videre utgang til terrasse og felles hage. Stuen har lyst laminatgulv, hvitmalte overflater, og plass til å innrede sofagruppe og mediemøblement. Vedovn plassert i hjørnet av rommet.
Veranda:
Overbygd og sydvendt veranda på ca.12 kvm med plass til sittegruppe, spisebord og grill. Gode solforhold hele dagen. Felles hage opparbeidet med inngjerdet gressplen med boltreplass for lek og aktivitet.
Kjøkken:
Separat kjøkken med plass til spisebord. Kjøkkenet har eldre innredning med slette trefronter, laminat benkeplate og nedfelt oppvaskkum. Kjøkkenet har opplegg for oppvaskmaskin, og plass til komfyr og kjøleskap. Ventilator over kokesonen. Rommet har laminatgulv, hvitmalte overflater og stort vindu.
Bad:
Flott bad oppusset i 2024, med store og mørke fliser på vegger og gulv og underliggende gulvvarme. Rommet er utstyrt med stilrent servantskap m/ ettgreps kran, praktisk speilskap, veggmontert wc og dusjhjørne med innfellbare dører og regnfallsdusj. Elektrisk avtrekksvifte er montert. Vindu gir ekstra lys og luftemuligheter.
Soverom:
Leiligheten har tre soverom som alle har plass til nødvendig møblement som seng, nattbord og oppbevaring. På hovedsoverommet er det skyvedørsgarderobe langs en vegg.
Boligen disponerer deler av kjeller som består av eldre vaskerom (TG3) og bod.
Selger har i forbindelse med salget innhentet en tilstandsrapport. Rapporten er en teknisk gjennomgang av boligen og angir eventuelle byggetekniske avvik, samt kostnadsoverslag for eventuelle oppgraderinger.
Vi vil gjøre spesielt oppmerksom på viktigheten av å lese igjennom rapportens TGIU (tilstandsgrad ikke undersøkt), samt TG2 og TG3 som angir avvik fra normal slitasje, høy alder, bygningsdel som må utbedres, og lignende.
Boligen har fått følgende TG3:
- Vaskerom - sluk, membran og tettesjikt: Det er ikke påvist en fungerende membran (vanntett sjikt). TG 3 er gitt på grunn av manglende tettesjikt i rommet. Kostnadsestimat for utbedring: 200 000 – 500 000 kr.
Boligen har fått følgende TG2:
- Taktekking: Det er observert rust og korrosjon på nedløp, renner og beslag.
- Veggkonstruksjon: Det er funnet enkelte steder med råte i trekledningen, som skjer når treverket er fuktig over lang tid uten å få tørke ordentlig. Ved stikkprøvekontroll ble det registrert manglende luftespalte nederst i kledningen. Det er registrert svertesopp på kledningen. Malingen «bobler» på flere steder rundt fasaden.
- Fuktsikring og drenering: Det er registrert saltutslag (hvite utfellinger) på grunnmuren. Stikkprøver med fuktindikator viser forhøyede verdier i både grunnmur og kjellergulv. Eventuell dreneringen er i en alder der man må regne med at funksjonen kan være redusert.
- Grunnmur og fundamenter: Det er observert flere riss og sprekker i grunnmuren. Det er registrert mindre skader i pussen på grunnmuren, med riss og områder hvor pussen har løsnet fra underlaget (bom).
- Terrengforhold: Terrenget inntil grunnmuren er tilnærmet flatt. Takvann ledes ut nær bygningsmassen enkelte steder uten løsning som fører vannet videre bort fra huset.
- Vinduer: Det er registrert slitasje og avflassing i malingen på vinduskarmene. Utvendig listverk ligger helt inntil vannbordet uten nødvendig avstand. Utvendig puss ligger helt inntil karmen uten elastisk fuge. Treverket er værslitt og har synlige sprekker. Byggeskum er synlig og ubeskyttet utvendig. Enkelte av vinduene i kjelleren har nådd en alder der det erfaringsmessig foreligger en usikker fremtidig funksjon. Det er registrert vinduer som tar i karmen ved åpning og lukking. Det er registrert begynnende soppvekst på vindu i våtrommet.
- Balkonger/terrasser og lignende: Det er registrert sprekker i treverket.
- Bad - overflater: Vindu og dør er plassert i våtsone, og materialene/løsningen er ikke tilpasset jevn fuktbelastning.
- Bad - Sluk og tettesjikt/membran: Det er registrert en stikkontakt i våtsone. Det er registrert vindu i våtsone der det vanntette sjiktet ikke fremstår som egnet for denne typen løsning.
- Vaskerom - overflater: Bygningsdelen er over halvparten av forventet levetid. Slitasje må påregnes i denne alderen.
- Vaskerom - sanitærutstyr: Avløpet har treg avrenning.
- Vaskerom - avtrekk: Avtrekket skjer ved naturlig oppdrift, altså uten mekanisk vifte.
- Rom under terreng: Det er registrert riss/sprekker i overflater. Det er registrert saltutslag på grunnmuren. Ventileringen i rommene er ikke tilfredstillende.
- Gulv, avløp og vannrør i kjøkken: Det er ikke montert automatisk lekkasjestopper i kjøkkenet, som var et krav på tidspunktet da røropplegget ble etablert.
- Vannledninger: PEX-rør (plastrør) er koblet direkte til varmtvannsberederen uten overgang til metallrør. Det registreres tydelige trykkslag (slaglyder) i vannrørene når vann tappes av og på. Vannrørene (PEX/plastrør) i fordelerskapet er merket direkte med tusj.
- Avløpsrør: Det er registrert svært treg avrenning fra avløpet på vaskerommet ved enkel funksjonstest. Avløpsrørene på vaskerommet er av eldre dato og har nådd en alder hvor det er erfaringsmessig usikker fremtidig funksjon.
- Ventilasjon: Boligen har naturlig ventilasjon (oppdriftsventilasjon). Det er ikke etablert tilluftsventil i kjøkkenet. Boligens samlede luftutveksling er ikke tilfredsstillende på grunn av nevnte avvik.
- Varmesentral: Det foreligger ikke dokumentasjon på at varmepumpen er installert av fagperson eller i henhold til gjeldende krav. Det foreligger ikke dokumentasjon på service eller kontroll av varmeanlegget de siste to årene.
- Varmtvannstank: Varmtvannsberederen har passert normal forventet levetid (over ca. 20 år).
TG-IU:
- Vaskerom - kontroll i tilliggende konstruksjoner.
Helse, miljø og sikkerhet:
- Balkong: Rekkverket er lavere enn dagens krav, men det er ikke krav om tilpasning til dagens regler. Konsekvensen er at rekkverkethar lavere personsikkerhet sammenlignet med dagens krav.
- Innvendig trapp: Det mangler rekkverk eller annen fallsikring. Fallsikring bør etableres av hensyn til personsikkerhet ved opphold påkonstruksjonen.
- Innvendig trapp: Det er registrert åpninger større enn 0,1 meter i rekkverket. Slike åpninger kan gjøre det mulig for små barn åkomme seg gjennom eller sette seg fast.
Det mangler håndløper på veggen i trappen. Manglende håndløper gir lavere personsikkerhet.
- Utvendig trapp: Det mangler rekkverk eller annen fallsikring. Fallsikring bør etableres av hensyn til personsikkerhet ved opphold påkonstruksjonen.
For ytterligere informasjon om byggemåte, årsak bak tilstandsgrader, konsekvens og anslag på eventuelle utbedringskostnader, se tilstandsrapport som ligger vedlagt. Interessenter oppfordres til å kontakte bygningssakyndig ved eventuelle bygningstekniske spørsmål.