4882425_1a
Stephan Erichsen v/Proaktiv Eiendomsmegling har gleden av å presentere Butlers Gate 7 for salg. ( 1 av )
4882438_1a
Butlers gate 7 er en praktfull murvilla med mye muligheter (hel tomannsbolig), god planløsning og kjekt uteområde. ( 2 av )
4882481_1a
Plantegning 1. etasje ( 3 av )
4882428_1a
Inngangsparti med trapp i betong og praktfulle detaljer. ( 4 av )
4882454_1a
Romslig og innbydende entré med god plass til å henge fra seg yttertøy. ( 5 av )
4882453_1a
Her har man både hovedinngang og bi-inngang som leder ut til hage. Vinduer med flotte detaljer som gir boligen et unikt preg. ( 6 av )
4882457_1a
Praktisk gjestetoalett. ( 7 av )
4882447_1a
Lys og fin stue med nok av plass til til både sittegruppe, tv-seksjon og øvrig møblering. ( 8 av )
4882445_1a
Store vindusflater som slipper inn rikelig med naturlig lys og bidrar til å skape en god romfølelse. ( 9 av )
4882433_1a
Parkett på gulv og tidløst fargevalg på vegg. ( 10 av )
4882437_1a
Stue og kjøkken i delvis åpen løsning. ( 11 av )
4882436_1a
Naturlig plass til spisebord av ønsket størrelse i allrom. ( 12 av )
4882448_1a
Kjøkken av god størrelse, med mye naturlig lys. ( 13 av )
4882452_1a
( 14 av )
4882434_1a
Fint kjøkken med lyse, profilerte fronter og rikelig med skap- og benkplass. ( 15 av )
4882449_1a
Kjøkkenøya gir godt med plass til matlaging og praktisk kjøkkenbruk. ( 16 av )
4882440_1a
( 17 av )
4882442_1a
Integrerte hvitevarer medfølger som hovedregel i handelen, dette inkluderer oppvaskmaskin, kombiskap, stekeovn og platetopp. ( 18 av )
4882435_1a
( 19 av )
4882444_1a
Kjøkken ligger naturlig tilbaketrukket fra stue. ( 20 av )
4882439_1a
( 21 av )
4882455_1a
Flott, helfliset bad med praktisk vaskeromsløsning og varmekabler i gulv. ( 22 av )
4882456_1a
( 23 av )
4882482_1a
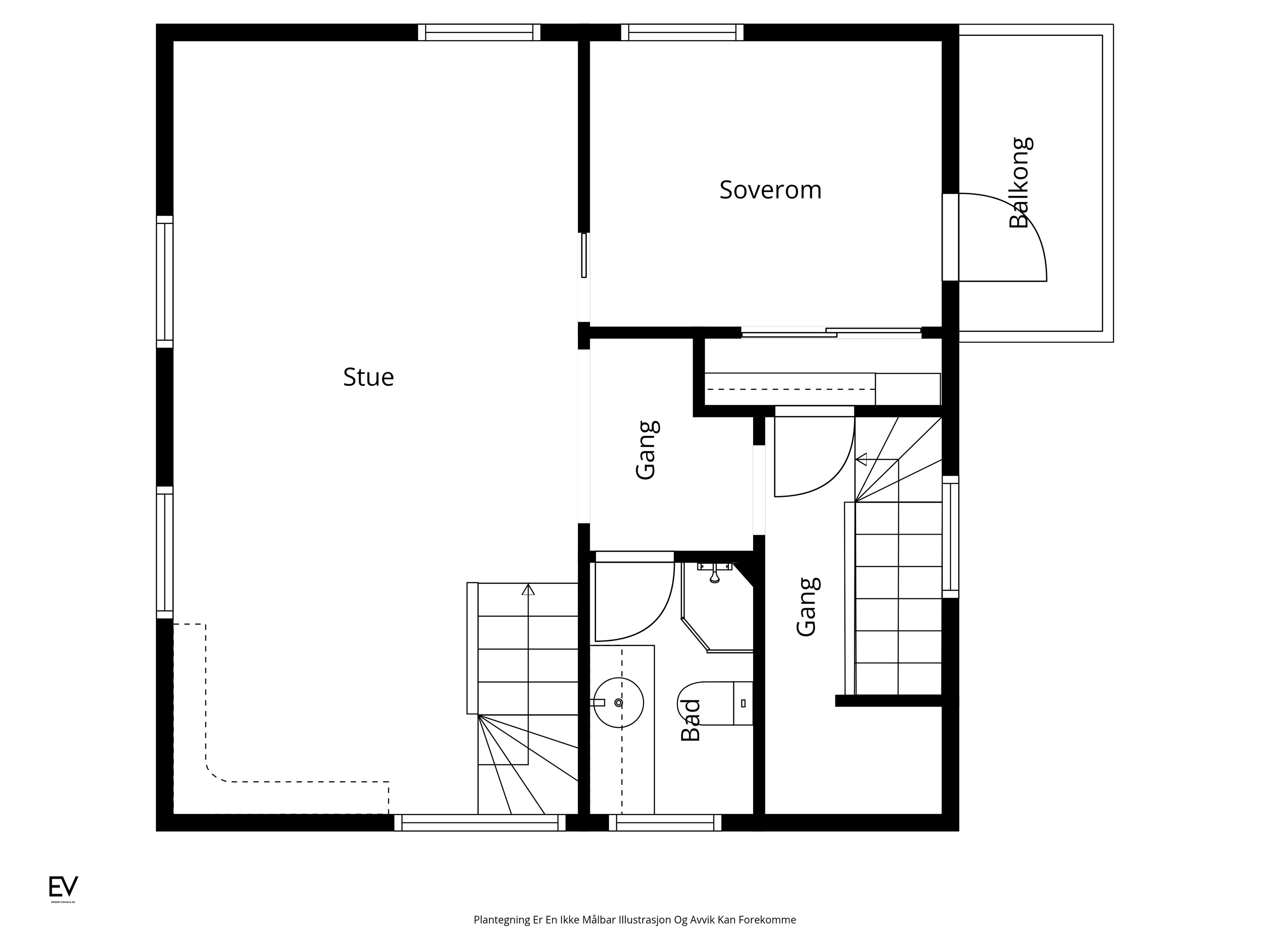
Plantegning 2. etasje ( 24 av )
4882416_1a
Luftig stue med god plass til flere sittegrupper, tv-seksjon og øvrig møblering. ( 25 av )
4882415_1a
Spotter i tak. ( 26 av )
4882409_1a
( 27 av )
4882419_1a
( 28 av )
4882408_1a
De store vindusflatene gir rommet et luftig preg. ( 29 av )
4882410_1a
Soverom av god størrelse med nok av plass til både dobbeltseng og garderobeløsning. Tilkomst til egen balkong. ( 30 av )
4882411_1a
( 31 av )
4882413_1a
Helfliset bad med dusjhjørne og gulvfestet toalett. ( 32 av )
4882414_1a
God oppbevaringsplass både over og under servant. ( 33 av )
4882483_1a
Plantegning loft ( 34 av )
4882417_1a
Loftet har to rom brukt som soverom og plass til oppbevaring. ( 35 av )
4882418_1a
Rommen er markedsført slik de er brukt, da det ikke foreligger godkjente tegninger på bygget. ( 36 av )
4882421_1a
( 37 av )
4882420_1a
( 38 av )
4882480_1a
Plantegning underetasje ( 39 av )
4882460_1a
Kjeller med bi-inngang. ( 40 av )
4882459_1a
( 41 av )
4882467_1a
Helfliset bad med moderne innredning og varmekabler i gulv. ( 42 av )
4882466_1a
Badet har vegghengt toalett, dusjhjørne, spotter i tak, hel servant og god oppbevaringsplass i baderomsmøbel og ekstra skap. ( 43 av )
4882464_1a
Underetasje har to rom av god størrelse. ( 44 av )
4882463_1a
( 45 av )
4882462_1a
Fliser på gulv og spotter i tak. ( 46 av )
4882461_1a
( 47 av )
4882465_1a
Lagringsplass i praktisk bod. ( 48 av )
4882484_1a
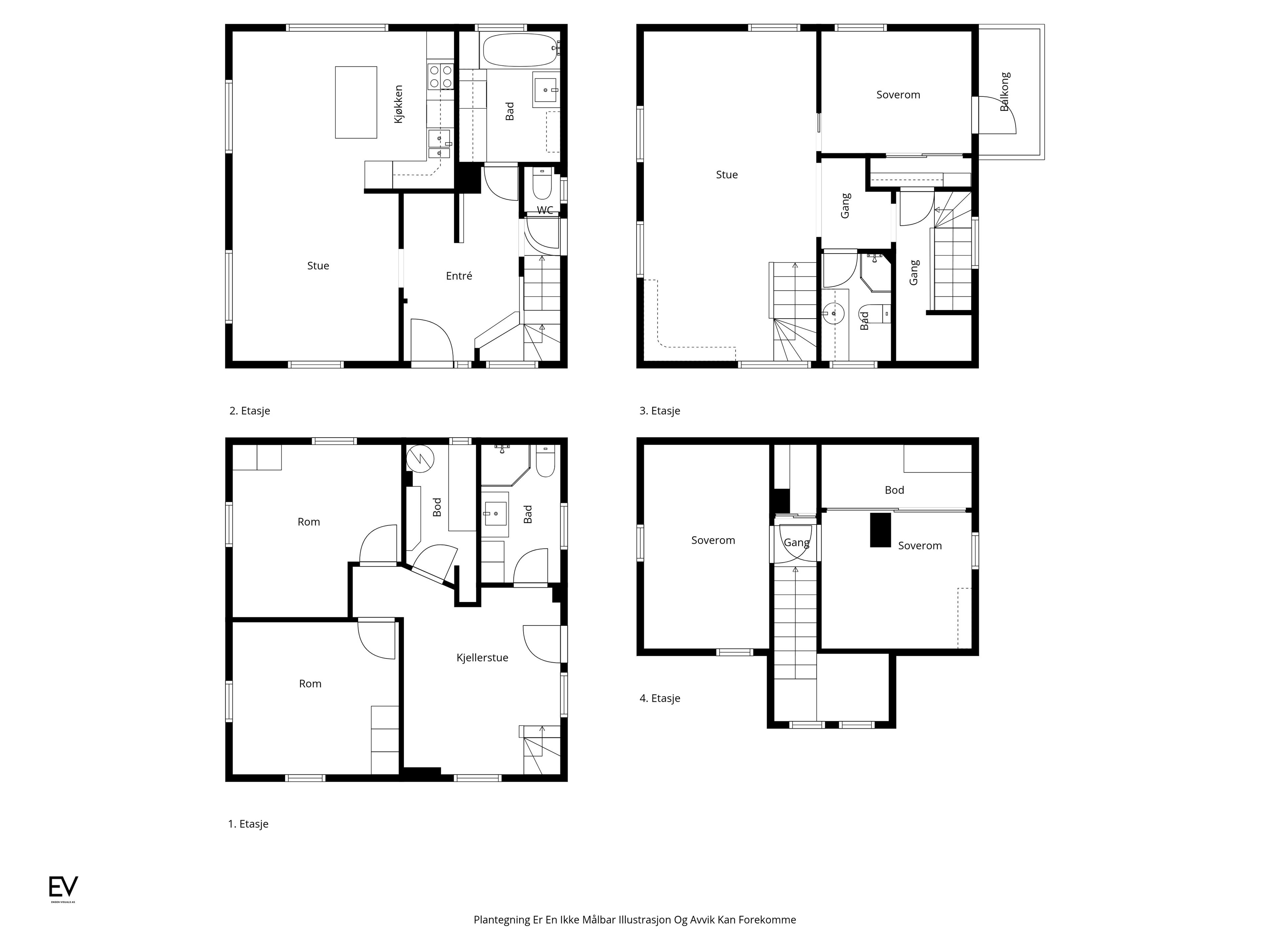
Plantegning alle etasjer. ( 49 av )
4882422_1a
Godt skjermet bakhage, pent opparbeidet med skifer rundt deler av bolig. ( 50 av )
4882429_1a
Med nok av plass til både sittegruppe og grill ligger alt til rette for å kunne nyte lange, solrike dager og hyggelige sommerkvelder i godt selskap. ( 51 av )
4882423_1a
Pergola i hage (ikke byggemeldt og godkjent). ( 52 av )
4882424_1a
Her bor du sentralt, men likevel tilbaketrukket, i attraktivt boligområde med nærhet til alt du skulle trenge i hverdagen for å trives i lang tid. ( 53 av )
4882426_1a
Parkeringsmuligheter i garasje og gårdsrom. En eiendomsflik mot butlersgate står i en annen hjemmelshaver sitt navn, som gjelder flere eiendommer Butlersgate og nabogatene. Fliken ble sist omsatt i 1856, se salgsoppgaven for ytterligere opplysninger. ( 54 av )
4882427_1a
( 55 av )
4882407_1a
( 56 av )
4882405_1a
( 57 av )
4882406_1a
( 58 av )
4882468_1a
Våland dampbakeri & conditori med sitt gode utvalg av bakst like i nærheten. ( 59 av )
4882469_1a
Vålandstårnet med turstier, lekeplasser og fine sitteplasser med panoramautsikt over byen. ( 60 av )
4882470_1a
Vålandstårnet. ( 61 av )

Butlers gate 7

Se alle bilder (0)
4882425_1a
4882438_1a
4882481_1a
4882428_1a
4882454_1a
4882453_1a
4882457_1a
4882447_1a
4882445_1a
4882433_1a
4882437_1a
4882436_1a
4882448_1a
4882452_1a
4882434_1a
4882449_1a
4882440_1a
4882442_1a
4882435_1a
4882444_1a
4882439_1a
4882455_1a
4882456_1a
4882482_1a
4882416_1a
4882415_1a
4882409_1a
4882419_1a
4882408_1a
4882410_1a
4882411_1a
4882413_1a
4882414_1a
4882483_1a
4882417_1a
4882418_1a
4882421_1a
4882420_1a
4882480_1a
4882460_1a
4882459_1a
4882467_1a
4882466_1a
4882464_1a
4882463_1a
4882462_1a
4882461_1a
4882465_1a
4882484_1a
4882422_1a
4882429_1a
4882423_1a
4882424_1a
4882426_1a
4882427_1a
4882407_1a
4882405_1a
4882406_1a
4882468_1a
4882469_1a
4882470_1a

Butlers gate 7

Prisantydning:
Fra Kr 6990000,00
til Kr 0,00
Totalpris:
Kr 7184000,00
BRA:
201,00 - 0,00
BRA-i:
181 - 0
Soverom:
3 - 0
Boligtype:
Tomannsbolig
Eierform:
Eiet tomt
Byggeår:
1915
Etasje:
0
Tomteareal:
313

Flott murvilla med mye muligheter (hel tomannsbolig), beliggende i sentralt og attraktivt boligområde - Garasje

Ansvarlig megler:
Stephan Michael Erichsen

Daglig leder / Partner / Eiendomsmegler MNEF

Visning

02.12.2025 16:30 - 17:30

Legg visning til i kalender 02.12.2025 16:30 02.12.2025 17:30 Central European Time Visning av Butlers gate 7 Boligvisning av Butlers gate 7 Butlers gate 7

Passer ikke visningstidspunktene?

Visningspåmelding
Avtal privatvisning her

Butlers gate 7

image005

Nøkkelinformasjon

plus_G_2025

BELIGGENHET

plus_G
minus_G

BESKRIVELSE AV EIENDOMMEN

plus_G
minus_G

OFFENTLIGE FORHOLD

plus_G
minus_G

PRISANTYDNING INKLUDERT OMKOSTNINGER

plus_G
minus_G

ØVRIGE KJØPSFORHOLD

plus_G
minus_G

Dokumenter

plus_G_2025

Del boligen

facebook-gold
Twitter-gold

Lurer du på noe om denne boligen?

Ta kontakt under via skjemaet.


Relaterte boliger

Hinnavågen 46
6490000,00  0,00

Hinnavågen 46

Stavanger ­ Stavanger
Romslig enebolig med sentral beliggenhet på Hinna | Carport | Terrasse | Hage

Totalpris:

Kr 6671500,00

BRA-i:

275 m²
Smedgata 10
3975000,00  0,00

Smedgata 10

Stavanger ­ STAVANGER
Gjennomført og attraktiv leilighet midt i sentrum | 2 soverom | Balkong

Totalpris:

Kr 4324881,00

BRA-i:

59 m²
Bjergsted Terrasse 4
11000000,00  0,00

Bjergsted Terrasse 4

Stavanger ­ Stavanger
Stor leilighet på 200 kvm rett bak konserthuset. Flott sjøusikt. 4 soverom. 2 park. plasser mm.

Totalpris:

Kr 11439316,00

BRA-i:

202 m²
Kong Carls gate 33
10800000,00  0,00

Kong Carls gate 33

Stavanger ­ Stavanger
Klassisk hel 2-mannsbolig med stor tomt og strålende beliggenhet.

Totalpris:

Kr 11089250,00

BRA-i:

174 m²
Nordvikveien 6
21000000,00  0,00

Nordvikveien 6

Stavanger ­ HUNDVÅG
Eksklusiv villaeiendom i idylliske omgivelser med, naust, brygge, store balkonger, carport og utleiedel.

Totalpris:

Kr 21544250,00

BRA-i:

359 m²
Condeep-veien 25
6590000,00  0,00

Condeep-veien 25

Stavanger ­ STAVANGER
Søstrene Hinna - Helt ny leilighet med 3 soverom - 2025, 2 balkonger, p-plass og bod - Flotte fellesfasiliteter.

Totalpris:

Kr 6768000,00

BRA-i:

74 m²
Madlaveien 18 og 20
14000000,00  0,00

Madlaveien 18 og 20

Stavanger ­ STAVANGER
Sentrum - Hospits/pensjonat & forretning/kontor/restaurant | Stort næringsbygg med gode utviklingsmuligheter

Areal (BTA):

723,00
Dronningens gate 10
16900000,00  0,00

Dronningens gate 10

Stavanger ­ STAVANGER
Ærverdig og vakker murvilla med ettertraktet beliggenhet. Frodig, skjermet og solfylt hage. Garasje.

Totalpris:

Kr 17340750,00

BRA-i:

343 m²
Se flere boliger
Bolig til salgs

Inspirasjon

Inspirerende interiørbilder fra norske hjem.
sov1
Soverom
kjo1
Kjøkken
stue
Stue

Boligartikler

Nyttig informasjon, råd og inspirasjon for deg som er opptatt av bolig.
aaletidligute
Aktuelt

Kapret først drømmeboligen, solgte egen bolig få dager senere

Konseptet vårt, Tidlig ute, legger til rette for et stressfritt boligsalg på kundens premisser. Poenget er å være ute i god tid, slik at prosessen...
vo4
Aktuelt

178 dager uten bud; - Proaktiv solgte boligen min etter første visning

Huset i Vestre Olsvikveg hadde mistet alt av moment etter et halvt år ute i markedet. Da Proaktiv ved Jon Kristian Røsok kom inn i bildet ble...
n_r-16
Aktuelt

Drømmer du om å drive ditt eget meglerkontor?

Proaktiv Eiendomsmegling er alltid på utkikk etter flinke folk som ønsker å skape sin egen suksess. Er du en målrettet og verdiskapende megler, med...