Servitutter/rettigheter/forpliktelser
Følgende servitutter er tinglyst på eiendommens grunnboksblad:
2016/729115-1/200 Bestemmelse om veg
12.08.2016
rettighetshaver:Knr:4601 Gnr:189 Bnr:419
Overført fra: 4601-189/431
Gjelder denne registerenheten med flere
2016/729115-2/200 Best. om adkomstrett
12.08.2016
rettighetshaver:Knr:4601 Gnr:189 Bnr:419
Bestemmelse om gangveg
Med flere bestemmelser
Overført fra: 4601-189/431
Gjelder denne registerenheten med flere
2017/867596-1/200 Erklæring/avtale
11.08.2017 21:00
Rettighetshaver:BERGEN KOMMUNE
Org.nr: 964338531
Kan ikke slettes uten samtykke fra:BERGEN KOMMUNE
Org.nr: 964338531
Rett til å anlegge gang- og sykkelveier
Overført fra: 4601-189/431
Gjelder denne registerenheten med flere
2017/867625-2/200 Bruksrett
11.08.2017 21:00
Rettighetshaver: Knr:4601 Gnr:189 Bnr:422 Snr:1
Rettighetshaver: Knr:4601 Gnr:189 Bnr:422 Snr:2
Rettighetshaver: Knr:4601 Gnr:189 Bnr:422 Snr:3
Rettighetshaver: Knr:4601 Gnr:189 Bnr:422 Snr:4
Rettighetshaver: Knr:4601 Gnr:189 Bnr:422 Snr:5
Rettighetshaver: Knr:4601 Gnr:189 Bnr:422 Snr:6
Rettighetshaver: Knr:4601 Gnr:189 Bnr:422 Snr:7
Rettighetshaver: Knr:4601 Gnr:189 Bnr:422 Snr:8
Rettighetshaver: Knr:4601 Gnr:189 Bnr:422 Snr:9
Rettighetshaver: Knr:4601 Gnr:189 Bnr:422 Snr:10
Rettighetshaver: Knr:4601 Gnr:189 Bnr:422 Snr:11
Rettighetshaver: Knr:4601 Gnr:189 Bnr:422 Snr:12
Rettighetshaver: Knr:4601 Gnr:189 Bnr:422 Snr:13
Rettighetshaver: Knr:4601 Gnr:189 Bnr:422 Snr:14
Rettighetshaver: Knr:4601 Gnr:189 Bnr:422 Snr:15
Rettighetshaver: Knr:4601 Gnr:189 Bnr:422 Snr:16
Rettighetshaver: Knr:4601 Gnr:189 Bnr:422 Snr:17
Rettighetshaver: Knr:4601 Gnr:189 Bnr:422 Snr:18
Rettighetshaver: Knr:4601 Gnr:189 Bnr:422 Snr:19
Rettighetshaver: Knr:4601 Gnr:189 Bnr:422 Snr:20
Rettighetshaver: Knr:4601 Gnr:189 Bnr:422 Snr:21
Rettighetshaver: Knr:4601 Gnr:189 Bnr:422 Snr:22
Rettighetshaver: Knr:4601 Gnr:189 Bnr:422 Snr:23
Rettighetshaver: Knr:4601 Gnr:189 Bnr:422 Snr:24
Rettighetshaver: Knr:4601 Gnr:189 Bnr:422 Snr:25
Rettighetshaver: Knr:4601 Gnr:189 Bnr:422 Snr:26
Rettighetshaver: Knr:4601 Gnr:189 Bnr:422 Snr:27
Rettighetshaver: Knr:4601 Gnr:189 Bnr:422 Snr:28
Rettighetshaver: Knr:4601 Gnr:189 Bnr:422 Snr:29
Rettighetshaver: Knr:4601 Gnr:189 Bnr:422 Snr:30
Rettighetshaver: Knr:4601 Gnr:189 Bnr:422 Snr:31
Rettighetshaver: Knr:4601 Gnr:189 Bnr:422 Snr:32
Rettighetshaver: Knr:4601 Gnr:189 Bnr:422 Snr:33
Rettighetshaver: Knr:4601 Gnr:189 Bnr:422 Snr:34
Rettighetshaver: Knr:4601 Gnr:189 Bnr:422 Snr:35
Rettighetshaver: Knr:4601 Gnr:189 Bnr:422 Snr:36
Rettighetshaver: Knr:4601 Gnr:189 Bnr:422 Snr:37
Rettighetshaver: Knr:4601 Gnr:189 Bnr:422 Snr:38
Rettighetshaver: Knr:4601 Gnr:189 Bnr:422 Snr:39
Rettighetshaver: Knr:4601 Gnr:189 Bnr:422 Snr:40
Rettighetshaver: Knr:4601 Gnr:189 Bnr:422 Snr:41
Rettighetshaver: Knr:4601 Gnr:189 Bnr:422 Snr:42
Rettighetshaver: Knr:4601 Gnr:189 Bnr:422 Snr:43
Rettighetshaver: Knr:4601 Gnr:189 Bnr:422 Snr:44
Rettighetshaver: Knr:4601 Gnr:189 Bnr:422 Snr:45
Rettighetshaver: Knr:4601 Gnr:189 Bnr:422 Snr:46
Rettighetshaver: Knr:4601 Gnr:189 Bnr:422 Snr:47
Rettighetshaver: Knr:4601 Gnr:189 Bnr:422 Snr:48
Rettighetshaver: Knr:4601 Gnr:189 Bnr:422 Snr:49
Rettighetshaver: Knr:4601 Gnr:189 Bnr:422 Snr:50
Rettighetshaver: Knr:4601 Gnr:189 Bnr:422 Snr:51
Rettighetshaver: Knr:4601 Gnr:189 Bnr:422 Snr:52
Rettighetshaver: Knr:4601 Gnr:189 Bnr:422 Snr:53
Rettighetshaver: Knr:4601 Gnr:189 Bnr:422 Snr:54
Rettighetshaver: Knr:4601 Gnr:189 Bnr:422 Snr:55
Rettighetshaver: Knr:4601 Gnr:189 Bnr:422 Snr:56
Rettighetshaver: Knr:4601 Gnr:189 Bnr:422 Snr:57
Rettighetshaver: Knr:4601 Gnr:189 Bnr:422 Snr:58
Rettighetshaver: Knr:4601 Gnr:189 Bnr:422 Snr:59
Rettighetshaver: Knr:4601 Gnr:189 Bnr:422 Snr:60
Rettighetshaver: Knr:4601 Gnr:189 Bnr:422 Snr:61
Rettighetshaver: Knr:4601 Gnr:189 Bnr:422 Snr:62
Rettighetshaver: Knr:4601 Gnr:189 Bnr:422 Snr:63
Rettighetshaver: Knr:4601 Gnr:189 Bnr:422 Snr:64
Rettighetshaver: Knr:4601 Gnr:189 Bnr:422 Snr:65
Rettighetshaver: Knr:4601 Gnr:189 Bnr:422 Snr:66
Rettighetshaver: Knr:4601 Gnr:189 Bnr:422 Snr:67
Rettighetshaver: Knr:4601 Gnr:189 Bnr:422 Snr:68
Rettighetshaver: Knr:4601 Gnr:189 Bnr:422 Snr:69
Rettighetshaver: Knr:4601 Gnr:189 Bnr:422 Snr:70
Rettighetshaver: Knr:4601 Gnr:189 Bnr:422 Snr:71
Rettighetshaver: Knr:4601 Gnr:189 Bnr:422 Snr:72
Rettighetshaver: Knr:4601 Gnr:189 Bnr:422 Snr:73
Rettighetshaver: Knr:4601 Gnr:189 Bnr:422 Snr:74
Rettighetshaver: Knr:4601 Gnr:189 Bnr:422 Snr:75
Rettighetshaver: Knr:4601 Gnr:189 Bnr:422 Snr:76
Rettighetshaver: Knr:4601 Gnr:189 Bnr:422 Snr:77
Rettighetshaver: Knr:4601 Gnr:189 Bnr:422 Snr:78
Rettighetshaver: Knr:4601 Gnr:189 Bnr:422 Snr:79
Rettighetshaver: Knr:4601 Gnr:189 Bnr:422 Snr:80
Rettighetshaver: Knr:4601 Gnr:189 Bnr:422 Snr:81
Rettighetshaver: Knr:4601 Gnr:189 Bnr:422 Snr:82
Rettighetshaver: Knr:4601 Gnr:189 Bnr:422 Snr:83
Rettighetshaver: Knr:4601 Gnr:189 Bnr:422 Snr:84
Rettighetshaver: Knr:4601 Gnr:189 Bnr:422 Snr:85
Rettighetshaver: Knr:4601 Gnr:189 Bnr:422 Snr:86
Rettighetshaver: Knr:4601 Gnr:189 Bnr:422 Snr:87
Rettighetshaver: Knr:4601 Gnr:189 Bnr:422 Snr:88
Rettighetshaver: Knr:4601 Gnr:189 Bnr:422 Snr:89
Rettighetshaver: Knr:4601 Gnr:189 Bnr:422 Snr:90
Rettighetshaver: Knr:4601 Gnr:189 Bnr:422 Snr:91
Rettighetshaver: Knr:4601 Gnr:189 Bnr:422 Snr:92
Rettighetshaver: Knr:4601 Gnr:189 Bnr:422 Snr:93
Rettighetshaver: Knr:4601 Gnr:189 Bnr:422 Snr:94
Rettighetshaver: Knr:4601 Gnr:189 Bnr:422 Snr:95
Rettighetshaver: Knr:4601 Gnr:189 Bnr:422 Snr:96
Rettighetshaver: Knr:4601 Gnr:189 Bnr:422 Snr:97
Rettighetshaver: Knr:4601 Gnr:189 Bnr:422 Snr:98
Rettighetshaver: Knr:4601 Gnr:189 Bnr:422 Snr:99
Rettighetshaver: Knr:4601 Gnr:189 Bnr:422 Snr:100
Rettighetshaver: Knr:4601 Gnr:189 Bnr:422 Snr:101
Kan ikke slettes uten samtykke fra:BERGEN KOMMUNE
Org.nr: 964338531
Gjelder fellesarealer
Overført fra: 4601-189/431
Gjelder denne registerenheten med flere
2017/867625-3/200 Bruksrett
11.08.2017 21:00
Kan ikke slettes uten samtykke fra:BERGEN KOMMUNE
Org.nr: 964338531
Gjensidig rett til bruk av fellesarealer
Overført fra: 4601-189/431
Gjelder denne registerenheten med flere
2017/867649-4/200 Bestemmelse om veg
11.08.2017 21:00
Kan ikke slettes uten samtykke fra:BERGEN KOMMUNE
Org.nr: 964338531
rettighetshaver:Knr:4601 Gnr:189 Bnr:422 Snr:1
rettighetshaver:Knr:4601 Gnr:189 Bnr:422 Snr:2
rettighetshaver:Knr:4601 Gnr:189 Bnr:422 Snr:3
rettighetshaver:Knr:4601 Gnr:189 Bnr:422 Snr:4
rettighetshaver:Knr:4601 Gnr:189 Bnr:422 Snr:5
rettighetshaver:Knr:4601 Gnr:189 Bnr:422 Snr:6
rettighetshaver:Knr:4601 Gnr:189 Bnr:422 Snr:7
rettighetshaver:Knr:4601 Gnr:189 Bnr:422 Snr:8
rettighetshaver:Knr:4601 Gnr:189 Bnr:422 Snr:9
rettighetshaver:Knr:4601 Gnr:189 Bnr:422 Snr:10
rettighetshaver:Knr:4601 Gnr:189 Bnr:422 Snr:11
rettighetshaver:Knr:4601 Gnr:189 Bnr:422 Snr:12
rettighetshaver:Knr:4601 Gnr:189 Bnr:422 Snr:13
rettighetshaver:Knr:4601 Gnr:189 Bnr:422 Snr:14
rettighetshaver:Knr:4601 Gnr:189 Bnr:422 Snr:15
rettighetshaver:Knr:4601 Gnr:189 Bnr:422 Snr:16
rettighetshaver:Knr:4601 Gnr:189 Bnr:422 Snr:17
rettighetshaver:Knr:4601 Gnr:189 Bnr:422 Snr:18
rettighetshaver:Knr:4601 Gnr:189 Bnr:422 Snr:19
rettighetshaver:Knr:4601 Gnr:189 Bnr:422 Snr:20
rettighetshaver:Knr:4601 Gnr:189 Bnr:422 Snr:21
rettighetshaver:Knr:4601 Gnr:189 Bnr:422 Snr:22
rettighetshaver:Knr:4601 Gnr:189 Bnr:422 Snr:23
rettighetshaver:Knr:4601 Gnr:189 Bnr:422 Snr:24
rettighetshaver:Knr:4601 Gnr:189 Bnr:422 Snr:25
rettighetshaver:Knr:4601 Gnr:189 Bnr:422 Snr:26
rettighetshaver:Knr:4601 Gnr:189 Bnr:422 Snr:27
rettighetshaver:Knr:4601 Gnr:189 Bnr:422 Snr:28
rettighetshaver:Knr:4601 Gnr:189 Bnr:422 Snr:29
rettighetshaver:Knr:4601 Gnr:189 Bnr:422 Snr:30
rettighetshaver:Knr:4601 Gnr:189 Bnr:422 Snr:31
rettighetshaver:Knr:4601 Gnr:189 Bnr:422 Snr:32
rettighetshaver:Knr:4601 Gnr:189 Bnr:422 Snr:33
rettighetshaver:Knr:4601 Gnr:189 Bnr:422 Snr:34
rettighetshaver:Knr:4601 Gnr:189 Bnr:422 Snr:35
rettighetshaver:Knr:4601 Gnr:189 Bnr:422 Snr:36
rettighetshaver:Knr:4601 Gnr:189 Bnr:422 Snr:37
rettighetshaver:Knr:4601 Gnr:189 Bnr:422 Snr:38
rettighetshaver:Knr:4601 Gnr:189 Bnr:422 Snr:39
rettighetshaver:Knr:4601 Gnr:189 Bnr:422 Snr:40
rettighetshaver:Knr:4601 Gnr:189 Bnr:422 Snr:41
rettighetshaver:Knr:4601 Gnr:189 Bnr:422 Snr:42
rettighetshaver:Knr:4601 Gnr:189 Bnr:422 Snr:43
rettighetshaver:Knr:4601 Gnr:189 Bnr:422 Snr:44
rettighetshaver:Knr:4601 Gnr:189 Bnr:422 Snr:45
rettighetshaver:Knr:4601 Gnr:189 Bnr:422 Snr:46
rettighetshaver:Knr:4601 Gnr:189 Bnr:422 Snr:47
rettighetshaver:Knr:4601 Gnr:189 Bnr:422 Snr:48
rettighetshaver:Knr:4601 Gnr:189 Bnr:422 Snr:49
rettighetshaver:Knr:4601 Gnr:189 Bnr:422 Snr:50
rettighetshaver:Knr:4601 Gnr:189 Bnr:422 Snr:51
rettighetshaver:Knr:4601 Gnr:189 Bnr:422 Snr:52
rettighetshaver:Knr:4601 Gnr:189 Bnr:422 Snr:53
rettighetshaver:Knr:4601 Gnr:189 Bnr:422 Snr:54
rettighetshaver:Knr:4601 Gnr:189 Bnr:422 Snr:55
rettighetshaver:Knr:4601 Gnr:189 Bnr:422 Snr:56
rettighetshaver:Knr:4601 Gnr:189 Bnr:422 Snr:57
rettighetshaver:Knr:4601 Gnr:189 Bnr:422 Snr:58
rettighetshaver:Knr:4601 Gnr:189 Bnr:422 Snr:59
rettighetshaver:Knr:4601 Gnr:189 Bnr:422 Snr:60
rettighetshaver:Knr:4601 Gnr:189 Bnr:422 Snr:61
rettighetshaver:Knr:4601 Gnr:189 Bnr:422 Snr:62
rettighetshaver:Knr:4601 Gnr:189 Bnr:422 Snr:63
rettighetshaver:Knr:4601 Gnr:189 Bnr:422 Snr:64
rettighetshaver:Knr:4601 Gnr:189 Bnr:422 Snr:65
rettighetshaver:Knr:4601 Gnr:189 Bnr:422 Snr:66
rettighetshaver:Knr:4601 Gnr:189 Bnr:422 Snr:67
rettighetshaver:Knr:4601 Gnr:189 Bnr:422 Snr:68
rettighetshaver:Knr:4601 Gnr:189 Bnr:422 Snr:69
rettighetshaver:Knr:4601 Gnr:189 Bnr:422 Snr:70
rettighetshaver:Knr:4601 Gnr:189 Bnr:422 Snr:71
rettighetshaver:Knr:4601 Gnr:189 Bnr:422 Snr:72
rettighetshaver:Knr:4601 Gnr:189 Bnr:422 Snr:73
rettighetshaver:Knr:4601 Gnr:189 Bnr:422 Snr:74
rettighetshaver:Knr:4601 Gnr:189 Bnr:422 Snr:75
rettighetshaver:Knr:4601 Gnr:189 Bnr:422 Snr:76
rettighetshaver:Knr:4601 Gnr:189 Bnr:422 Snr:77
rettighetshaver:Knr:4601 Gnr:189 Bnr:422 Snr:78
rettighetshaver:Knr:4601 Gnr:189 Bnr:422 Snr:79
rettighetshaver:Knr:4601 Gnr:189 Bnr:422 Snr:80
rettighetshaver:Knr:4601 Gnr:189 Bnr:422 Snr:81
rettighetshaver:Knr:4601 Gnr:189 Bnr:422 Snr:82
rettighetshaver:Knr:4601 Gnr:189 Bnr:422 Snr:83
rettighetshaver:Knr:4601 Gnr:189 Bnr:422 Snr:84
rettighetshaver:Knr:4601 Gnr:189 Bnr:422 Snr:85
rettighetshaver:Knr:4601 Gnr:189 Bnr:422 Snr:86
rettighetshaver:Knr:4601 Gnr:189 Bnr:422 Snr:87
rettighetshaver:Knr:4601 Gnr:189 Bnr:422 Snr:88
rettighetshaver:Knr:4601 Gnr:189 Bnr:422 Snr:89
rettighetshaver:Knr:4601 Gnr:189 Bnr:422 Snr:90
rettighetshaver:Knr:4601 Gnr:189 Bnr:422 Snr:91
rettighetshaver:Knr:4601 Gnr:189 Bnr:422 Snr:92
rettighetshaver:Knr:4601 Gnr:189 Bnr:422 Snr:93
rettighetshaver:Knr:4601 Gnr:189 Bnr:422 Snr:94
rettighetshaver:Knr:4601 Gnr:189 Bnr:422 Snr:95
rettighetshaver:Knr:4601 Gnr:189 Bnr:422 Snr:96
rettighetshaver:Knr:4601 Gnr:189 Bnr:422 Snr:97
rettighetshaver:Knr:4601 Gnr:189 Bnr:422 Snr:98
rettighetshaver:Knr:4601 Gnr:189 Bnr:422 Snr:99
rettighetshaver:Knr:4601 Gnr:189 Bnr:422 Snr:100
rettighetshaver:Knr:4601 Gnr:189 Bnr:422 Snr:101
Overført fra: 4601-189/431
Gjelder denne registerenheten med flere
2017/867649-5/200 Bestemmelse om veg
11.08.2017 21:00
Kan ikke slettes uten samtykke fra:BERGEN KOMMUNE
Org.nr: 964338531
Bestemmelse om gjensidig veirett
Overført fra: 4601-189/431
Gjelder denne registerenheten med flere
2018/1574402-1/200 Erklæring/avtale
20.11.2018 21:00
rettighetshaver:Knr:4601 Gnr:189 Bnr:419
Bestemmelse om bruk til nødvendige heishus/nedstigningstårn/trapper
Gjelder denne registerenheten med flere
2018/1574402-2/200 Bestemmelse om adkomstrett
20.11.2018 21:00
rettighetshaver:Knr:4601 Gnr:189 Bnr:419
Gjelder denne registerenheten med flere
Grunndata
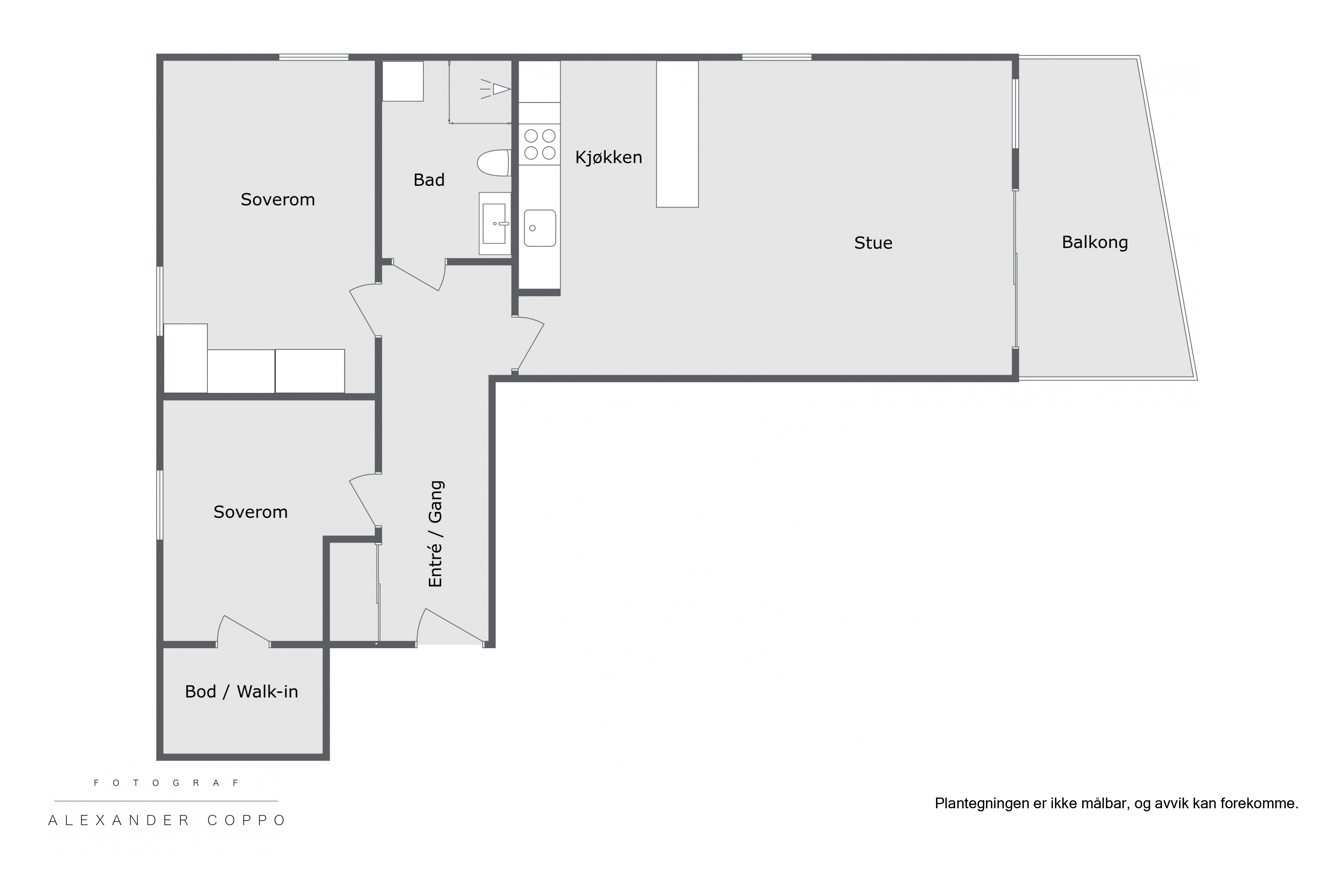
2018/1391632-1/200 Seksjonering
10.10.2018 21:00
opprettet seksjoner:
snr: 12
formål: Bolig
tillegsdel: Bygning
sameiebrøk: 76/7905