4880547_1a
Hinnavågen 56 presenteres av Proaktiv Eiendomsmegling v/ Ordin Fikstvedt. ( 1 av )
4880539_1a
Boligens første inntrykk er lys og romslig. ( 2 av )
4880551_1a
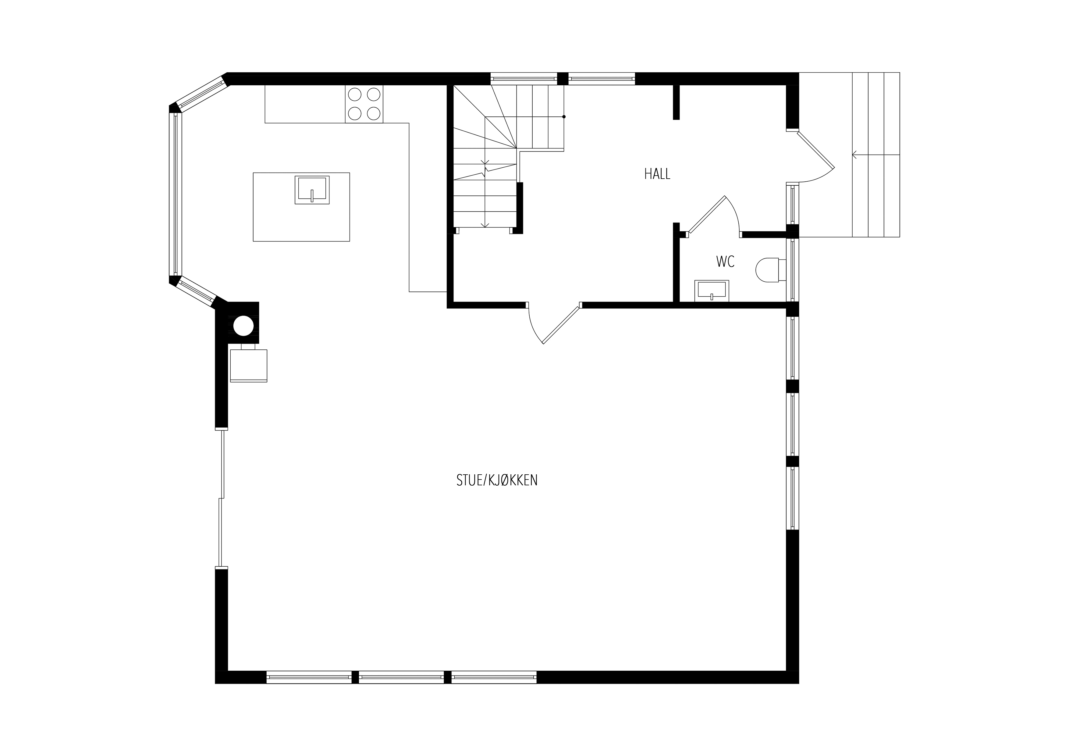
Plantegning første etasje. ( 3 av )
4880537_1a
Romslig gang med god plass til å henge fra seg yttertøy. ( 4 av )
4880540_1a
Stuen har store vindusflater som slipper inn dagslys med god plass til sofa, spisebord og annet møblement. ( 5 av )
4880543_1a
Fra stuen har du utgang til en stor terrasse på 50 kvadratmeter. ( 6 av )
4880544_1a
( 7 av )
4880545_1a
( 8 av )
4880541_1a
Kjøkkenet ligger i åpen løsning med stuen som gir en sosial atmosfære. ( 9 av )
4880542_1a
Kjøkkenet er stilrent med hvite slette fronter, kjøkkenøy og rikelig med skap og benkplass. ( 10 av )
4880538_1a
Toalettrom. ( 11 av )
4880552_1a
Plantegning andre etasje. ( 12 av )
4880529_1a
Tar vi turen opp til andre etasje finner vi soveromsfløyen med tre soverom og et bad. ( 13 av )
4880525_1a
( 14 av )
4880526_1a
( 15 av )
4880527_1a
Ett av soverommene har utgang til balkong med utsikt over nærområdet. ( 16 av )
4880528_1a
Soverommene er av god størrelse med plass til dobbelt seng og store vindusflater. ( 17 av )
4880530_1a
Badet er lekkert, helfliset og moderne innredet. ( 18 av )
4880531_1a
Badet har badekar, dobbelservant, dusjhjørne med glassvegg og vegghengt toalett. ( 19 av )
4880553_1a
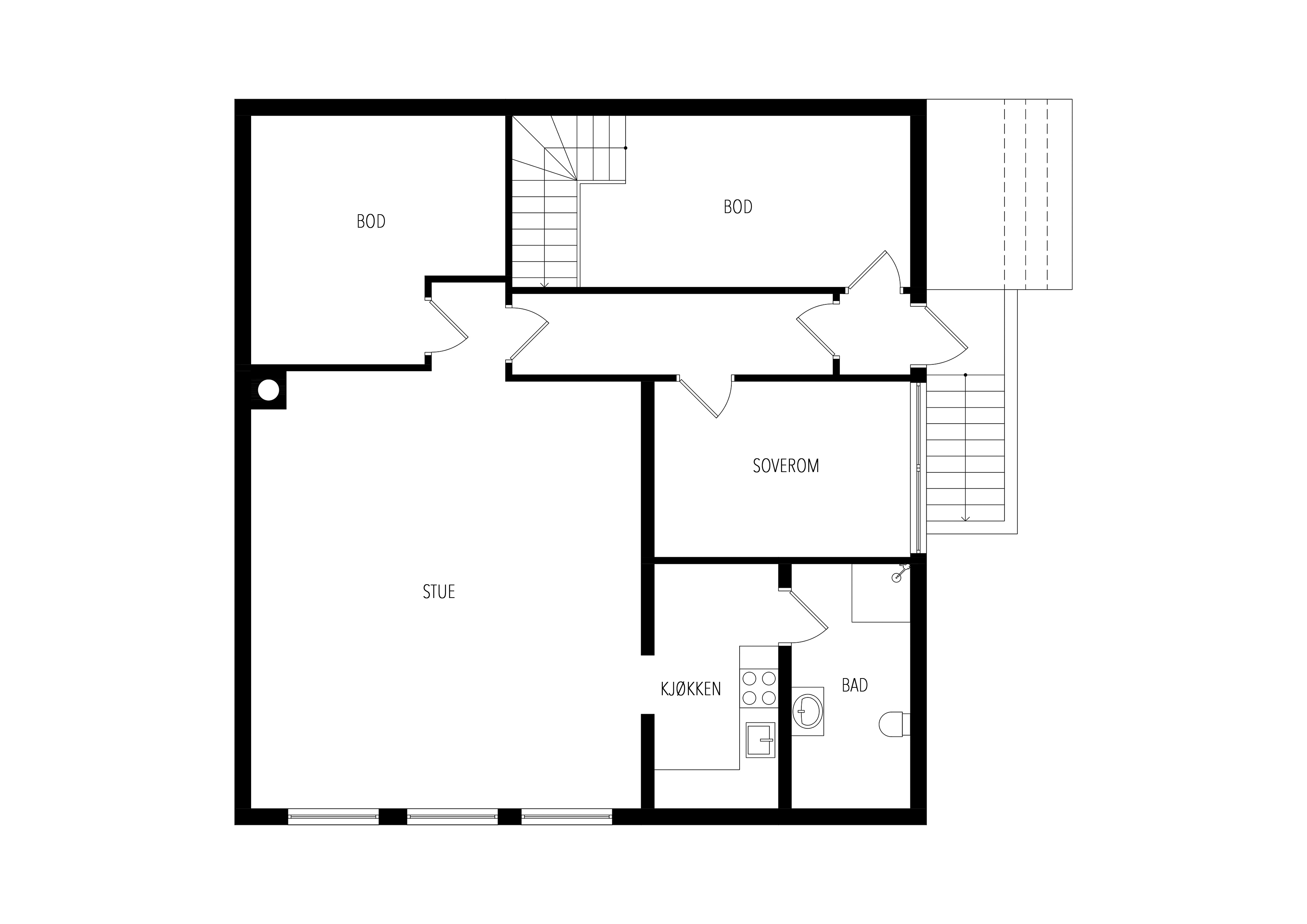
Plantegning kjeller (Soverom og stue/kjøkken er ikke godkjent). ( 20 av )
4880532_1a
Kjellerstuen (ikke godkjent) er lys og romslig med god plass til sofa, spisebord og annet møblement. ( 21 av )
4880533_1a
Kjøkkenet ligger for seg selv med lyse og slette fronter. ( 22 av )
4880534_1a
Badet har servant, dusjkabinett og toalett. ( 23 av )
4880536_1a
( 24 av )
4880535_1a
( 25 av )
4880546_1a
Uteområde. ( 26 av )
4880521_1a
Nærområde. ( 27 av )
4880548_1a
Nærområde. ( 28 av )
4880549_1a
Nærområde. ( 29 av )
4880550_1a
Nærområde. ( 30 av )
4880522_1a
Nærområde. ( 31 av )
4880554_1a
Nærområde. ( 32 av )
4880524_1a
Nærområde. ( 33 av )
4880523_1a
Nærområde. ( 34 av )
4880555_1a
Nærområde. ( 35 av )

Hinnavågen 56

Se alle bilder (0)
4880547_1a
4880539_1a
4880551_1a
4880537_1a
4880540_1a
4880543_1a
4880544_1a
4880545_1a
4880541_1a
4880542_1a
4880538_1a
4880552_1a
4880529_1a
4880525_1a
4880526_1a
4880527_1a
4880528_1a
4880530_1a
4880531_1a
4880553_1a
4880532_1a
4880533_1a
4880534_1a
4880536_1a
4880535_1a
4880546_1a
4880521_1a
4880548_1a
4880549_1a
4880550_1a
4880522_1a
4880554_1a
4880524_1a
4880523_1a
4880555_1a

Hinnavågen 56

Prisantydning:
Fra Kr 4900000,00
til Kr 0,00
Totalpris:
Kr 5041750,00
BRA:
213,00 - 0,00
BRA-i:
213 - 0
Soverom:
3 - 0
Boligtype:
Enebolig
Eierform:
Eiet tomt
Byggeår:
1979
Etasje:
0
Tomteareal:
420

Sjarmerende og romslig enebolig med carport, terrasse og sentral beliggenhet.

Ansvarlig megler:
Ordin Fikstvedt

Eiendomsmegler / Fagansvarlig / Partner

Kay Stian Espeland

Daglig leder/Megler

Visning

03.12.2025 16:00 - 17:00

Legg visning til i kalender 03.12.2025 16:00 03.12.2025 17:00 Central European Time Visning av Hinnavågen 56 Boligvisning av Hinnavågen 56 Hinnavågen 56

Passer ikke visningstidspunktene?

Visningspåmelding
Avtal privatvisning her

Hinnavågen 56

image005

Nøkkelinformasjon

plus_G_2025

BELIGGENHET

plus_G
minus_G

BESKRIVELSE AV EIENDOMMEN

plus_G
minus_G

OFFENTLIGE FORHOLD

plus_G
minus_G

PRISANTYDNING INKLUDERT OMKOSTNINGER

plus_G
minus_G

ØVRIGE KJØPSFORHOLD

plus_G
minus_G

Dokumenter

plus_G_2025

Del boligen

facebook-gold
Twitter-gold

Lurer du på noe om denne boligen?

Ta kontakt under via skjemaet.


Relaterte boliger

Butlers gate 7
6990000,00  0,00

Butlers gate 7

Stavanger ­ Stavanger
Flott murvilla med mye muligheter (hel tomannsbolig), beliggende i sentralt og attraktivt boligområde - Garasje

Totalpris:

Kr 7184000,00

BRA-i:

181 m²
Smedgata 10
3975000,00  0,00

Smedgata 10

Stavanger ­ STAVANGER
Gjennomført og attraktiv leilighet midt i sentrum | 2 soverom | Balkong

Totalpris:

Kr 4324881,00

BRA-i:

59 m²
Bjergsted Terrasse 4
11000000,00  0,00

Bjergsted Terrasse 4

Stavanger ­ Stavanger
Stor leilighet på 200 kvm rett bak konserthuset. Flott sjøusikt. 4 soverom. 2 park. plasser mm.

Totalpris:

Kr 11439316,00

BRA-i:

202 m²
Kong Carls gate 33
9800000,00  0,00

Kong Carls gate 33

Stavanger ­ Stavanger
Klassisk hel 2-mannsbolig med stor tomt og strålende beliggenhet.

Totalpris:

Kr 10064250,00

BRA-i:

174 m²
Nordvikveien 6
21000000,00  0,00

Nordvikveien 6

Stavanger ­ HUNDVÅG
Eksklusiv villaeiendom i idylliske omgivelser med, naust, brygge, store balkonger, carport og utleiedel.

Totalpris:

Kr 21544250,00

BRA-i:

359 m²
Condeep-veien 25
6590000,00  0,00

Condeep-veien 25

Stavanger ­ STAVANGER
Søstrene Hinna - Helt ny leilighet med 3 soverom - 2025, 2 balkonger, p-plass og bod - Flotte fellesfasiliteter.

Totalpris:

Kr 6768000,00

BRA-i:

74 m²
Madlaveien 18 og 20
14000000,00  0,00

Madlaveien 18 og 20

Stavanger ­ STAVANGER
Sentrum - Hospits/pensjonat & forretning/kontor/restaurant | Stort næringsbygg med gode utviklingsmuligheter

Areal (BTA):

723,00
Dronningens gate 10
16900000,00  0,00

Dronningens gate 10

Stavanger ­ STAVANGER
Ærverdig og vakker murvilla med ettertraktet beliggenhet. Frodig, skjermet og solfylt hage. Garasje.

Totalpris:

Kr 17340750,00

BRA-i:

343 m²
Se flere boliger
Bolig til salgs

Inspirasjon

Inspirerende interiørbilder fra norske hjem.
sov1
Soverom
kjo1
Kjøkken
stue
Stue

Boligartikler

Nyttig informasjon, råd og inspirasjon for deg som er opptatt av bolig.
aaletidligute
Aktuelt

Kapret først drømmeboligen, solgte egen bolig få dager senere

Konseptet vårt, Tidlig ute, legger til rette for et stressfritt boligsalg på kundens premisser. Poenget er å være ute i god tid, slik at prosessen...
vo4
Aktuelt

178 dager uten bud; - Proaktiv solgte boligen min etter første visning

Huset i Vestre Olsvikveg hadde mistet alt av moment etter et halvt år ute i markedet. Da Proaktiv ved Jon Kristian Røsok kom inn i bildet ble...
n_r-16
Aktuelt

Drømmer du om å drive ditt eget meglerkontor?

Proaktiv Eiendomsmegling er alltid på utkikk etter flinke folk som ønsker å skape sin egen suksess. Er du en målrettet og verdiskapende megler, med...